2023. 12. 30. 10:05ㆍ회원작품 | Projects/House
Jisan stone house

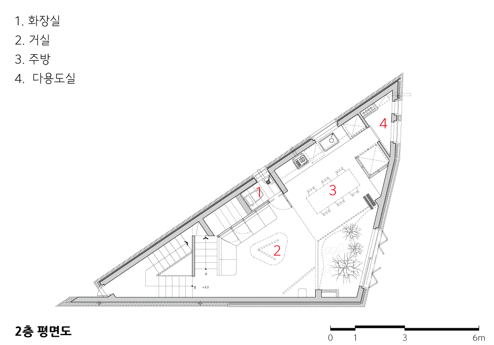
지산돌집은 무등산 국립공원과 광주 도심의 경계면에 위치한다. 부지는 혼재된 가로경관과 협소한 삼각형이라는 제약조건을 지닌다. 클라이언트는 일상과 취미활동의 공존이 가능한 몇몇 부가기능과 함께 거주 영역의 안정감을 지킬 수 있도록 경계성이 공고한 집을 원했다. 이에 집의 구성은 1층 다이닝 키친 공간, 2~4층 주거 공간, 옥상 공간으로 구분되며 3개의 층위를 지니게 되었다.
느슨한 경계
스킵플로어를 통해 공간별 개방감을 확보하고 층간 이동의 부담을 줄였다. 또한, 안방과 화장실을 제외한 나머지 실은 유리 개구부를 두거나 최소한으로만 구획하여 느슨한 경계를 형성함으로써 효율적인 활용이 가능하다.
유연한 개입
협소한 여건으로 인해 계단을 중심으로 하는 콤팩트한 공간 분할과 병합이 중요한 계획적 전제였다. 이를 위해 기능과 형태, 진행 방향이 달라지는 계단을 디자인했다. 계단과 맞물린 공간들은 각각의 특성에 맞게 변화하며 가구, 경계벽, 소파 등의 디자인으로 나타난다.
경관의 일부로서의 집
파주석 외벽과 콘크리트 폴리싱 바닥 마감이 만들어내는 외관은 도심과 자연의 경계에서 시각적 이정표로 기능하도록 했고, 상부로 갈수록 표면적이 넓어지는 창호와 옥상의 캐노피 구조는 원경의 무등산과 시각적 관계 맺기를 의도한 결과이다.
심사평
단독주택은 심사과정에서 가장 엄격한 기준이 적용되곤 한다. 건축적으로 훌륭하다고 해도 개인 또는 한 가족만을 위한 성취에 상을 주기에는 모두의 동의를 얻기 어렵기 때문이다. 지산돌집은 광주 시내에서 무등산으로 이어지는 가로에 면해 도시형 단독주택의 한 유형으로서 성취를 분명하게 보여준다. 건축물이 하나의 유형으로 인식된다는 것은 추상적 보편성과 개별적 구체성을 갖고 있다는 의미다. 가로에 면해 4층 높이의 단정한 입면과 균형 잡힌 자연스러운 개구부는 건강한 도시건축으로서 부족함이 없다. 저층부 60밀리미터 두께의 파주석 마감이 풍요로움과 함께 거주공간의 감각을 대변한다. 넓지 않은 3각형 형태의 평면은 흔히 동적공간이 되기 쉽고 주거공간의 정온함과는 거리가 멀어질 위험에 빠지기 쉬운데 높은 수준의 공간 조율로 걱정을 기우에 그치게 한다. 1층에 마련된 작은 주방은 외식업을 하는 주인의 새로운 레시피 개발공간이다. 일과 거주가 복합된 코로나 이후의 새로운 도시주거의 탁월한 예를 보여준다.






Loose boundaries
Skip floors ensured a sense of openness in each space and reduced the burden of moving between floors. In addition, rooms other than the master bedroom and bathroom can be utilized efficiently by having glass openings or dividing them to a minimum to create a loose boundary.
Flexible intervention
Due to the narrow conditions, compact space division and merging centered on the stairs was an important planning premise. To achieve this, we designed stairs with different functions, shapes, and directions. The spaces connected to the stairs change to suit their individual characteristics and appear in the design of furniture, boundary walls, sofas, etc.
House as part of the landscape
The exterior created by the paju stone exterior wall and concrete polished floor finish was intended to function as a visual landmark at the boundary between the city center and nature, and the windows and roof canopy structure, which expands the surface area toward the top, are intended to create a visual relationship with Mt. Mudeung in the distance. It is a result.
Commentary
Single family houses often face the strictest criteria during the judging process. Even if they are architecturally excellent, it can be challenging to gain unanimous approval for an achievement that caters to only one individual or family. Jisan Stone House, located facing a thoroughfare in Gwangju that leads from the city center to Mount Mudeung, is a type of urban single-family house that clearly demonstrates a remarkable accomplishment.
Perceiving the building as one type signifies both abstract universality and individual concreteness. The four-story, well-balanced, and natural openings facing the thoroughfare leave nothing lacking in terms of healthy urban architecture. The 60mm thick exposed rubble stone finish on the lower level represents a sense of richness and character in the living space. The relatively narrow triangular plan is prone to becoming a dynamic space or moving away from the comfort of a residential space. However, the high-level spatial modulation alleviates these concerns.
The small kitchen on the first floor serves as the owner’s space for developing new recipes, as they are involved in the foodservice industry. It is an excellent example of post-COVID urban living that combines work and residence.
Jisan Stone House is located at the border of Mudeungsan National Park and downtown Gwangju. The site has the constraints of a mixed streetscape and a narrow triangle. The client wanted a house with clear boundaries to maintain the stability of the residential area along with several additional functions that allow for the coexistence of daily life and hobby activities. Accordingly, the composition of the house is divided into a dining kitchen space on the first floor, a residential space on the second to fourth floors, and a rooftop space, and has three floors.






| 지산돌집 설계자 | 임태형 _ (주)건축사사무소 플랜 시공자 | 이현철 _ 디엠산업개발주식회사 건축주 | 이정윤 감리자 | (주)건축사사무소 플랜 설계팀 | 조하니 설계의도 구현 | (주)건축사사무소 플랜 대지위치 | 광주광역시 동구 지호로 96 주요용도 | 단독주택 대지면적 | 102.70㎡ 건축면적 | 51.14㎡ 연면적 | 178.15㎡ 건폐율 | 49.79% 용적률 | 152.29% 규모 | 4F 구조 | 철근콘크리트구조 외부마감재 | 파주석 자연석쌓기, 스타코 외단열시스템, 삼중 로이유리 내부마감재 | 노출콘크리트, 마이크로시멘트 설계기간 | 2020. 07 – 2020. 12 공사기간 | 2021. 04 – 2022. 01 사진 | 윤준환 구조분야 | SDM 구조기술사사무소 기계설비분야 | (주)새터이엔지 전기분야 | (주)새터이엔지 조경분야 | 조경상회 인테리어 | (주)건축사사무소 플랜 |
Jisan stone house Architect | Lim, Tae Hyung _ PLAN Architects Co., Ltd. Construction | Lee, Hyun Chol _ DM Industrial Development Co., Ltd Client | Lee, Jeong yoo Supervisor | PLAN Architects Co., Ltd. Project team | Jo, Hanee Design intention realization | PLAN Architects Co., Ltd. Location | 96, Jiho-ro, Dong-gu, Gwangju, Korea Program | Single Family House Site area | 102.70㎡ Building area | 51.14㎡ Gross floor area | 178.15㎡ Building to land ratio | 49.79% Floor area ratio | 152.29% Building scope | 4F Structure | RC Exterior finishing | Pajuseok, natural stone stacking, Stucco outsulation, triple row-e glass Interior finishing | Exposed concrete, Micro cement Design period | Jul. 2020 - Dec. 2020 Construction period | Apr. 2021 - Sep. 2021 Photograph | Yoon, Junhwan Structural engineer | SDM partners Mechanical engineer | Saeteo. ENG Electrical engineer | Saeteo. ENG Landscape engineer | Studio L Interior engineer | PLAN Architects office Co., Ltd. |

'회원작품 | Projects > House' 카테고리의 다른 글
| 강화바람언덕 협동조합주택 2023.12 (0) | 2023.12.30 |
|---|---|
| 포레스트 에지 2023.12 (0) | 2023.12.30 |
| 고운동주택:열린덮개_No3 2023.11 (0) | 2023.11.30 |
| 감솔채 2023.11 (0) | 2023.11.30 |
| 태민빌딩 2023.11 (0) | 2023.11.30 |