2023. 12. 30. 10:10ㆍ회원작품 | Projects/House
Forest Edge


산 나무와 죽은 나무의 병치
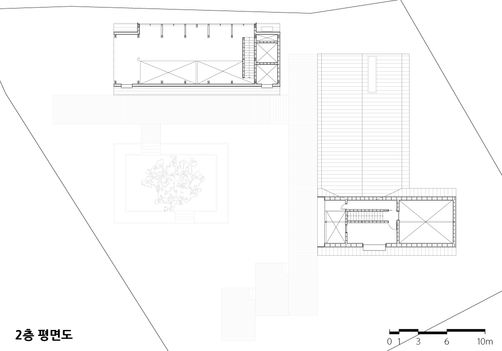
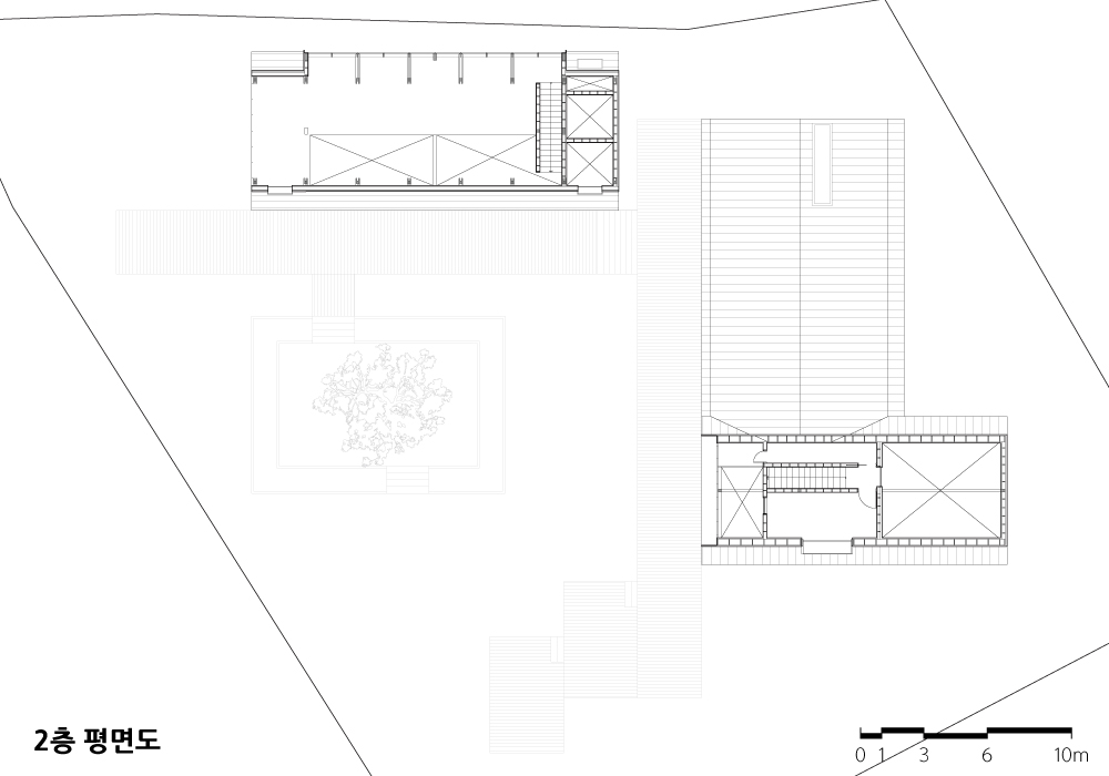
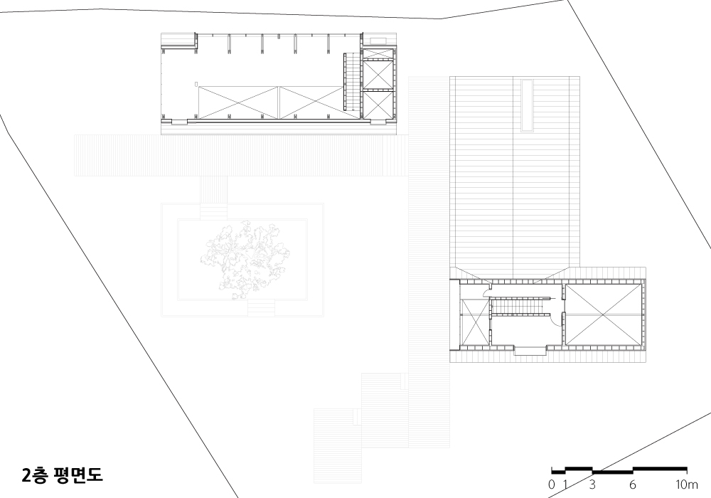
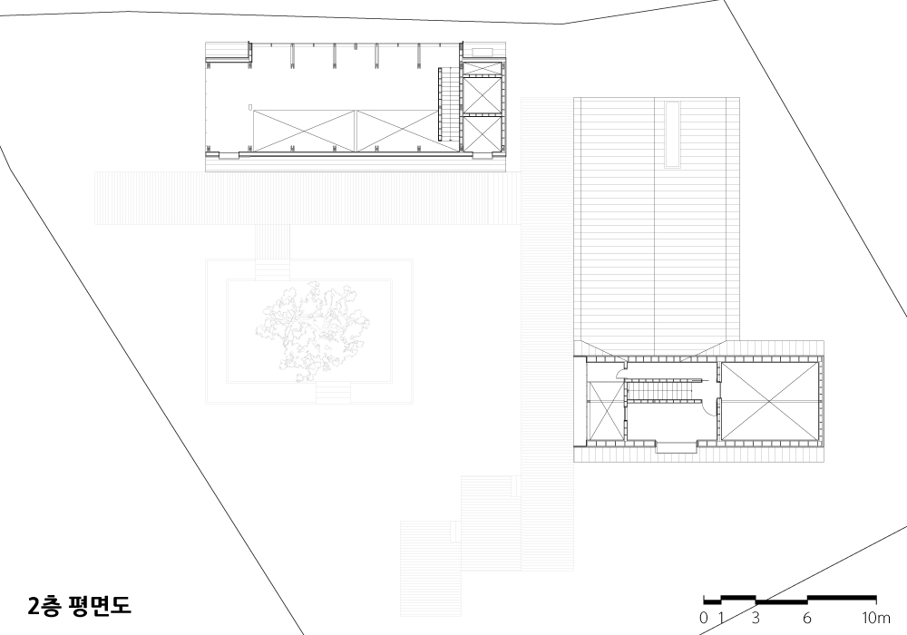
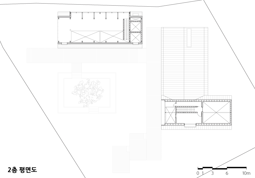
포레스트 에지는 숲의 끝자락에 지어진 건축물이다. 농어촌 민박용 주택과 근린생활시설 두 개 동으로 이루어진 시설은 서양식 중목구조가 뼈대를 이룬다. 구조미가 강한 내부와 다르게, 외부는 주변 자연의 거칠기와 대비를 이루기 위하여 기하학적으로 단순하지만 명료한 덩어리로 완성하는 데에 많은 노력을 기울였다. 근생동의 경우 프리팹(PREFAB)으로 정밀하게 가공된 8개의 A-트러스들이 지붕면을 지지한다. 이등변 삼각형을 이루는 트러스 한변의 길이는 보편적인 서양식 목구조 구법의 생산 규격인 20피트(6,096㎜) 그대로다. 이 트러스들은 다시 4×8합판의 보편적인 생산 규격인 8피트, 즉 2,440밀리미터의 모듈로 배치되어 있다. 이렇듯 공식화된 재료가 구축한 공간의 질서가 자연스럽게 변화하는 숲과는 대조를 이룬다. 대량생산된 목재로 이루어지는 서양식 목구조와 자연 속의 생장하는 나무가 시각적으로 대비됨으로써 안팎으로 공간적 긴장감을 부여했다.
소나무 숲을 연장하다
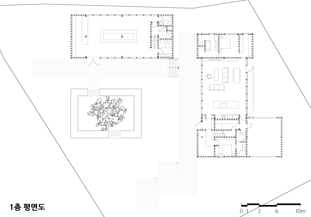
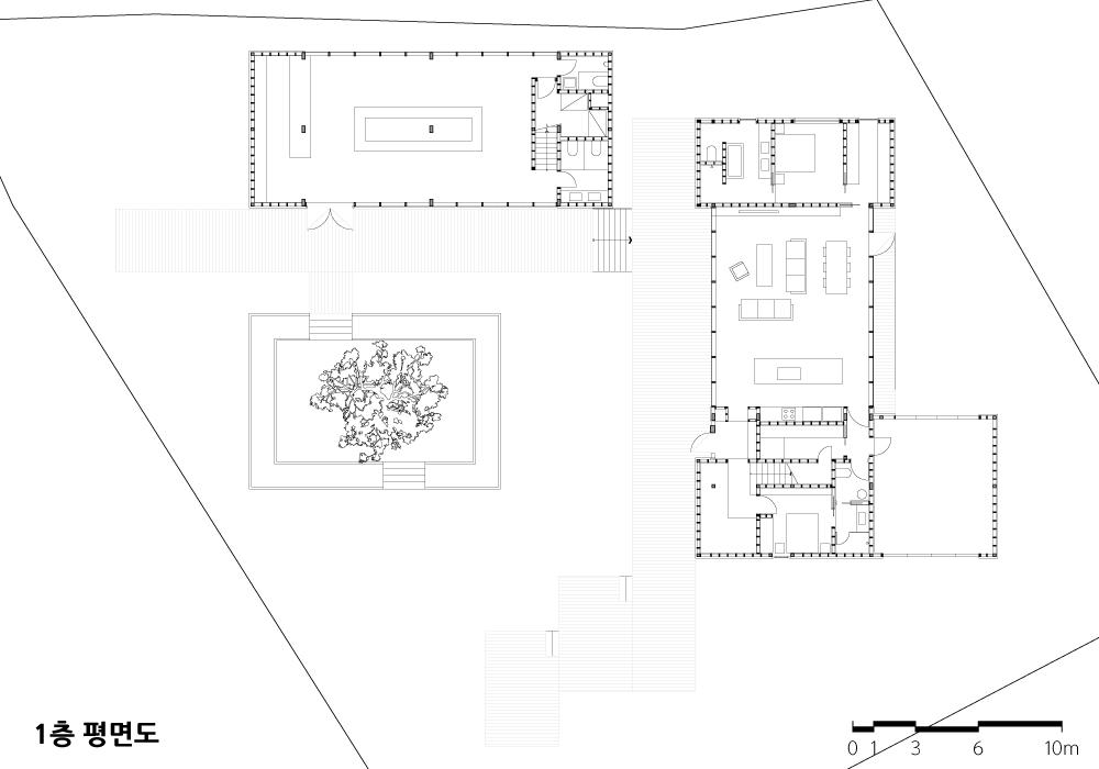
부지를 조성하고 건축물을 배치하는 과정에서 앞쪽 카페동의 높이가 본래의 대지인 숲의 땅보다 750밀리미터 정도 낮아지게 됐는데, 이 높이를 공간 중앙에 동일한 높이의 콘크리트 테이블 형태로서 남기고 대지의 흙을 섞어 현장 타설했다. 숲이 있던 땅의 높이가 테이블의 상단면으로서 남게 된 것이다. 중심화단 또한 기존 숲의 흙을 가져와 그대로 채워 넣었다. 작은 숲이자 땅이 된 이 거친 콘크리트 덩어리는 이 프로젝트에서 건축이 땅과 맺는 관계를 좀 더 촉감적으로 보여준다. 이러한 개념을 가지고 동쪽 소나무 숲의 땅은 콘크리트 테이블로 인해 대지 중앙으로 연장됐다. 근생동의 2층에서는 이렇게 조합된 지붕 목재트러스가 공간에 그대로 노출되어 맞은편 소나무 숲과 대조를 이룬다. 자연 속에서 생장하는 나무와 기계적으로 가공된 나무가 한데 어우러지며 공간에 건강한 긴장감을 불어 넣는다.
재료의 구축방식으로 디자인하다
RC구조와 다르게 동일한 부재가 겹겹이 모여서 재료의 구조적 역할을 협력하는 것은 목구조에서만 가능한 구법 중 하나이다. 특히 한옥과 같은 동양의 중목구조가 아닌 규격화된 부재로 이루어지는 서양식 목구조는 이런 특징을 잘 보여줄 수 있는 구법이다. 설계 초기부터 단일 목부재의 사용을 지양하고 여러 겹의 부재들을 겹쳐 구조 계산을 진행했고, 이러한 재료 간의 접합 디테일들이 자연스럽게 내부 디자인의 기준을 만들어 나가도록 의도했다. 같은 세 겹이라도 원래 목재 수종이 약한 스프루스는 결합 시 볼팅을 재료면보다 바깥으로 돌출시켜서 목재가 철물의 도움을 받는 걸 좀 더 직접적으로 드러냈고, 상대적으로 강한 재료인 LVL은 결합 시 볼팅을 면 안으로 매입시켜서 스프루스보다 강한 재료임을 대조적으로 드러냈다.
심사평
글루램과 LVL(단판적층재), 합판 등 선과 면으로 구성되는 다양한 강도를 가진 공학목재를 혼용하면서 본래 재료의 생산 치수 그대로 활용하는 모듈화를 바탕으로 작업했다. 흔히 공간 안에서 목구조의 노출 트러스의 구성은 쉽게 풍요로운 인상을 만들지만 ‘포레스트 에지’는 모듈화된 건식재료로 엄정한 질서를 구축해 내밀한 인상을 동시에 갖게 한다. 천장의 풍요로움에 비해 1층 커튼월 벽은 간결하다. 강도가 좋은 LVL을 활용, 크기를 최소화해 이곳에 시선이 머무르게 하기보다는 인접한 숲의 풍경으로 이끈다. ‘포레스트 에지’를 수상작으로 선정하는 데는, 재료 손실이 최소화된 가벼운 목재로 만들어져 저탄소 건축이라는 점에서 시대의 환경적 요구에 비해 미약한 건축분야의 성찰 의미도 담았다.





Juxtaposition of living and dead trees
Forest Edge is a building built at the edge of a forest. The facility, which consists of two buildings, a rural lodging house and a neighborhood living facility, has a Western style heavy wooden structure as its framework. Unlike the interior, which has a strong structural aesthetic, a lot of effort was put into completing the exterior as a geometrically simple but clear mass to contrast with the roughness of the surrounding nature. In the case of Geunsaeng-dong, eight A-trusses precision-processed from PREFAB support the roof surface. The length of one side of the truss, which forms an isosceles triangle, is 20 feet (6,096 mm), which is the production standard for the universal Western-style wooden structure construction method. These trusses are again arranged in modules of 8 feet, or 2,440 millimeters, which is the common production standard for 4×8 plywood. In this way, the spatial order created by formalized materials contrasts with the naturally changing forest. The visual contrast between the Western-style wooden structure made of mass-produced wood and the trees growing in nature created spatial tension both inside and outside.
Extend the pine forest
In the process of creating the site and arranging the buildings, the height of the front cafe building was lowered by about 750 millimeters compared to the original site, the forest land. It was poured. The height of the land where the forest was remained as the top surface of the table. The central flower bed was also filled with soil from the existing forest. This rough lump of concrete, which has become both a small forest and land, shows in a more tactile way the relationship that architecture has with the land in this project. With this concept, the land in the eastern pine forest was extended to the center of the site with a concrete table. On the second floor of Geunsaeng dong, the roof wood trusses combined in this way are exposed to the space, creating a contrast with the pine forest opposite. Trees growing naturally and trees processed mechanically come together, creating a healthy tension in the space.
Design with the construction method of materials
Unlike RC structures, stacking identical members to cooperate in the structural role of the materials is one of the methods that is only possible in wooden structures. In particular, Western style wooden structures made of standardized members, rather than Eastern heavy wooden structures such as Hanok, are a method that can show these characteristics well. From the beginning of the design, the use of a single wooden member was avoided and structural calculations were made by overlapping multiple layers of members, with the intention that the joint details between these materials would naturally create the standard for the interior design. Even with the same three layers, spruce, which is originally a weak wood species, has the bolting protrude outward from the material surface when joined, showing more directly that the wood receives help from the hardware, while LVL, a relatively strong material, has the bolting embedded into the surface when joined. In contrast, it was revealed to be a stronger material than spruce.
Commentary
The project was based on modularity, utilizing a variety of engineered wood materials, including Glulam and LVL (Laminated Veneer Lumber), plywood, and more, with different strengths and properties. It aimed to use the original material dimensions without waste, creating a sense of exposed wooden structure in the space. While exposed trusses in a space typically create a rich impression, “Forest Edge” establishes a strict order using modular dry materials, simultaneously creating a deep and intricate atmosphere.
In contrast to the richness of the ceiling, the curtain wall on the first floor is simple. By utilizing high strength LVL and minimizing the size, it directs the viewer’s attention towards the adjacent forest landscape rather than lingering within. Selecting “Forest Edge” as an award-winning project reflects not only its use of lightweight wood materials with minimal waste, contributing to low-carbon architecture, but also its reflection of the architectural field’s limited response to contemporary environmental demands.








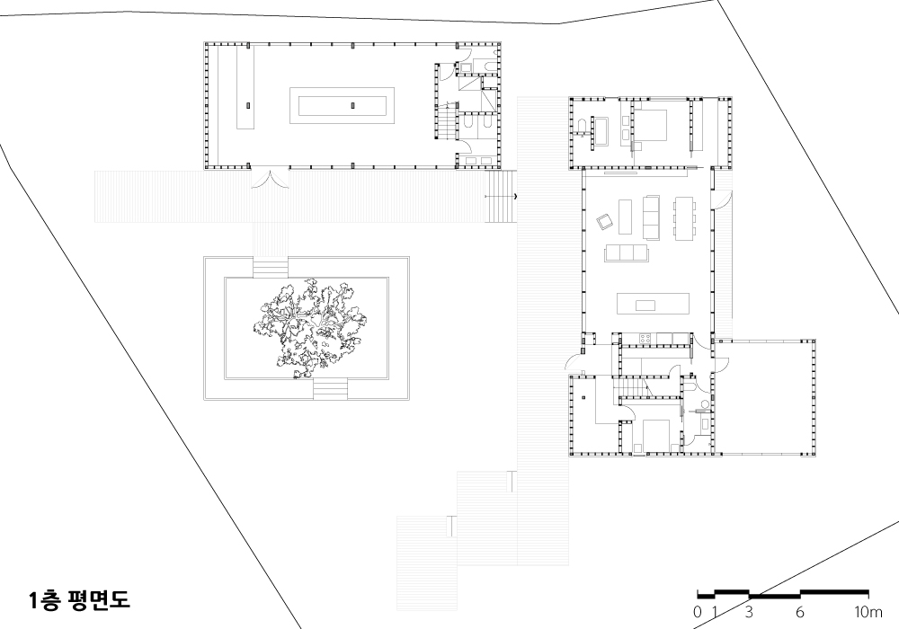
| 포레스트 에지 설계자 | 김선형 _ 주식회사 중원건축사사무소, 전남대학교 건축디자인학과 설계자 | (주)위켄드74 건축주 | (주)오감 감리자 | 김선형 _ 주식회사 중원건축사사무소 설계의도 구현 | 주식회사 중원건축사사무소 대지위치 | 강원도 홍천군 남면 남노일로 1123 주요용도 | 단독주택+근린생활시설 대지면적 | 1,650.00㎡ 건축면적 | 328.20㎡ 연면적 | 405.48㎡ 건폐율 | 19.89% 용적률 | 24.57% 규모 | 2F 구조 | 목구조 외부마감재 | THK 18 석재타일, THK 43 로이3중유리, THK 0.7 징크 내부마감재 | 자작나무합판/지정오일스테인, 석고보드/도장 설계기간 | 2020. 05 - 2021. 06 공사기간 | 2021. 06 - 2022. 03 사진 | 권보준 구조분야 : 터구조 기계설비분야 : 유성기술단 전기분야 : 유성기술단 소방분야 : 유성기술단 |
Forest Edge Architect | Kim, Sunhyung _ Joongwon Architects, Chonnam National Univ. Construction | Weekend74 Client | O-gam Supervisor | Kim, Sunhyung _ Joongwon Architects Design intention realization | Joongwon Architects Location | Namnoil-Ro 1123, Nam-Myeon, Hongcheon-Gun, Gangwon-Do, Korea Program | Commercial retail, Residence Site area | 1,650.00㎡ Building area | 328.20㎡ Gross floor area | 405.48㎡ Building to land ratio | 19.89% Floor area ratio | 24.57% Building scope | 2F Structure | Timber Structure Exterior finishing | Stone tile, Low-e tripple glazing, Zinc panel Interior finishing | Exposed wood finish w/ oil stain, Gypsum. level 5 finish Design period | May 2020 - Jun. 2021 Construction period | Jun. 2021 - Mar. 2022 Photograph | Kwon, Bojune Structural engineer | Teo Structure Mechanical engineer | Yousung ENG Electrical engineer | Yousung ENG Fire engineer | Yousung ENG |

'회원작품 | Projects > House' 카테고리의 다른 글
| 회원 첫 작품_유유재 2024.1 (0) | 2024.01.31 |
|---|---|
| 강화바람언덕 협동조합주택 2023.12 (0) | 2023.12.30 |
| 지산돌집 2023.12 (0) | 2023.12.30 |
| 고운동주택:열린덮개_No3 2023.11 (0) | 2023.11.30 |
| 감솔채 2023.11 (0) | 2023.11.30 |