2023. 12. 30. 10:25ㆍ회원작품 | Projects/Neighborhood Facility
Comfort Seoul

공공을 위한 소월길 연결로의 새로운 제안
본 프로젝트는 후암동 마을에 절벽으로 단절되어 있던 소월길과 두텁바위길을 연결하는 프로젝트이다. 기존 소월길 접근로의 물리적 단차를 극복하는 단순한 장치의 성격을 넘어 누구에게나 열린 새로운 길이 되어, 사람들이 모이고 이야기가 만들어지는 공간이 되길 원했다.
도시의 공간경험은 대부분 길에서 이루어진다. 건축 역시 주어진 길의 환경 속에서 길과 공간의 관계를 고민한다. 우리는 이번 프로젝트를 기존의 길과 공간의 단편적인 관계로 규정짓는 것이 아니라 마을의 새로운 길 자체로 만들고 이를 통해 어떤 경험과 변화가 만들어질지 관찰하고자 했다.
마을 주민들에게 내어준 길
두텁바위길과 소월길 사이 약 15미터의 단차를 활용해 풍부한 공간경험을 가진 열린 건축이 되길 원했다. 중앙에서 시작한 길은 자연스럽게 사람들을 끌어들인다. 길은 두텁바위길에서 출발해 건축공간과 길이 만들어내는 입체적인 공간을 지나 서울의 풍경을 마주하며 올라가게 된다. 최종적으로 남산과 서울을 함께 조망할 수 있는 옥상 테라스에 도달하며 소월길에 도착한다. 열린 조망의 넓은 옥상 공간은 주민과 외부인들의 다양한 활동을 담아낸다.
마을 만들기
길의 시퀀스 단계마다 사람들의 활동을 담아내는 경험요소를 배치해 수직적인 작은 마을을 만든다. 길과 입체적으로 연결된 공간들은 다양한 높이별로 환경에 맞춰 디자인하고, 각각의 공간에 주민에게 열린 프로그램을 배치했다.
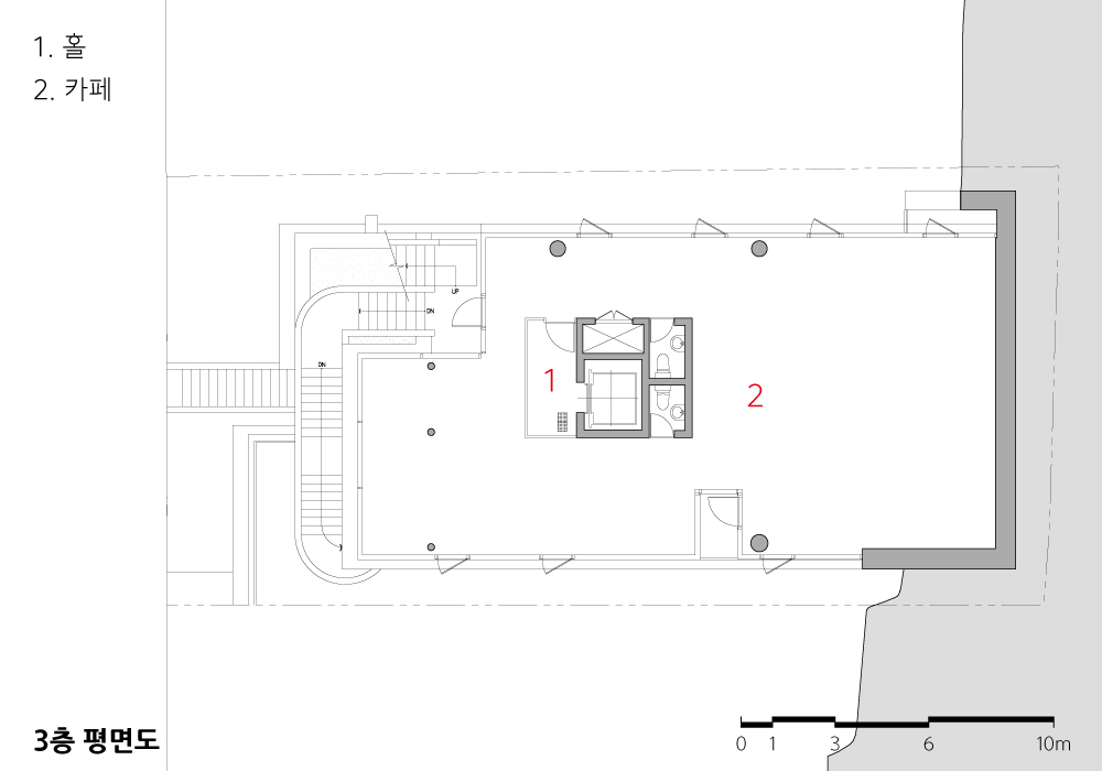
지하 1층은 기존의 지형을 활용해 높은 층고와 전면 유리 파사드를 계획했다. 지하층 위로는 가운데 계단을 기준으로 1층과 2층에서 반반씩 활용한다. 지형의 단차와 부피를 활용해 1층의 복층 공간, 2층의 외부 마당과 연결된 층고 높은 공간을 구성했다. 1층에서는 외부 계단이 풍경이 되고, 2층은 골목길의 모습이 공간의 분위기를 만든다. 3층은 전면 시야를 개방해 서울 풍경을 적극적으로 즐길 수 있도록 했다.
변화와 지속성
이 공간이 100년이 넘는 오랜 시간 동안 도시에서 의미 있는 장소가 되길 바랐고, 그러기 위해 긴 시간 동안 설득력 있는 재료와 다양한 변화에 잘 대응할 수 있는 형태와 질감을 갖길 원했다. 이를 위해 노출콘크리트의 거푸집을 활용, 형태와 리듬감을 고려하여 계단, 슬라브, 옹벽의 질감을 결정했다. 먼저 공간의 중심적인 역할을 하는 계단은 EPS 제작 거푸집을 활용했다. 세로의 곡선 음각을 조밀하게 배치하여 음영이 만들어주는 수직성과 리듬감에 주목했다. 각 층의 공간은 수평 슬라브를 강조하기 위해 돌출된 처마를 디자인했다. 그리고 PET 합판을 활용해 담백하게 표현하여 전체적으로 수평선의 리듬감이 수직 계단과 입체적으로 만나길 기대했다. 건물을 감싸는 옹벽은 콘크리트를 쪼아내어 기존 지형이 가진 거친 성격을 드러냈다.
심사평
용산구 후암동 아래 두텁바위길과 위 소월길 사이 15미터 높이차에 대응하며 만들어진 소규모 근린생활시설이다. 소월로 주변 지구단위계획에 의해 소월로의 해발고도를 넘어서 지을 수 없는 혹독한 조건을 배경으로 한다. 향후 주변지역의 개발과정에서 좋은 선례로 작용해 이 지역이 규제의 불편함을 넘어 좋은 도시건축이 집적된 지역으로 변모해가길 기대하게 한다. 시설을 엇갈려 쌓은 상자 모양으로 구성한 후 오브젝트로 인식되는 연속되는 계단으로 연결했다. 위치를 변경하며 연속된 계단은 옥상에 도달해 소월길로 이어진다. 정면 정중앙에서 시작하는 계단은 계단의 위상을 분명하게 드러내는 동시에 내부의 활동을 적절한 스케일로 분절한다. ‘콤포트 서울’의 의도가 정교하게 구현되었다고 여겨지는 데는 뛰어난 시공성이 한몫한다. 의도에 따라 다양하게 변주되는 콘크리트의 표면 마감은 좋은 글에서 볼 수 있는 적확한 용어의 사용과도 같다.






A new proposal for a road connecting Sowol-gil for the public
This project connects Sowol-gil and Duteopbawi-gil, which were cut off by a cliff in Huam-dong village. Beyond the nature of a simple device to overcome the physical differences in the existing Sowol-gil access road, we wanted it to become a new road open to everyone and a space where people gather and stories are created. Most urban spatial experiences occur on the streets. Architecture also considers the relationship between the road and space within the given road environment. Rather than defining this project as a fragmentary relationship between existing roads and spaces, we wanted to create a new road for the village itself and observe what experiences and changes would be created through it.
A road given to villagers
We wanted to create an open architecture with a rich spatial experience by utilizing the 15-meter difference in steps between the road given to the villagers_Duteopbawi-gil and Sowol-gil. A road that starts from the center naturally attracts people. The road starts from Duteopbawi-gil and passes through the three-dimensional space created by the architectural space and the road, and then ascends while facing the scenery of Seoul. Finally, you reach the rooftop terrace where you can view both Namsan and Seoul and arrive at Sowol-gil. The spacious rooftop space with an open view captures the various activities of residents and outsiders.
Creating a village
A vertical small town is created by placing experience elements that capture people’s activities at each stage of the road sequence. The spaces three-dimensionally connected to the road were designed to suit the environment at various heights, and programs open to residents were placed in each space.
For the first basement floor, a high ceiling and a full glass façade were planned by utilizing the existing topography. Above the basement, the staircase in the middle is used half and half on the first and second floors. Utilizing the terrain’s level difference and volume, we created a duplex space on the first floor and a high-floor space connected to the external yard on the second floor. On the first floor, the external stairs become a scenery, and on the second floor, the alley creates the atmosphere of the space. The 3rd floor has an open front view so that you can actively enjoy the scenery of Seoul.
Change and continuity
We wanted this space to become a meaningful place in the city for over 100 years, and to do so, we wanted it to have persuasive materials over a long period of time and a form and texture that could respond well to various changes. For this purpose, exposed concrete formwork was used and the texture of the stairs, slabs, and retaining walls were determined considering the shape and rhythm. First, the stairs, which play a central role in the space, used EPS-made formwork. By densely arranging vertical curved intaglios, attention was paid to the verticality and rhythm created by the shading. The space on each floor was designed with protruding eaves to emphasize the horizontal slab. And by expressing it plainly using PET plywood, we hoped that the overall rhythm of the horizontal line would meet the vertical stairs in three dimensions. The retaining wall surrounding the building was carved out of concrete, revealing the rough nature of the existing terrain.
Commentary
This small neighborhood facility, located between the narrow Duteopbarwi-gil and Sowol-gil in Huam-dong, Yongsan-gu, was designed to accommodate a significant 15-meter height difference between the two roads. It had to contend with challenging conditions, given that the Sowol Road’s elevation, dictated by the surrounding urban plan, exceeded the permitted height. Despite these limitations, it is hoped that this project will serve as a positive precedent in the future development of the surrounding area, transforming it into a region where good urban architecture is integrated beyond regulatory inconveniences.
The facility is composed in the form of stacked boxes, connected by a continuous staircase that is perceived as an object. This staircase, as it shifts in position, leads to the rooftop and continues onto Sowol-gil. Starting from the very center of the front elevation, the staircase clearly reveals its significance while also dividing the internal activities into appropriate segments.
The successful implementation of “Comport Seoul” is attributed to exceptional construction capabilities. The surface finish of concrete, which varies in response to the design intent, is akin to the precise use of terminology in a well-written text.







| 콤포트서울 _ 후암소월1길 1 설계자 | 문주호 _ (주)경계없는작업실 건축사사무소 건축주 | (주)김희준 스튜디오 시공사 | 주식회사 제이아키브플러스 감리자 | (주)경계없는작업실 건축사사무소 설계팀 | 김수경, 정동휘 대지위치 | 서울특별시 용산구 두텁바위로 60길 45 주요용도 | 근린생활시설 대지면적 | 384.00㎡ 건축면적 | 227.82㎡ 연면적 | 645.81㎡ 건폐율 | 59.28% 용적률 | 133.68% 규모 | B1F - 3F 구조 | 철근콘크리트구조 외부마감재 | 노출콘크리트 설계기간 | 2020. 04 – 2021. 04 공사기간 | 2021. 04 – 2022. 02 사진 | 신경섭, 김양길, 김희준 전문기술협력 - 구조분야 : SDM 구조사사무소 - 기계설비분야 : 엠이씨유영 - 전기분야 : (주)거산이앤지 - 소방분야 : 엠이씨유영, (주)거산이앤지 - 인테리어 : 이혜인 디자인 스튜디오 |
Comfort Seoul Architect | Monn, Jooho _ Boundless Architects Client | Kimheejune Stuio Construction | Jarchiv+ Supervisor | Boundless Architects Project team | Kim, Sukyung / Jung, Donghui Location | 45 Duteobbawiro 60-gil, Yongsan-gu, Seoul, Korea Program | Commercial Site area | 384.00㎡ Building area | 227.82㎡ Gross floor area | 645.81㎡ Building to land ratio | 59.28% Floor area ratio | 133.68% Building scope | B1F - 3F Structure | RC Exterior finishing | Exposed Concrete Design period | 2020. 04 – 2021. 04 Construction period | 2021. 04 – 2022. 02 Photograph | Shin, Kyungsub / Kim, Yanggil / Kim, Heejune Structural engineer | SDM Structural Engineering Mechanical engineer | U-Young Engineer Electrical engineer | Geosan Engineering Fire engineer | U-Young Engineer, Geosan Engineering Interior engineer | Studio Leehaeinn |
'회원작품 | Projects > Neighborhood Facility' 카테고리의 다른 글
| 삼(蔘)토리 2024.1 (0) | 2024.01.31 |
|---|---|
| 돌샘길 카페 2024.1 (0) | 2024.01.31 |
| 망미농장 2023.11 (0) | 2023.11.30 |
| 완산뜨락 주민소통방 2023.10 (0) | 2023.10.31 |
| 고창군청 등나무숨 카페 2023.10 (0) | 2023.10.31 |
