2024. 4. 30. 10:50ㆍ회원작품 | Projects/Office
CHAI COMMUNICATION OFFICE BUILDING

창의적 공간과 변화를 수용하는 건축
본 프로젝트는 강남구 학동로의 이면도로에 위치한 부지에 건립되는 광고 회사 사옥으로, 경제적인 용적률을 찾는 주변 임대형 건물들과는 다른 창의적인 공간으로서 차별화를 두기 위한 건축을 제공하는 것이 가장 큰 목표였다.
제한적인 대지의 규모 안에서 도시와 자연을 담는 방법을 많이 고민했다. 개개인의 창의성을 중요하게 생각하는 건축주의 요구사항을 고려해 오픈형 사무공간에서 어렵지 않게 다양한 외부공간을 접하게 해주는 것이 빽빽한 도시 안에서 직원들의 창의성을 높여주는데 주요한 요소가 될 것이라고 생각했기 때문이다. 이렇게 배치된 다양한 외부 공간은 건축물의 부재 사이로 도시와 자연이 자연스럽게 연결되고, 한정적인 내부 공간이 계속 확장되어가는 효과까지 줄 수 있다.
건축을 통해 제공된 내·외부 공간들이, 창의적 업무환경을 조성하고 시대에 따라 변화하는 업무공간의 다양성을 충족할 수 있는 공간으로 활용되길 기대해 본다.
새로운 것들 사이에서 단순함이 주는 힘
대상지 인근의 주변 건축물들은 오래된 건축물과 새로움을 간직한 건축물들이 모여 전체를 이루고 있다. 이러한 도시의 모습은 너무 많은 다양성이 집합되어 이제 그 안에서 어떤 다양성도 차별화되기 어려워졌다. 이러한 다양함의 홍수 속에서 파사드의 여백과 절제된 건물의 비례를 통해 건물 전체가 하나의 오브제로 인식될 수 있기를 원했다. 백색 재료들의 컬러톤 차이와 텍스처의 변경만을 통해 단순하지만 정갈한 입면을 구현했고, 시간이 지나도 질리지 않고 주변과 잘 어우러지는 도시경관을 갖도록 디자인했다.
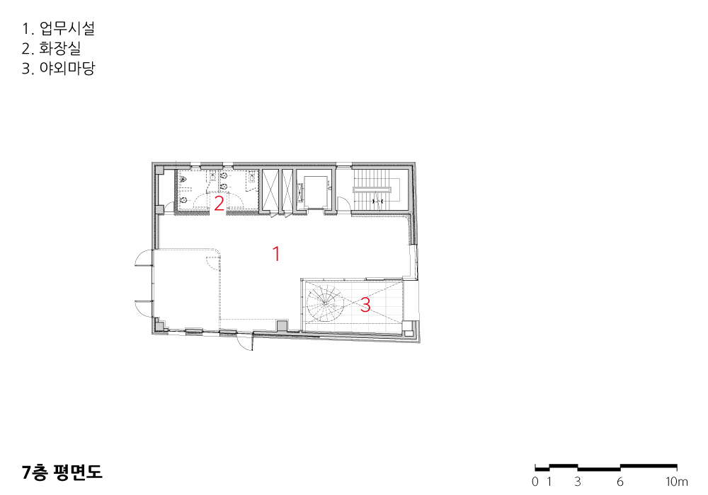
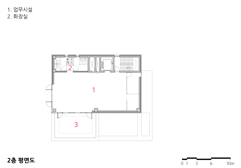
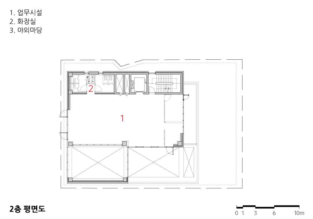
5개의 마당(외부공간의 위계)
외부공간들은 수직적으로 올라가며 공공성의 위계를 갖는데, 사옥을 찾는 고객을 위해 저층부는 최대한 개방되게 계획하고, 최상부층으로 갈수록 업무 또는 직원 휴게를 위한 공간으로 활용될 수 있도록 하여 동선의 위계에 따라 외부공간의 성격은 물론 개방성에도 차이를 두었다.
이렇게 계획된 외부공간들은 건물 내부와 도시를 연결하고 서로가 소통하게 하는 공간으로서 단순히 업무시설로서의 용도를 넘어 주변 콘텍스트들과 소통하는 도시의 주요한 구성요소가 될 것이다.





Creative Spaces and Architecture that Embraces Change
This project is an advertising company’s headquarters located on a back road in Hakdong-ro, Gangnam-gu, with the primary goal of providing a creative space that stands out from the surrounding rental buildings seeking economical floor area ratios. Much thought was given to incorporating both urban and natural elements within the limited site area. Considering the architect’s requirement for individual creativity, we believed that allowing easy access to various outdoor spaces from open office areas would be key to enhancing creativity among employees in the dense urban environment. These arranged outdoor spaces naturally connect the city and nature through the absence of the building, also giving the effect of continuously expanding the limited internal space.
We hope that the internal and external spaces provided through architecture will serve as creative work environments and adapt to the diversity of workspace needs over time.
The Power of Simplicity Among New Entities
The vicinity of the site is a mixture of old and new buildings, forming a collective urban fabric where too much diversity has made it difficult for any uniqueness to stand out. Amidst this flood of diversity, we desired for the building to be recognized as a single object through the facade’s whitespace and the building’s restrained proportions. A clean and simple facade was achieved using only the color tones and textures of white materials, designed to create an urban landscape that remains timeless and harmonizes well with its surroundings.
The Five Courtyards (Hierarchy of Outdoor Spaces)
The outdoor spaces are vertically arranged with a hierarchy of publicness; the lower floors are planned to be as open as possible for clients visiting the company, while the uppermost floors are designed for work or employee leisure, creating a difference in the nature and openness of the outdoor spaces according to the circulation hierarchy.
These planned outdoor spaces will serve as areas that not only connect the interior of the building with the city but also facilitate communication, becoming a significant urban component that transcends mere functional use and interacts with the surrounding context.












| 차이커뮤니케이션 사옥 설계자 | 박일훈 _ 건축사사무소 반 건축주 | 최영섭 _ 차이커뮤니케이션 감리자 | (주)에이비라인 건축사사무소 시공사 | 다산건설엔지니어링(주) 설계팀 | 박승준, 임종혁, 정한진 설계의도 구현 | 건축사사무소 반 대지위치 | 서울특별시 강남구 논현로 132길 40 주요용도 | 업무시설, 근린생활시설 대지면적 | 589.50㎡ 건축면적 | 277.87㎡ 연면적 | 2,422.56㎡ 건폐율 | 47.14% 용적률 | 249.51% 규모 | B3F - 8F 구조 | 철근콘크리트구조 외부마감재 | 두라스택 S500 도브화이트, 박판세라믹타일, 로이복층유리 내부마감재 | 친환경수성페인트, 콘크리트폴리싱, 포세린타일, 제작가구 설계기간 | 2020. 01 – 2020. 12 공사기간 | 2020. 08 – 2021. 10 사진 | 김한석 구조분야 : (주)더나은구조엔지니어링 기계설비·전기·소방분야 : (주)코담기술단 |
CHAI COMMUNICATION OFFICE BUILDING Architect | Park, Ilhun _ ARCHITECTS BAN Client | Choi, Youngseop _ CHAI communication Supervisor | ABline architects Construction | Dasan Construction engineering ltd. Project team | Park, Seungjun / Lim, Jonghyuk / Jeong, Hanjin Design intention realization | ARCHITECTS BAN Location | 40, Nonhyeon-ro 132-gil, Gangnam-gu, Seoul, Korea Program | Office / Neighborhood facility Site area | 589.50㎡ Building area | 277.87㎡ Gross floor area | 2,422.56㎡ Building to land ratio | 47.14% Floor area ratio | 249.51% Building scope | B3F - 8F Structure | RC Exterior finishing | Long brick (Durastack S500, Dove white), Ceramic tile, Low-E glass Interior finishing | Eco-friendly water paint, Porcelain tile, Exposed concrete Design period | Jan. 2020 – Dec. 2020 Construction period | Aug. 2020 – Oct. 2021 Photograph | Kim, Hanseok Structural engineer | The Naeun Structural Engineering Co., ltd. Mechanical·Electrical ·Fire engineer | Kodam Engineering |
'회원작품 | Projects > Office' 카테고리의 다른 글
| 601비상 사옥 2024.7 (0) | 2024.07.31 |
|---|---|
| 크란츠 빌딩 2024.6 (0) | 2024.06.30 |
| 아이엘스퀘어 2024.4 (0) | 2024.04.30 |
| KL 빌딩 2024.3 (0) | 2024.03.31 |
| 더 스타일 빌딩 2024.2 (0) | 2024.03.08 |
