2024. 6. 30. 10:05ㆍ회원작품 | Projects/Office
KRANZ Building

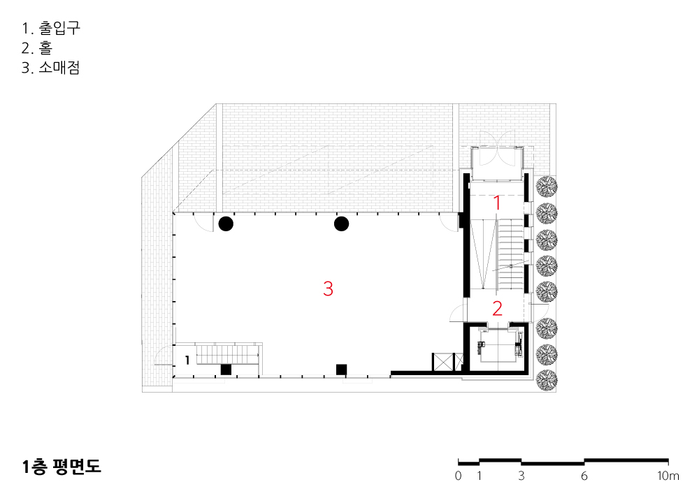
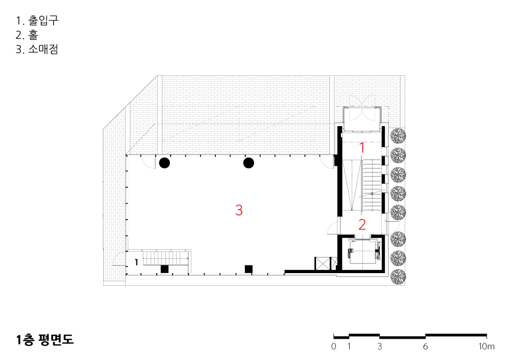
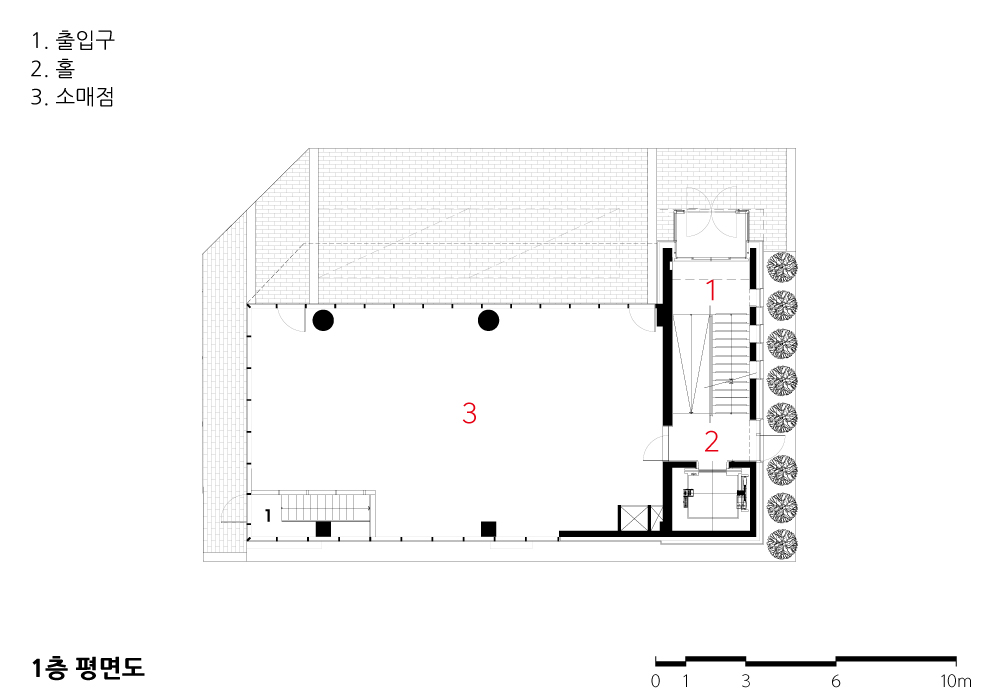
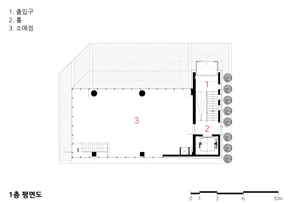
대지는 교대역 근처의 이면도로에 있다. 상업지역과 주거지역의 경계에 위치해 상부로 올라갈수록 넓게 트인 조망이 가능하며, 가로의 모퉁이에 위치해 외부에서 인지도가 높은 입지이다. 임대용 업무시설의 최대 목표는 효율성과 내구성일 것이다. 이러한 목표를 유지하며 건물의 입지적 장점을 살리는 아이덴티티를 만들어 내기 위한 고민 끝에 나온 아이디어가 건물의 코너 부분에 변화를 주는 것이었다.
설계 의도와 시공성을 고려해 여러 번의 디자인 수정을 거쳤고, 최종적으로 층마다 다른 각도로 모서리가 형성되도록 하여 변화를 만드는 안으로 결정했다. 주변 환경과 이질적이지 않으면서도 오가는 사람들에게 시각적으로 각인이 될 수 있지 않을까 한다. 사무실 거주자 시각에서도, 모서리 부분에서 외부 조망이 가장 좋은 위치라 바닥부터 천정까지 개방된 커튼월로 마감했다. 측면으로는 세라믹 재질의 알루미늄 복합 패널과 창문이 수직으로 긴 직사각형으로 반복되는 단순한 디자인으로 주변과 조화를 이루도록 했다. 알루미늄 복합 패널은 실리콘 줄눈이 드러나는 것을 최소화하기 위해 박스형태의 단일패널로 공장에서 제작한 후 설치했다.
최상층(10층)은 건축주를 위한 업무 공간으로 설계됐다. 엘리베이터 홀에서 문을 열고 바로 내부 공간으로 진입하는 것이 아니라 외부의 버퍼 공간을 거쳐 들어가도록 하여 마치 개인주택으로 진입하는 기분이 들도록 설계했다.
진입 공간에서 앞마당은 숨겨져 있으며, 내부로 들어와야 비로소 외부 마당을 볼 수 있다. 방문객에게는 일종의 ‘서프라이즈’가 될 것이다. 외부 마당에는 작은 화단이 조성되어 있고, 가로로 세장하게 뚫린 오프닝을 통해 주변의 풍경이 파노라마같이 펼쳐진다. 마당에서 건물 쪽을 돌아보면 검은 벽돌로 마감된 경사지붕의 아담한 건물이 보인다. 흡사 땅 위에 지어진 작은 집처럼 보이도록 하여 오피스 빌딩의 숲에서 건축주만의 프라이빗한 공간을 경험하도록 했다.
건물의 최상층 외관도 저층부 매스와 다른 축을 이루고 있다. 모서리의 변화와 함께 건물을 상징하는 요소가 될 수 있도록 의도한 것이다. 주변과 조화를 이루는 규칙성과 적당한 변화가 이 건물 디자인의 일관된 주제이다.
건축물의 색채를 선택할 때도 이를 고려했다. 기본적으로 블랙 앤 화이트이다. 비례적으로 매스의 안정감을 주어야 하는 코어 부분에는 검은색 석재를 사용하고, 무채색 거리에 산뜻한 활력을 줄 수 있도록 대부분 외피를 백색으로 마감했다. 백색은 음영을 통해 건축물의 매스 변화를 잘 드러낸다. 백색은 재료 간의 미세한 두께 변화를 통해서 입면의 입체감을 잘 표현할 수 있는 순수한 색이기도 하다. 창호는 건물의 깊이감이 느껴지도록 색이 없는 투명 유리를 선택했다.
완공 후 이 건축물이 우리의 작은 바람대로 골목 거리에 작은 변화와 활력을 주었으면 한다.



The site is located on a side street near Gyo-dae Station. Positioned at the boundary between commercial and residential areas, as it ascends, it offers expansive views, making it a highly visible location at the corner of a thoroughfare. The primary goal of the leased commercial facility is efficiency and durability. With these objectives in mind, an idea emerged to enhance the building’s identity by capitalizing on its advantageous location. This led to the decision to introduce variation to the corner of the building.
Taking into consideration design intent and feasibility, multiple design revisions were made, ultimately deciding to create variation by forming corners at different angles on each floor. We believe this approach could visually leave an impression on passersby without being discordant with the surrounding environment. From the perspective of office occupants, the corner areas offer the best external views, so we finished them with open curtain walls from floor to ceiling. On the sides, we aimed for harmony with the surroundings through a simple design featuring vertical rectangular windows repeated in ceramic aluminum composite panels. To minimize the visibility of silicone joints, the aluminum composite panels were prefabricated in a box shape in the factory before installation.
The top floor (10th floor) is designed as office space for the owner. Rather than entering directly into the interior space upon opening the door from the elevator lobby, an external buffer space is incorporated to evoke the feeling of entering a private residence. The front yard is concealed from the entry space, and only upon entering the interior can the external courtyard be seen, providing visitors with a sort of “surprise.” The external courtyard features small planters and offers panoramic views of the surrounding landscape through three horizontally cut openings. Looking back towards the building from the courtyard, one sees a quaint structure with a sloped roof finished in black bricks, resembling a small house built on the ground, intended to provide the owner with a private space amidst the forest of office buildings.
The exterior of the building’s top floor also reflects this by forming a different axis from the lower mass. It was intended to serve as a symbolic element of the building, along with the variation in corners. Harmonizing with the surroundings while maintaining a balance between regularity and appropriate change is a consistent theme in this building’s design.
When selecting the color palette for the architecture, we took this into consideration. Fundamentally, it’s black and white. Black stone is used for the core parts that need to provide a sense of mass stability, while the majority of the exterior is finished in white to inject a fresh vitality into the monochromatic streets. White effectively showcases the mass variations of the building through shading. It’s also a pure color that adeptly conveys the three-dimensionality of the facade through subtle thickness variations between materials. For the windows, colorless transparent glass was chosen to enhance the building’s sense of depth.
Post-completion, we hope this building emerges as a small beacon of change and vitality in the alleyways, just as we envisioned.










| 크란츠 빌딩 설계자 | 민범기 · 김도희 _ (주)테라도시 건축사사무소 건축주 | 석진철 감리자 | (주)테라도시 건축사사무소 시공사 | 소망건설 설계팀 | 임수연 설계의도 구현 | (주)테라도시 건축사사무소 대지위치 | 서울특별시 서초구 서초대로52길 38 주요용도 | 업무시설, 근린생활시설 대지면적 | 264.80㎡ 건축면적 | 157.24㎡ 연면적 | 1,514.44㎡ 건폐율 | 59.38% 용적률 | 498.99% 규모 | B1F - 10F 구조 | 철근콘크리구조 외부마감재 | 대리석, 알루미늄 패널, 투명유리 내부마감재 | 자기질타일, 마천석, 수성페인트 설계기간 | 2017. 01 – 2017. 04 공사기간 | 2017. 04 - 2018. 08 사진 | 김창묵 구조분야 | (주)아림구조 기계설비·전기·소방분야 | 경기기술단 |
KRANZ Building Architect | Min, Bumkee · Kim, Dohee _ TERRA associates, architects & planners Client | Seok, Jincheol Supervisor | TERRA associates, architects & planners Construction | Somang construction co., LTD Project team | Lim, Sooyeon Design intention realization | TERRA associates, architects & planners Location | 38, Seocho-daero 52-gil, Seocho-gu, Seoul, Korea Program | Business facilities / neighborhood living facilities Site area | 264.80㎡ Building area | 157.24㎡ Gross floor area | 1,514.44㎡ Building to land ratio | 59.38% Floor area ratio | 498.99% Building scope | B1F - 10F Structure | RC Exterior finishing | Marble, Aluminum panels, Transparent glass Interior finishing | Tiles, Black pearl, Paint Design period | Jan. 2017 – Apr. 2017 Construction period | Apr. 2017 - Aug. 2018 Photograph | Kim, Changmook Structural engineer | Alim Eng. Mechanical·Electrical·Fire engineer | Gyeonggi Technical Corps |
'회원작품 | Projects > Office' 카테고리의 다른 글
| 판교 알파돔시티 6-1, 6-2 복합시설 및 컬쳐밸리 2024.9 (0) | 2024.09.30 |
|---|---|
| 601비상 사옥 2024.7 (0) | 2024.07.31 |
| 차이커뮤니케이션 사옥 2024.4 (0) | 2024.04.30 |
| 아이엘스퀘어 2024.4 (0) | 2024.04.30 |
| KL 빌딩 2024.3 (0) | 2024.03.31 |
