2024. 7. 31. 10:15ㆍ회원작품 | Projects/Office
601BISANG's Company Building

작품 배경
그래픽 디자이너인 건축주는 자연과 사람이 어울리는 곳에 601비상의 신사옥을 짓고자 했다. 종로구 구기동에 위치한 산을 품고 있는 대지는 맞닿은 산의 가파른 경사만큼 산사태에 취약한 곳이기도 했지만, 낙석에 적극적으로 대비한 이중옹벽과 배수시설과 같은 안전시설을 확보했다.
배치 개념
산사태 취약지역에서의 안전을 위한 이격 거리 확보와 건축과 자연의 어울림을 탐색했다. 배후 임야에서 형성된 지형의 흐름은 건물 매스의 배치를 통해 받아들이고, 사방옹벽과 함께 조성된 위요된 중정에서 사람이 유입되도록 했다. 옹벽과 건물 사이에 어울림 중정을 두었는데, 이는 공간구성의 중심이며 관계의 미학을 바탕으로 한 접근이다. 중정은 여백을 통해 건축과 자연을 잇고 이용자들이 소통하는 공간으로 활용된다.
입면 개념
건물의 큰 특징 중 하나는 첫인상과 같은 전면의 파사드를 거쳐 안쪽으로 들어오면 두 번째 얼굴이 보인다는 것이다. 건물의 진입계단을 따라 올라오면 ‘L’자 형태로 배치된 건물과, 전면에서는 보이지 않던 후면의 파사드가 드러난다. 전면 파사드가 심플한 구성과 묵직한 존재감을 드러낸다면, 후면 파사드는 중정과 자연을 향해 보다 입체화되고 열린 공간으로 기능하게 된다.
파사드의 숨겨진 규칙성과 상징성
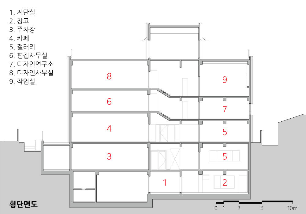
그래픽 디자이너인 건축주는 긴장감 있는 파사드 디자인을 원했다. 따라서 파사드의 전면 개구부는 불규칙적으로 보이지만 히든 모듈을 바탕으로 보이지 않는 규칙성으로 정리했다. 특히 스킵플로어에 의한 1미터의 레벨차는 1미터×0.5미터의 모듈을 적용해 엇갈림을 정리했다.
전면의 파사드 디자인은 사옥에 새로운 상징성을 부여하고 숫자 ‘6’을 모티프로 한 새로운 아이덴티티를 적용했다. 이러한 디자인 개념은 파사드 전반에 유기적으로 표현되었고, 회사의 심벌마크를 비롯해 사인디자인, 가구디자인 등에 변주되었다.
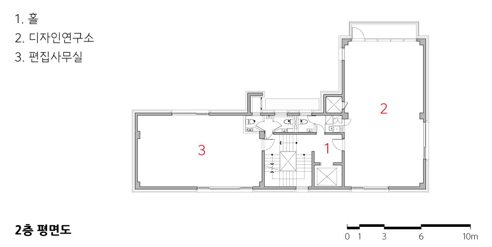
다양한 층고의 활용을 고려한 스킵 플로어
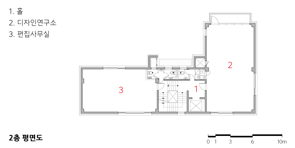
지상층 규모가 3층으로 제한된 건물에서 ‘사람과 장소, 개념과 구조’는 커뮤니케이션 디자인을 필요로 하는 사옥의 건축에서 매우 중요한 이슈였다. 지그재그로 오르내리며 소통하는 공간과 3층 작업실의 천장고를 확보하기 위해 스킵플로어를 적용했는데, 두 매스를 연결하는 중앙부에 계단을 배치하여 1미터 레벨차를 두었고, 1층 진입부와 3층 작업실은 자연스럽게 개방적인 층고를 확보했다. 지하 2층부터 연결되는 중앙의 돌음계단은 각 층의 실들을 연속적인 동선으로 연결한다.
주변 환경과 조화로운 소재의 선택과 사용
외장재는 붉은 벽돌을 적용해 건축물이 주변 환경에 자연스럽게 스며들게 하고, 내부는 노출콘크리트 마감, 구로강판과 함께 원목으로 마감해 천연 소재의 자연스러움을 공간에 입히고자 했다.



Background of the Work
The client, a graphic designer, wanted to build 601BISANG’s new company building in the place where nature and people get along with each other. Even though the site, embracing a mountain located in Gugi-dong, Jongno-gu, seemed vulnerable to landslides, as much as the steep slope of the mountain directly meeting it, we actively secured safety facilities, such as double retaining walls, drainage facilities, etc., to prepare for falling rocks.
Layout Concept
We secured separation distance for safety in the landslide-prone area and simultaneously explored the harmony between architecture and nature. The flow of the topography formed in the back forest-land was accepted through the layout of the building mass, and the inflow of people was allowed to be received through the encircled courtyard created with erosion control wall. A harmonious courtyard was placed between the retaining wall and the building, which is the center of spatial composition and is an approach based on the aesthetics of correlativity. The courtyard connects architecture and nature through blank space and is utilized as a space for users to communicate with each other.
Elevation Concept
One of the major characteristics of the building is that when you go inside through the front facade, which is like the first impression, you can see a second face. When you go up the building’s entrance stairs, the building, arranged in an ‘L’ shape, and the rear facade, which was not visible from the front, are revealed. While the front facade reveals a simple composition and heavy presence, the rear facade comes to function as a more 3-dimensionalized and open space toward the courtyard and nature.
The Hidden Regularity and Symbolism of the Facade
The client, a graphic designer, wanted a somewhat tense facade design. Accordingly, the front opening of the facade appears irregular, but is organized into the invisible regularity based on the hidden module. Particularly, as for the 1m level-difference caused by the skip floor, the difference was resolved by applying a 1m x 0.5m module.
The front facade design gave new symbolism to the company building, where the new identity created by the number ‘6’ as a motif was applied. This design concept was expressed organically throughout the facade, and was diversely continued to the company’s symbol mark, sign design, furniture design, and so on.
Skip Floor Considering the Use of Various Story Heights
In the building with the ground-height limited up to 3 floors, ‘people and place, concept and structure’ were very important issues in constructing the company building that required communication design. A skip floor was applied to secure the space in which people can communicate while going up and down in zigzags and the ceiling height of the 3rd floor atelier: a staircase was placed in the center connecting the two masses to create a 1m level difference, and the first-floor entrance and the third-floor atelier could naturally have open story heights. The central winding-staircase continued from the second basement level connects the rooms on each floor with a continuous circulation.
Selection and Use of the Materials Harmonious with the Surrounding Environment
Red bricks were used as the exterior material to allow the building to naturally blend into the surrounding environment; the interior was finished with exposed concrete, in which hardwood together with galvanized steel sheets was utilized to bring the natural feel of natural materials to the space.












| 601비상 사옥 설계자 | 조준호 _ 디엠 건축사사무소 건축주 | 박금준 감리자 | 디엠 건축사사무소 시공사 | (주)에스엠디자인 설계팀 | 김진서 설계의도 구현 | 디엠 건축사사무소 대지위치 | 서울특별시 종로구 진흥로 469-6 주요용도 | 근린생활시설 대지면적 | 622.00㎡ 건축면적 | 186.02㎡ 연면적 | 993.67㎡ 건폐율 | 29.91% 용적률 | 80.91% 규모 | B2F - 3F 구조 | 철근콘크리트구조 외부마감재 | 적벽돌, 노출콘크리트 내부마감재 | 벽·천장 _ 노출콘크리트 / 바닥 _ 포세린타일, 에폭시코팅 설계기간 | 2017. 04 - 2017. 09 공사기간 | 2018. 12 - 2019. 01 사진 | 김용순, 구한 구조분야 | (주)대한구조이엔지 기계설비분야 | (주)유론엔지니어링 전기·소방분야 | (주)세진전기연구소 |
601BISANG's Company Building Architect | Cho, Junho _ Diem Architecture Client | Park, Geumjun Supervisor | Diem Architecture Construction | SM Design Co. Project team | Kim, Jinseo Design intention realization | Diem Architecture Location | 469-6, Jinheung-ro, Jongno-gu, Seoul, Korea Program | Neighborhood living facility Site area | 622.00㎡ Building area | 186.02㎡ Gross floor area | 993.67㎡ Building to land ratio | 29.91% Floor area ratio | 80.91% Building scope | B2F - 3F Structure | RC Exterior finishing | Red Brick, Exposed concrete Interior finishing | Wall, Ceiling _ Exposed concrete Floor _ Porcelain tile, Epoxy coating Design period | Apr. 2017 - Sep. 2017 Construction period | Dec. 2018 - Jan. 2019 Photograph | Kim, Yong-soon / Gu, Han Structural engineer | Daehan Structural ENG Co. Mechanical engineer | Ulon Engineering Co. Electrical·Fire engineer | Sejin Electric Engineering Co. |
'회원작품 | Projects > Office' 카테고리의 다른 글
| 골든시스 사옥 2024.11 (0) | 2024.11.30 |
|---|---|
| 판교 알파돔시티 6-1, 6-2 복합시설 및 컬쳐밸리 2024.9 (0) | 2024.09.30 |
| 크란츠 빌딩 2024.6 (0) | 2024.06.30 |
| 차이커뮤니케이션 사옥 2024.4 (0) | 2024.04.30 |
| 아이엘스퀘어 2024.4 (0) | 2024.04.30 |
