2024. 11. 30. 10:40ㆍ회원작품 | Projects/Office
Goldensys office

안심뉴타운. 한때 연탄공장과 시멘트공장들이 밤낮으로 불을 밝히던 안심연료단지가 있었던 이곳은 과거 대구시의 건설경기 붐과 눈부신 경제 성장의 큰 축을 담당했지만, 2000년대 이후 연탄 산업의 쇠퇴와 대구 시가지의 점진적 확장으로 흉물스런 민원의 대상으로 전락하게 되었다. 그렇게 잦은 환경오염 이슈와 함께 슬럼화되다시피 하던 안심연료단지를 이후 대구도시개발공사가 매입하게 되면서 안심뉴타운이라는 새로운 이름으로 대대적인 개발이 진행됐다.
2022년 늦봄. 그러한 안심뉴타운의 서쪽 끝, 공원과 맞닿은 부지에 대구를 연고로 하는 IT 기업의 신사옥 설계를 의뢰받았다. 멀리 팔공산과 초례산을 풍경으로 두르고, 가까이는 뉴타운의 부산스러움에서 살짝 비켜 있을 수 있는 공원이 손끝에 닿는 곳. 여기에 저층부에는 임대를 위한 근린생활시설을, 상층부에는 회의실과 교육실을 갖춘 업무시설을 계획하는 내용이었다. 첫 미팅을 겸해 기존 사옥을 방문했을 때 느꼈던 따뜻한 사내 분위기가 무척 인상적이었다. 건축주 내외와 필요로 하는 공간에 대한 얘기를 나누면서, 이런 가족적인 따뜻한 분위기를 고스란히 담아낼 수 있는 건물을 만들어야겠다고 생각했다.
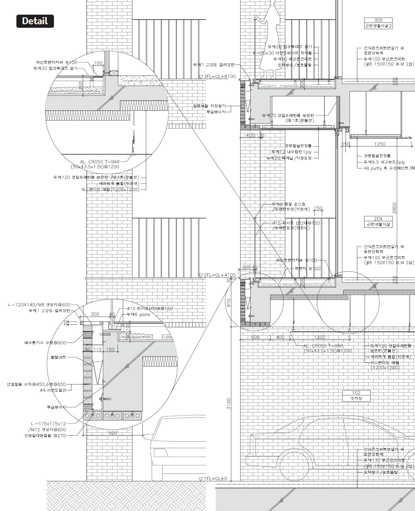
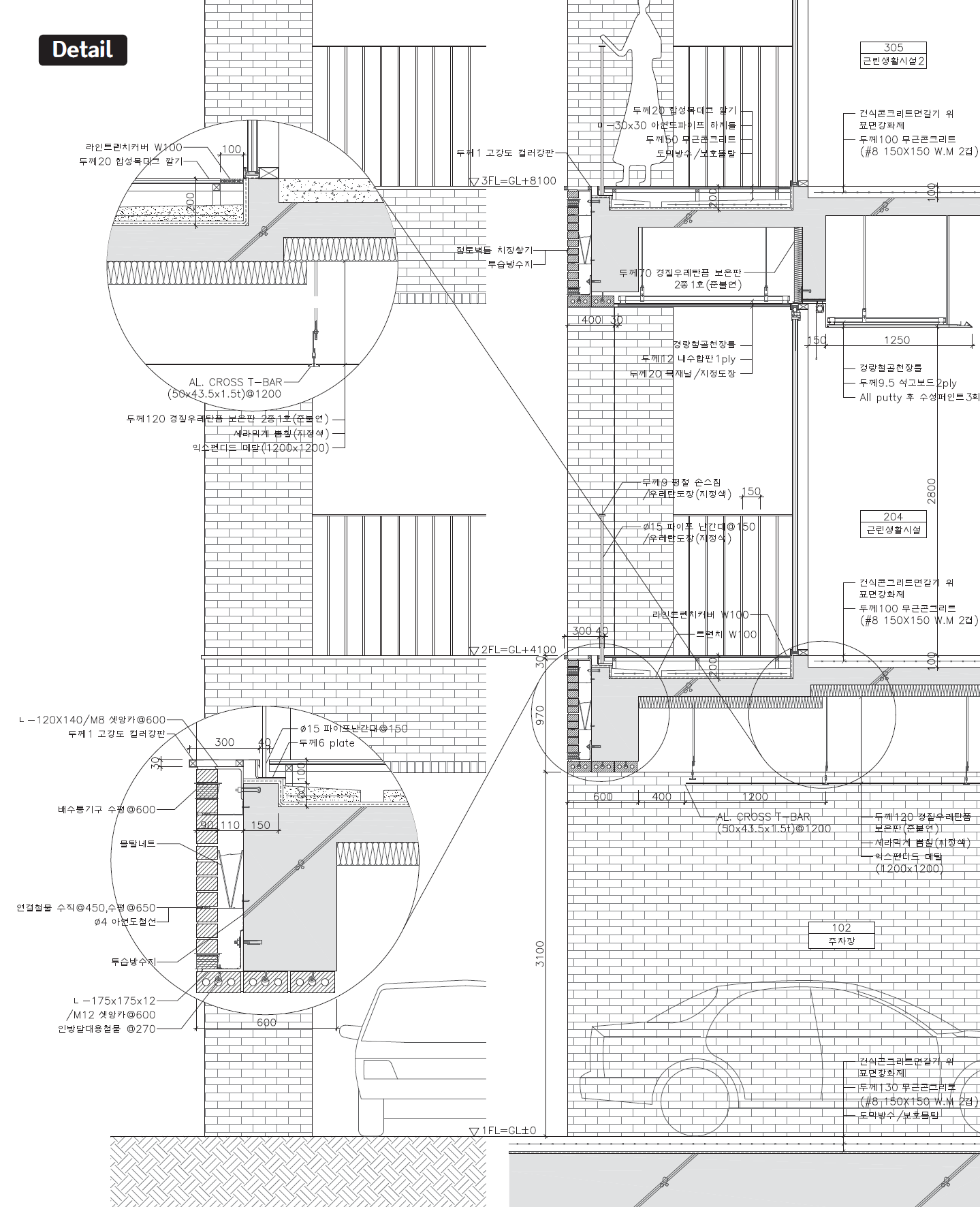
시작은 벽돌이었다. IT기업이니까 방화벽, 방화벽이니까 벽돌 건물이 어떠냐는 우스갯소리로 시작됐지만, 경량패널로 가볍게 지어지고 있는 주변 건물들과 달리 벽돌은 조금은 고전적인 느낌의 재료로 시간이 지나도 곱게 나이 들고 주름살이 예쁘게 질 수 있는 재료라고 생각했다. 그렇기에 입면 또한 형태가 강하게 드러나기보다는 벽돌 건축의 비례와 균형을 통해 단정함 속에서도 리듬감이 숨어 있도록 구성했다.
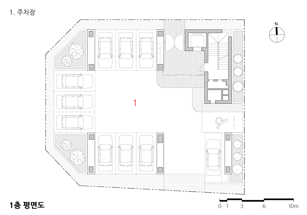
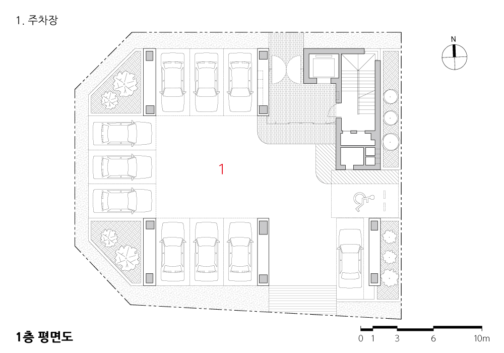
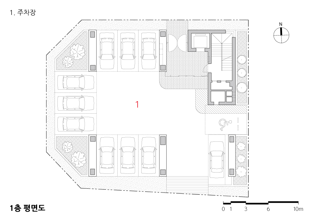
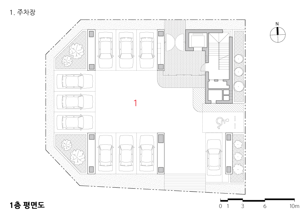
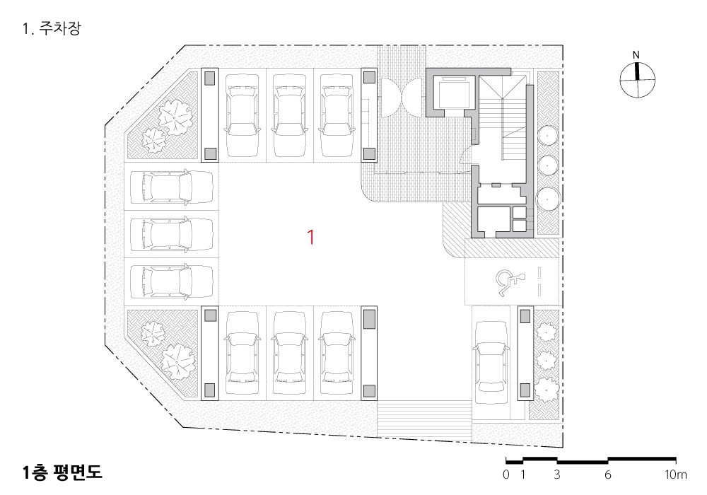
1층 필로티 주차장은 자칫 왜소해 보일 수 있는 기둥을 벽기둥으로 만들어 안정감을 부여했고, 2, 3층의 임대공간은 발코니를 충분히 계획해 남향과 함께 공원으로의 개방감을 충분히 즐길 수 있도록 했다. 4층의 회의실과 교육실 또한 발코니를 길게 두어 풍부한 외부공간을 즐길 수 있는 동시에 서향 빛을 가릴 수 있는 깊은 처마의 역할을 하도록 했다. 주된 업무공간인 5, 6층은 가운데 중정을 통해 자칫 어두울 수 있는 실내를 자연 빛으로 환하게 채우고, 내부 금속계단을 통해 하나의 공간으로 인식되고 소통할 수 있도록 했다. 옥상층까지 높게 쌓아 올린 벽돌 파라펫은 멀리 팔공산 능선을 의식해서 끝을 살짝 기울였으며, 6층 중정과 연계해 다양한 외부 활동이 벌어질 수 있는 또 하나의 공간이 되도록 했다.
처음 계획 부지에 방문했을 때 느꼈던 황량한 주변 풍경은. 얼마 후 다시 방문했을 때 마치 언제 그랬냐는 듯 복닥거리는 모습으로 변해 있었다. 펜스가 둘러지는가 싶더니 이내 철골 기둥이 세워지고, 가벼운 금속패널이 후루룩 매달리더니 금세 하나둘 날랜 건축물들이 들어섰다. 마치 급조되고 있는 듯한 도시. 사람 냄새나는 감성적인 접근보다는 당연하다는 듯 경제적 논리가 우선시되는 곳처럼 느껴졌다. 뉴타운이라는 한계 때문인지 무표정한 건물들이 속도전처럼 하나둘 들어서는 모습을 보면서, 우리가 계획한 건물이 다른 이웃 건물들이 기댈 수 있는 풍경이 되는 것은 어떨까 생각해 보았다. 이 건물을 시작으로 안심뉴타운만의 시간이 축적될 수 있는, 주변에 휘둘리지 않고 자체적인 분위기를 갖춘 아름다운 도시가 될 수 있기를 기대해 본다.



Ansim New Town was once home to the Ansim Fuel Complex, where briquette and cement factories operated around the clock, contributing significantly to Daegu’s construction boom and rapid economic growth. However, after the 2000s, the decline of the briquette industry and the gradual expansion of Daegu’s urban area turned the area into a target of complaints due to its deteriorating and unsightly state. With frequent environmental pollution issues and a gradual shift toward slum-like conditions, the area was eventually acquired by the Daegu Urban Development Corporation, marking the beginning of a large-scale redevelopment project under the new name, Ansim New Town.
In late spring of 2022, I was commissioned to design the new headquarters for an IT company based in Daegu, situated at the western edge of Ansim New Town, adjacent to a park. The site offered views of Mt. Palgong and Mt. Choré in the distance, while being slightly removed from the bustling activities of the New Town, with the park providing a serene touch. The project brief included commercial spaces on the lower floors for leasing, while the upper floors were to accommodate office spaces with meeting rooms and training facilities. I was particularly struck by the warm and friendly atmosphere when I visited their existing headquarters for our initial meeting. As we discussed their spatial needs with the client and his family, I became determined to create a building that would capture and convey this familial warmth.
The design concept began with bricks. It started as a lighthearted suggestion — since it’s an IT company, how about a “firewall,” and thus, a brick building? But, unlike the lightweight panel structures of neighboring buildings, bricks offer a more classic and enduring aesthetic, gracefully aging over time. The façade design focused on maintaining proportions and balance, subtly incorporating rhythm without overwhelming the form, allowing the brickwork to be the star.
The piloti parking area on the first floor was designed with wall columns to add stability, avoiding the potential sense of frailty. The rental spaces on the second and third floors were planned with ample balconies to maximize southern exposure and provide a sense of openness towards the park. The fourth floor, which housed meeting and training rooms, was designed with extended balconies that allowed occupants to enjoy generous outdoor spaces while also functioning as deep eaves to shield from the western sun. The primary office spaces on the fifth and sixth floors featured a central courtyard, ensuring ample natural light throughout the interior. The spaces were interconnected through an internal metal staircase, creating a sense of continuity and communication. The brick parapet, built high to the rooftop level, was slightly angled to align with the distant ridge of Mt. Palgong. It also formed a space linked to the sixth-floor courtyard, encouraging various outdoor activities.
The once desolate landscape of the site transformed remarkably when I revisited it a short time later. What used to be empty and barren had turned into a bustling area, with construction fences erected, steel columns rising, and lightweight metal panels quickly attached, as if the buildings were being constructed in haste. The rapid urban development seemed to prioritize economic logic over a more human-centric, emotional approach. Perhaps constrained by the concept of a New Town, I watched as one after another, the faceless buildings rose at a brisk pace. It made me think, why not let our building be the one that provides a resting point for its neighbors? I hope this building can be the starting point for Ansim New Town, where time can accumulate, evolving into a beautiful city with its own distinct atmosphere, unshaken by the surrounding rapid development.










| 골든시스 사옥 설계자 | 권웅규 _ 건축사사무소 도시건축집단 건축주 | 박해선 _ 골든시스(주) 감리자 | 건축사사무소 도시건축집단 시공사 | 지오종합건설(주) 설계팀 | 김용재, 송미선, 유민아 대지위치 | 대구광역시 동구 안심뉴타운1로 20 주요용도 | 업무시설, 근린생활시설 대지면적 | 482.90㎡ 건축면적 | 284.20㎡ 연면적 | 1,357.82㎡ 건폐율 | 58.85% 용적률 | 263.29% 규모 | B1F - 6F 구조 | 철근콘크리트구조 외부마감재 | 점토벽돌 치장쌓기(삼한C1 : SH3305, SH5507) 고강도 컬러강판(동국씨엠 : PC11E), 이페목재널 내부마감재 | 콘크리트폴리싱, 노출콘크리트, 석고보드, 수성페인트 설계기간 | 2022. 04 – 2022. 12 공사기간 | 2023. 01 – 2024. 05 사진 | 김재경 구조분야 | 일맥구조 기계설비·전기·소방분야 | (주)코담기술단 |
Goldensys office Architect | Kwon, woong-kyu _ ubac Seongbukdong Client | Park, Haesun _ Goldensys Supervisor | ubac Seongbukdong Construction | GO Construction Project team | Kim, yongjae / Song, Miseon / Ryu, Minah Location | 20, Ansimnewtown 1-ro, Dong-gu, Daegu, Korea Program | Office, Neighborhood facility Site area | 482.90㎡ Building area | 284.20㎡ Gross floor area | 1,357.82㎡ Building to land ratio | 58.85% Floor area ratio | 263.29% Building scope | B1F - 6F Structure | RC Exterior finishing | Clay Brick(Samhan Ceramics One : SH3305, SH5507) Pre-Coated Metal(Dongkuk CM : PC11E), IPE Wood Siding Interior finishing | Concrete Polishing, Exposed Concrete, Gypsum Board, Paint Design period | 2022. 04 – 2022. 12 Construction period | 2023. 01 – 2024. 05 Photograph | Kim, Jae-Kyeong Structural engineer | Ilmac Structural Engineering Mechanical·Electrical·Fire engineer | Codam Technical Group |
'회원작품 | Projects > Office' 카테고리의 다른 글
| 바이스트로닉 코리아 2025.2 (0) | 2025.02.28 |
|---|---|
| 어반 라이닝(주) 케이엔글로벌 사옥 2025.1 (0) | 2025.01.31 |
| 판교 알파돔시티 6-1, 6-2 복합시설 및 컬쳐밸리 2024.9 (0) | 2024.09.30 |
| 601비상 사옥 2024.7 (0) | 2024.07.31 |
| 크란츠 빌딩 2024.6 (0) | 2024.06.30 |
