2025. 2. 28. 10:10ㆍ회원작품 | Projects/Office
Bystronic Korea Brand Experience Center

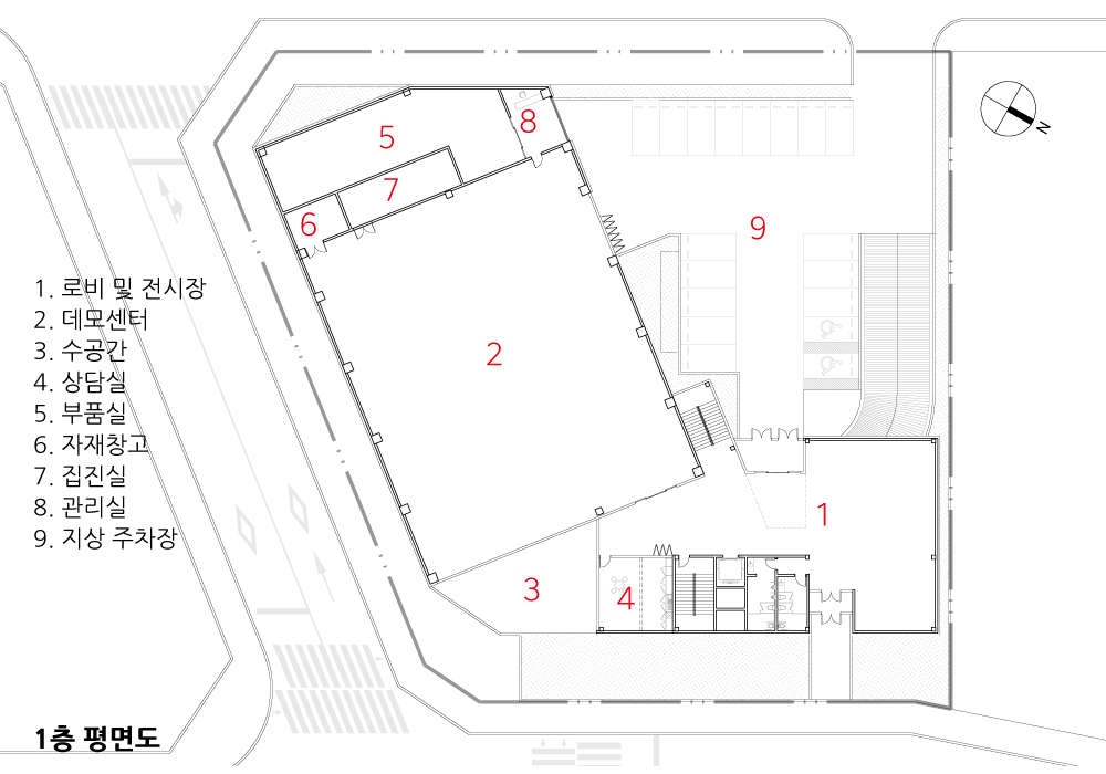
절삭기계체험관과 오피스 공간을 의뢰한 바이스트로닉(Bystronic)은 금속재의 절곡과 절삭 등의 레이저 커팅 기계를 제작하는 글로벌 스위스 회사다. 우리는 이 기업의 모토인 절곡(bending)과 절삭(cutting)이라는 특성을 기본 건축어휘로 사용하기로 했다. 먼저 총 필요공간을 산정해 건축면적과 매스를 형성했고, 가로에 적용하여 절곡 후 배치했다. 주 공간인 절삭기계체험관과 오피스 영역을 결정하고 나머지 보조 공간을 구분하여 매스를 절삭했고, 다시 높은 계단실을 삽입해 연결시켰다.
전체적으로 건물의 외관은 금속 덩어리처럼 보이는데, 가까이 다가가면 여러 개의 세로줄이 그어진 강판이 촉각을 자극한다. 보행자들의 주요 동선인 남동측 보도의 입면은 커다랗고 방어적으로 일관한다. 그러다 갑자기 등장하는 2개 층 높이의 유리 커튼월로 시각적 쾌감을 선사하는 동시에 체험관 내부로 시선을 유도한다. 동측과 서측 출입구는 입면의 외장재를 통해 절삭의 이미지를 주어 입구성을 강조했다.
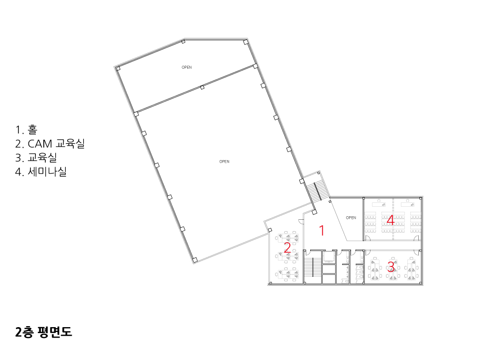
체험관은 2개 층을 하나의 넓은 무주공간으로 계획해 개방감을 더했고, 각 도로에 세로로 긴 창을 두어 시선이 집중되도록 했다. 사무실은 체험관 위에 두어 방문자와 물리적, 시각적으로 분리시키고, 녹지공간과 연계해 업무에 효율적인 환경을 제공하려 했다. 체험관에서 사무실로 이동할 때 만나는 강렬한 빨간색의 계단은 기업의 이미지를 상기시켜주며, 다른 성격의 공간으로 넘어가는 긴 입구이자 전이공간의 역할을 한다.



Bystronic, a globally leading Swiss company specializing in laser cutting systems for sheet metal bending and cutting, commissioned us to design a cutting system experience center and office space. We decided to incorporate the company’s core principles—bending and cutting—into the architectural vocabulary.
To begin, we calculated the total required space to determine the building area and mass, applied it to the site, and then shaped the mass by “bending” it along the horizontal axis. The main spaces—the cutting machine experience center and the office area—were designated first. The remaining auxiliary spaces were segmented, and the mass was “cut” to separate these areas. Finally, a tall staircase was inserted to connect the spaces.
The building’s exterior resembles a solid block of metal. Upon closer inspection, vertical lines etched into the steel panels stimulate the tactile senses. The façade along the southeastern sidewalk, a key pedestrian route, appears large and defensive, creating a sense of enclosure. However, this is suddenly interrupted by a striking two-story glass curtain wall that provides visual relief and draws attention to the interior of the experience center.
The east and west entrances emphasize their presence through a façade treatment that mimics the visual impression of cutting, reinforcing the theme of the company’s technology.
The experience center is designed as a two-story, open column-free space to enhance a sense of spaciousness. Vertical windows are strategically placed along each road-facing side to focus the viewer’s attention.
The office area is situated above the experience center, creating a physical and visual separation from visitors while ensuring an efficient work environment. The office design integrates green spaces to provide a more productive and pleasant atmosphere for employees.
A striking red staircase serves as a transition from the experience center to the office. This bold design element not only reinforces the company’s branding but also functions as a symbolic and physical threshold, guiding users into a distinctly different spatial experience.








| 바이스트로닉 코리아 설계자 | 최동규·최유철 _ (주)서인 종합건축사사무소 건축주 | 바이스트로닉 코리아 시공사 | (주)디투종합건설 설계팀 | 주효진, 한혜선 대지위치 | 인천광역시 연수구 인천타워대로77 주요용도 | 교육 및 연구시설(연구소) 대지면적 | 3,360.00㎡ 건축면적 | 1,620.96㎡ 연면적 | 4,294.36㎡ 건폐율 | 48.24% 용적률 | 90.75% 규모 | B1F - 3F 구조 | 철골철근콘크리트구조 외부마감재 | 컬러강판, 로이유리, FC패널 내부마감재 | 테라조타일, 백페인트글라스, 발색금속 설계기간 | 2019. 06 – 2020. 03 공사기간 | 2020. 04 – 2022. 05 사진 | 김용수 구조분야 | (주)더나은구조엔지니어링 기계설비분야 | (주)맥엔드엠이씨 전기분야 | (주)대경전기설계사무소 소방분야 | (주)맥엔드엠이씨, (주)대경전기설계사무소 인테리어분야 | (주)마루에이엔디 |
Bystronic Korea Brand Experience Center Architect | Choi, Dongkyu / Choi, Alex Yoocheol _ Seoinn Design Group Client | Bystronic Korea Construction | DITU Construction Co., Ltd. Project team | Ju, Hyojin / Han, Hyeseon Location | 77, Incheon tower-daero, Yeonsu-gu, Incheon, Republic of Korea Program | Educational research facilities (research institutes) Site area | 3,360.00㎡ Building area | 1,620.96㎡ Gross floor area | 4,294.36㎡ Building to land ratio | 48.24% Floor area ratio | 90.75% Building scope | B1F - 3F Structure | SRC Exterior finishing | Color metal panel, Low-E Glass, FC panel Interior finishing | Terrazzo tiles, Back painted glass, Colored metal Design period | Jun. 2019 – Mar. 2020 Construction period | Apr. 2020 – May 2022 Photograph | Kim, Yongsu Structural engineer | The Naeun Structural Engineering Co. Ltd. Mechanical engineer | MAC&MEC Electrical engineer | Dae-Kyeong Electrical Engineering & consulting Inc. Fire engineer | MAC&MEC, Dae-Kyeong Electrical Engineering & consulting Inc. Interior design | MarooA&D |
'회원작품 | Projects > Office' 카테고리의 다른 글
| 고혼진리퍼블릭 사옥 2025.3 (0) | 2025.03.31 |
|---|---|
| SFT 본사 사옥 2025.3 (0) | 2025.03.31 |
| 어반 라이닝(주) 케이엔글로벌 사옥 2025.1 (0) | 2025.01.31 |
| 골든시스 사옥 2024.11 (0) | 2024.11.30 |
| 판교 알파돔시티 6-1, 6-2 복합시설 및 컬쳐밸리 2024.9 (0) | 2024.09.30 |

