2024. 5. 31. 10:20ㆍ회원작품 | Projects/Public
I happy center

마을의 일상적인 풍경
이곳은 단독주택이 골목길을 따라 형성되어 있는 마을이다. 마을의 중심에 위치한 어린이공원은 주민들의 소통과 놀이공간으로 오랫동안 자리했다. 어린이공원의 의미는 작지 않다. 어린이만을 위한 공간을 넘어서 어린이와 어르신들이 마주하는 만남의 공간이며, 지역 주민들의 운동공간이자 서로의 소식을 전하는 소통의 공간이다. 어린이 공원과 바로 인접한 대지는 어린이들을 위한 공간을 넘어서는, 의미를 갖는 공간이어야 한다. 주민들의 일상을 담는 공간이기도 하면서, 아이들이 즐겁게 일상을 이어나가는 공공의 장소가 필요하다.
1. 도시의 맥락과 흐름에 대응
건물의 형태는 도시의 질서를 수용하면서 변화가 일어난다. 대지의 형상을 닮은 단일 형태에서 층층이 생기는 건축적 제한선과 주변 건물들과의 상호 관계에 대응한 결과이다. 변형된 조형은 이용자들의 놀이, 휴식, 소통 공간이 된다.
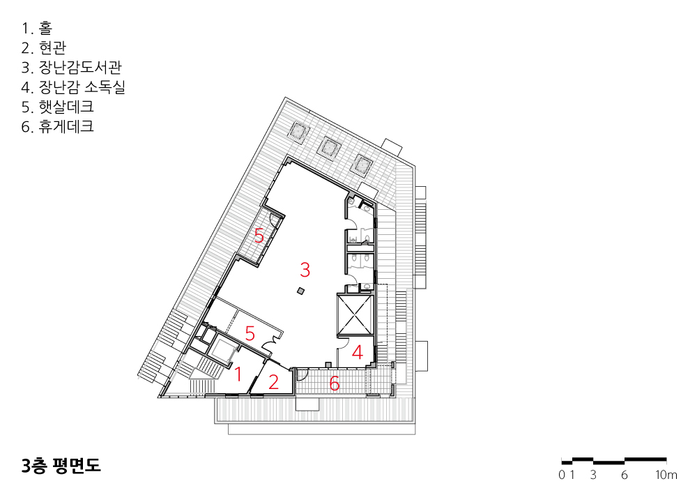
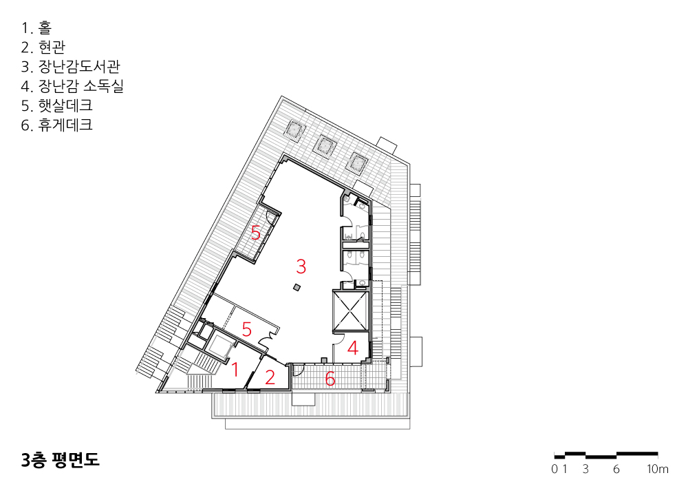
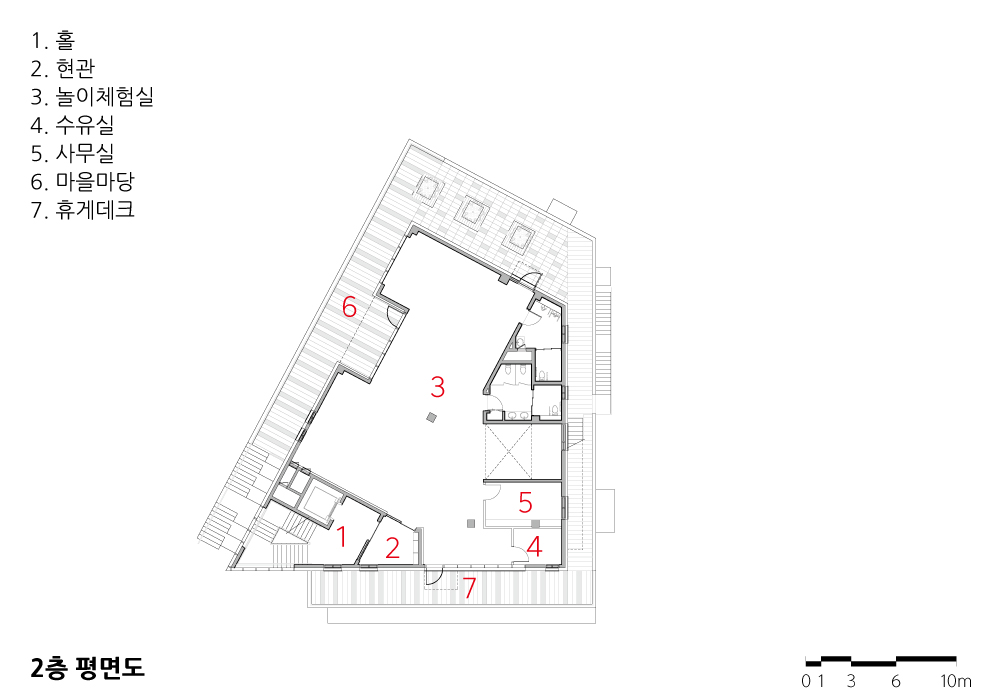
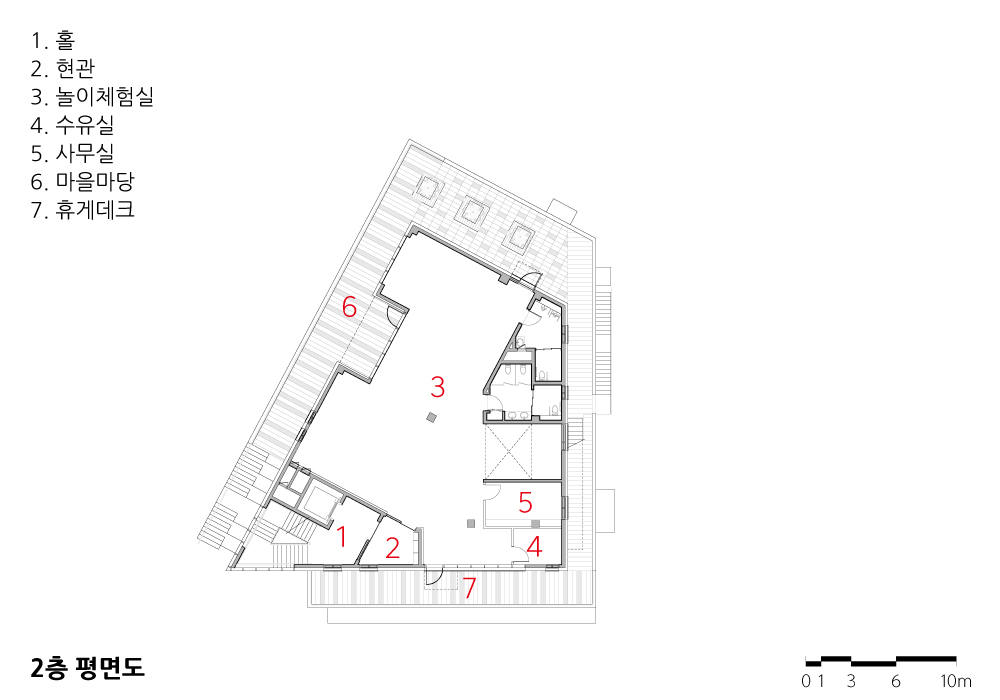
2. 마을 공공마당
어린이공원이 갖는 장소성은 공공마당으로 영역이 확장된다. 아이들의 놀이공간과 더불어 지역 주민들이 함께 이용할 수 있는 공간이다. 지역의 소통과 문화 휴식 등의 활동이 이루어지며, 지역 주민의 생활공간이 입체적 가로의 연속성으로 자리하게 된다.
3. 복합적 놀이공간
각 층으로 나누어져 있던 과거의 놀이공간에서 탈피해 단면의 변화와 외부공간 연계로 다채로운 경험을 할 수 있다. 복합적 단면의 연속으로 수직적 공간구성이 가능하고 정적영역과 동적영역, 교육영역, 휴게영역이 혼재되어 어우러진다. 입체적 공간구성은 전 층에 영향을 주어 통합적 놀이공간으로 발전한다.



The Everyday Landscape of the Village
This village is formed by single family homes along alleyways. Located at the heart of the village, the children’s park has long served as a space for communication and play among residents. The significance of the children’s park is substantial. It transcends a space solely for children, becoming a meeting point for both young and old, a place for local residents to exercise, and a venue for sharing news. The site adjacent to the children’s park should also be meaningful, extending beyond just a space for children. It needs to be a public place where children can joyfully continue their daily activities, encapsulating the daily lives of the residents.
1. Responding to the Urban Context and Flow
The form of the buildings evolves while accommodating the order of the city. The outcome is a response to the architectural restrictions that arise layer by layer and the relationships with surrounding buildings, resembling the shape of the site. The transformed shapes become spaces for play, rest, and communication for the users.
2. Village Public Courtyard
The locational significance of the children’s park extends into a public courtyard. It becomes a space where not only children can play, but also local residents can use together. Activities such as community interaction, cultural rest, and others take place here, with the living spaces of local residents forming a three-dimensional continuity of streets.
3. Complex Play Spaces
Breaking away from the past segmented play spaces, the alteration in sections and the connection with outdoor spaces allow for diverse experiences. A vertical arrangement of spaces is possible through a continuous complex section, blending static and dynamic zones, educational areas, and rest areas. This three-dimensional spatial arrangement influences all levels, evolving into an integrated play space.









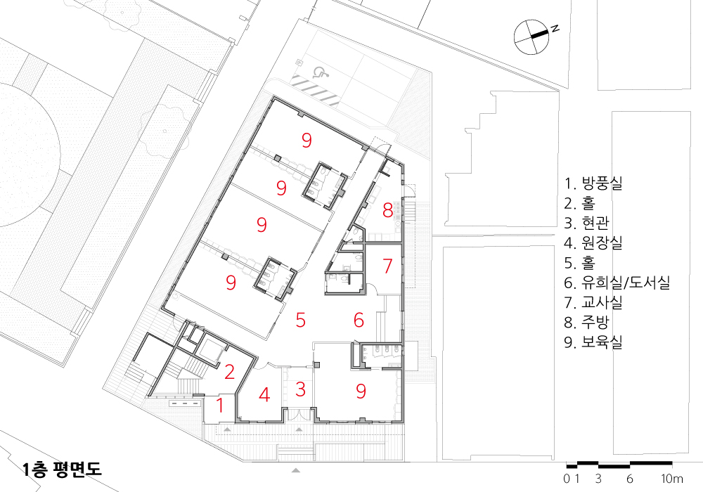
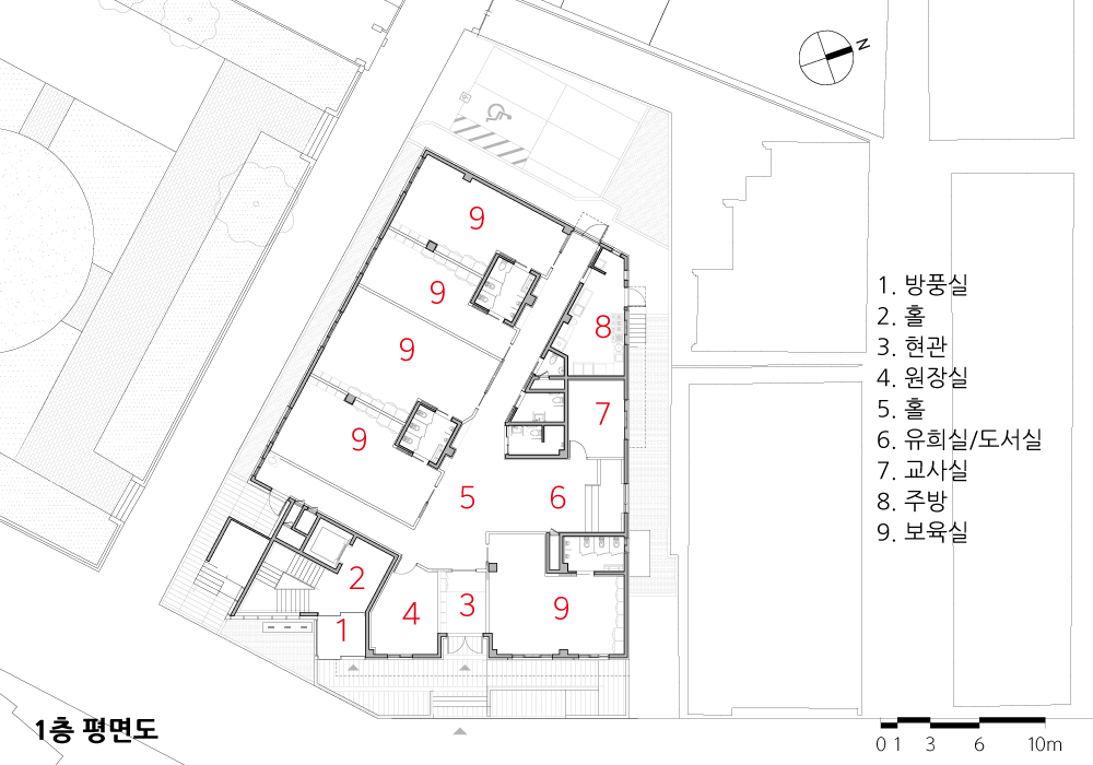
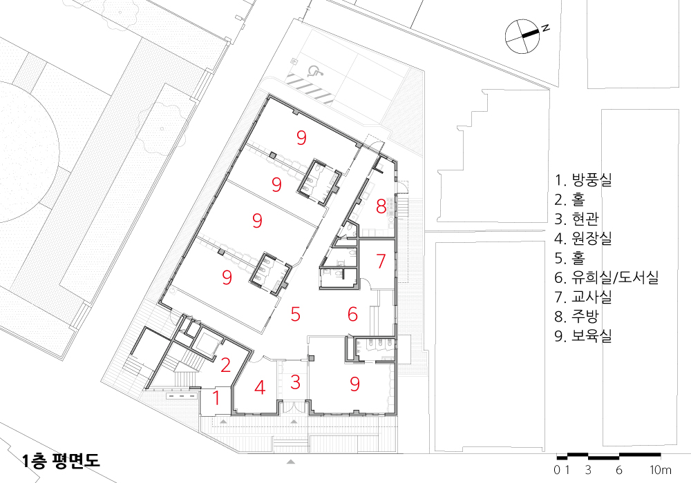
| 아이행복센터 설계자 | 김미순 _ 건축사사무소 사월 건축주 | 창원시 설계팀 | 한소영 설계의도 구현 | 건축사사무소 사월 대지위치 | 경남 창원시 마산회원구 석전북18길 10 주요용도 | 노유자시설(어린이집, 영유아체험실, 장난감도서관) 대지면적 | 911.20㎡ 건축면적 | 546.52㎡ 연면적 | 1,327.11㎡ 건폐율 | 59.98% 용적률 | 120.69% 규모 | B1 - 3F 구조 | 철근콘크리트구조 외부마감재 | 라임스톤, 외단열시스템 내부마감재 | 친환경 수성페인트, 실크벽지 설계기간 | 2021. 04 - 2021. 10 공사기간 | 2022. 01 - 2023. 04 사진 | 텍스처온텍스처 구조분야 | 주식회사 에스디 기계설비분야 | 청우이엔지 전기분야 | 천일엠이씨 소방분야 | 천일엠이씨 |
I happy center Architect | Kim, Misoon _ Architects SAWOL Client | Changwon City Project team | Han, Soyoung Design intention realization | Architects SAWOL Location | 10, Seokjeonbuk 18-gil, Masanhoewon-gu, Changwon-si, Gyeongsangnam-do, Korea Program | Daycare center, Infant experience rooms, Toy library Site area | 911.20㎡ Building area | 546.52㎡ Gross floor area | 1,327.11㎡ Building to land ratio | 59.98% Floor area ratio | 120.69% Building scope | B1 - 3F Structure | RC Exterior finishing | Limestone, External insulation system Interior finishing | WP, Silk wallpaper Design period | Apr. 2021 – Oct. 2021 Construction period | Jan. 2022 - Apr. 2023 Photograph | texture on texture Structural engineer | SD Co., Ltd. Mechanical engineer | Cheongwoo ENG Electrical engineer | Cheonil MEC Fire engineer | Cheonil MEC |

'회원작품 | Projects > Public' 카테고리의 다른 글
| 지역산업복지센터 2024.11 (0) | 2024.11.30 |
|---|---|
| 진영(부산) 복합휴게시설 2024.10 (0) | 2024.10.31 |
| 예천스타디움 증축 2023.10 (0) | 2023.10.31 |
| 강남구웰에이징센터 2023.9 (0) | 2023.09.15 |
| 수원소방서 이의119안전센터 2023.7 (0) | 2023.07.24 |