2023. 9. 15. 10:43ㆍ회원작품 | Projects/Public
Gangnam Well-aging Center

전례 없는 최초
2020년 9월, 사례가 전혀 없으면서 지독히도 제한적인 환경의 도전적인 작업을 만났다. 강남구웰에이징센터. 웰에이징센터는 문자 그대로 잘 나이들 수 있도록 어르신들 스스로 건강을 관리하는 데 도움을 주는 센터라 할 수 있다. 당시 우리나라에 비슷한 이름을 쓰는 스포츠센터와 병원은 있었지만, 운동 집중형이거나 피부 등 환자 치료 목적인 경우라 스스로 건강을 관리하기 위한 노인맞춤형으로서 ‘잘 나이 들게 돕는 공공형 건강증진센터’ 사례는 우리나라뿐만 아니라 세계적으로도 찾아보기가 어려웠다.
제한적 공간의 한계에 도전
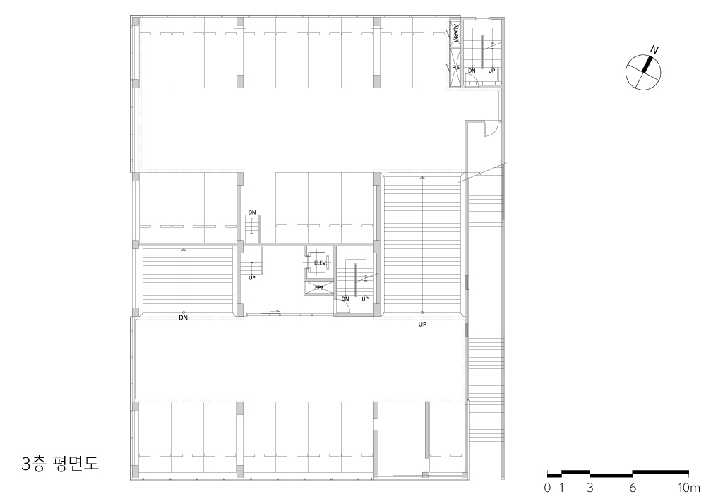
또 다른 도전은 층고와 규모가 제한된 낡은 주차장 건물이 대상지였다는 것이다. 대상지는 지은 지 20년 된 주차장 건물로서, 추후 주차장 상부에 강남구 치매안심센터가 증축된 건물이었다. 웰에이징센터를 이곳에 마련하게 된 까닭도 치매안심센터와의 연계를 위해서였다. 하지만 대상지인 공간이 주차장으로 쓰이고 있어 층고가 2.3미터 정도밖에 되지 않아 해결해야 할 숙제가 많은 곳이었다. 이를 극복하기 위한 노력으로 설계로서는 최대한 시선을 바닥으로 향하게 하기 위해 컬러 패턴을 적용했고, 천정을 반노출로 하여 답답하지 않게 디자인했다. 시공 중 설계와 다른 현장 상황들이 드러나기에, 감리를 하면서도 전기 및 설비 공사와 수차례의 조율을 통해 지금의 안락한 공간을 결과물로 얻을 수 있었다.
진심이 만들어낸 첫 사례
웰에이징센터를 위한 프로그램 만들기는 통계학적으로 건강증진을 향상하기 위한 보건학 전문가인 성주헌 서울대 교수의 연구와 자문을 토대로 시작됐다. 그렇게 강남구 보건소와 건축사사무소 이렇게 세 영역의 팀은 모호한 프로그램을 공간에 적용해 시각화하고, 다시 제거하고 첨가할 것들을 점검하면서 프로그램-공간-운영의 역할을 공조해 동시에 프로그램을 정립해 나갔다. 그렇게 최종으로 정립된 프로그램은 노인맞춤형 근력 운동과 식단 관리, 그리고 신체 균형을 점검하는 신체검사가 골자를 이룬다. 세 영역의 전문가들은 진심으로 이 일을 진행했고, 그랬기에 운영하고 있는 지금까지도 공간의 쓰임새 측면 등에서 이용자들의 불평이 없는, 최고의 만족도를 보이는 우리나라 최초의 웰에이징센터가 되었다. 지금은 만 1년을 넘어서 강남구 어르신들의 가장 만족도가 높은 센터가 되었고, 각 지자체에서 방문하고 서울대 사례 조사로 탐구하고 있다.
융·복합적 공간화하기
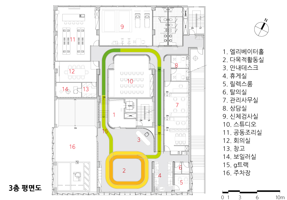
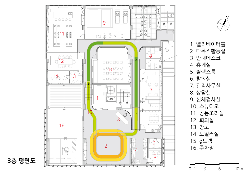
세 가지의 프로그램 중 식이요법을 위한 주방과 신체검사 공간은 지속적으로 사용 인원과 검사 기구들의 크기에 따라 변화하며 서서히 자리를 잡았고, 운동은 처음부터 적은 규모의 공간을 극복하고자 복합적으로 쓰일 수 있도록 구상했다. 먼저 걷기 프로그램은 전체 복도가 순화되도록 하여 전체 약 70미터의 걷기가 되도록 구성했고, 로비는 선정릉의 녹음을 보면서 운동할 수 있도록 레드슬링을 설치했으며, 다목적실은 세미나는 물론 요가 등이 가능하도록 구성했다.
노인을 위한 디자인
눈은 인간이 나이 들면서 가장 먼저 노화됨을 인지할 수 있는 기관이다. 그래서 명료하게 인지되는 밝은 컬러를 쓰면서도 검은색으로 인식하는 짙은 파랑은 피했다. 외관은 흉물스러운 전체 주차장을 밝은 건물로 디자인했다. 재료는 주차장의 환기와 채광이 유지되는 익스펜디드 메탈로 선택했고, 선정릉역과 조화로운 노란 바탕에 녹색과 흰색의 3가지 색을 다양한 패턴으로 입혔다. 내부는 유리와 밝은 컬러의 바닥 패턴, 그리고 텍스처의 부드러움을 더하기 위한 붉은 벽돌 타일을 가운데 중심으로 구성하여 마을과 같은 분위기를 연출했다. 기본적으로 주차장이었기에 외부로 3중 유리를 마감했지만, 겨울에 노인들에겐 차가운 공간이 된다. 그래서 아무리 천정이 낮아도 가장 따뜻하고 쾌적한 온도를 유지할 수 있도록 바닥난방을 선택했고, 바닥에서 운동하는 어르신들의 만족도는 최상이다.






Unprecedented First
In September 2020, I encountered an exceptionally challenging project in an entirely uncharted territory. The Gangnam-gu Well-Aging Center. The Well-Aging Center can be described as a facility that helps seniors manage their health and well-being so that they can age well. While there were sports centers and hospitals with similar names in South Korea at the time, they focused on exercise or were oriented towards patient treatment for conditions like skin disorders. The concept of a 'public health promotion center that assists seniors in aging well' and focuses on self-managed health was difficult to find not only in South Korea but also worldwide.
Challenging the Limits of Limited Space
Another challenge was working within the constraints of an old parking garage building with limitations on height and scale. The chosen site was a 20-year-old parking garage building that had been expanded to accommodate the Gangnam-gu Dementia Safety Center on its upper floors. The decision to establish the Well-Aging Center here was driven by the desire for synergy with the Dementia Safety Center. However, the chosen space had been used as a parking garage, resulting in a ceiling height of only about 2.3 meters, presenting numerous challenges to overcome. In an effort to address this, the design focused on directing visual attention downward by applying color patterns and using exposed ceilings to create a more open and spacious feeling. During construction, discrepancies between the design and the actual site conditions emerged, prompting several rounds of adjustments in electrical and facility work through supervision. As a result, the current comfortable and inviting space was achieved.
A Genuine First Case
The development of the program for the Well-Aging Center was initiated based on the research and consultation of Professor Sung Juheon, an expert in public health and statistics at Seoul National University, aimed at improving health promotion statistically. In this manner, teams from three fields—Gangnam-gu Health Center, architectural firm, and consulting office—collaborated to apply, visualize, revise, and refine the program within the space, while also examining the roles of program, space, and operations in harmony. The final program that emerged focused on senior-tailored strength training, dietary management, and physical balance assessment. The experts from these three fields genuinely undertook this endeavor, and it is due to their dedication that the Well-Aging Center, the first of its kind in South Korea, maintains the highest level of user satisfaction with no complaints regarding space usage and more. Now, beyond one year of operation, it has become the most satisfying center for the elderly in Gangnam-gu, and it continues to be studied and explored by various local authorities as a benchmark, including visits and research conducted by Seoul National University.
Creating Diverse and Integrated Spaces
Among the three programs, the kitchen for dietary therapy and the physical examination space have gradually taken shape, adapting to the changing number of users and the size of examination equipment. In contrast, the exercise program was designed from the outset to overcome the constraints of limited space and be used in a versatile manner. Firstly, the walking program was designed to streamline the entire corridor, allowing for a total walking distance of about 70 meters. The lobby was equipped with red-slings, allowing exercise while enjoying the view of Seonjeongneung, and the multipurpose room was designed to accommodate not only seminars but also activities like yoga.
Designing for the Elderly
Eyesight is one of the first faculties to age as humans grow older. Therefore, while using bright colors that are clearly perceptible, we avoided using deep blue, which can be perceived as black. The exterior was designed to transform the rather gloomy overall parking area into a bright building. We chose expanded metal as the material to maintain ventilation and lighting in the parking area, and applied three colors—green, white, and yellow—in various patterns on a harmonious yellow background that complements Seonjeongneung Station. The interior was composed around a central core of red brick tiles to create a village-like atmosphere, incorporating glass, bright-colored floor patterns, and textured surfaces for added softness. Despite its original purpose as a parking area, triple-layer glass was used for the exterior. However, to prevent the space from feeling cold for the elderly during winter, underfloor heating was installed, maintaining the warmest and most comfortable temperature. As a result, elderly individuals engaging in floor exercises express the highest level of satisfaction.











| 강남구웰에이징센터 설계자 | 박현진 _ (주)온디자인건축사사무소 건축주 | 강남구 보건소 감리자 | 박현진 _ (주)온디자인건축사사무소 시공사 | 해울종합건설 설계팀 | 조헌, 박상화 대지위치 | 서울특별시 강남구 선릉로108길 27 주요용도 | 자동차관련시설(주차장), 업무시설(자치단체청사) 대지면적 | 1,001.40㎡ 건축면적 | 826.50㎡ 연면적 | 5,438.37㎡ (리모델링면적 : 608.91㎡) 건폐율 | 82.53% 용적률 | 330.73% 규모 | B3F - 5F 구조 | 철근콘크리트구조 외부마감재 | Sto페인트 마감, 익스펜디드메탈 내부마감재 | 벽돌타일, 자작나무합판(UV코팅), 마모륨(Forbo), 페인트 설계기간 | 2020. 09 - 2021. 03 공사기간 | 2021. 05 - 2021. 12 사진 | 박영채, 배지훈 구조분야 | (주)은구조기술사사무소 기계설비분야 | (주)동방엠이씨 전기분야 | (주)지케이이엔지 |
Gangnam Well-aging Center Architect | Park, Hyunjin _ ON Architectural Desgin Partners Inc. Client | Gangnam-gu Public Health Center Supervisor | Park, Hyunjin _ ON Architectural Desgin Partners Inc. Construction | Haeul Construction Project team | Cho, Hun / Park, Sanghwa Location | 27, Seolleung-ro 108-gil, Gangnam-gu, Seoul, Korea Program | Parking lot, Business facilities Site area | 1,001.40㎡ Building area | 826.50㎡ Gross floor area | 5,438.37㎡ (Renovation Area : 608.91㎡) Building to land ratio | 82.53% Floor area ratio | 330.73% Building scope | B3F - 5F Structure | RC Exterior finishing | STO Stucco, Expanded metal Interior finishing | Brick tile, Birch(UV coated), Marmoleum(Forbo), Painting Design period | Dec. 2020 - Mar. 2021 Construction period | Sep. 2021 - Dec. 2021 Photograph | Park, Youngchae / Bae, Jihun Structural engineer | Eun Structure Engineering Mechanical engineer | Dongbang MEC Electrical engineer | GK E&G |
'회원작품 | Projects > Public' 카테고리의 다른 글
| 아이행복센터 2024.5 (0) | 2024.05.31 |
|---|---|
| 예천스타디움 증축 2023.10 (0) | 2023.10.31 |
| 수원소방서 이의119안전센터 2023.7 (0) | 2023.07.24 |
| 회원첫작품_춘천시 건강생활지원센터 2023.5 (0) | 2023.05.18 |
| 주왕산 세계 지질 탐방 안내센터 2023.4 (0) | 2023.04.19 |
