2024. 5. 31. 10:50ㆍ회원작품 | Projects/Education
Expansion of Kindergarten Affiliated with Hongik University

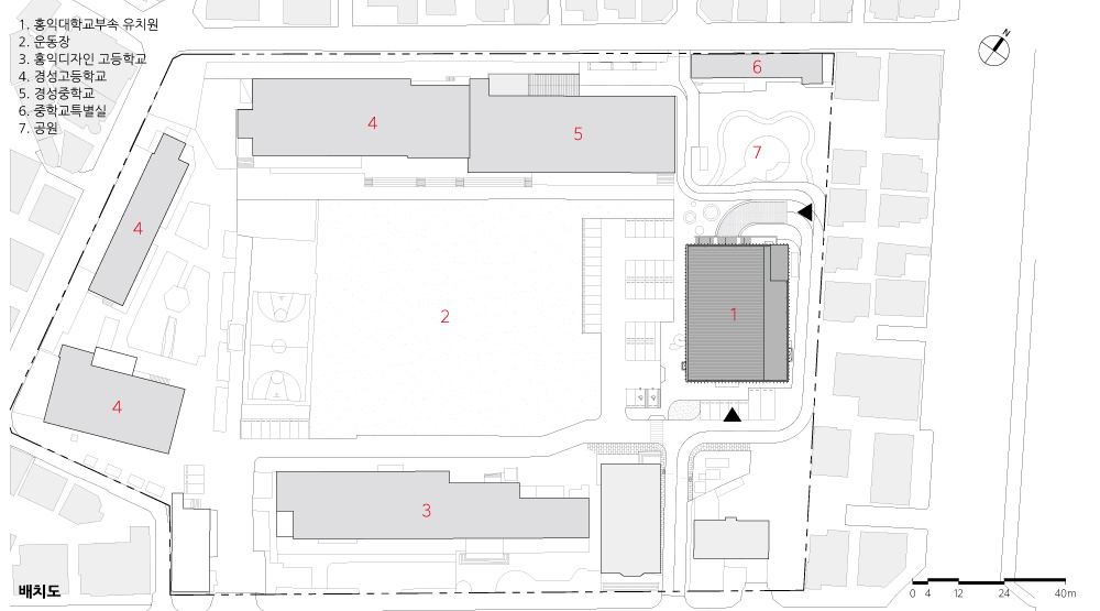
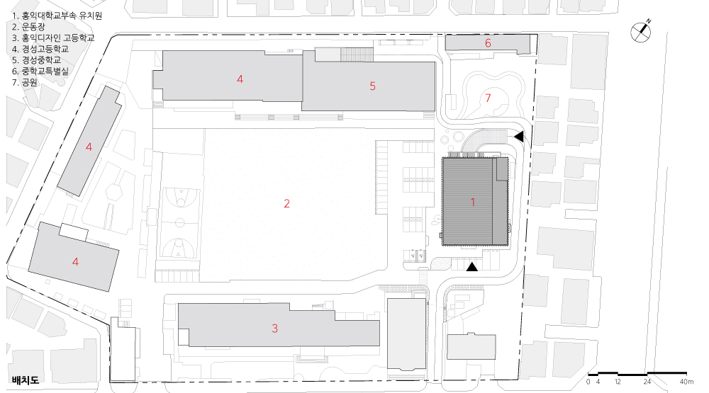
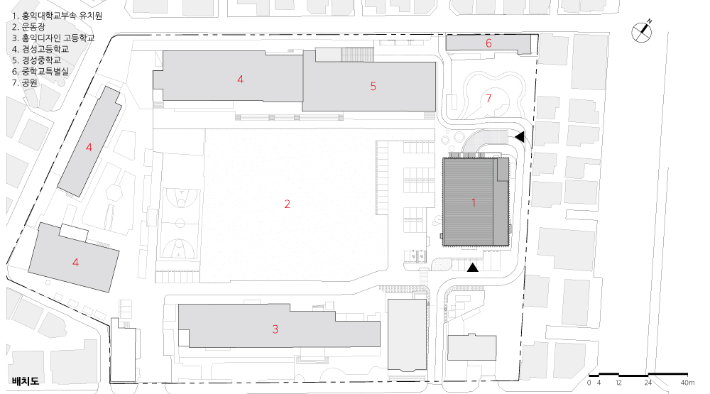
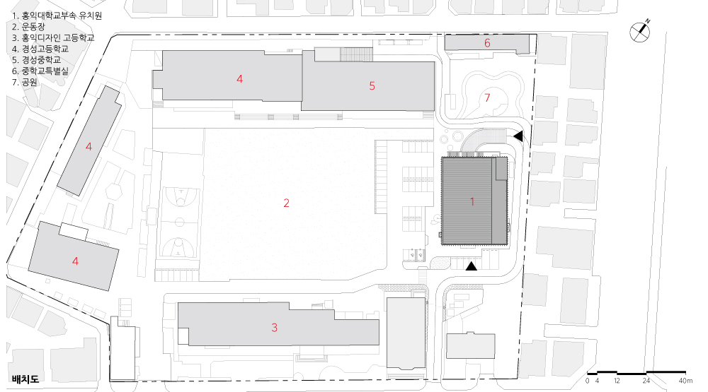
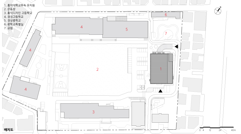
홍익대학교사범대학 부속유치원은 경성 중·고등학교, 그리고 홍익디자인 고등학교와 캠퍼스를 공유하고 있다. 기존 건축물과 조화롭고 협소한 대지를 고려해 효율적인 직사각형의 매스를 계획했다. 신축 건축물을 통해 캠퍼스에 활기를 더해주고 유치원 학생들의 호기심을 자극하는 공간구현을 위해 동그라미 형태를 평면, 외관, 조명, 사이니지 등 전체 설계에 다양하게 적용하여 계획했다.
동그라미 유치원, 배움이 놀이되고, 놀이가 배움이 된다
유치원 교육 연령층인 3~5세 어린이는 형태, 색상 및 공간의 속성에 대한 감수성이 높은 만큼, 설계도 이러한 요소들로 상상력과 창조력을 성장시킬 수 있는 물리적 환경을 조성하는데 주안점을 두었다.
1. 형태 : 가급적 추상적이고 기본적인 형태(동그라미)와 그래픽을 이용한 입면 디자인으로 인지력 개발(cognitive development)
2. 색상 : 원색보다는 저채도(low color purity)의 파스텔톤 색상을 사용해 정서적 안정감과 함께 시각적 환경 조성
3. 공간감(feeling of space) : 다양한 공간을 입체적으로 체험하게 하여 공간감을 익히도록 하고, 다용도의 공유 공간 경험으로 사회적 활동을 고양
동그라미 평면, 아이들의 창의력을 자극한다
상부 체육관을 고려한 직사각형의 효율적인 유치원 매싱과 대조되는 동그라미 내부 공간은 일반적인 중복도 교실 배치를 탈피해 형태와 구조의 효율성을 유지하면서 곡면을 사용한 실내공간을 구성했다. 반원형 교실의 사이 공간으로 구성된 공용공간은 복도 기능 외에 놀이공간, 만남의 공간 등으로 활용될 수 있으며, 곡면이 주는 형상은 아이들의 창의력과 호기심을 자극한다.
동그라미 입면, 안에서도 밖에서도 궁금하다
아이들의 눈높이에 맞춘 다양한 크기의 동그라미 창문을 외벽과 실내에 배치해 호기심을 자극하는 유치원을 계획했다. 다양한 높이로 배치된 창문을 통해 아이들에게 시각적인 연계성, 리듬감, 앉아서 보는 투시적 경관 등의 뜻밖의 경험을 제공한다. 창호의 다양한 색채는 아이들에게 또 다른 흥미를 불러일으킨다.
동그라미 교실, 통합적 사고를 유도하는 열린 교실
통상적인 교실구성에서 한걸음 나아가 교실과 화장실, 그리고 특화교실이 서로 연계되어 함께 진행될 수 있는 열린교실 형태로 구성했다. 사각형태의 교실이 주는 단조로움에서 벗어나 다양한 형태의 교실 배치를 통해 독창적이고 통합적인 사고를 유도할 수 있게 곡면으로 평면계획을 했으며, 종래의 화장실과 다른 개방된 화장실을 통해 아이들에게 친근한 위생교육이 가능하도록 도와준다.



The Hongik University Kindergarten shares its campus with Kyungsung Middle and High Schools as well as Hongik Design High School. With due consideration to complementing the existing buildings and optimizing the available space, an efficient rectangular form was planned. The circular motif was thoughtfully integrated into the overall design, encompassing aspects such as layout, exterior features, lighting, signage, and more, to invigorate the campus atmosphere and foster environments that inspire the inquisitiveness of kindergarten students.
Circle Kindergaten: Where Learning Becomes Play and Play Becomes Learning
The age group of 3 to 5, which encompasses kindergarten education, is characterized by children’s heightened sensitivity to the attributes of form, color, and space. Therefore, the design places primary emphasis on creating a physical environment that nurtures imagination and creativity through these elements.
Form: Abstract and basic shapes, such as circles, are utilized to develop cognitive skills.
Color: Low color purity, such as pastel tones, is favored over primary colors in the project to create a visually soothing environment for emotional stability.
Space: The interior space promotes various spatial experiences to familiarize children with spatial perception, while multipurpose spaces encourage social interaction
Circular Plan: Stimulates Creativity
The Kindergarten, designed with a rectangular form to accommodate the upper gymnasium, incorporates a circular interior that contrasts with its massing form. Departing from the typical classroom arrangement, it employs curves to shape the indoor space. Common areas, delineated by spaces between half-circle-shaped classrooms, serve not only as corridors but also as play areas and meeting spaces. This design approach stimulates children’s creativity and curiosity with its distinctive shapes.
Circular Façade: Activates Curiosity
Circular windows of diverse sizes positioned at children’s eye level spark curiosity and playfulness. These windows, meticulously arranged at varying heights on the exterior façade and interior partition walls, offer children unexpected experiences, including visual coherence, rhythmic patterns, and diverse perspectives. Additionally, the array of colors applied to the window frames introduces another layer of intrigue for the children.
Circular Classroom: Fostering Inclusivity and Integrative Thinking
Moving beyond the confines of traditional classroom layouts, The Hongik University Kindergarten embraces an open classroom environment where classrooms, restrooms, and specialized learning spaces are seamlessly interconnected, fostering collaborative learning experiences. Departing from the monotony of rectangular classrooms, curved floor plans promote diverse classroom arrangements, stimulating creative and integrated thinking among students. Additionally, the introduction of open restrooms encourages a more friendly approach to hygiene education for children.









| 홍익대학교 사범대학 부속유치원 설계자 | 심재호 _ 제이파트너스 건축사사무소(주) 공동설계 | 배정현 폴(AIA) 건축주 | 학교법인홍익학원 감리자 | 제이파트너스 건축사사무소(주) 시공사 | 일광E&C(주) 설계팀 | 심은지, 변현호, 류지형, 백제현 설계의도 구현 | 제이파트너스 건축사사무소(주) 대지위치 | 서울특별시 마포구 성미산로 111 주요용도 | 교육연구시설(유치원, 학교) 대지면적 | 26,466.40㎡ 건축면적 | 6,729.63㎡ (유치원 : 965.89㎡) 연면적 | 27,587.93㎡ (유치원 : 3,408.54㎡) 건폐율 | 25.42% 용적률 | 89.62% 규모 | 10동, B1F - 5F (유치원 : B1F - 3F) 구조 | 철골철근콘크리트조 외부마감재 | 백색 스타코플렉스, 진한회색 메탈, 백색 Sky ZIP 시스템 패널, 로이복층유리 및 5가지 칼라 페인트 내부마감재 | 온수판넬히팅위 비닐계 데코타일(바닥), 석고보드위 친환경 수성페인트(벽체), 단풍나무후로링(3층체육관바닥) 설계기간 | 2019. 10 – 2021. 10 공사기간 | 2022. 06 - 2023. 12 사진 | 홍성준 _ 디자인예감 구조분야 | (주)단구조 기계설비·소방분야 | (주)우원엠앤이 전기분야 | (주)협인전기설계 |
Expansion of Kindergarten Affiliated with Hongik University Architect | Shim, Jaeho _ J Partners & Architects Collaborative design | Jung Hyun Paul Bae _ AIA Client | Honik University Supervisor | J Partners & Architects Construction | IL KWANG E&C CO., Ltd. Project team | Shim, Eunji / Byun, Hyunho / Ryoo, Jihyung / Baek, Jehyeon Design intention realization | J Partners & Architects Location | 111 Seongmisan-ro, Mapo-gu, Seoul Korea Program | Educational Research Facility (Kindergarten, School) Site area | 26,466.40㎡ Building area | 6,729.63㎡ (Kindergarten: 965.89㎡) Gross floor area | 27,587.93㎡ (Kindergarten: 3,408.54㎡) Building to land ratio | 25.42% Floor area ratio | 89.62% Building scope | 10 Buildings, B1F - 5F (Kindergarten : B1F - 3F) Structure | SRC Exterior finishing | White StuccoFlex, Dark Gray Metal, White Sky ZIP System Panels, Double Low-E Glazing, 5 Color Paint Palette Interior finishing | Vinyl Deco tile over floor heating(floor), Eco-friendly Water-based Paint over Gypsum Board (partition wall), Maple wood flooring (Gymnasium) Design period | Oct. 2019 – Oct. 2021 Construction period | Jun. 2022 - Dec. 2023 Photograph | Hong, Sung Joon Structural engineer | Dahn Structure Engineers Mechanical · Fire Protection engineer | WooWon MNE Inc. Electrical engineer | HYEOB-IN CO., LTD. |
'회원작품 | Projects > Education' 카테고리의 다른 글
| 시립 장지하나어린이집 2024.12 (0) | 2024.12.31 |
|---|---|
| 용남고등학교 2024.12 (0) | 2024.12.31 |
| 상록청소년수련관 AR/VR 체험관 2024.2 (0) | 2024.03.08 |
| 산본도서관 증축 및 리모델링 공사 2023.7 (0) | 2023.07.24 |
| 회원첫작품_상지대학교 정문 조형물 2023.6 (0) | 2023.06.22 |
