2023. 7. 24. 12:35ㆍ회원작품 | Projects/Education
Expansion and remodeling of Sanbon Library

군포시 산본도서관은 1994년 준공된 건물로 1기 신도시 중 하나인 산본신도시가 개발될 때 LH가 지어서 기부채납한 도서관이다. 산본신도시의 중심거점이 되는 중앙공원 한쪽 모퉁이에 자리 잡고 있어 접근성이 좋은 덕분에, 별도의 중앙도서관이 있음에도 불구하고 군포시에 있는 6개 도서관 중 이용률이 가장 높으며, 그만큼 밀도가 높고 늘 이용자로 인해 복잡한 상황이었다. 더군다나 구조적 이유로 1층에만 서가가 있고 2층은 학습열람실로만 쓰이고 있어 제대로 된 도서관의 기능을 다하지 못하고 있었다.
이에 도서관에서는 변화된 서비스를 제공하고 시민들이 쾌적하게 도서관을 이용할 수 있도록 타당성조사를 실시했고, 그 결과 증축 및 리모델링이라는 사업방식을 채택했다. 철거 후 신축 또는 확장 이전이라는 방법을 선택하지 않고 증축 및 리모델링이라는 방법을 채택한 이유는 경제적인 이유와 그나마 짧은 사업 기간도 이유였지만, 건축물이 채 30년도 지나지 않아 산업폐기물로 양산되는 문제점의 대안으로서 환경에 대한 책임의식이 낳은 결과물이라고 할 수 있다. 이러한 취지에 맞게 기존 건물의 구조를 최대한 살리면서 새로운 공간을 덧붙여 도서관의 기능을 새롭게 재탄생시킬 방안을 고려해 보았다.
먼저 무엇을 남길 것인지 고민했다. 산본도서관은 ‘H’자 평면으로 도서관의 기능에는 적합하지 않은 평면구조이나, 코너 부분에 반원형의 매스와 공원 쪽의 정면성을 지닌 파사드 등 몇 가지 아이덴티티가 있는 건축적 요소를 갖고 있었다. 이를 몇 가지 살려서 새로운 공간 안에 담아 보았다.
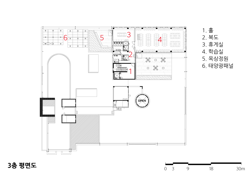
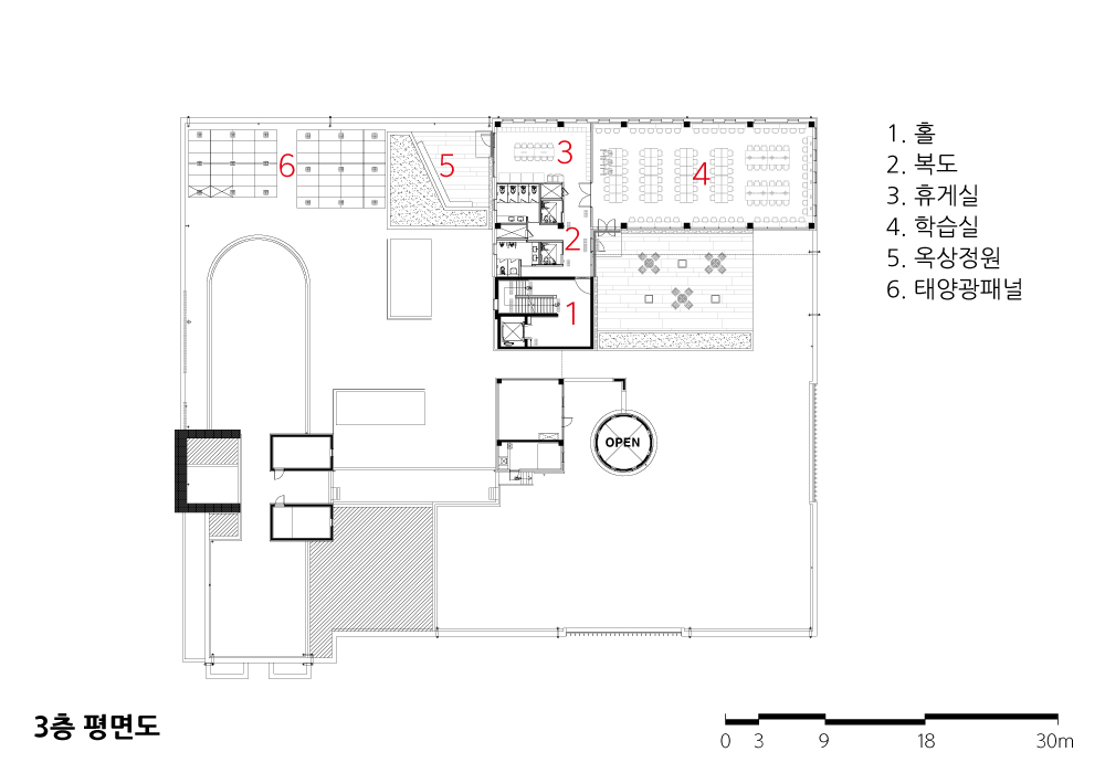
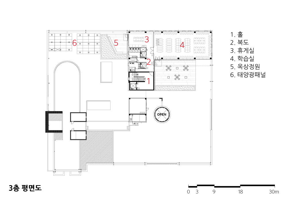
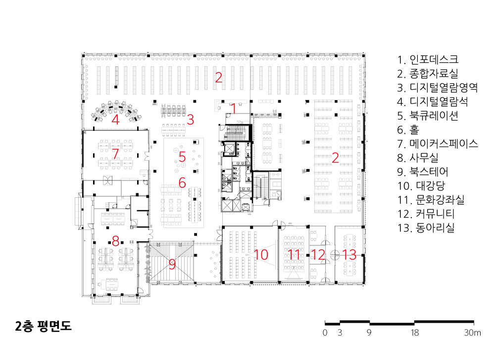
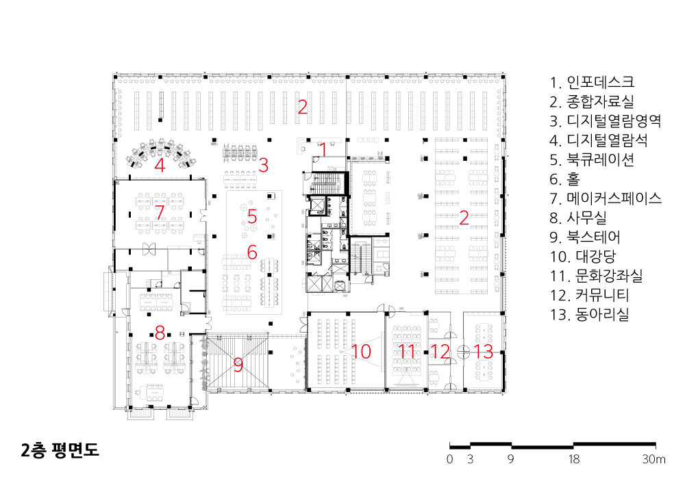
① 코너의 반원형 매스 _ 증축되는 부분의 내부로 들어오게 되면서 멀티미디어 열람실의 구획벽으로 존치시켰다. 외장재를 벗어버린 콘크리트 구조체를 그대로 노출시켜 새로운 공간 안에 옛 구조체가 다시 살아나 새로운 역할을 할 수 있게 했다.
② 천창 _ 기존에 있던 원형의 천창을 언젠가부터 내부에서 막아서 그 모습을 알 수는 없었지만, 천창의 구조물은 옥상에 커다랗게 노출되어 주변의 고층 건물에서 보면 도서관의 형태적 아이덴티티를 부여하고 있었다. 이를 되살려 실버도서관을 천창 인근에 배치해 밝고 개방감 있는 공간을 연출했다. 이는 기존 구조물의 낮은 층고를 보완하는 역할을 하고 있다.
③ 붉은 조적벽 _ 산본도서관은 1층은 화강석, 2층은 붉은 벽돌로 마감돼 있었다. 금번 리모델링에 1층의 화강석은 대부분 존치되었으나, 2층의 조적부분은 내진보강 등의 사유로 대부분 철거되었다. 다행히 증축되어 북스테어로 조성되는 부분에 기존의 외벽 부분이 내부로 들어오게 되는 부분이 있어서 조적벽을 그대로 존치하여 새롭게 만들어진 북스테어와 예전의 조적벽이 조화를 이룰 수 있게 했다.
다음으로 어떤 공간을 새로이 만들 것인지 고민했다. 요즘의 도서관은 학습열람실이 아닌 책과 함께 여가를 보내며 커뮤니티를 활성화할 수 있는 도서관을 추구하고 있다. 이에 맞춰 융합공간, 순환공간, 개방공간을 만들고자 했다.
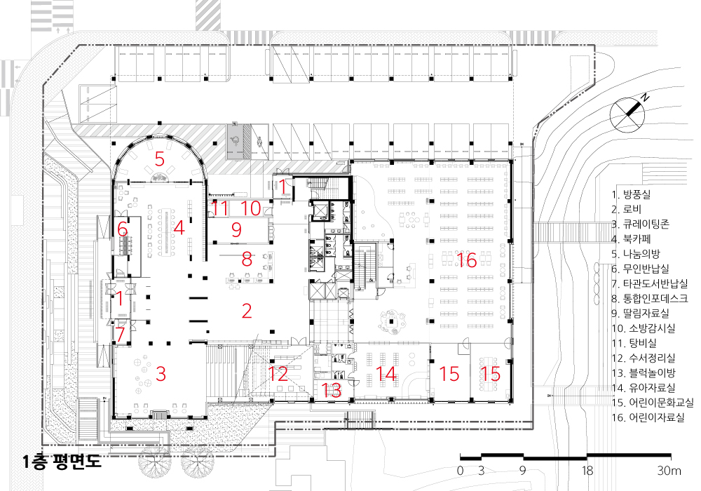
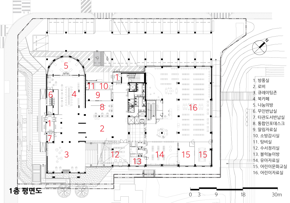
① 주출입구 _ 기존의 주출입구는 후면에 있어 접근성이 떨어지기에 대로변의 버스정거장 인근으로 주출입구를 변경하면서 차폐식재처럼 되어있던 조경을 걷어내고 광장형 마당으로 조성하여 주출입구의 접근성, 인지성, 개방감을 높였다.
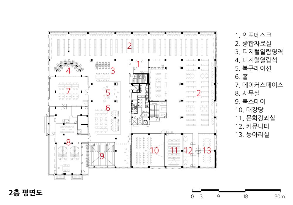
② 북카페 _ 주출입구를 들어서면 종합안내데스크가 있고, 그에 앞서 넓게 자리 잡은 북카페를 배치했다. 이 공간은 산본도서관이 가지고 있는 ‘전통’이라는 콘셉트를 살려 한옥 콘셉트로 어린이도서관을 조성해 사용하던 곳으로, 그 디자인 요소를 일부 가져와 새롭게 현대한옥의 느낌을 부여했다. 입구 주변에 위치한 넓은 북카페는 편안하게 책을 접하며 자연스럽게 문화를 만들어 갈 수 있는 공간이 될 것이다.
③ 북스테어 _ 공원 쪽에 있던 부출입구 부분을 증축하면서 1층과 2층을 연계해 주는 북스테어를 조성해 다양한 활동과 교류가 이뤄질 수 있는 공간을 만들었다. 이 공간은 새로움과 옛것의 관계를 이어주고 전체 도서관의 순환이 이루어질 수 있게 해주는 공간이다.
이 밖에도 많은 부분들이 각각의 의미가 있으며, 현장 여건과 공사비 한계 등에 의해 실현되지 못한 부분들에 대한 아쉬움도 많다. 이 리모델링 프로젝트는 많은 고민과 시행착오를 겪어야 하는 일이며, 시공 중에도 끊임없이 현장을 확인하고 미처 예측하지 못했던 부분에 대해 끊임없이 고민하며 진행했던 프로젝트이다. 30년이 다 된 건축물을 새롭게 소생시키는 일은 신축의 2~3배의 에너지가 소모되는 일임에도 불구하고, 건축사의 보람과 자긍심을 느낄 수 있게 해 준 소중한 시간이었다. 이러한 경험을 할 수 있었던 것은 건축사로서 행운이 아니었나 싶다.



The Sanbon Library in Gunpo City is a building that was completed in 1994. It was constructed by the Korea Land and Housing Corporation (LH) as a donated library when the Sanbon New Town, one of the first new towns in the area, was developed. It is situated in one corner of the central park, which serves as the focal point of the Sanbon New Town. Thanks to its excellent accessibility, it has the highest utilization rate among the six libraries in Gunpo City, despite the presence of a separate central library. The library often experiences high density and complexity due to the constant influx of visitors. Furthermore, due to structural reasons, the library only had bookshelves on the first floor, while the second floor was used solely as a study and reading area, which limited its ability to fully function as a proper library.
In response to these issues, the library conducted a feasibility study to provide improved services and ensure a pleasant experience for the citizens. As a result, they chose to adopt an expansion and remodeling approach instead of demolishing the existing structure and either constructing a new building or carrying out a complete renovation. The decision was influenced by economic factors and the relatively short project duration. Additionally, it was driven by a sense of responsibility towards the environment, considering that the building was not even 30 years old and demolishing it would contribute to industrial waste. In line with this approach, they explored ways to preserve the existing structure as much as possible while adding new spaces to revitalize the library's functionality.
The first step was to determine what elements to preserve. The Sanbon Library had a floor plan in the shape of an 'H', which was not ideal for a library's functionality. However, it possessed several architectural elements that gave it unique identities, such as the curved mass at the corner and a facade with a sense of grandeur facing the park. These elements were carefully considered and integrated into the design of the new spaces.
① Curved Mass at the Corner: The expanding section of the library incorporated the curved mass as part of the partition wall for the multimedia reading room. By leaving the exposed concrete structure untouched, the old structure revived within the new space and took on a new role.
② Skylight: The original circular skylight had been covered from the inside for some time, obscuring its appearance. However, the structural elements of the skylight were prominently exposed on the rooftop, contributing to the library's architectural identity when viewed from surrounding high rise buildings. This feature was revived by placing the Silver Library near the skylight, creating a bright and open space. It also compensated for the low ceiling height of the existing structure.
③ Red Brick Wall: The Sanbon Library had a granite finish on the first floor and a red brick finish on the second floor. During the remodeling process, most of the granite finish on the first floor was preserved, while a significant portion of the brick wall on the second floor was removed due to seismic reinforcement reasons. Fortunately, in the area where the expansion and the new book staircase were created, a part of the existing exterior wall remained, allowing the red brick wall to be preserved. This created a harmonious blend between the newly constructed book staircase and the existing brick wall.
Next, we contemplated on creating new spaces that align with the current trend of libraries aiming to be more than just study areas. Instead, they strive to become libraries where people can enjoy leisure activities, engage in community interactions, and foster a sense of community. In line with this vision, we aimed to create fusion spaces, circulation spaces, and open spaces.
① Main Entrance: The existing main entrance was located at the rear, resulting in poor accessibility. To improve the accessibility, visibility, and openness of the entrance, we relocated it near the main road, adjacent to the bus stop. We removed the existing landscaping that acted as a barrier and transformed it into a plaza like courtyard, enhancing the overall accessibility, perception, and openness of the main entrance.
② Book Cafe: Upon entering the main entrance, there is a comprehensive information desk, followed by a spacious book cafe. This space incorporates the concept of "tradition" that the Sanbon Library possesses and creates a children's library with a modern Hanok (traditional Korean house) concept. We incorporated design elements from traditional Hanok architecture to provide a sense of contemporary Hanok ambiance. The expansive book cafe located near the entrance will serve as a comfortable space for reading, fostering a natural cultural environment.
③ Book Staircase: By expanding the area near the park side, which used to be the secondary entrance, we created a book staircase that connects the first and second floors. This space facilitates various activities and interactions, allowing for seamless circulation throughout the entire library. It serves as a transitional space that bridges the relationship between the new and the old, enabling the flow and exchange within the entire library.
There are many other aspects of the remodeling project that hold significant meaning, and there is a sense of regret regarding the parts that could not be realized due to on site conditions and budget constraints. This remodeling project involved a great deal of contemplation and trial and error. Throughout the construction process, constant site inspections were conducted, and unforeseen challenges were continuously pondered and addressed.
Revitalizing a building that has been standing for 30 years requires nearly two to three times the energy compared to new construction. Despite this, it was a precious time that allowed architects to feel a sense of accomplishment and pride. Experiencing such a journey was perhaps not just luck but a fortunate opportunity as an architect.





| 산본도서관 증축 및 리모델링 공사 설계자 | 김재정 _ (주)건축사사무소다보건축 건축주 | 군포시장 감리자 | (주)무심종합건축사사무소 시공사 | (주)주산종합건설 설계팀 | 안선영, 탁지민, 임정빈, 김예은 설계의도 구현 | (주)건축사사무소다보건축 대지위치 | 경기도 군포시 광정로 96 주요용도 | 교육연구시설(도서관) 대지면적 | 3,914.00㎡ 건축면적 | 2,633.67㎡ 연면적 | 5,448,46㎡ 건폐율 | 6.58% 용적률 | 12.21% 규모 | B1F - 3F 구조 | 철근콘크리트구조+철골구조 외부마감재 | 내진준불연단열일체형 점토타일패널 <(주)이넥스월, 제품번호: 유니월 UBP-T101C> 내부마감재 | LVT타일<유앤어스, 제품번호 ELT 49602, UNL 5563> 설계기간 | 2020. 09 - 2022. 12 공사기간 | 2021. 11 - 2023. 03 사진 | 채수옥 전문기술협력 - 구조분야 : (주)한국방재기술 - 기계설비분야 : 주식회사 이건엔지니어링 - 전기분야 : (주)한국전기설계감리기술단 - 소방분야 : (주)한국전기설계감리기술단 |
Expansion and remodeling of Sanbon Library Architect | Kim, Jaejung _ Davo Architects Group Co., Ltd Client | Gunpo Mayor Supervisor | Moosim Architects & Engineers Co., Ltd Construction | Jusan Construction Co., Ltd. Project team | An, Sunyoung / Tak, Jimin / Lim, Jungbin / Kim, Yeeun Design intention realization | Davo Architects Group Co., Ltd Location | 96, Gwangjeong-ro, Gunpo-si, Gyeonggi-do, Korea Program | Educational research facilities(Library) Site area | 3,914.00㎡ Building area | 2,633.67㎡ Gross floor area | 5,448,46㎡ Building to land ratio | 6.58% Floor area ratio | 12.21% Building scope | B1F - 3F Structure | RC + Steel structural Exterior finishing | IP Panel Interior finishing | LVT Tile Design period | 2020. 09 - 2022. 12 Construction period | 2021. 11 - 2023. 03 Photograph | Chae, Suok Structural engineer | Korea Disaster Prevention Technology Mechanical engineer | Leegun Engineering Co., Ltd Electrical engineer | Korea Elec, Design Super, Engineering Co., Ltd Fire engineer | Korea Elec, Design Super, Engineering Co., Ltd |
'회원작품 | Projects > Education' 카테고리의 다른 글
| 홍익대학교 사범대학 부속유치원 2024.5 (0) | 2024.05.31 |
|---|---|
| 상록청소년수련관 AR/VR 체험관 2024.2 (0) | 2024.03.08 |
| 회원첫작품_상지대학교 정문 조형물 2023.6 (0) | 2023.06.22 |
| 서대문구 육아복합지원센터 / 가재울 어린이집 2021.11 (0) | 2023.02.13 |
| 메리모나크 마리나클럽 풀빌라 2021.10 (0) | 2023.02.10 |
