2024. 12. 31. 10:15ㆍ회원작품 | Projects/Education
Yongnam High School

떠다니는 학교, 용남고등학교
기존 복도형 학교 학생들의 움직임은 수직적이며, 행동반경 또한 예측 가능하고 제한적이다. 공간의 제한은 행동의 제한과 동시에 사고의 제한을 가져온다.
학교건축은 기하학적이고 불규칙적이며, 예상할 수 없고 직접 학생들의 경험을 유도하는 건축물이어야 한다.
교실들을 모두 공중에 띄워 테라스 형태로 펼쳐서, 교육 공간을 수직 상하 체계가 아닌 수평 체계로 만들어 학년, 나이 구별 없는 공간으로 만들고, 그 아래에 고교학점제에 따른 홈베이스의 역할을 담당할 오픈형 도서관을 두었다. 공중교실들과 도서관의 입체적, 유기적 3차원적 연결은 학생들의 호기심과 창의성을 최대한 이끌어낼 것이다.
용남고등학교, ‘떠있는 학교’는 공간을 예측할 수 없고 제한을 두지 않는다. 학생들의 사고를 자극하며 확장시킨다.
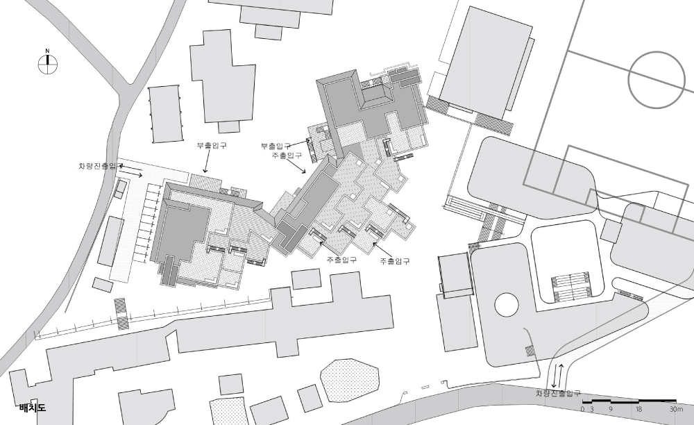
교육청에서 제공한 학교건축의 실별면적표를 기준으로 하다 보면, 공유면적이 35퍼센트로 일반학교의 40퍼센트보다도 적었고, 고교학점제라는 새로운 교육 시스템 하에서 학생들의 홈베이스 역할을 하고 학교의 중심이 될 도서관의 초기에 주어진 면적이 전체 연면적의 1/10로 너무 협소해 설계에 많은 어려움이 있었다. 아마도 이러한 점들은 지금 진행되고 있는 모든 교육부의 그린 스마트 미래학교 설계의 공통된 문제점이라고 생각된다. 이러한 문제점을 깊이 파고들어, 복도와 같은 공유면적을 도서관으로 활용한다는 아이디어에서 설계를 시작하게 됐다.
또한 기존 용남고등학교가 용남중학교보다 4.2미터 높은 곳에 옹벽으로 완전히 단절되어 자리 잡고 있어서, 옹벽을 철거하고 중학교에서 고등학교로 올라가는 동선을 좀 더 자연스럽게 하고, 중학교와 고등학교가 만나는 지점에 학교 전체의 구심점이 될 중앙광장을 두어 학생, 교사, 주민들과의 만남의 자리가 될 수 있도록 단차를 자연스럽게 극복할 ‘테라스 형태’의 교실과 강당을 제안했다.
교실 공간의 평면구성에서는, 단순히 중복도나 편복도로 반복되는 교실들을 배치하기보다 즉흥적이고, 변화하는, 예측불허의 배치를 선택해 학생들이 스스로 호기심과 창의력을 발휘해 교실 공간을 탐험하도록 했다. 특히 고교학점제 시행 때는 과목별로 수강 인원과 수업 방식 등이 달라 다양한 교실이 필요하기 때문에, 이동식 가벽(무빙월)과 접이식 문(폴딩도어) 설치로 필요에 따라 교실 크기를 늘리거나 줄일 수 있도록 했다. 또한 모든 교실에 전자 칠판을 설치했으며, 무선 통신과 쌍방향 수업이 가능하도록 했다. 또한 학교 건축물의 정면과 후면이 서로 완전히 다른 느낌을 주도록 설계했다. 학생들이 매일 비밀의 문을 들어가서 다른 세계로 나오는 탐험가와 같은 경험을 하도록 유도했다.
기존 중복도, 편복도형의 학교에서 학생들의 움직임은 수직적이며 행동반경 또한 예측 가능하고 제한적이다. 공간에 의한 행동의 제한은 사고의 제한을 가져온다. 그에 반해 용남고등학교, ‘Floating School(떠다니는 학교)’은 기하학적이고 불규칙적이며, 예상할 수 없고 직접적인 경험을 유도하는 공간의 변화, 확장에 최적화된 건축물이다. 이는 학생들의 변화와 도전에도 큰 영향을 줄 것이라고 생각한다.




Floating School, Yongnam High School
The movement of students in existing hallway schools is vertical, and their action radius is also predictable and limited. Limitations in space lead to limitations in behavior and, at the same time, limitations in thinking.
Accordingly, the school architecture pursued must be geometric, irregular, unpredictable, and directly induce student experience.
By floating all the classrooms in the air and spreading them out in the form of a terrace, the educational space was created in a horizontal system rather than a vertical system, creating a space without distinction between grades and ages. Below it, an open library was placed to serve as a home base according to the high school credit system. The three-dimensional, organic, three-dimensional connection between public classrooms and libraries will bring out students’ curiosity and creativity to the fullest.
Yongnam High School, a ‘floating school’, has unpredictable and unrestricted space. Stimulates and expands students’ thinking.
Based on the floor area table of school buildings provided by the Office of Education, the shared area was 35%, which was less than 40% of regular schools, and the library, which would serve as the home base for students and be the center of the school under the new education system called the high school credit system, was Initially, the area given was too small, only 1/10 of the total floor area, so there were many difficulties in design. I think these are probably common problems in all of the Ministry of Education’s green smart future school designs currently in progress. We delved deeply into these problems and started with the idea of using shared areas such as hallways as libraries.
In addition, the existing Yongnam High School is located 4.2 meters higher than Yongnam Middle School, completely cut off by a retaining wall, so the retaining wall was demolished to make the flow from the middle school to the high school more natural, and the central point of the entire school was established at the point where the middle school and high school meet. In order to create a central plaza that would serve as a meeting place for students, teachers, and residents, we proposed a ‘terrace-shaped’ classroom and auditorium that would naturally overcome the level difference.
In the plan configuration of the classroom space, rather than simply arranging repetitive classrooms with redundancy or overlap, we chose an improvised, changing, and unpredictable arrangement, allowing students to explore the classroom space by exercising their curiosity and creativity. In particular, when the high school credit system is implemented, various classrooms are needed due to the different number of students and teaching methods for each subject, so movable walls (moving walls) and folding doors (folding doors) were installed to allow the classroom size to be increased or decreased as needed. Additionally, electronic whiteboards were installed in all classrooms, and wireless communication and interactive classes were made possible. And the front and back of the school building were designed to give a completely different feel. Students were encouraged to experience the experience of explorers entering a secret door every day and emerging into another world.
In existing hallway-type schools, students’ movements are vertical and their action radius is also predictable and limited. Restrictions on behavior due to space lead to limitations on thinking. In contrast, Yongnam High School, Floating School, is a geometric and irregular building that is unpredictable, induces direct experience, and is optimized for change and expansion of space. I think this will have a big impact on the changes and challenges of students.



심사평
주어진 예산을 바탕으로 테라스형식의 공간 적층구법을 활용해 4.2미터 높이의 단차 옹벽을 극복하고 주변 건축물과 조화를 이루며 창의적인 체험을 할 수 있는 다양한 공간을 연출해 낸 건축사의 창의력과 집요함, 그리고 일반적이지 않아 생경했을 안을 수용하고 진행한 발주처의 믿음과 의지로 탄생한 <용남고등학교>에 박수를 보낸다. 다소 정리되지 않은 테라스 공간과 설비들. 주출입구 공간의 균형 등에 아쉬움은 있으나, 주 사용자인 학생들과 교사의 인터뷰를 통해 지역 학생들에게 호감을 주는 공간으로 높은 평을 받고 있고 진학 지원율의 증가를 통해 그 성과를 입증하고 있다는 점 등에서 충분히 매력적인 공간으로 사용되고 있음을 알 수 있었다. 사람은 건축을 만들고 건축은 사람을 만든다는 윈스턴 처칠의 이 문장으로, 혈기 왕성한 학창 시절을 친구들과 함께 경험한 이 공간이 오래도록 공유할 추억되고 창의적인 사고에 바탕이 되길 바라며 심사평을 정리해 본다.
Commentary
We applaud Yongnam High School, a project born from the architect’s creativity and persistence in utilizing terrace-style spatial stacking techniques to overcome a 4.2-meter-high retaining wall, harmonizing with surrounding buildings and creating diverse spaces for creative experiences. This project also reflects the trust and determination of the client, who embraced and advanced an unconventional and initially unfamiliar proposal. While there are some drawbacks, such as the somewhat unorganized terrace spaces and the balance of the main entrance area, interviews with students and teachers—the primary users—indicate that the space is highly regarded among local students. The increased application rates for further education attest to its success, demonstrating that the space is indeed serving as an engaging and attractive environment. I conclude this review with Winston Churchill’s words, “We shape our buildings; thereafter, they shape us.” It is my hope that this space, where vibrant school days are spent with friends, will be remembered for years to come, serving as a foundation for lasting memories and inspiring creative thinking.


| 용남고등학교 설계자 | 박기우(AIA·RIBA) 박기우비정형건축설계사무소 / 민정기 _ (주)가이 건축사사무소 시공자 | (주)담소종합건설 건축주 | 용남학원 감리자 | (주)제이엠디엔니어링건축사사무소 설계팀 | 변상현, 구창림, 이하준, 이성태 설계의도 구현 | 박기우비정형건축설계연구소 대지위치 | 경상남도 사천시 용현면 선진길 24 주요용도 | 교육연구시설 대지면적 | 33,455.00㎡ 건축면적 | 2,963.06㎡ 연면적 | 5,542.13㎡ 건폐율 | 22.01% 용적률 | 43.62% 규모 | B1 - 4F 구조 | 철골조 외부마감재 | 징크판넬, 알루미늄 복합패널, 폴리카보네이트 내부마감재 | SGP판넬 설계기간 | 2020. 10 - 2021. 12 공사기간 | 2022. 02 - 2023. 07 사진 | 이성태 구조분야 | 이든구조컨설턴트 기계설비분야 | 상원엔지니어링 전기·소방분야 | 대한엔지니어링 |
Yongnam High School Architect | Park, Kiwoo(AIA·RIBA) _ Intelligent Formation / Min, Jeonggi _ GAI Archi. Co. Ltd. Construction | Damso General Construction Client | Yongnam Academy Supervisor | JMD Engineering Architect Office Project team | Byun, Sanghyun / Goo, Changrim / Lee, Hajun / Lee, Seongtae Design intention realization | Intelligent Formation Location | 24, Seonjin-gil, Yonghyeon-myeon, Sacheon-si, Gyeongsangnam-do, Korea Program | Educational research facilities Site area | 33,455.00㎡ Building area | 2,963.06㎡ Gross floor area | 5,542.13㎡ Building to land ratio | 22.01% Floor area ratio | 43.62% Building scope | B1 - 4F Structure | Steel frame Exterior finishing | Zinc panel, Aluminum composite panel, Polycarbonate Interior finishing | SGP panel Design period | Oct. 2020 - Dec. 2021 Construction period | Feb. 2022 - Jul. 2023 Photograph | Lee, Seongtae Structural engineer | Eden Structure Consultant Mechanical engineer | Sangwon Engineering Electrical·Fire engineer | Daehan Engineering |
'회원작품 | Projects > Education' 카테고리의 다른 글
| 신동초등학교 2025.1 (0) | 2025.01.31 |
|---|---|
| 시립 장지하나어린이집 2024.12 (0) | 2024.12.31 |
| 홍익대학교 사범대학 부속유치원 2024.5 (0) | 2024.05.31 |
| 상록청소년수련관 AR/VR 체험관 2024.2 (0) | 2024.03.08 |
| 산본도서관 증축 및 리모델링 공사 2023.7 (0) | 2023.07.24 |