2024. 9. 30. 10:05ㆍ회원작품 | Projects/Neighborhood Facility
AUTOCRYPT Security Research Center

대지는 삼성동 주거지역 내에 위치한다. 주변을 둘러보면 붉은 벽돌의 연와조 건물들이 모여 있다. 주거 건물들이 모인 골목길 모퉁이에 새롭게 놓일 한 회사의 연구센터가 잘 어우러지기를 바라는 생각에서 설계를 시작했다.
먼저 동네 분위기를 크게 해치지 않으면서 함께 어우러질 수 있도록 같은 재료인 벽돌을 사용하되, 차분한 모노톤으로 차별점을 두었다. 경사진 지형과 최대로 확보한 지하층으로 인해 자연스럽게 기단부가 형성되는데, 가장 먼저 마주하는 건물의 얼굴이 된다. 코너를 따라 흐르듯 배치하고, 메인 벽돌의 색상보다 한층 어두운 톤을 사용하여 분절된 매스들의 중심을 잡아준다. 같은 색상의 디자인 블록으로 중첩된 켜는 방향성을 만들어내 입구성을 높인다.
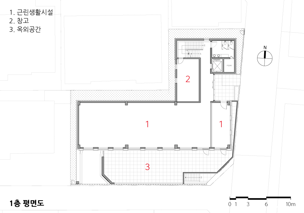
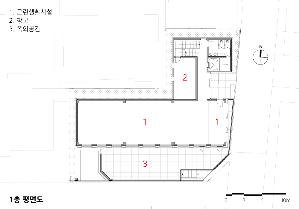
건물은 10미터도 되지 않는 도로를 사이에 두고 주거 공간들과 맞닿아 있다. 이는 창의 비율을 결정하는 데 중요한 요소가 되었다. 프로그램에 따라 크게 매스가 둘로 나뉜다. 규칙적으로 구성된 창은 사무공간 어디에서도 유사한 환경을 만들어내고, 디자인 블록을 활용해 서로의 프라이버시를 지키며 채광은 잃지 않도록 계획했다.
발주처인 아우토크립트는 전기차 보안 소프트웨어 개발 업체이다. 업체 특성상 주차는 프로젝트의 중점 중 하나였다. 주차 관련 요청사항은 다음과 같았다. 첫째, 주차는 모두 지하에, 그리고 최대로 주차할 것. 둘째, 기계식 주차는 하지 않을 것.
계획된 건물은 총 지하 2층, 지상 2층의 규모로, 그중 지하 2개 층을 모두 주차장으로 사용한다. 건물로 진입하는 주도로에서 자연스럽게 기단부를 따라가면 지하 1층 주차장으로 향하는 램프에 도달한다. 주차장 내부에서는 차량용 승강기를 활용해 주차 램프로 손실되는 부분을 줄이고 주차공간을 더 확보했다. 지하는 외부와의 접촉이 적어 환기가 힘들다. 대지의 가파른 경사 덕에 지하 1층임에도 불구하고 외부와 맞닿은 공간이 생겨 디자인 블록을 통해 막지 않고 열어 지하 환경을 보다 낫게 만들고자 했다.
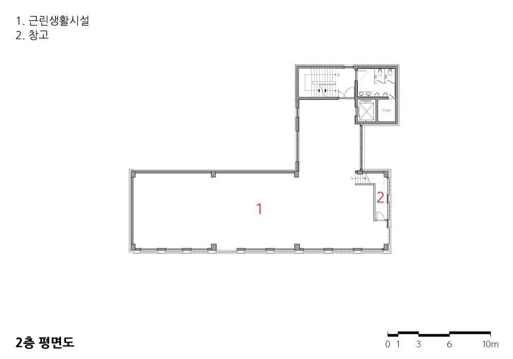
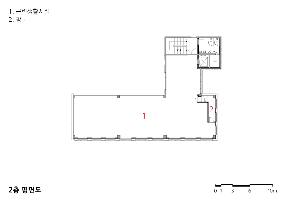
지상층은 직원들을 위한 사무공간이다. 빡빡한 용적률 탓에 부족한 창고나 직원들을 위한 복지 공간은 차량용 승강기의 버려지는 위 공간이나 다락을 활용했다. 그렇게 만들어진 다락은 건물의 매스감을 키워 인지성을 높인다.



The site is located within a residential area in Samseong-dong, surrounded by buildings made of red brick. The design began with the intention of harmonizing a new research center for a company with the existing red brick buildings in the neighborhood, blending in without disrupting the overall atmosphere.
To achieve this, the same material—brick—was used to ensure harmony with the surrounding environment, but with a calm monotone palette to create a distinct identity. The sloping terrain and maximized basement floors naturally formed a plinth, becoming the most prominent feature of the building’s facade. The building’s massing follows the corner, with a darker tone than the main brick color used to anchor the segmented volumes. The layered design blocks in the same color create a directional flow, enhancing the sense of entry.
The building is situated across a road less than 10 meters wide from residential spaces, which significantly influenced the window proportions. The building is divided into two main masses based on its functions. Regularly arranged windows ensure a consistent environment across the office spaces, and the use of design blocks preserves privacy while maintaining ample daylight.
The client, AutoCrypt, is a company specializing in electric vehicle security software. Parking was a critical aspect of the project, with specific requests: first, all parking must be underground with the maximum number of spaces provided, and second, mechanical parking systems were to be avoided. The planned building is two stories above ground and two stories below ground, with both basement levels dedicated to parking. The ramp leading to the underground parking is seamlessly integrated with the plinth, starting from the main road. Inside the parking area, vehicle elevators are used to minimize space loss from ramps and maximize parking capacity. Ventilation can be challenging in underground spaces with limited external exposure, but the steep slope of the site allows for some areas of the first basement level to open up to the outside, which is enhanced using design blocks to improve the underground environment.
The above ground floors are dedicated to office spaces for the staff. Due to tight floor area ratios, additional storage and employee welfare spaces are accommodated in otherwise unused areas, such as above the vehicle elevator shaft or in attics. These attics not only serve functional purposes but also increase the building’s mass, enhancing its visibility.









| 삼성동 AUTOCRYPT 보안연구센터 설계자 | 최대성 _ 바나나 건축사사무소(주) 건축주 | 아우토크립트 주식회사 감리자 | 박진우 _ 건축사사무소 먹줄 시공사 | 기찬종합건설(주) 설계팀 | 손동원, 김하은 설계의도 구현 | 바나나 건축사사무소(주) 대지위치 | 서울특별시 강남구 봉은사로109길 43 주요용도 | 근린생활시설 대지면적 | 539.50㎡ 건축면적 | 269.30㎡ 연면적 | 1,304.38㎡ 건폐율 | 49.91% 용적률 | 98.14% 규모 | B2F - 2F 구조 | 철근콘크리트구조 외부마감재 | 치장벽돌(주식회사두라스텍:S340 도브화이트, 퓨어그레이 / 주.테트리스큐브:Q2다크그레이) 내부마감재 | 노출콘크리트 설계기간 | 2022. 01 - 2022. 11 공사기간 | 2023. 02 – 2024. 04 사진 | 임상협 구조분야 | 시도구조엔지니어링 기계설비·전기·소방분야 | (주)선이엔지 |
AUTOCRYPT Security Research Center Architect | Choi, Daeseong _ banana architecture Supervisor | Park, jinwoo _ Meokjul architecture Construction | Kichan Construction Project team | Son, Dongwon / Kim, Haeun Design intention realization | banana architecture Location | 43, Bongeunsa-ro 109-gil, Gangnam-gu, Seoul, Korea Program | Neighborhood living facilities Site area | 539.50㎡ Building area | 269.30㎡ Gross floor area | 1,304.38㎡ Building to land ratio | 49.91% Floor area ratio | 98.14% Building scope | B2F - 2F Structure | RC Exterior finishing | Brick Interior finishing | Exposed concrete Design period | Jan. 2022 – Nov. 2022 Construction period | Feb. 2023 – Apr. 2024 Photograph | Lim, Sanghyeop Structural engineer | Sido structure eng. Mechanical·Electrical·Fire engineer | Seon Architecture&Engineering |
'회원작품 | Projects > Neighborhood Facility' 카테고리의 다른 글
| 성남 해달집 2024.10 (0) | 2024.10.31 |
|---|---|
| 그레이 청담 2024.9 (0) | 2024.09.30 |
| 백설농부 2024.8 (0) | 2024.08.31 |
| 마야2024 2024.8 (0) | 2024.08.31 |
| 인텍빌딩 2024.8 (0) | 2024.08.31 |
