2024. 10. 31. 10:10ㆍ회원작품 | Projects/Neighborhood Facility
HAEDAL House

대지는 건축주의 할아버지가 단독주택을 지어 3대가 함께 살았던 추억의 자리로, 건축주는 신축 후 가족이 거주하는 동시에 임대수익을 얻고자 했다. 해달집은 지하 1층, 지상 5층 건축물로, 지하 1층은 근린생활시설, 지상 1층은 주차장, 지상 2~5층까지 6세대의 다세대주택으로 계획했다.
복잡하고 과밀한 구도심 주택가에 신축하는 만큼, 새 집이 동네에서 이질적이지 않으면서도 주변을 정리해 줄 수 있기를 바랐다. 이는 외장재의 종류와 색 및 매싱과 파사드 디자인으로 해결했다. 주택가의 오랜 풍경은 빨간 벽돌과 회색 스타코로 이어주었고, 최대한 심플한 볼륨을 구성해 정돈하고 아치 등 포인트로 매시브한 볼륨감을 덜어주었다.
남쪽에 11미터 도로가 있어 채광이 좋은 반면, 정북일조사선에 의해서 북쪽 면이 올라갈수록 점점 줄어드는 형태이다. 각 층의 전면에 위치한 4세대를 3.5베이로 거실과 침실을 남향에 두어 아파트의 장점을 반영한 밝은 평면을 계획했다. 후면의 2세대는 복층형과 스튜디오형으로 충분한 채광과 조망을 가질 수 있도록 남서측 방향으로 계획하고, 후면 테라스 쪽으로 전면창을 만들어 테라스를 적극적으로 활용할 수 있도록 했다. 전 세대가 조금씩 다른 형태이지만, 공사의 효율을 고려하며 특색 있게 계획했다.
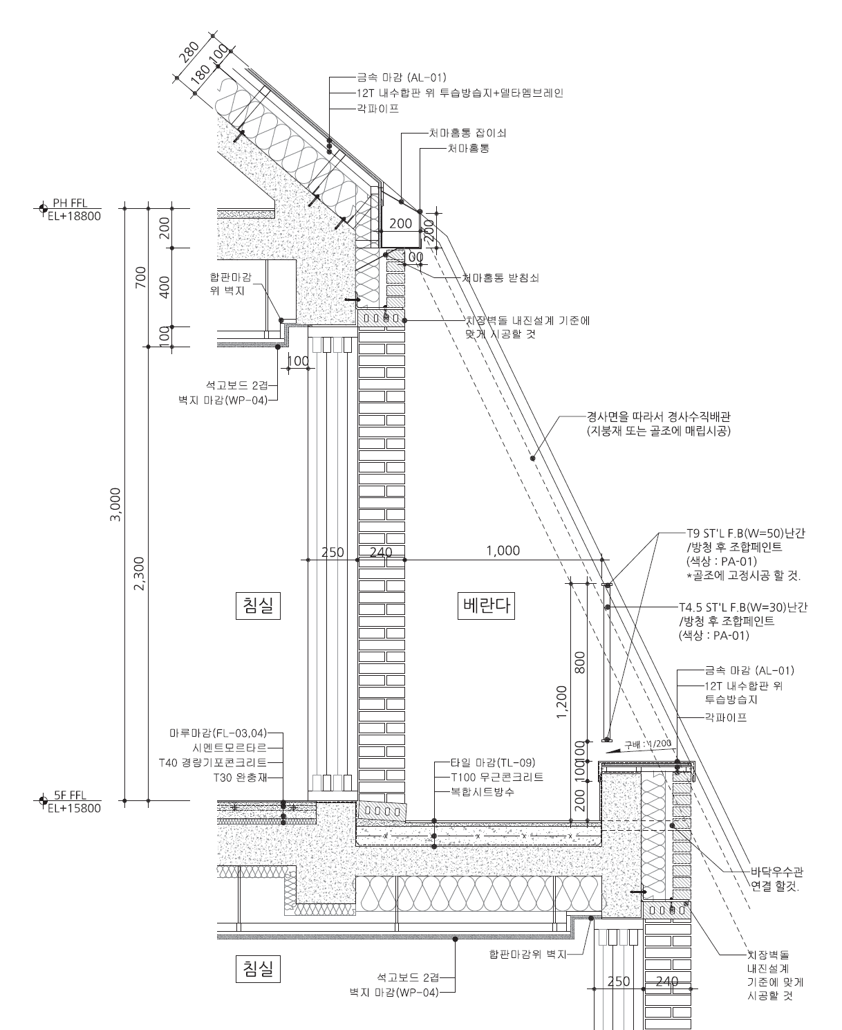
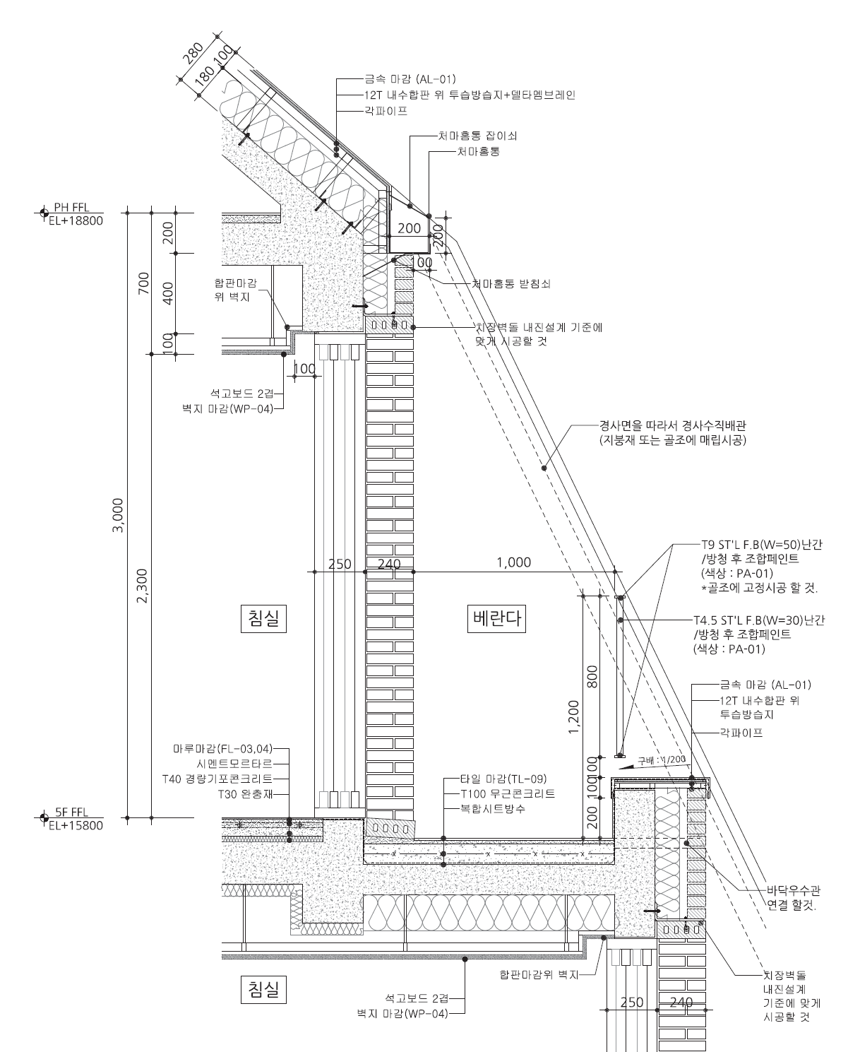
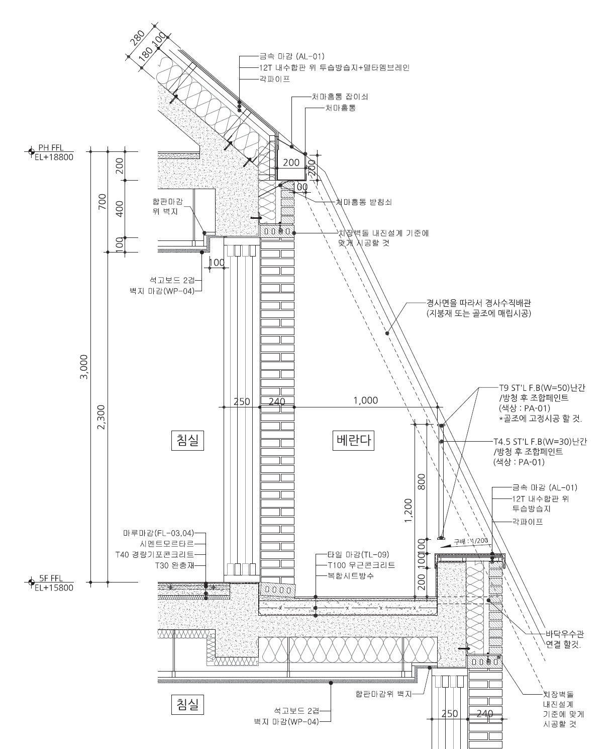
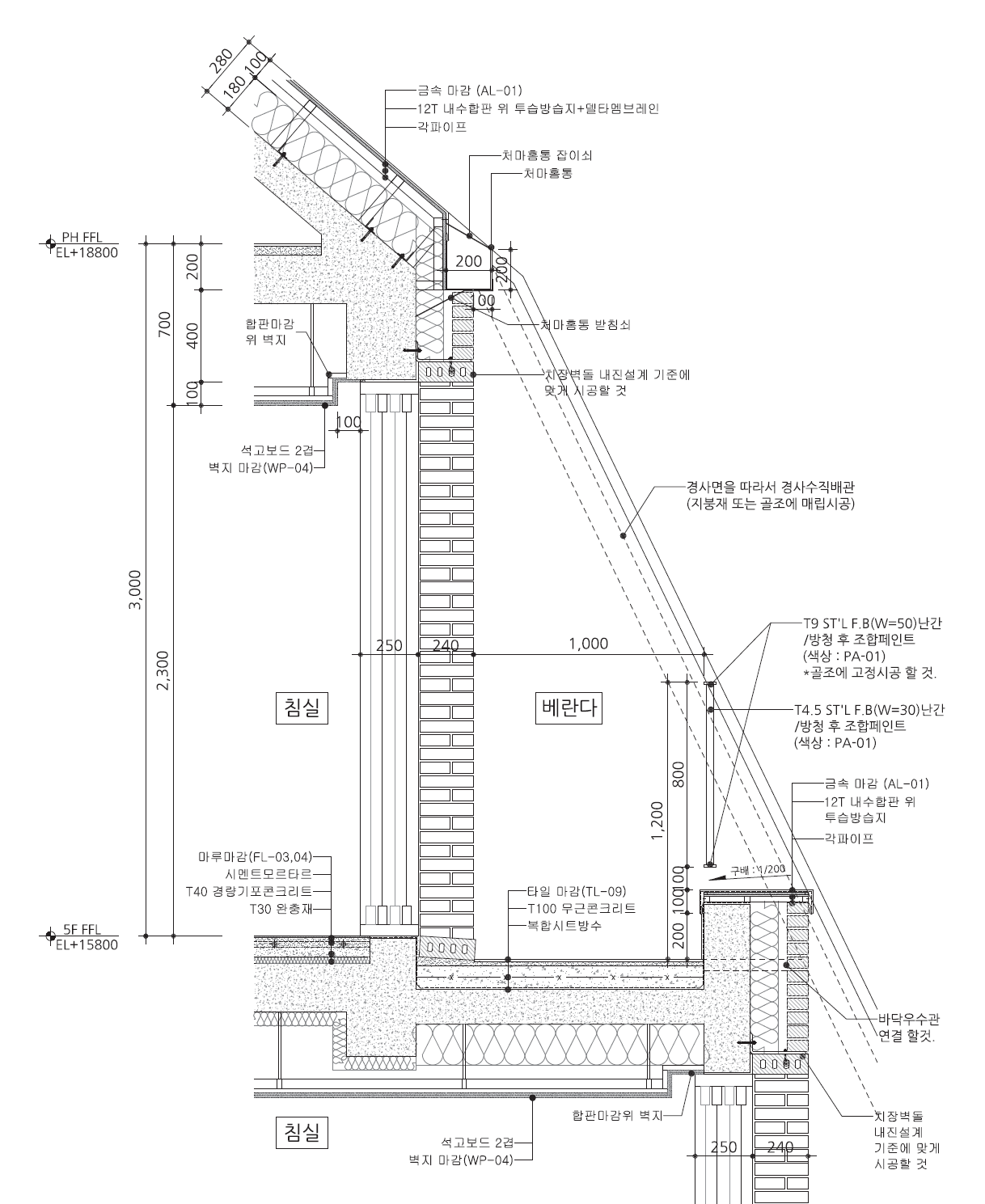
근린생활시설은 사진 스튜디오나 높은 층고를 원하는 시설이 사용할 수 있게 6미터 층고로 계획했는데, 현재는 층고를 충분히 활용하는 어린이 체육교실이 입주해 잘 활용하고 있다. 지하지만, 경사지 대지의 특성상 전면에서 1층과 같이 인지되어 채광이 충분한 공간으로 계획했다. 필로티 공간은 대지의 서측 이면도로에서 진출입이 가능한 주차장으로 계획하고, 전면에서 볼 때 주차장 및 주거공간 출입구가 인지되지 않도록 입면을 계획했다.


The site is where the client’s grandfather built a single-family house where three generations lived together, creating cherished memories. The client’s goal was to rebuild the property into a new structure that would serve both as a residence for the family and generate rental income. The new building, called "Haedal House," is a five-story structure with a basement. The basement floor is designated for commercial use, the first floor for parking, and the second through fifth floors are divided into six multi-family residential units.
Given the location in a dense and complex old urban residential area, the aim was to ensure that the new building would blend into the neighborhood while also helping to organize the surroundings. This was achieved through the careful selection of exterior materials, colors, massing, and facade design. The familiar image of red brick and gray stucco, often seen in the neighborhood, was maintained, and a clean, simple volume was used to keep the design orderly. Features like arches were added to reduce the heavy feel of the mass.
With an 11-meter road to the south providing good natural light, the northern facade gradually steps back due to the legal sun exposure regulations. The four units on the front side of each floor are designed in a 3.5-bay layout, with living rooms and bedrooms facing south, offering bright, apartment-style layouts. The two rear units were designed as duplexes and studios, with enough sunlight and views provided by southwest-facing windows. The rear terraces were designed with large front-facing windows to encourage active use of the terrace space. While each unit has a slightly different layout, the design ensured efficiency in construction while retaining distinctive features.
The commercial space in the basement was designed with a six-meter ceiling height, suitable for uses such as a photography studio or other high-ceilinged businesses. Currently, a children's sports center is taking full advantage of the high ceiling. Though technically a basement, the sloping site allows the space to be perceived as a ground floor from the front, ensuring plenty of natural light. The piloti space on the west side of the site was designed for parking, accessible from the side road, while the entrance to the parking and residential areas was carefully integrated into the facade to avoid drawing attention from the front.









| 성남 해달집 설계자 | 권이철 _ 갓고다 건축사사무소 감리자 | 서원종합건축사사무소 시공사 | 시네마건설(주) 설계팀 | 최윤영 설계의도 구현 | 갓고다 건축사사무소 대지위치 | 경기도 성남시 수정구 주요용도 | 근린생활시설, 다세대주택 대지면적 | 346.20㎡ 건축면적 | 204.27㎡ 연면적 | 769.06㎡ 건폐율 | 59.00% 용적률 | 165.63% 규모 | B1F - 5F 구조 | 철근콘크리트구조 외부마감재 | 치장벽돌(Bricko청화요업(주):유니크버건디토석), 외단열미장마감, 금속지붕재 내부마감재 | 합지벽지, 강마루, 포세린타일, 친환경수성페인트 설계기간 | 2021. 03 - 2022. 02 공사기간 | 2022. 05 - 2023. 06 사진 | 노경 구조분야 | 기술사사무소 제이엠구조 기계설비·전기·소방분야 | (주)대광엔지니어링 토목분야 | (주)이지이엔씨 |
HAEDAL House Architect | Kwon, Yi Cheol _ Gaggoda architects Supervisor | Seowon architects Construction | Cinema Construction Project team | Choi, Yun Young Design intention realization | Gaggoda architects Location | Sujeonggu, Seongnam-si, Gyeonggi-do, Korea Program | Neighborhood facilities, Multi-unit house Site area | 346.20㎡ Building area | 204.27㎡ Gross floor area | 769.06㎡ Building to land ratio | 59.00% Floor area ratio | 165.63% Building scope | B1F - 5F Structure | RC Exterior finishing | Decorative brick, External thermal insulation finishing system, Metal roofing material Interior finishing | Wallpaper, Laminated flooring, Porcelain tile, Paint Design period | Mar. 2012 - Feb. 2022 Construction period | May 2022 - Jun. 2023 Photograph | Roh, Kyung Structural engineer | JM Structure Mechanical·Electrical·Fire engineer | DaeKwang Engineering Civil engineer | EGenc |
'회원작품 | Projects > Neighborhood Facility' 카테고리의 다른 글
| 디어원 2025.2 (0) | 2025.02.28 |
|---|---|
| 당신의 강릉 2025.1 (0) | 2025.01.31 |
| 그레이 청담 2024.9 (0) | 2024.09.30 |
| 삼성동 AUTOCRYPT 보안연구센터 2024.9 (0) | 2024.09.30 |
| 백설농부 2024.8 (0) | 2024.08.31 |
