2024. 12. 31. 10:25ㆍ회원작품 | Projects/House
Hwajopungwol

자연을 구획하다
화조풍월은 집 안팎으로 변화하는 자연을 담아내기 위한 다각적인 시도의 결과이다. 집과 자연이 맞닿는 접점을 넓히기 위해 외부 공간 역시 집의 방과 같은 개념으로 인식하고 전체 대지를 활용하여 배치가 아닌 평면 계획을 하는 방식으로 작업을 진행하였다. 화조풍월은 빛과 그림자, 소리, 계절, 시간 등의 비 물리적인 요소들을 물성을 이용해 자연의 변화를 공감각적으로 느낄 수 있는 공간의 분위기를 만들고자 하였다. 넓은 땅에서 집과 자연이 많이 닿을 수 있도록 낮게 펼쳐진 단층으로 계획하였다. 넓은 대지의 중심에 가족의 상징적 공간이 되는 큰 지붕을 계획하고, 그 지붕을 중심으로 주변 환경과의 관계를 고려하여 내•외부의 공간이 확장된다. 내·외부로 크게 비워진 공간을 에워싸는 물성은 노출 콘크리트이다. 서로 다른 질감의 노출 콘크리트 표면은 각 공간의 감성과 함께 맞닿는 주변 환경에 따라 다르게 드러난다.





Partitioning Nature
Hwajopungwol is the result of multifaceted efforts to capture the dynamic relationship between the home and the changing natural environment. To expand the intersection between the house and nature, outdoor spaces were conceptualized as extensions of the indoor rooms. Instead of merely arranging elements across the site, the design approached the entire land as part of the plan’s overall floor layout.
The project sought to create a sensory experience that captures the physicality of intangible elements like light, shadow, sound, seasons, and time. To maximize the connection between the house and nature, the structure was designed as a low-lying, single-story home that spreads across the expansive site. At the center of the large property, a symbolic family space was defined under a grand roof, which becomes the focal point for extending and integrating the internal and external spaces with the surrounding environment.
The materiality enclosing the large, open spaces—both indoors and outdoors—is exposed concrete. The surface textures of the exposed concrete vary, responding differently to the atmosphere of each space and the surrounding environment, enriching the sensory qualities of the home while seamlessly blending it with nature.




심사평
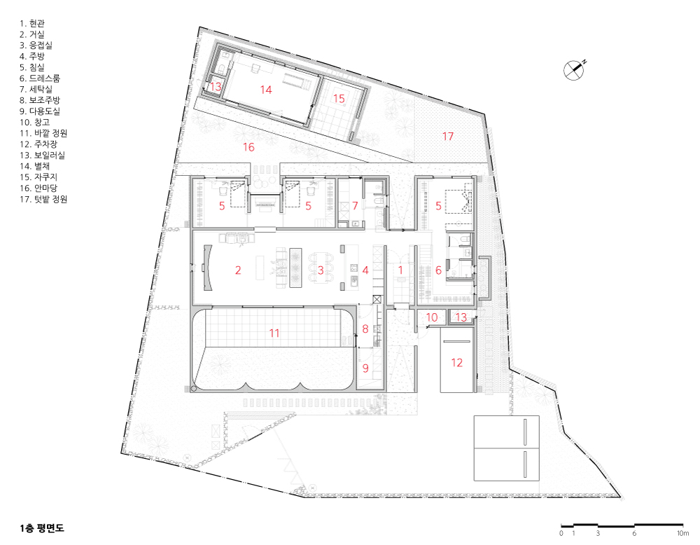
단독주택에서 어린 두 자녀를 키우고자 이주한 한 가족을 위한 약 230제곱미터의 연면적을 가진 1층 규모의 집이다. 모여 사는 방식의 전제와 그에 맞는 기반 시설이 갖추어지기 전, 집들이 먼저 들어서기 시작한 지역의 나대지에 위치한다. 대지를 둘러싼 지형 조건, 건축주의 바람과 요구 조건을 충실한 반영하는 것 이상으로 어떠한 기대를 할 수 있을까. 단독주택에 설계자가 담고자 한 시도들을 어떻게 가치매김 할 것인가의 근본적인 질문에 직면하게 된다. <화조풍월>의 지붕 형상에 ‘달’을 연결하는 은유적 고안과 흙과 빗물에 의한 변화를 예기하는 콘크리트 텍스처의 고안은 감각적이고, 거주성의 본질이 하늘과 만나는 방식, 땅의 경계를 정하는 방식으로부터 시작한다는 오래된 전제를 환기한다. 지붕의 공간을 중심으로 배치된 거실과 식당, 아이방의 위치, 안방을 나누는 복도와 현관의 역할이 전형적이지 않지만, 설정된 경계와 전제된 규준선의 원칙을 엄격하게 따르며 공간으로 조직화한다. 건축주의 바람으로부터 단서를 추출해 의미를 부여하고 물질화하는 설계자의 의도가 명확하다. 직관적으로 설정한 감각적 경험으로부터 배치의 질서를 부여하고 공간을 조직하는 큰 원리로 설정하는 방식은 보편적이지 않지만 대담하고 용기 있다. 오늘날 우리의 단독주택에서 흔치 않은 이 시도를 높이 살 수밖에 없는 이유이다.
Commentary
This single-story house, with a floor area of approximately 230 square meters, was designed for a family who relocated to raise their two young children in a detached home. Situated on vacant land in an area where homes began to emerge before the infrastructure for communal living was established, it raises a fundamental question: beyond reflecting the site’s topographical conditions and the client’s wishes, how can we evaluate the architect’s experimental approach to a detached house? The design of Hwajopungwol includes a metaphorical concept of connecting the shape of the roof with the “moon” and a concrete texture that anticipates the effects of soil and rainwater, evoking an old architectural principle—the essence of dwelling begins in the way a building meets the sky and defines the earth’s boundaries. The layout, organized around the roof space, places the living room, dining area, and children’s rooms centrally, while the corridor and entrance dividing the main bedroom are untraditional yet rigorously follow established boundaries and predetermined guidelines. The architect’s clear intent extracts cues from the client’s desires, imbuing the design with meaning and materializing those values. The approach to organizing space through an intuitive yet sensorial layout may not be conventional, but it is bold and courageous. This rare and commendable approach in today’s detached homes is precisely what makes this design exceptional.

| 화조풍월(花鳥風月) 설계자 | 김미희 · 고석홍 _ 소수 건축사사무소 시공자 | 이상훈 건축주 | 이상훈 설계팀 | 홍진영, 김병준 설계의도 구현 | 소수 건축사사무소 대지위치 | 소수건축사사무소 주요용도 | 단독주택 대지면적 | 906.00㎡ 건축면적 | 284.80㎡ 연면적 | 233.08㎡ 건폐율 | 31.43% 용적률 | 25.72% 규모 | 1F 구조 | 철근콘크리트구조 외부마감재 | 노출콘크리트, 목재 사이딩 내부마감재 | 노출콘크리트, 친환경 페인트, 원목마루 설계기간 | 2020. 06 - 2021. 08 공사기간 | 2021. 09 - 2023. 03 사진 | 노경 구조분야 | (주)은구조 기술사사무소 기계설비분야 | (주)건양엠이씨 전기분야 | (주)극동파워테크 조경분야 | 가든 더 베란다 |
Hwajopungwol Architect | Go, Seokhong · Kim, Mihui Construction | Lee, Sanghun Client | Lee, Sanghun Project team | Hong, Jinyeong / Kim, Byeongjun Design intention realization | SOSU ARCHITECTS Location | Yongcheon-ro, Okcheon-myeon, Yangpyeong-gun, Gyeonggi-do, Korea Program | House Site area | 906.00㎡ Building area | 284.80㎡ Gross floor area | 233.08㎡ Building to land ratio | 31.43% Floor area ratio | 25.72% Building scope | 1F Structure | RC Exterior finishing | Exposed concrete, Wood siding Interior finishing | Exposed concrete, Eco-friendly paint, Wood floor Design period | Jun. 2020 - Aug. 2021 Construction period | Sep. 2021 - Mar. 2023 Photograph | Roh, Gyeong Structural engineer | EunGujo Engineering Inc. Mechanical engineer | Geonyang Mec Co., LTD. Electrical engineer | Keukdong Power Tech Co., LTD. Landscape engineer | Garden the verandah |
'회원작품 | Projects > House' 카테고리의 다른 글
| 유키즈 인더하우스 2025.1 (0) | 2025.01.31 |
|---|---|
| 다온주택 2025.1 (0) | 2025.01.31 |
| 양평사색 2024.12 (0) | 2024.12.31 |
| 이리루 2024.12 (0) | 2024.12.31 |
| SOFT WALL : 시선의 권리와 유연한 대응 2024.11 (0) | 2024.11.30 |