2025. 1. 31. 10:05ㆍ회원작품 | Projects/Culture
Sindae Library, Suncheon City

사업부지는 인근의 산업단지 발달과 신대지구 개발에 의해 정주환경이 조성되고 인구의 유입이 이뤄졌다. 신대도서관은 지역 일대를 아우르는 거점도서관으로, 생태문화도시 순천에 걸맞은 지역성을 표현하고 지식, 정보, 문화를 담는 미래지향적 문화공간으로 거듭나고자 했다. 신대도서관은 ‘자연에 책을 담는 도서관’을 키워드로, 단정한 책의 경계를 형상화하고 주변으로 둘러싸인 부드러운 자연과 모두에게 열려있는 옥상정원을 통해 책과 자연, 사람을 아우르는 공간을 만들었다.
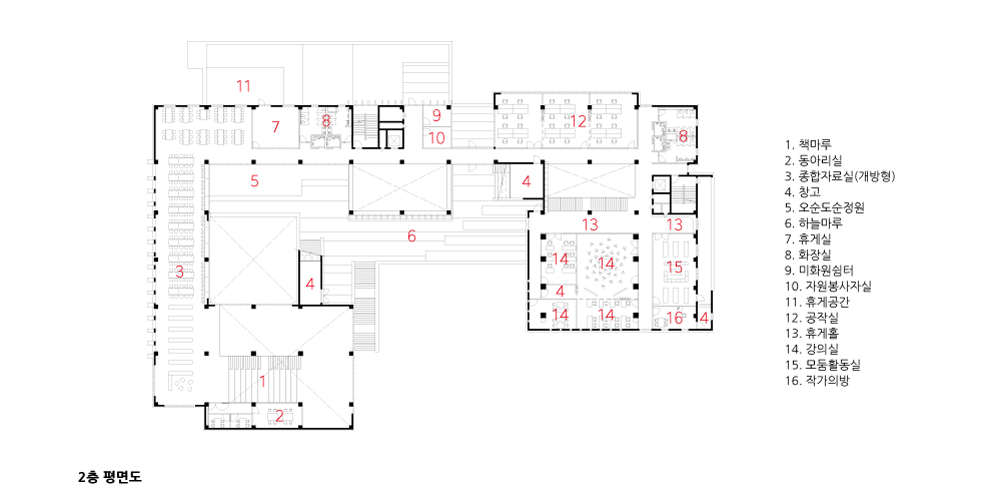
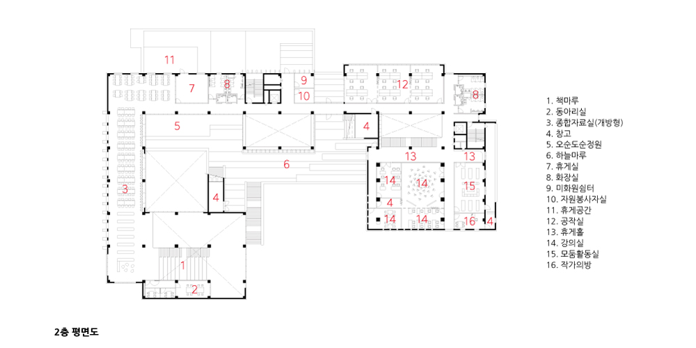
도서관에 들어서는 기능은 자료이용, 문화교육, 관리, 공용공간으로 구분된다. 각각의 공간은 주변 맥락과 지형에 대응하여 계획되고 입체적인 공간감을 만들어낸다. 또한 도서관 내·외부를 넘나드는 동선계획을 통해 시설 이용자들은 열람실, 문화교육 프로그램실, 텃밭, 옥상정원으로 유도되고 이를 통해 도시와 도서관을 연결하는 ‘지식산책길’을 향유한다. 나아가 이 길은 도서관뿐만 아니라 인근의 행정복지센터와 문화센터, 근린공원과 옥녀봉까지 연결되어 도시와 자연을 연결하는 길이 될 것이다.
홀과 북카페, 휴게공간을 아우르는 아트리움 계획은 도서관의 공용공간에 자연광을 유도하고, 루버를 통해 일사를 조절하여 빛과 자연을 품은 친환경 내부 공간을 만들었다. 자료실은 내부 물의 정원을 중심으로 어린이, 유아, 성인 자료실을 계획했고, 영역 간 가족 단위 열람공간을 설치해 가족 단위 이용객들의 이용성을 높였다.


The project site has become a livable environment with an influx of population due to the development of nearby industrial complexes and the Sindae District. Sindae Library aims to become a regional hub library that reflects the identity of Suncheon as an ecological cultural city and serves as a future-oriented cultural space for knowledge, information, and culture. With the keyword “A Library That Embraces Nature and Books,” the design embodies the clean boundaries of a book while creating a space that integrates books, nature, and people through the surrounding gentle natural landscape and an open rooftop garden accessible to all.
The library’s functions are divided into collections, cultural education, management, and public spaces. Each space is planned to respond to the surrounding context and topography, creating a sense of three-dimensionality. The circulation design connects the interior and exterior, guiding users to the reading rooms, cultural education program rooms, urban farming plots, and the rooftop garden. This forms the “Knowledge Walk,” which links the library to the administrative welfare center, cultural center, neighborhood park, and Ongnyeobong, creating a pathway that bridges the city and nature.
The atrium, encompassing the hall, book café, and rest areas, brings natural light into the communal spaces of the library. Louvers control sunlight, creating an eco-friendly interior that embraces light and nature. The collection spaces are centered around an internal water garden and include dedicated areas for children, infants, and adults. Family reading areas are incorporated to enhance accessibility and usability for families. Sindae Library integrates books, nature, and people, serving as a cultural space that connects the city with its natural surroundings.








| 순천시 신대도서관 설계자 | 양병범 _ (주)건축사사무소 휴먼플랜 건축주 | 순천시청 감리자 | 이경일 _ (유)원 건축사사무소 시공사 | 김창환 _ 도원건설(주) 설계팀 | 장진배, 김소리, 신정호 설계의도 구현 | (주)건축사사무소 휴먼플랜 대지위치 | 전라남도 순천시 해룡면 신대리 2040 주요용도 | 교육연구시설(도서관) 대지면적 | 18,742.00㎡ 건축면적 | 3,759.15㎡ 연면적 | 5,642.84㎡ 건폐율 | 20.06% 용적률 | 26.68% 규모 | B1F - 2F 구조 | 철근콘크리트구조 외부마감재 | 화강석, 로이복층유리, 테라코타판넬, 알루미늄쉬트 내부마감재 | 벽돌타일, 석고보드 위 페인트, 화강석, 목재후로링 등 설계기간 | 2020. 06 – 2021. 09 공사기간 | 2021. 10 – 2023. 06 사진 | 이동희 _ 순천대학교 구조분야 | 정구조 언지니어링 기계설비분야 | 새터 이엔지 전기·소방분야 | 좋은 엔지니어링 조경분야 | 바오디엔씨 토목분야 | 다산시설안전원 인테리어 | 디에스시티 |
Sindae Library, Suncheon City Architect | Yang, Byungbeom _ Human Plan Architects & Planners Co., Ltd. Construction | HYEONYEONG Client | Suncheon City Hall Supervisor | Lee, Kyungil _ Won Architects Office Co., Ltd. Construction | Kim, Changhwan _ Dowon Construction Co., Ltd. Project team | Jang, Jinbae / Kim, Sori / Shin, Jungho Design intention realization | Human Plan Architects & Planners Co., Ltd. Location | 2040, Sindae-ri, Haeryong-myeon, Suncheon-si, Jeollanam-do, South Korea Program | Educational & Research Facility(Library) Site area | 18,742.00㎡ Building area | 3,759.15㎡ Gross floor area | 5,642.84㎡ Building to land ratio | 20.06% Floor area ratio | 26.68% Building scope | B1F - 2F Structure | RC Exterior finishing | Cladding Stone, Low-E Double Glazing, Terracotta, Aluminum Sheet Interior finishing | Brick Tile, Paint on Gypsum Board, Granite, Wooden Flooring, etc. Design period | Jun. 2020 – Sep. 2021 Construction period | Oct. 2021 – Jun. 2023 Photograph | Lee, Donghee _ Sunchon National University Structural engineer | Jung Structural Engineering Mechanical engineer | Saeter ENG Electrical·Fire engineer | Joeun Engineering Landscape Design | BAO DNC |
'회원작품 | Projects > Culture' 카테고리의 다른 글
| 물맑음수목원 숲 문화센터 2025.2 (0) | 2025.02.28 |
|---|---|
| 광명전통무형유산전수관 2025.1 (0) | 2025.01.31 |
| 진관사 한문화체험관 2024.12 (0) | 2024.12.31 |
| 오산문화원 2024.7 (0) | 2024.07.31 |
| 펀그라운드 진접 2023.12 (0) | 2023.12.30 |
