2025. 1. 31. 10:45ㆍ회원작품 | Projects/Culture
Gwangmyeong Traditional Intangible cultural Heritage Center

광명농악과 서도소리의 도시, 광명
광명시에는 오래전부터 예술적이고 학술 가치가 있는 무형문화재가 전해지고 있다. 450년 전 소하동과 학온동 지역에 면면히 전승되어 내려오는 광명농악(경기도무형문화재)과 황해도와 평안도의 서도지역에서 면면히 이어져 내려오는 서도소리(국가무형문화재) 보유자와 인간문화재가 광명을 뿌리로 하고 있다.
또한 지정문화재는 아니지만 아방리 농요와 아방리 줄다리기와 같은 무형문화재도 있다. 그동안 광명시에는 무형문화재 전용 교육장과 공연장이 없어 전승·보급에 어려움을 겪어 왔으며, 체계적 전통문화 육성을 위한 전수관 건립의 필요성이 대두되었고 3년 전 광명무형문화재전수관(현 광명전통무형유산전수관으로 변경) 설계공모에 본 사무실의 작품이 선정됐다. 지난해 8월에 개관한 전수관은 전통과 현대의 이미지를 적절히 조화해 전체 연면적 997.13제곱미터에 지상 1층 규모로 설계했다. 광명무형문화재의 보존 및 전승과 시민들의 전통문화 교육을 위해 공연장, 연습실, 교육실 등의 시설을 갖추고 지역 문화를 활성화하는 공간으로 조성하는 것이 목적이었다.
기형도 문화공원에 전통을 더하다
장소는 광명시를 대표하는 시인, 기형도 문화공원 내 문학관 바로 옆에 자리한다. 기형도 문화공원은 평상시 시민들이 산책과 운동을 하는 장소이고, 숲이 매우 울창해 휴식공원으로 인기가 있는 곳이다. 전수관의 입구가 기형도 시길 산책로에 면하고 있어 문화공원의 새로운 장소로 시민의 접근성을 높였다. 외부 조경은 야외공원으로 자연스럽게 연결되어 다양한 풍경을 조성한다.
전통의 소리, 몸짓 그리고 신명의 공간으로
설계공모 당시부터 넉넉하지 않은 부지여건 및 인접 고속도로 소음의 몇 가지 조건들에 반응하며 이상적인 가능성을 탐색하는 것이 우리에게 주어진 과제였다. 부지는 대략 둥근 직삼각형 형태로 프로그램 배치를 신중히 해야 하는 특이점이 있었다. 경사진 기존 보행로와는 부지 레벨을 해결해야 하는 어려움도 있었지만, 무엇보다도 무형의 문화적 가치를 건축물에 담아야 하는 과제에 고민했다. 발주처가 요구한 경제성과 시공성을 고려하면서도 공공건물의 통속적 외관을 지닌 건물이 되지 않기를 바랐다.
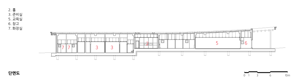
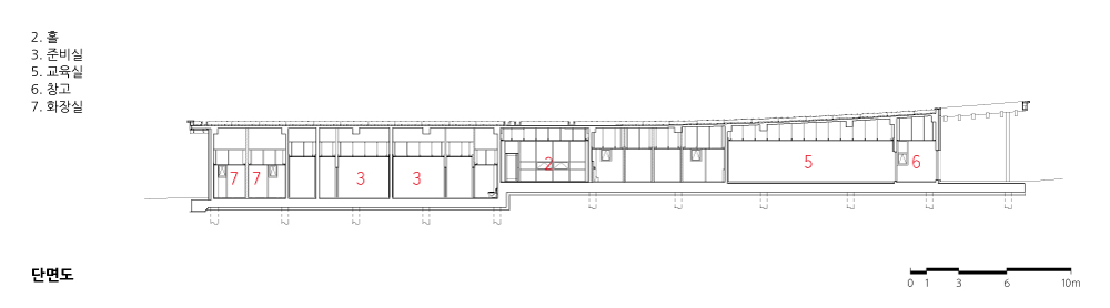
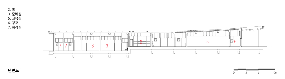
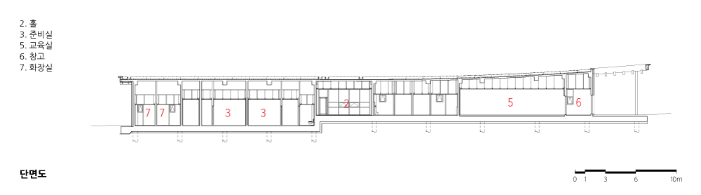
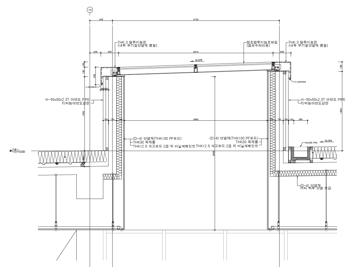
평면은 좌우로 긴 형태이다. 부지 둥근 부분에 큰 면적인 공연장을 배치하고 중앙 홀을 중심으로 좌측은 공연장과 대기실, 우측은 연습실 및 사무공간과 교육공간으로 구성된다. 공연장은 반원형의 아담한 무대와 150석 규모의 객석을 갖추고 있다. 무대와 객석의 거리가 가까워 그만큼 연희자와 관객이 함께 호흡하기에 최적화되어 있는 공연장이다. 한편 다양한 프로그램을 흡수할 수 있는 층고가 높은 공연장으로 계획해 지역사회의 문화 중심공간으로 활용될 수 있도록 구성했다. 중앙홀의 커다란 원형천창은 채광을 위해 중요한 역할을 담당한다. 이로 인해 협소하지만 답답해 보이 지 않고 공간적으로 다양하고 흥미로운 시선 관계를 가질 수 있도록 했다.
먼저, 전통의 소리(音)와 몸짓(舞)을 최대한 이해하기 위해 노력했다. 단순히 건축이 가지는 기능을 충족하는 것에 머무는 것이 아니라, 그 이상의 의미를 형태와 공간에 담아내고 싶었다. 전통의 ‘소리’가 가지는 구성진 가락은 건물의 형태를 만드는 중요한 요소로 활용했다. 지붕 처마의 곡선과 외벽의 변화있는 움직임은 전통 ‘몸짓’의 추상적 이미지를 형태적으로 승화한 표현이다. 비상하는 곡선형의 지붕 형상은 마치 떠 있는 거대한 상모의 이미지와 유사하며 지붕의 형태와 서까래는 마치 전통 건축의 양식을 닮도록 했다. 외장재는 시간이 지나면서 그윽한 회백색으로 변모하는 탄화목으로 전통적인 외관으로 보이도록 했고, 내부에도 동일한 목재로 벽체를 마감하여 외부와 내부, 그리고 공원의 연속성이 자연스럽게 확보되도록 했다. 이와 대조적으로 공연장은 치장벽돌로 마감해 현 광명시예술회관, 대공연장과 동일한 재료 선택으로 광명시의 정체성을 의도했다. 향후 등나무 줄기가 벽면을 타고 오르내리길 기대한다.
에헤라 만선이다. 신바람 난다
이제부터는 많은 관객이 ‘광명농악’과 ‘서도소리’를 관람할 시간이다. 서도민요는 인생의 희로애락을 구성진 가락으로 풀어내고, 흥과 신명의 광명농악은 풍년을 기원하는 농부의 마음을 전한다. 긴 세월 이겨낸 형태로 헤아릴 수 없는 아름다움은 우리의 무형문화재 속에 깊게 묵직하게 담겨 있다. 이를 보존하고 전승하는 것은 우리 모두의 의무이기도 하다.
광명전통무형유산전수관이 전통의 가치를 느끼고, 즐기는 장소로 자리매김하면서 물고기가 가득 찬 배를 몰고 귀향하는 만선처럼 많은 이들로부터 신명(新明)나는 공간으로 활용되길 바란다.



Gwangmyeong,
the City of Gwangmyeong Nongak and Seodo Sori
Gwangmyeong has long been home to intangible cultural heritages of artistic and scholarly significance. These include Gwangmyeong Nongak, a traditional farmers’ band music passed down for 450 years in the Soha-dong and Hakon-dong areas (designated as Gyeonggi Province Intangible Cultural Heritage), and Seodo Sori, traditional folk songs originating from the Seodo region of Hwanghae and Pyeongan provinces, recognized as National Intangible Cultural Heritage. Both have cultural practitioners and human cultural assets rooted in Gwangmyeong.
Additionally, while not officially designated as cultural properties, intangible cultural heritages like Abang-ri Farming Songs and Abang-ri Tug-of-War also exist in the area. For years, Gwangmyeong lacked dedicated facilities for education and performances related to intangible cultural heritage, posing challenges for their preservation and dissemination. This highlighted the need for a specialized training center for systematic traditional culture development.
Three years ago, our office’s design was selected in the competition for the Gwangmyeong Intangible Cultural Heritage Training Center (now renamed the Gwangmyeong Traditional Intangible Heritage Training Center). Opened in August last year, the center harmoniously combines traditional and modern elements. The single-story building spans a total floor area of 997.13 square meters and was designed to preserve and promote Gwangmyeong’s intangible cultural heritage. It features facilities such as a performance hall, practice rooms, and classrooms, aiming to provide traditional culture education for citizens while revitalizing the region’s cultural identity.
Adding Tradition to Gi Hyeong-do Cultural Park
The site is located next to the literary hall within Gi Hyeong-do Cultural Park, dedicated to Gwangmyeong’s iconic poet. This park serves as a popular spot for citizens, offering spaces for walking and exercise, with its lush forest making it a favored destination for relaxation.
The entrance to the training center faces the Gi Hyeong-do Poetry Trail, a pathway within the park, enhancing accessibility and establishing the facility as a new cultural destination for visitors. The outdoor landscaping seamlessly connects to the surrounding park, creating diverse and harmonious scenic views that integrate with the natural environment.
A Space for Traditional Sounds, Movements, and Festive Spirit
From the beginning of the design competition, our architectural task was to respond to the challenging site conditions and surrounding noise from the adjacent highway while exploring ideal possibilities. The site’s shape, roughly a rounded right triangle, required careful program placement. Resolving the elevation differences with the sloped pedestrian pathway presented further challenges, but the most significant task was incorporating the intangible cultural values into the architecture. While meeting the client’s demands for cost-effectiveness and constructability, we were determined to avoid creating a building with a conventional public structure facade.
The building’s layout is elongated horizontally. The rounded portion of the site houses the large performance hall, while the central hall serves as the core of the building. On the left are the performance hall and waiting rooms, and on the right are practice rooms, office spaces, and educational facilities. The performance hall features a semicircular, modest stage and seating for 150. The close proximity between the stage and the audience optimizes the space for shared energy and engagement between performers and spectators. The hall was also designed with a high ceiling to accommodate diverse programs, making it a cultural hub for the local community. The large circular skylight in the central hall plays a crucial role in bringing in natural light, ensuring that the compact space feels neither confined nor dull. This feature creates spatial diversity and establishes engaging visual connections, making the environment both functional and inspiring.
First, we sought to deeply understand the traditional sounds (音) and movements (舞). Our goal was not merely to fulfill the functional requirements of architecture but to embed meaning beyond functionality into the building’s form and space. The intricate melodies of traditional “sounds” were a key inspiration in shaping the building’s form. The curved eaves of the roof and the dynamic motion of the external walls are abstract representations of the traditional “movements,” translated into architectural expression. The soaring, curved roof resembles the image of a floating sangmo (traditional spinning hat) and incorporates rafters reminiscent of traditional architectural styles. For the exterior, we used charred wood as cladding, chosen for its transformation over time into a subdued grayish tone, evoking a traditional aesthetic. This same wood was used for the interior walls, ensuring a seamless continuity between the exterior, interior, and the surrounding park. In contrast, the performance hall is finished with decorative brick, echoing the materials used in the Gwangmyeong Arts Center and its main auditorium, intentionally aligning with the identity of Gwangmyeong City. Over time, wisteria vines are expected to climb and entwine the building’s walls, further integrating it into its natural surroundings.
A Hearty Cheer for Tradition! Let the Festivities Begin
Now is the time for many to enjoy Gwangmyeong Nongak and Seodo Sori. Seodo folk songs express the joys and sorrows of life through intricate melodies, while the vibrant rhythms of Gwangmyeong Nongak convey farmers’ hopes for a bountiful harvest. These intangible cultural heritages, shaped by the passage of time, embody a profound and immeasurable beauty. Preserving and passing them down is a duty we all share.
May the Gwangmyeong Traditional Intangible cultural Heritage Centerestablish itself as a place where the value of tradition can be felt and enjoyed. Like a fully loaded ship returning home, let this space become a source of joy and vitality for all who visit, fulfilling its mission as a vibrant hub of cultural celebration.








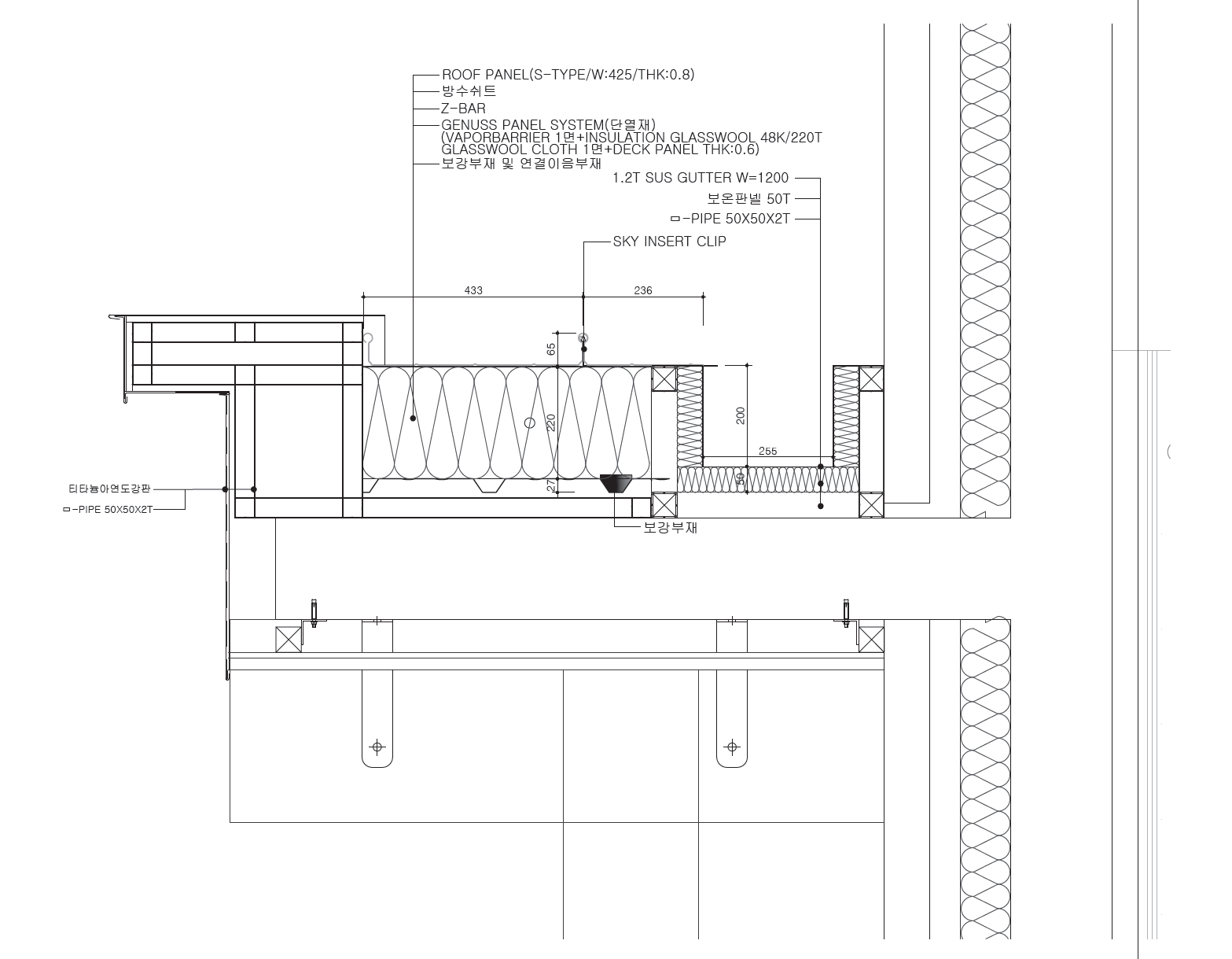
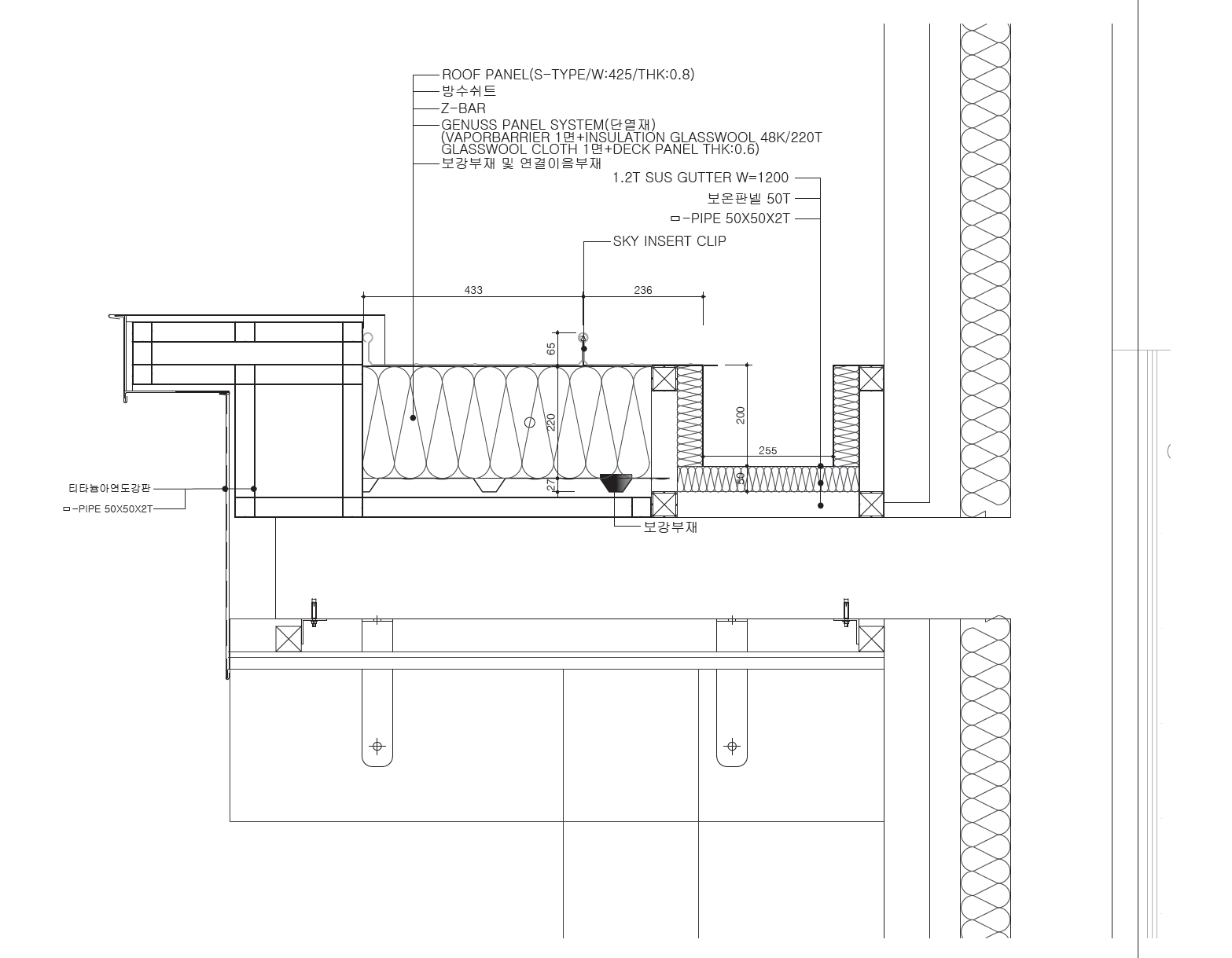
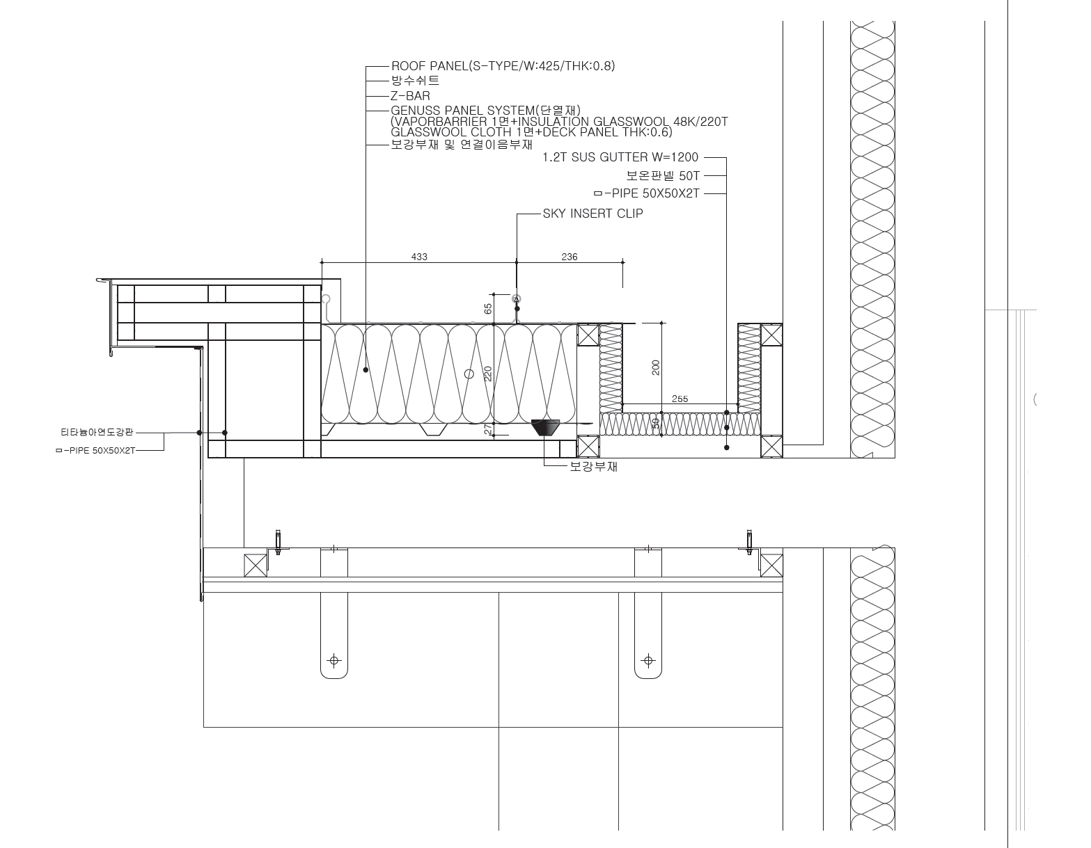
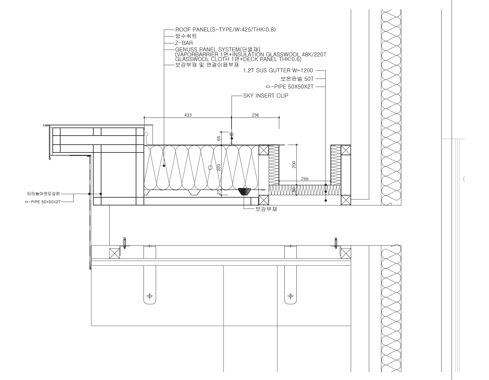
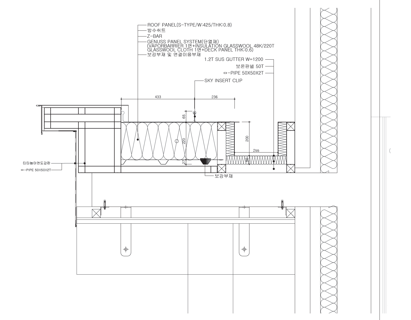
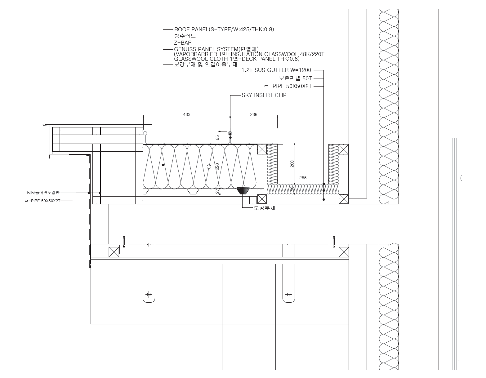
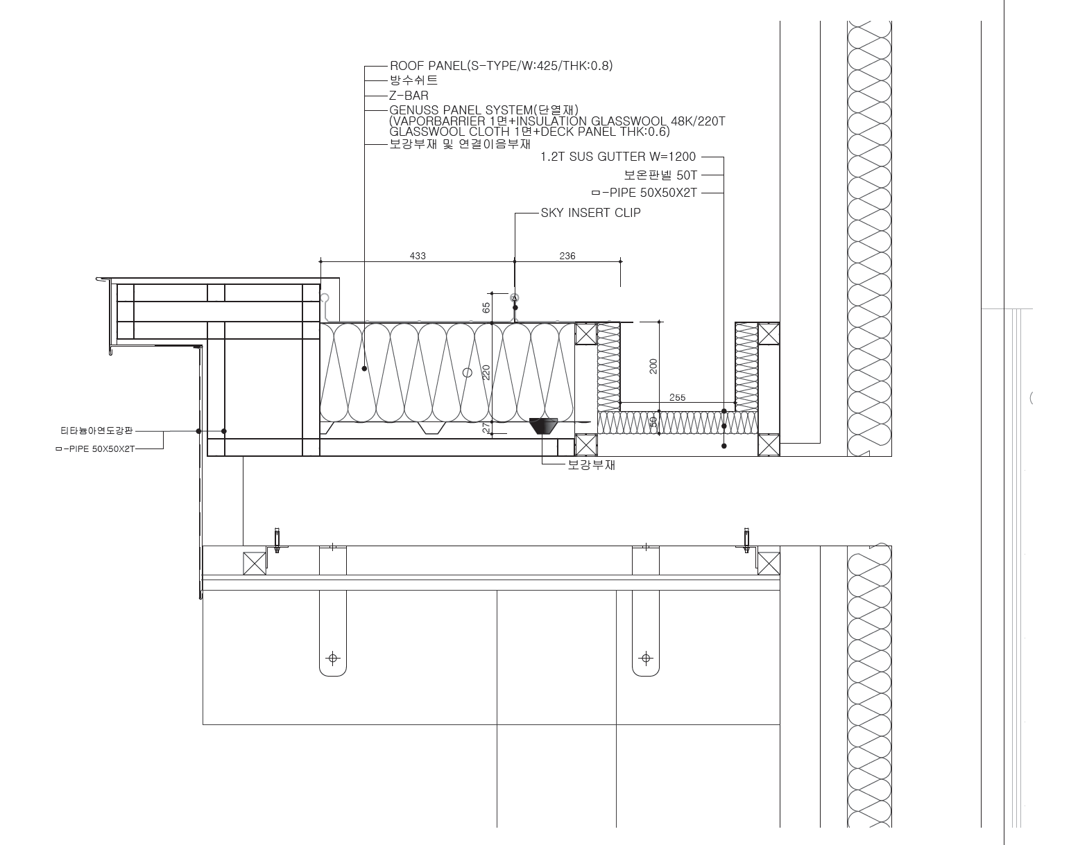
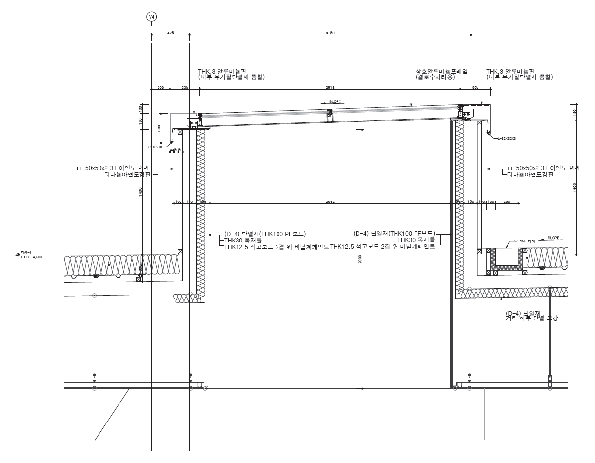
| 광명전통무형유산전수관 설계자 | 오승태 _ 건축사사무소 가가호호 건축주 | 광명시청 감리자 | 이종락 _ 파주건축사사무소 시공사 | 박영근 _ (주)세방종합건설 설계팀 | 최윤정 설계의도 구현 | 건축사사무소 가가호호 대지위치 | 경기도 광명시 오리로 272 주요용도 | 문화 및 집회시설 대지면적 | 52,761.30㎡ (사업구간 부지면적 : 1,363.87㎡) 건축면적 | 1,006.19㎡ 연면적 | 997.13㎡ 건폐율 | 1.9% 용적률 | 1.84% 규모 | B1 - 1F 구조 | 철근콘크리트구조, PC구조 외부마감재 | 탄화목재마감, 치장벽돌쌓기(주,삼한벽돌), 티타늄아연도강판 내부마감재 | 석고보드마감, 목재루버, 흡음판넬 설계기간 | 2021. 07 – 2022. 03 공사기간 | 2022. 05 - 2022. 12 사진 | 이한울 _ 나르실리온 구조분야 | SDM 구조사무소 기계설비·전기·소방분야 | (주)한길엔지니어링 |
Gwangmyeong Traditional Intangible cultural Heritage Center Architect | O, Seungtae _ GAGAHOHO ARCHITECTS Client | Gwangmyeong City Supervisor | Lee, Jongrak Construction | Park, Younggeun Project team | Choi, Yoonjung Design intention realization | GAGAHOHO ARCHITECTS Location | 272 Ori-ro, Gwangmyeong-si, Gyeonggi-do, Korea Program | Cultural and assembly facilities Site area | 1,363.87㎡ Building area | 1,006.19㎡ Gross floor area | 997.13㎡ Building to land ratio | 1.9% Floor area ratio | 1.84% Building scope | B1 - 1F Structure | RC Exterior finishing | Carbonized wood finish, Decorative brickwork, Titanium galvanized steel sheet Interior finishing | Gypsum board finish, Wood louver, Sound-absorbing panel Design period | Jul. 2021 – Mar. 2022 Construction period | May 2022 - Dec. 2022 Photograph | Lee, Han-ul _ narsilion Structural engineer | SDM Mechanical·Electrical·Fire engineer | HAN-GIL ENGINEERING |
'회원작품 | Projects > Culture' 카테고리의 다른 글
| 정약용 펀그라운드 2025.6 (0) | 2025.06.30 |
|---|---|
| 물맑음수목원 숲 문화센터 2025.2 (0) | 2025.02.28 |
| 순천시 신대도서관 2025.1 (0) | 2025.01.31 |
| 진관사 한문화체험관 2024.12 (0) | 2024.12.31 |
| 오산문화원 2024.7 (0) | 2024.07.31 |
