2025. 2. 28. 10:05ㆍ회원작품 | Projects/Culture
Forest cultural center of mulmaakeum arboretum

작품배경
남양주 물맑음 수목원은 첨단기술을 접목해 도서, 문화, 체험이 가능한 특화공간을 구축한다. 큰 개념에서 하나의 스토리라인 안에 두며 관람객의 집객과 분산의 역할을 담아낼 수 있는 공간구성을 고려했다.
특히, 남양주 물맑음수목원이 갖는 자연 지리적 특성과 주변현황을 고려하고 주변시설들과의 연계성을 염두에 둔다. 형질 변경을 최소화해 배치와 동선을 계획하고, 주변시설과 유기적 연계가 되도록 했다.
사업부지 북측 축령산 방향으로 배치 및 평면의 조망을 확보하고, 옥상공간을 적극적으로 활용할 수 있는 방안과 직원차량, 이용객 차량, 대중교통 이용자를 배려한 효율적 접근이 필요했다.
계획개념
- 지형에 순응하고, 형태에 부합하는 반원형 건축물
- 건축물 내·외부의 환경에 부합하는 외장재 고려
- 조망과 채광을 극대화하는 계획
- 주변 자연환경을 내부로 유입하고 그 가운데 조화되는 형태
건축물 특성
대지의 지형적 특성에 부합하는 반원형 매스(Mass)계획, 내부공간에서 자연으로의 시각적 확장과 곡선형 외관 이미지로 친근함을 구현했다. 내·외부 유기적 시각 연계를 위한 전면 통창 계획은 개방감과 적극적인 조망과 채광을 제공한다. 건축물 중심부 중정은 공간의 입체감을 더하며, 중정에 인접한 투시형 엘리베이터는 교감하는 공간감을 제공한다.
평면계획은 트렌드에 부합하는 기능을 수용하는 융통성을 제공하고, 전망공간으로서의 옥상정원과 접근하는 외부 반원형 경사로는 주변 자연경관을 드라마틱하게 경험하는 동적 시퀀스를 제공하며, 옥외경사로가 시작되는 햇빛마당은 구석진 곳에 활력을 제공한다. 건축물로 접근하는 연결다리는 주변 계곡을 극복하는 외부 동선의 기능 외에 접근에 대한 다채로운 시각적 시퀀스를 제공하며, 외부 공간을 더욱 입체적으로 경험하는 훌륭한 장치가 될 것이다.
주변 자연의 지형과 환경의 훼손을 최소화하며 하나의 스토리라인 안에서 자연과 유기적으로 상호 소통되는 건축물을 생각했다.



Project Background
The Namyangju Water Clear Arboretum is envisioned as a specialized space integrating advanced technologies to provide opportunities for enjoying books, culture, and experiential activities. The spatial layout follows a unified storyline, designed to attract visitors while ensuring smooth dispersal throughout the site.
Special emphasis is placed on connectivity with surrounding facilities, carefully considering the geographic and environmental characteristics of the area. The layout and circulation plan are designed to minimize alterations to the land’s natural form and ensure seamless integration with nearby amenities.
The project required thoughtful positioning to face Chungnyeongsan Mountain to the north and secure panoramic views. Additionally, the design incorporates ways to maximize rooftop utility while providing efficient access for staff, visitors, and users of public transportation.
Design Concept
- A semicircular building that adapts to the terrain and harmonizes with its natural contours
- Consideration of exterior materials that complement both internal and external environments
- A design that maximizes natural lighting and scenic views
- A structure that integrates surrounding nature into the building, achieving harmony between architecture and the environment
Building Features
The design adopts a semicircular mass plan that aligns with the site’s topographical features, creating a visually expanded connection between indoor spaces and the natural surroundings. Its curved exterior evokes familiarity and approachability.
A full-length window design fosters an organic visual connection between interior and exterior spaces, delivering a sense of openness while maximizing views and natural light. At the heart of the building, a central courtyard adds spatial depth, while a transparent elevator adjacent to the courtyard enhances the spatial interaction experience.
The floor plan is flexible, accommodating contemporary functions while incorporating a rooftop garden as a scenic viewing space. An adjacent semicircular outdoor ramp offers a dynamic sequence, allowing visitors to experience the surrounding natural landscape in a dramatic and engaging way. At the base of the outdoor ramp, the sunlight yard revitalizes otherwise overlooked corners of the site.
The bridge connecting the building to its surroundings serves dual purposes: overcoming the valley and creating a vibrant visual sequence for access. This bridge enhances the three-dimensional experience of the outdoor space, serving as both a functional and aesthetic element.
By minimizing disruption to the natural terrain and environment, the building is thoughtfully designed to interact organically with nature, presenting a cohesive storyline that seamlessly integrates architecture and its natural surroundings.






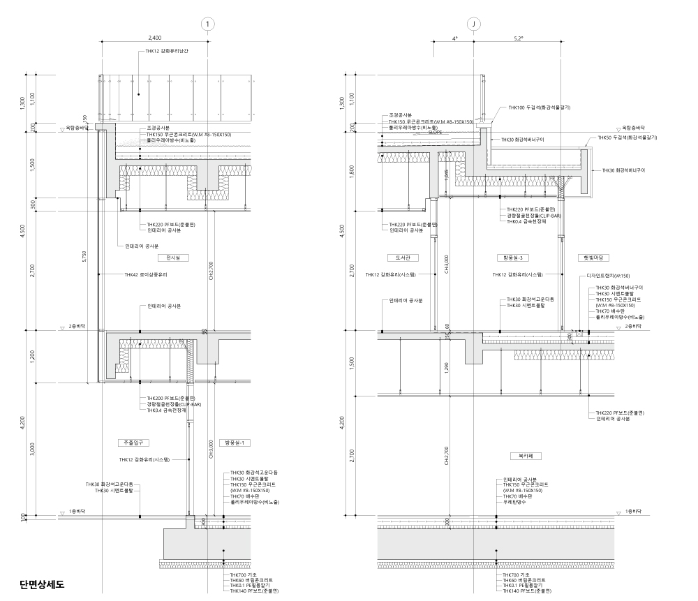
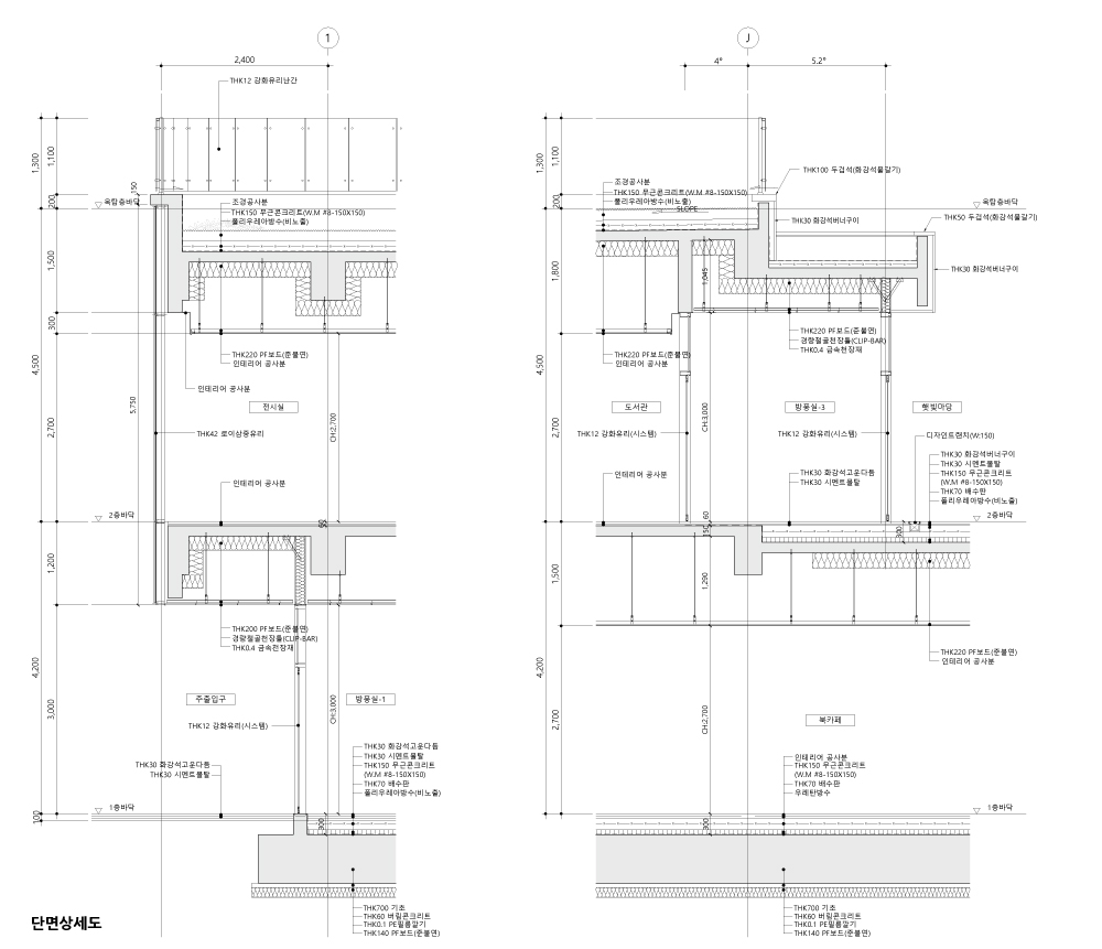
| 물맑음수목원 숲 문화센터 설계자 | 김종호 _ (주)씨엠 종합건축사사무소 건축주 | 남양주시 감리자 | 서우건축사사무소 시공사 | (주)욱승종합건설 설계팀 | 최웅, 박승호 대지위치 | 경기도 남양주시 수동면 지둔로307번길 47-4 주요용도 | 문화및집회시설(전시장) 대지면적 | 117,061.00㎡ 건축면적 | 781.30㎡ 연면적 | 998.90㎡ 건폐율 | 0.67% 용적률 | 0.86% 규모 | 2F 구조 | 철근콘크리트구조 외부마감재 | THK30 화강석버너구이 내부마감재 | 친환경페인트 설계기간 | 2020. 04 - 2022. 05 공사기간 | 2022. 10 – 2024. 05 사진 | (주)씨엠 종합건축사사무소 구조분야 | CK구조엔지니어링 기계설비·전기·소방분야 | (주)태영EMC |
Forest cultural center of mulmaakeum arboretum Architect | Kim, Jongho _ CM Architects’ Inc Client | NamyangJu Si Supervisor | Seou Architects Construction | Ukseung Construction Co. Project team | Choi, Ung / Pak, Seungho Location | 47-4, Jidun-ro 307beon-gil, Sudong-myeon, Namyangju-si, Gyeonggi-do, Korea Program | Meeting and cultural facilities Site area | 117,061.00㎡ Building area | 781.30㎡ Gross floor area | 998.90㎡ Building to land ratio | 0.67% Floor area ratio | 0.86% Building scope | 2F Structure | RC Exterior finishing | THK30. Grilled granite burners Interior finishing | Eco-friendly paint Design period | Apr. 2020 - May 2022 Construction period | Oct. 2022 – May 2024 Photograph | CM Architects’ Inc Structural engineer | CK Structural Engineering Co. Mechanical·Electrical·Fire engineer | Taeyoung E.M.C. Corp. |

'회원작품 | Projects > Culture' 카테고리의 다른 글
| 정약용 펀그라운드 2025.6 (0) | 2025.06.30 |
|---|---|
| 광명전통무형유산전수관 2025.1 (0) | 2025.01.31 |
| 순천시 신대도서관 2025.1 (0) | 2025.01.31 |
| 진관사 한문화체험관 2024.12 (0) | 2024.12.31 |
| 오산문화원 2024.7 (0) | 2024.07.31 |