2025. 6. 30. 16:25ㆍ아티클 | Article/인터뷰 | Interview
The world’s first dance-specialized youth center ‘Jungyakyong Funground’… ‘Architecture for All’ realized through remodeling

‘정약용 펀그라운드’는 전 세계적으로 유례없는 댄스 특화 유스센터를 만들겠다는 비전을 바탕으로, 기존 남양주의 공공시설인 유기농 테마파크를 리모델링해 조성한 유스호스텔이다. 청소년들에게 휴식과 치유의 공간을 제공하며, 특히 댄스를 중심으로 한 숙박·연습·공연이 연계된 복합 공간으로, 지역 문화예술과 관광 활성화에 기여하고 있다. 2023년에는 경기도 청소년 우수사업으로 선정되기도 했다.
많은 면적의 증축 없이 기존 전시관을 활용해 프로그램을 담아내야 했기 때문에에, 김경남 건축사(주.본 종합건축사사무소, 서울특별시건축사회)는 본관동에 유스호스텔의 모든 기능을 배치하고 별관동은 세미나와 연수를 위한 공간으로 활용했다. 이 과정에서 가장 중요한 건축적 장치로 작용한 유스홀은 개방감 있는 대공간으로, 가변형 외벽을 통해 다양한 공간 연계가 가능하도록 설계됐다. 이 공간을 설계한 김경남 건축사에게 ‘춤추는 유스센터’, 정약용 펀그라운드에 대한 자세한 이야기를 들어봤다.
# 공공성·지속성·수용성·전문성 핵심 가치로…
민주적인 디자인으로 모두를 위한 건축 꿈꿔
박정연_ 인터뷰에 응해주셔서 감사합니다. 먼저 건축사님 본인에 대한 간단한 소개를 부탁드립니다.
김경남_ 현재 (주)본 종합건축사사무소(BORN architecture) 대표를 맡고 있습니다. 서울과학기술대학교에서 건축학을 전공하고, 연세대학교에서 석사 과정을 마쳤습니다. K.N.K건축과 해안건축에서 실무 경험을 쌓은 뒤, 2011년에 본 종합건축사사무소를 설립했습니다. 그동안 서울시 공공건축가, 마을건축가로 활동했고, 현재는 서울건축포럼 위원으로 활동하며 다양한 공공 프로젝트에 참여하고 있습니다.
저는 ‘Democratic Design(민주적인 디자인)’을 설계 철학의 핵심에 두고, 공공성, 지속성, 수용성, 전문성을 중요한 가치로 삼고 있습니다. 사용자 중심의 사고와 사회적 가치 창출, 지속가능한 관점을 통해, 모두에게 편리하고 실용적이며 아름다운 ‘모두의 건축’을 구현하고자 노력하고 있습니다.
박정연_ ‘데모크라틱 디자인(Democratic Design, 민주적인 디자인)’이라는 건축 철학을 추구하게 되신 계기나 배경이 궁금합니다.
김경남_ 사무소를 처음 시작했을 때는 개보수나 리모델링 위주의 프로젝트가 대부분이었습니다. 자연스럽게 건축의 화려한 부분보다는 실질적인 부분들을 먼저 마주하게 됐죠. 예산이 넉넉한 프로젝트도 거의 없었고요. 그런 경험을 통해 ‘데모크라틱 디자인(Democratic Design, 민주적인 디자인)’에 관심을 갖게 됐습니다. 다소 생소하게 들릴 수 있지만, 말 그대로 민주적인 건축, 모두가 쉽게 판단할 수 있는 ‘가성비 있는 건축’으로도 풀이될 수 있다고 생각합니다. 저는 ‘나는 어떤 성향의 건축을 해왔고, 앞으로 어떤 건축을 해야 할까’라는 질문을 스스로에게 자주 던집니다. 떠올려보면 늘 예산에 맞춘 건축을 해왔더라고요. 누구나 멋지고 인상정인 건축을 꿈꾸지만, 현실과의 괴리가 큰 경우가 많습니다. 그런 상황에서 다른 가치를 찾다가 ‘데모크라틱 디자인’을 제 설계 철학이자 핵심 가치로 삼게 됐습니다. 사용자 중심의 사고를 바탕으로 사회적 가치를 창출하고, 지속가능성과 실용성, 그리고 아름다움을 함께 담아내는 ‘모두의 건축’을 실현하고자 노력하고 있습니다. 민주적인 건축, 모두의 건축이라는 말에 정답은 없다고 생각합니다. 그만큼 저에게도 여전히 어렵고 고민스러운 주제지만, 그 과정 자체가 제가 지향하는 건축의 길이기도 합니다.
박정연_ 사무소 이름인 ‘본 건축(주.본 종합건축사사무소)’에는 어떤 의미가 담겨 있나요? 이 이름을 짓게 된 계기가 궁금합니다.
김경남_ ‘본(BORN)’이라는 이름에는 여러 가지 의미가 담겨 있습니다. 우선, 단순하고 직관적인 이름을 원했습니다. 설계와 기획은 건축물의 시작 단계이기도 하기에, ‘탄생’이라는 의미를 담을 수 있다는 점이 마음에 들었습니다. 동시에 기본에 충실한 건축을 지향한다는 뜻도 함께 담았습니다. 주변에서도 ‘신뢰가 가는 이름 같다’는 말을 많이 해주셔서, 자연스럽게 계속 본건축이라는 이름을 사용하고 있습니다.
# 세계적으로 새로운 댄스 특화 유스센터, 그 비전에 매료되다
‘유스홀’ 적용으로 흩어진 공간 동선 유연하게 통합
“청소년들의 삶의 활력소가 되는 공간으로 자리매김하길”
박정연_ ‘정약용 펀그라운드’는 어떤 계기로 작업하게 되셨나요?
김경남_ 남양주시청에서 발주한 이번 제안 공모는 제가 오랫동안 관심을 가져온 문화 시설과 청소년 시설에 대한 고민을 현실로 옮길 수 있는 기회였습니다. 특히 건축 학계에서 저명한 김광현 교수님이 심사위원으로 참여하신다는 점도 의욕을 북돋는 요소였습니다. 발주처가 제시한 ‘세계적으로 유일무이한, 새로운 개념의 댄스 특화 유스센터’라는 비전에 깊이 공감했고, 그 방향성에 매료돼 이 프로젝트에 참여하게 됐습니다. 남양주에는 지역마다 문화예술 활동을 접할 수 있는 여러 ‘펀그라운드’가 존재하는데, 이 공간은 처음에는 ‘사암유스센터’라는 이름으로 불렸습니다. 이후 지자체가 문화 콘텐츠의 중요성을 반영하면서 ‘정약용 펀그라운드’라는 새로운 명칭이 붙여졌습니다.

박정연_ 어떤 부분에 중점을 두고 설계하셨나요?
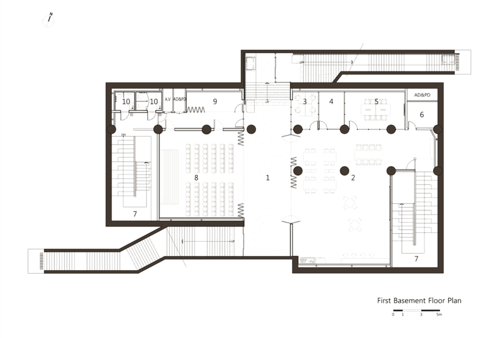
김경남_ 기존 유기농 테마파크는 운영에 어려움을 겪고 있었고, 전시 시설, 회의장, 사무 공간 위주의 구성이었습니다. 이를 유스센터로 전환한다는 것은 숙박 시설과 다양한 교육 프로그램을 수용할 수 있는 공간으로 탈바꿈한다는 의미였죠. 가장 큰 과제는 흩어져 있던 공간들의 동선을 유연하게 통합해 하나의 흐름으로 만드는 것이었습니다. 이를 해결하기 위한 핵심 아이디어가 바로 ‘유스홀’이었습니다. 또한 기존 전시관의 높은 층고를 적극적으로 활용해, 마치 작은 마을처럼 구성된 숙소 공간을 새롭게 조성했습니다. 이 유스홀이야말로 저희가 당선된 결정적인 이유였다고 생각하며, 개인적으로도 가장 잘 구현된 공간으로 꼽고 싶습니다.
이 공간은 청소년들이 선호하는 개방적이고 시원한 느낌의 넓은 공간입니다. 가변형 외벽을 설계해 공간을 다른 방향으로 확장해 열 수 있도록 했고, 그 덕분에 지상 2층, 외부 객석, 야외 마당이 자연스럽게 이어지며 확장됩니다. 내부에서는 공연장, 홀, 댄스 연습장, 놀이 시설이 하나의 흐름 안에서 연결되며, 필요에 따라 넓게 혹은 독립적으로 사용할 수 있도록 공간의 유연성을 극대화했습니다. 또 3중 필름으로 구성된 강화 천창을 통해 햇빛과 바람이 유입되며, 청소년들에게 특별한 공간 경험을 제공합니다. 여름철에는 전동 스크린 루버가 햇볕을 차단해 실내 온도를 조절하고, 사방에 설치한 환기창은 실내를 쾌적하게 유지해 청소년 활동에 최적의 환경을 마련했습니다.
공연장은 전문 공연장으로 설계해 뮤지컬, 연극, 콘서트, 클래식, 재즈, 무용 등 다양한 장르의 공연이 모두 가능합니다. 전문적인 연출·녹화 시스템을 갖추고 있어 K-팝 공연까지 소화할 수 있는 무대로 구성했습니다. 개관 당시, 청소년들이 무대 위에서 열정적으로 춤추던 모습은 지금도 기억에 남습니다. 마치 활기 넘치는 축제 현장을 보는 듯한 인상적인 장면이었습니다.
박정연_ 의도대로 공간이 사용되는 모습을 보고 기쁘셨을 것 같습니다.
김경남_ 네. 저는 이 공간이 청소년과 가족들이 함께 신나게 즐기고, 스트레스를 해소하며 삶의 활력을 되찾는 장소가 되기를 바랍니다. 앞으로 시대가 변하고 요구 사항이 달라지더라도, 변화에 유연하게 대응하며 청소년들에게 오랫동안 의미 있는 공간으로 기능하길 희망합니다. 과거와 현재, 미래를 잇는 살아 있는 공공시설로 자연스럽게 자리 잡아가길 기대합니다.

# 세계 최초 유스센터 설립 위해 다양한 전문가와 스탠딩 회의
설계 후 시공단계까지 애정 갖고 관심 쏟아
박정연_ 설계 과정에서 특히 기억에 남는 일이나, 좋았던 점과 아쉬웠던 점이 있다면 들려주세요.
김경남_ 설계 초반에 남양주시장님을 비롯한 다양한 문화 전문가들과 함께 스탠드 회의를 진행한 일이 기억에 남습니다. 자라섬 재즈페스티벌을 기획한 인재진 감독을 비롯해 여러 문화 분야 전문가들이 참여해 자유롭게 아이디어를 나누고 논의하는 과정이 매우 인상적이었습니다. 개인적으로도 매우 신선한 경험이었고, 설계자로서 큰 자부심을 느낀 순간이었습니다. 다양한 생각들이 모여 하나의 방향을 잡아가는 그 과정이 의미 깊었습니다.
남양주 펀그라운드는 세계 최초의 댄스 특화 유스센터를 설립하겠다는 의도가 담긴 만큼, 주제 자체가 쉽지 않았습니다. 스댄딩 회의에서는 유스센터를 어떻게 실질적으로 활성화할 수 있을지에 대한 여러 회의와 논의가 진행됐습니다. 예를 들어, 이곳은 입지 조건은 좋지만 도심과는 다소 거리가 있는 위치입니다. 이러한 조건 속에서 어떻게 청소년들이 자발적으로 찾아오고 머물 수 있을지, 어떤 콘텐츠와 프로그램이 실효성이 있을지 등 공간을 살아 있는 시설로 만들기 위한 고민이 설계 전반에 반영됐습니다. 접근성이 다소 떨어지는 문제를 보완하기 위해, 청소년들의 흥미를 끌 수 있는 조형물을 건물 위에 설치하는 방안 등 다양한 아이디어가 논의됐습니다. 물론 예산 등의 현실적인 제약으로 인해 모든 아이디어가 실현되지는 못했지만, 저희가 설계 초기 단계에서 제안했던 핵심적인 공간 구성과 방향성은 대부분 반영된 것 같습니다.
박정연_ 완공되기까지 아쉬운 점 등은 없으셨나요?
김경남_ 초기에는 본관과 별관이 분리되어 있어 프로그램 간 연계가 어렵다는 점을 극복하기 위해, 외부 공간에 ‘폴리(folly)’라는 구조물을 계획했습니다. 청소년들의 아지트이자 다채로운 활동이 가능한 공간으로, 두 건물을 자연스럽게 연결하면서 자연과도 조화를 이루는 구조물이었죠. 하지만 설계 막바지 단계에서 예산 확보의 어려움으로 인해 결국 이 폴리는 삭제됐고, 이는 지금도 가장 아쉬운 부분 중 하나입니다. 당시에는 설계의도 구현 제도가 도입되기 전이라 설계자가 구현 단계에 직접 참여할 수 없었고, 발주처를 충분히 설득하지 못했던 점도 아쉽게 느껴집니다. 코로나19 팬데믹으로 사업이 약 1년 반 지연되면서 담당자들이 여러 차례 바뀌었지만, 설계자만은 처음부터 끝까지 프로젝트를 지켜냈다는 점에서 의미가 크다고 생각합니다.
시공 단계에 접어들면서 설계자의 역할이 사라져, 발주처와의 소통이 원활하지 않은 상황도 있었습니다. 그래서 시공사와 직접 연락을 주고받으며 현장을 방문해 설계 의도가 현장에 잘 반영되고 있는지를 점검하는 방식으로 참여를 이어갔습니다. 역할이 정해져 있지는 않았지만, 프로젝트의 흐름을 놓치지 않기 위한 최소한의 책임이라고 생각했습니다.
# 제한된 예산 내 높은 퀄리티 건축 목표로
“좋은 건축, 인간의 삶의 중요한 영향…중심에 건축사 역할 있어”
박정연_ 설계하신 입장에서는 아쉬운 부분들이 분명 있으시겠지만, 외부에서 바라보면 각 공간마다 뚜렷한 개성과 분위기를 갖고 있다는 점이 인상적이었습니다. 전체가 하나의 건물이라고 느껴지지 않을 정도로 다양한 공간이 유기적으로 조화를 이루고 있어, 그만큼 많은 고민과 노력이 있었을 것이라 생각됩니다. 앞으로 건축사님께서 추구하고자 하시는 목표나 계획이 있다면 말씀 부탁드립니다.
김경남_ 저예산으로도 높은 퀄리티의 건축물을 구현할 수 있다는 것을 증명하고 싶습니다. 그것이 바로 본건축이 가진 힘이라고 생각합니다. 제한된 조건 속에서 완성도 있는 건축을 실현할 때 느껴지는 뿌듯함은 말로 다 표현하기 어렵죠. 앞으로도 제 건축 철학인 ‘민주적인 디자인(Democratic Design)’을 꾸준히 실천해 나가고자 합니다. 저는 좋은 건축이 사람의 삶에 깊은 영향을 미친다고 믿고, 그 중심에 건축사가 있다는 사실을 사회에 조금이라도 더 알리고 싶습니다.
박정연_ 마지막으로, 건축계에 계신 분들께 전하고 싶은 말씀이 있다면 부탁드립니다.
김경남_ 건축은 분명 쉽지 않고, 때로는 매우 고된 작업입니다. 하지만 긍정적으로 바라보면, 이보다 더 힘들고 어려운 직업들도 많습니다. 사무실이라는 안전한 환경에서 일할 수 있다는 점, 그리고 건축이라는 일이 재미있고 보람 있다는 점은 감사한 부분입니다. 저는 모든 건축사들이 현재의 어려움에만 집중하기보다는, 주어진 예산과 조건 안에서 최선을 다해 좋은 건축을 만들어가는 노력이 가치 있는 일이라고 생각합니다. 이러한 작은 노력들이 모이면, K-건축의 위상도 점차 드러나게 될 것이라 믿어 의심치 않습니다.
같은 공간, 다른 시선
‘정약용 펀그라운드’를 설계한 김경남 건축사(주.본 종합건축사사무소)는 이 외에도 다양한 공공시설 리모델링 프로젝트에 참여해왔다. 이용도가 낮았던 기존 건축물을 특색 있는 공간으로 탈바꿈시킨 그의 경험과 고민을 월간 ‘건축사’를 통해 소개한다. 자료제공=(주)본 종합건축사사무소
█ CASE 1 충무지하보도 ‘청년창업큐브’
위치 : 서울시 중구 충무로 5가 19-10 대지 / 설계 : 김경남 건축사(주.본 종합건축사사무소)
33년 넘게 방치됐던 충무로의 지하 구조물이, 2016년 서울시 주민참여예산사업을 통해 청년 창업공간으로 재탄생했다.




청년 창업문화 확산 _ 입주자들이 협업·소통할 수 있는 다목적홀, 전시·공연 관람 가능
투명한 창업공간 _ 투명한 구획으로 시원한 경관 연출 및 녹색휴게공간 계획, 폐쇄적으로 느껴질 수 있는 지하의 단점 보완
지하구조물 및 철로의 소음, 진동, 누수 고려한 이중구조 시공



지역 고려한 재료 및 색채계획 _ ▹외국인 방문이 잦은 역사문화 중심지 중구의 전통 담장 색감에 영감을 받아 지하 구조물의 기존 골조와 마감재 적극 활용 ▹벽돌, 시멘트 패널, 목재 등 기본적이면서도 편안함을 줄 수 있는 재료들을 사용해 복합문화 업무공간으로 계획 ▹유지보수가 용이하고 습기에 강한 재료 선정해 공간의 지속성 고려
█ CASE 2 음악하는 우리들의 지하 본부 ‘뮤지스땅스’ <2016년 서울시 건축상 수상>
위치 : 서울특별시 마포구 마포대로 지하238 (아현동610-1외1필지) / 설계 : 김경남 건축사(주.본 종합건축사사무소)
독립음악인들의 작업과 연습을 위한 공간으로, 6차선 대로 아래 기존 지하보도를 리모델링해 조성됐다. ‘뮤지스땅스’는 음악을 뜻하는 뮤직(Music)과, 제2차 세계대전 당시 나치 독일에 저항한 프랑스 지하 독립군 ‘레지스땅스(Résistance)’의 합성어다.

도시의 오브제
- 지하로 진입하기 꺼려지는 구조물 철거로 외부에서의 인지성·심미성 강화
- 골조 및 마감재를 투영 가능한 강화유리로 디자인, 도시 및 주변환경과의 조화 고려

도심 속 지하공간
- 이중구조 적용, 소음 및 진동 차단으로 섬세한 음악 녹음 가능
- 경사형 리프트로 접근 문제 해결 ▹ 열교환기 적용한 환기방식 채택
지역성 고려한 문화전략
재래시장과 통하는 넓은 보행공간, 대로변에 면한 2개소의 포켓공원 등 활용해 음악 공연 가능한 마당으로 활용 가능
지속 가능성
- 지하구조물 정밀안전 진단으로 장기 사용 검토
- 지하철 및 도로의 소음·진동 차단 위한 이중구조
- 습기에 강하고 유지보수 편리한 재료 선정




대담 박정연 편집국장
글 육혜민 기자
사진 안상진 기자
인터뷰 김경남 건축사 Kim, Kyungnam (주)본 종합건축사사무소
<서울특별시건축사회>
'아티클 | Article > 인터뷰 | Interview' 카테고리의 다른 글
| [심포지엄] 한국 건축 어디에 서 있는가 - 제도, 인식, 미래를 말하다 2025.6 (0) | 2025.06.30 |
|---|---|
| [인터뷰] “현재 관점에서 문화유산 재해석해 고유의 가치를 담았습니다” 김수경 건축사 2025.6 (0) | 2025.06.30 |
| 아이 엠 키라_ “새하마노로 건축의 가치를 전하고자 합니다” 서윤지 건축사 2025.5 (0) | 2025.05.31 |
| 아이 엠 키라_ “사용자 중심의, 자연스럽게 머물고 싶은 공공 공간 만들고 싶어요” 정혜정 건축사 2025.5 (0) | 2025.05.31 |
| 스케치로 남긴 시간들 “가슴 뛰는 일을 하나쯤은 품고 살자고요” 방명세 건축사 2025.5 (0) | 2025.05.31 |