2022. 12. 6. 09:19ㆍ회원작품 | Projects/Culture
09House in Ceramic Arts Village, Icheon

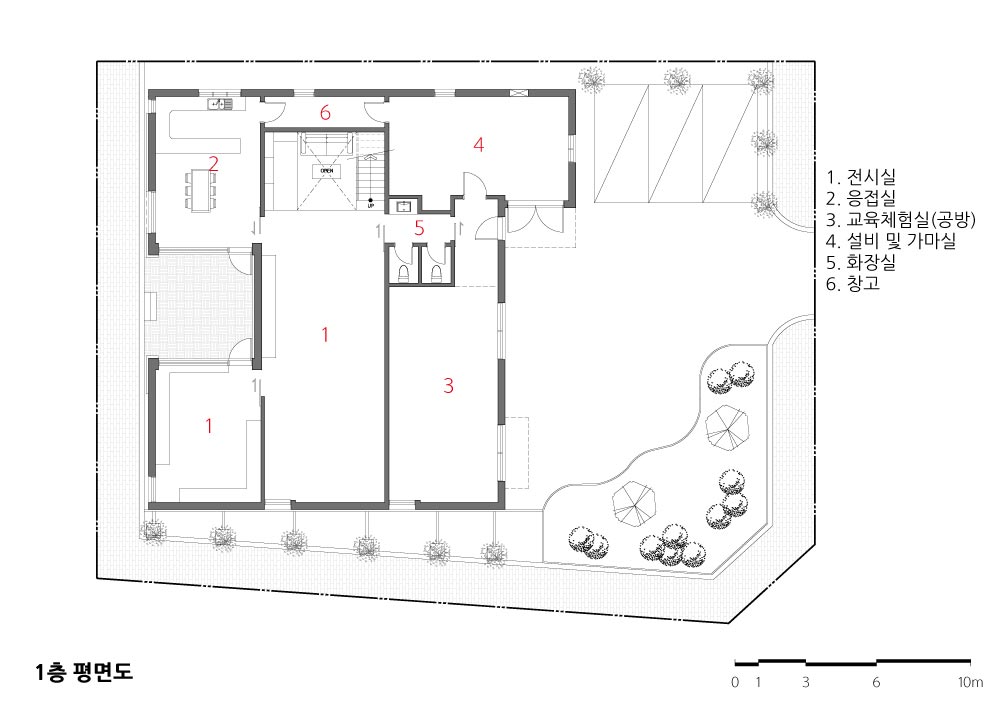
주택은 도자 회화라는 독특한 분야의 작업을 하는 작가의 갤러리와 작업공간이다. 작가 에 대한 이해에서부터 시작되어야 한다는 생각에 건축을 구체화시키기에 앞서 건축주의 작품을 감상하고 이해하는 시간을 가졌다. 건축주의 작품들은 그의 책장에 꽂혀진 미술 책들처럼 - 조르주 루오의 투박하고 순수함과, 마크 로스코의 강렬하거나 때론 잔잔한 색감, 장 미쉘 바스키아의 즉흥성과 유머러스함 - 친숙하면서도 강한 인상을 주었다.
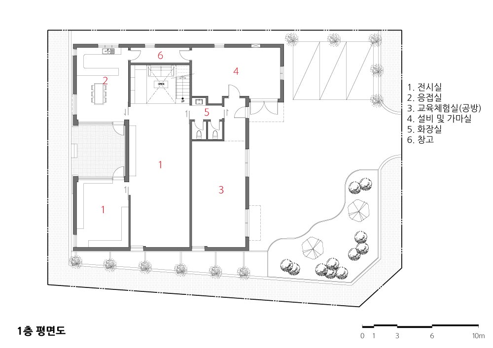
뚜렷한 색감의 도자작품을 담아내면서 한정된 예산에 맞춰 요구된 공간을 만들기 위해 유로폼 노출콘크리트를 주요 내외장재로 사용했으며, 단순한 매스가 내부의 실들이 구 분됨을 따라 외부의 형태도 구분될 수 있게 개구부를 계획했다. 또한 천창부터 1층까지 이어진 보이드 공간과 하늘로 열린 테라스를 계획하여 자연채광과 공간감을 더했다.
매일 흙과 물을 만지고 불을 접하며, 나무와 금속으로 가구를 만드는 건축주는 재료의 물 성과 건축의 공간감에 대해 깊이있는 통찰을 가졌다. 진입부에 철판을 부착하여 입구를 강조한 것은 건축주의 아이디어에서 발전시킨 결과이며, 내외부 마감 곳곳에 타일 형태 의 도자작품을 설치하기도 했다.

The house is a gallery and a work space for the owner who is an artist who specialises in ceramic painting.Priortocommencingworkonthehouse, Ihad atimeofappreciationandunderstanding the works of the house owner to give me a better idea of his requirements. The works of the house owner gave a familiar and strong impression, like the art books in his bookshelf; the ruggedness and purity of Georges Luo, the strong and sometimes calm colors of Marc Roscoe, the improvisation and humor of Jean Michel Basquiat.
In order to create the required space within the limited budget and contain the ceramics works with distinctive colours, Euroform exposed concrete was used as the main interior and exterior material. The openings were also designed to be distinguished the outer shape according that the simple mass was distinguished along the internal rooms. In addition, the natural light and space sense was aided by the void which connect from the ceiling to 1st floor and by planning the terrace which is open to the sky.
The house owner, who works with and moulds clay and water every day and makes furniture with wood and metal every day, had a thoughtful insight on the physical properties of the material and the sense of space in architecture. Emphasizing the entrance sense with the attachment of an iron plate at the entrance was the result of developing an idea from the owner and tile-shaped ceramics works were incorporated throughout the interior and exterior finishes.











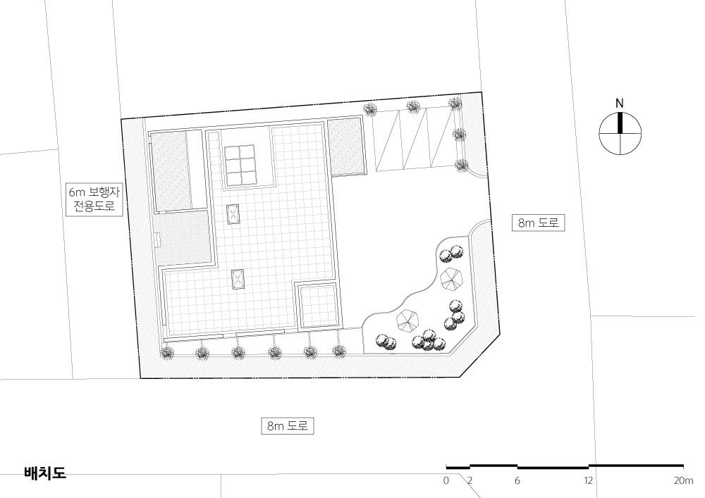
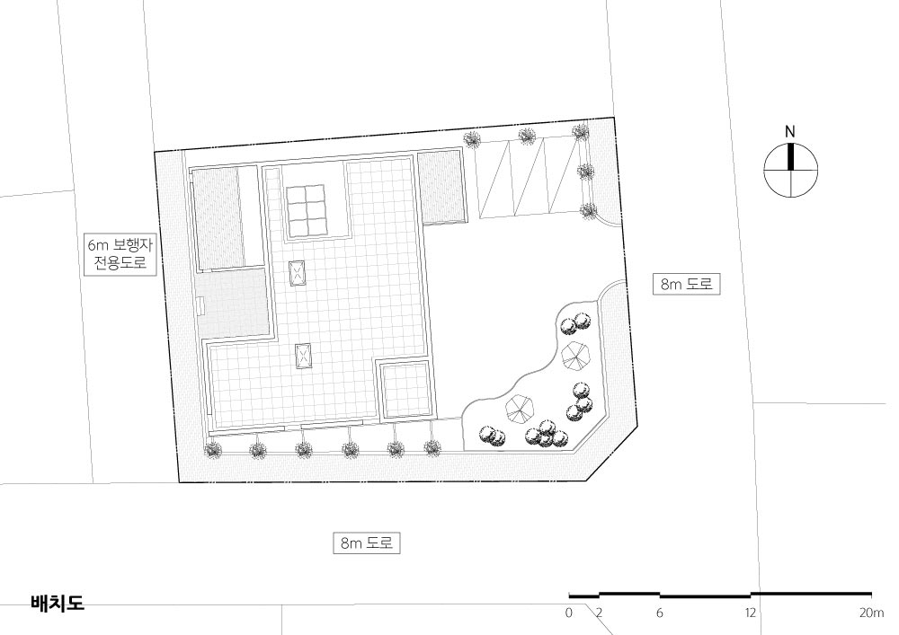
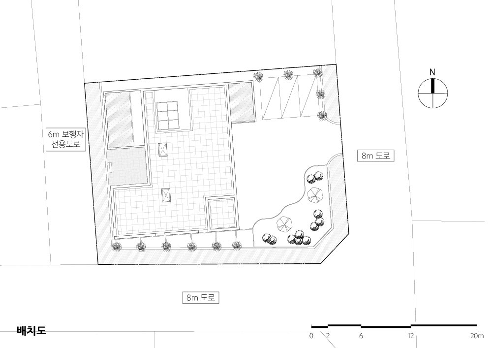
| 이천 도자예술촌 갤러리주택 설계자 ┃ 박정연 KIRA ┃ 그리드에이(Grid-A) 건축사사무소 건축주 | 김순식 감리자 | 박정연 _ 그리드에이(Grid-A) 건축사사무소 시공사 | 김순식 설계팀 | 윤여상, 윤현정 대지위치 | 경기도 이천시 신둔면 도자예술로99번길 41 주요용도 | 문화 및 집회시설(미술관) 대지면적 | 692.20㎡ 건축면적 | 249.11㎡ 연면적 | 441.55㎡ 건폐율 | 35.99% 용적률 | 63.79% 규모 | 지상 2층 구조 | 철근콘크리트조 외부마감재 | 유로폼 노출콘크리트 내부마감재 | 유로폼 노출콘크리트, 합판 + 석고보드 위 페인트도장 설계기간 | 2015. 08 ~ 2016. 07 공사기간 | 2016. 08 ~ 2017. 07 사진 | 박정연, 윤여상 전문기술협력 구조분야 : (주)파워구조기술사사무소 기계설비분야 : GM엔지니어링(주) 전기분야 : GM엔지니어링(주) 소방분야 : GM엔지니어링(주) |
House in Ceramic Arts Village, Icheon Architect | Bahk, Joungyeon _ Grid-A Architecture Client | Kim, Soonsik Supervisor | Bahk, Joungyeon _ Grid-A Architecture Construction | Kim, Soonsik Project team | Yoon, Yeosang / Yoon, Hyunjung Location | 41, Dojayesul-ro 99beon-gil, Sindunmyeon, Icheon-si, Gyeonggi-do, Korea Program | Culture and gathering facility(Gallery) Site area | 692.20㎡ Building area | 249.11㎡ Gross floor area | 441.55㎡ Building to land ratio | 35.99% Floor area ratio | 63.79% Building scope | 2F Structure | RC Exterior finishing | Exposed concrete Interior finishing | Exposed concrete, Vinyl paint finish above Gypsum board Design period | Aug. 2015 ~ Jul. 2016 Construction period | Aug. 2016 ~ Jul. 2017 Photograph | Bahk, Joungyeon / Yoon, Yeosang Structural engineer | Power Structural Engineering Mechanical engineer | GM Engineering Electrical engineer | GM Engineering Fire engineer | GM Engineering |
'회원작품 | Projects > Culture' 카테고리의 다른 글
| 평창동 미술문화복합공간 2018.12 (0) | 2022.12.09 |
|---|---|
| 서울하수도과학관 2018.10 (0) | 2022.12.08 |
| 오티움 웨딩 컨벤션 2018.06 (0) | 2022.12.02 |
| 대전장애인체육센터 2018.04 (0) | 2022.12.01 |
| 석문문화스포츠센터 2018.03 (0) | 2022.11.30 |