2022. 12. 2. 18:15ㆍ회원작품 | Projects/Culture
Otium Wedding Convention

대지읽기
대지는 부강리 금강변에 있는 과거 산업단지의 유휴지이다. 대지 앞쪽으로는 경관이 수려한 금 강의 수공간이 펼쳐져 있고 뒤쪽으로는 기존 시골마을과 완충공간을 갖는 넓은 평지가 위치한 다. 그리고 양옆으로는 레미콘 공장들이 들어서 있으나 추후 사업만료 시점에 있고 세종시에서 조성한 부강리 문화체육공원이 위치해있다.
배치계획
경관이 수려한 금강변 조망을 고려하여 금강으로 마주하여 배치했다. 3층에 넓은 옥외데크를 설 치하여 비어있는 공간을 두어 다목적 공간이 될 수 있는 여지를 두었다. 웨딩컨벤션라는 특성을 고려하여 이용자별 동선을 고려한 주차계획과 건물 전면에 진입광장을 두어 다양한 소통이 일 어날 수 있는 오픈스페이스를 확보했다.
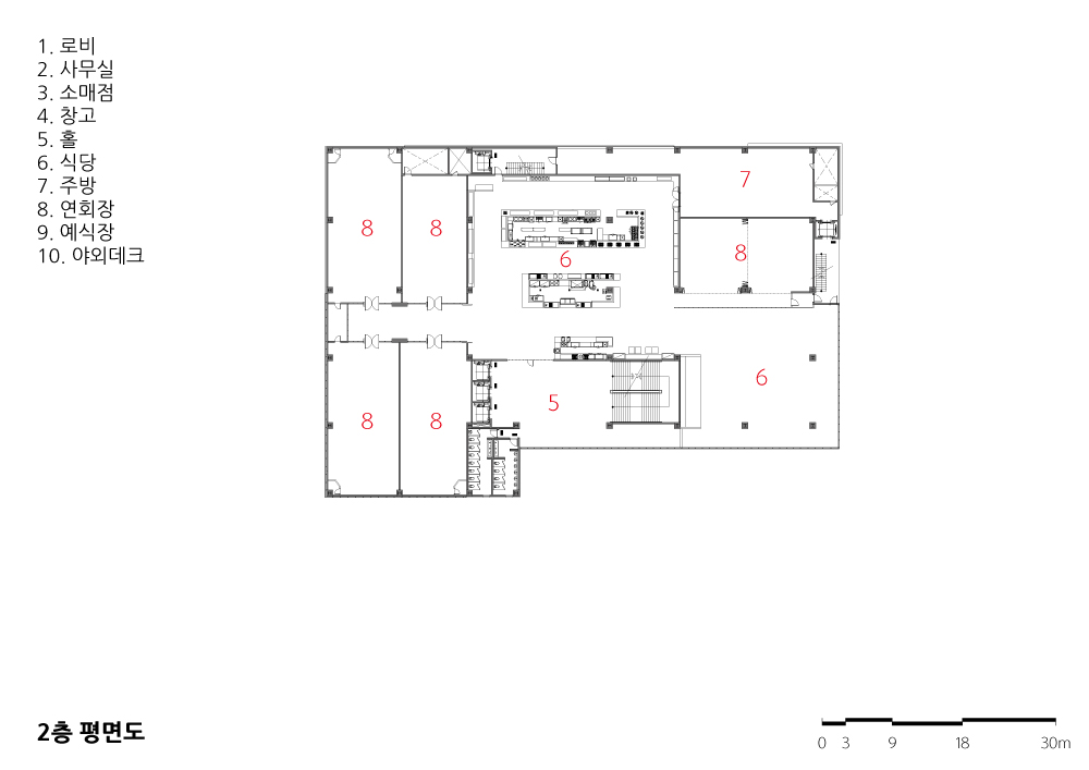
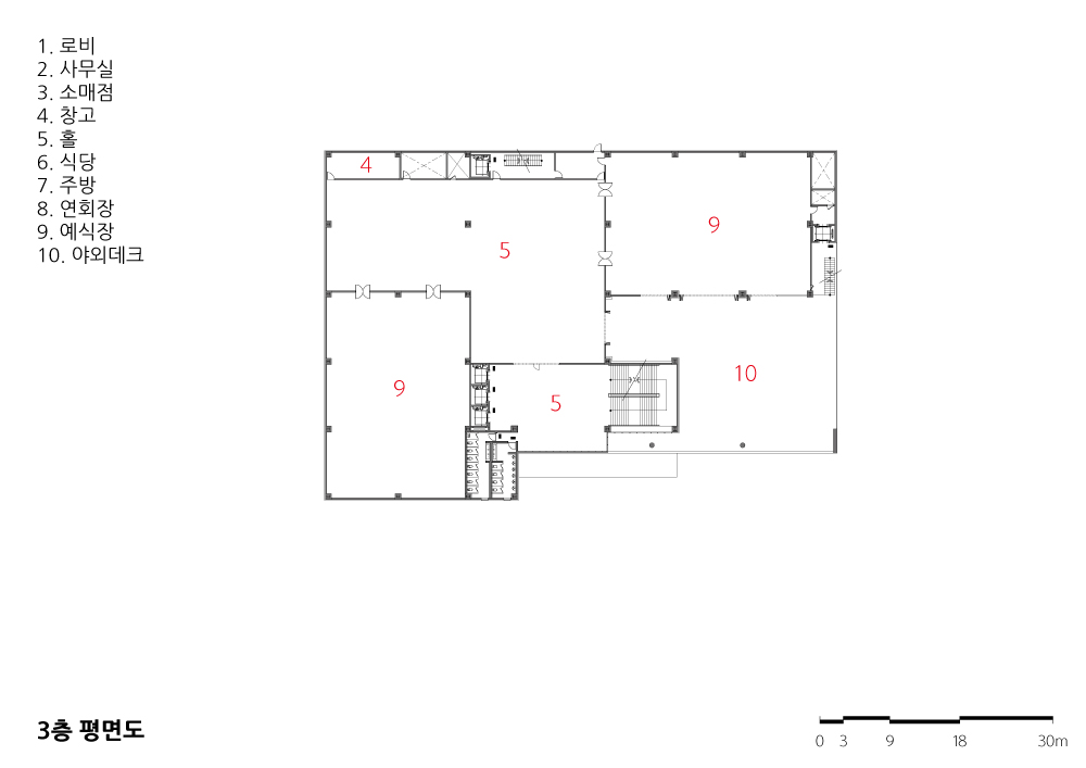
평면계획
1층 넓은 로비공간으로 들어서면 접근이 용이한 사무실과 소매점이 위치한다. 이용자의 동선을 고려하여 4층에 웨딩서비스 공간, 3층 웨딩홀, 2층 연회장 순으로 들어서있다. 실별 특성을 고 려하여 2층은 금강이 조망 가능한 연회장, 3층은 2개층이 오픈된 웨딩홀과 외부데크를 두어 다 양한 이벤트가 가능하도록 계획됐다.

Read the site
The site is an abandoned plot of land within the previous industrial complex around Geum River in Bugang-ri. In front of the site, the water-space of the magnificent Geum River is unfolded. To the rear, there is a large flat area with views of the existing rural village and buffer area. There are abandoned ready-mixed concrete factories on either side, and there is the Bugang-ri Cultural Sports Park constructed by Sejong City.
Layout plan
Considering the magnificent view of Geum River, it was placed facing the river. A spacious outdoor deck on the third floor becomes a multipurpose area. Considering the characteristics of wedding conventions, the parking plan, and the entrance plaza in front of the building secure open space where various functions can occur.
Floor plan
Once you enter the spacious lobby on the first floor, you will find offices and retail outlets that are accessible. The wedding service space on the 4th floor, the wedding hall on the 3rd floor, and the banquet hall on the 2nd floor are located in order. Considering the characteristics of each room, the second floor is planned to have a banquet hall with a view of the river, and the third floor has a wedding hall with two floors open and an outside deck so that a variety events can take place.











| 오티움 웨딩 컨벤션 건축주 | (유)세종하이브 감리자 | 박진만 KIRA_ (주)테마 종합건축사사무소 시공사 | (주)제인건설 대지위치 | 세종특별자치시 부강면 원앙1길 22 주요용도 | 문화 및 집회시설(예식장) 대지면적 | 6,600.00㎡ 건축면적 | 2,687.00㎡ 연면적 | 7,086.24㎡ 건폐율 | 40.71% 용적률 | 107.37% 규모 | 지상 4층 구조 | 철골철근콘크리트조 외부마감재 | 시멘트보드, 노출 콘크리트, 알루미늄 쉬트 내부마감재 | PVC 타일, 현무암, 카펫, 비닐페인트 설계기간 | 2016. 05 ~ 2016. 12 공사기간 | 2017. 03 ~ 2017. 12 사진 | 박진만 구조분야 : (주)센구조연구소 기계설비분야 : (주)대림엠이씨 전기분야 : (주)대림엠이씨 소방분야 : (주)대림엠이씨 |
Otium Wedding Convention Architect | Park, Jinman _ Theme Architects Client | Sejong Hive Co., Ltd. Supervisor | Park, Jinman _ Theme Architects Construction | Jein Construction Location | 22, Wonang 1-gil, Bugang-myeon, Sejong-si, Korea Program | Culture and assembly facilities (Wedding hall) Site area | 6,600.00㎡ Building area | 2,687.00㎡ Gross floor area | 7,086.24㎡ Building to land ratio | 40.71% Floor area ratio | 107.37% Building scope | 4F Structure | SRC Exterior finishing | CRC board, Exposed concrete, AL sheet Interior finishing | PVC tile, Basalt, Carpet, Vinyl paint Design period | May. 2016 ~ Dec. 2016 Construction period | Mar. 2017 ~ Dec. 2017 Photograph | Park, Jinman _ Theme Architects Structural engineer | SEN Engineering Group Mechanical engineer | Dearim MEC Electrical engineer | Dearim MEC Fire engineer | Dearim MEC |
'회원작품 | Projects > Culture' 카테고리의 다른 글
| 서울하수도과학관 2018.10 (0) | 2022.12.08 |
|---|---|
| 이천 도자예술촌 갤러리주택 2018.08 (0) | 2022.12.06 |
| 대전장애인체육센터 2018.04 (0) | 2022.12.01 |
| 석문문화스포츠센터 2018.03 (0) | 2022.11.30 |
| 작은 영화관 _ 아리아리 정선시네마 2018.02 (0) | 2022.11.09 |