2022. 11. 9. 18:17ㆍ회원작품 | Projects/Culture
A small theater, Ariari Jeongseon Cinema

아리아리시네마가 들어서기 전에 정선군은 영화를 관람 할 수 있는 영화관이 없어 군민들이 다양한 문화생활을 누리기 어려운 상황이었다. 이러한 상황에서 군내 작은 영화관을 설계해 군민의 문화복지 향상을 도모하고자 했다.
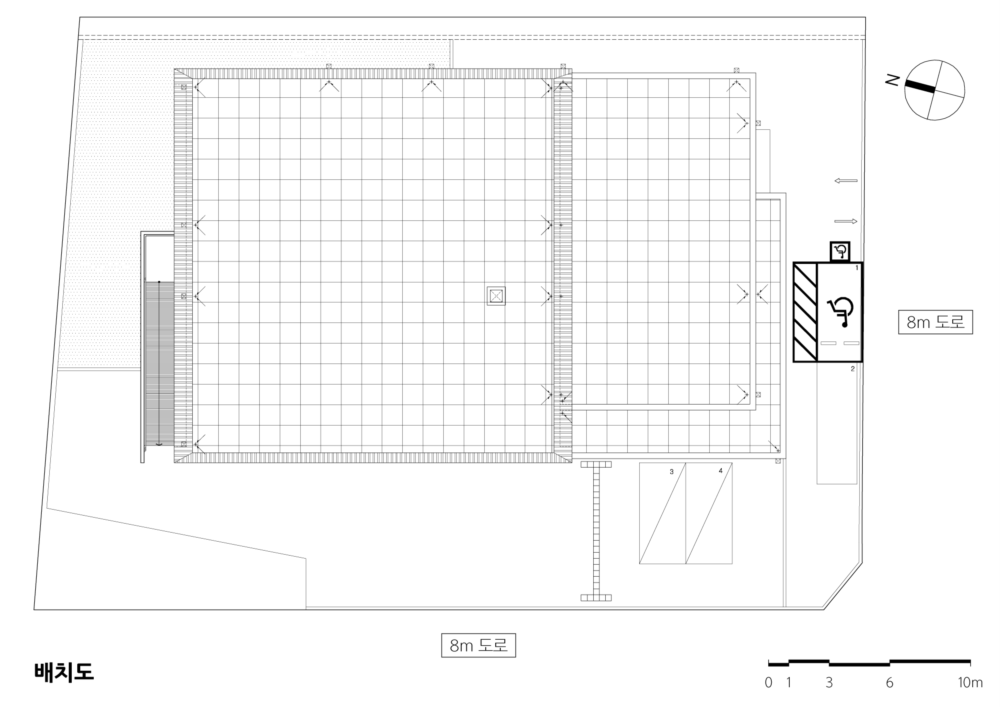
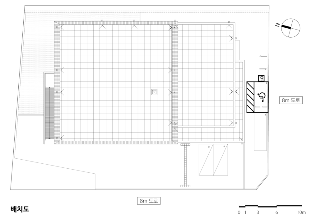
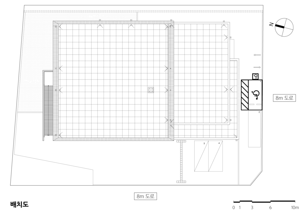
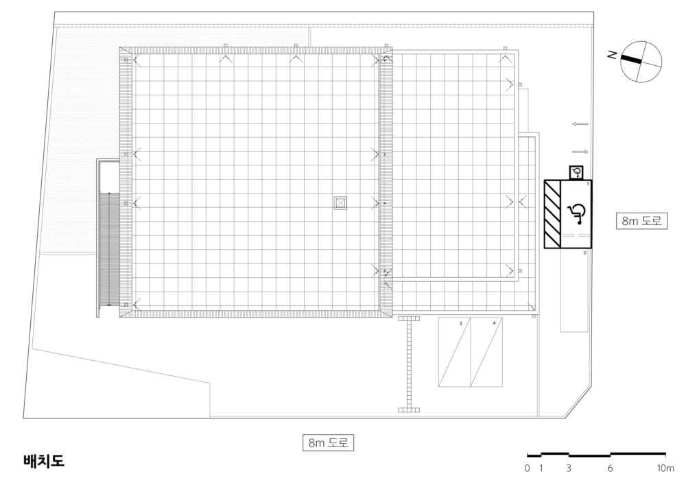
배치
본 프로젝트의 대지는 정선군 내 위치하며 맞은 편에는 새로 들어선 사회복지관 건물과 주택가 골목길로 이루어져 있는 작고 아담한 곳이다. 영화관이라고 해서 요란하게 치장하기보다는 조용하고 아담하며 주변 분위기를 해치지 않는 건물이 되길 원했다.
입면
한정된 공사비 안에서 최대한 합리적인 재료선택과 입면을 결정해야만 했다.
징크패널과 노출콘크리트패널, 그리고 고밀도 압축목재패널을 사용하여 모던하고 간결한 입면을 추구하고자 했다.
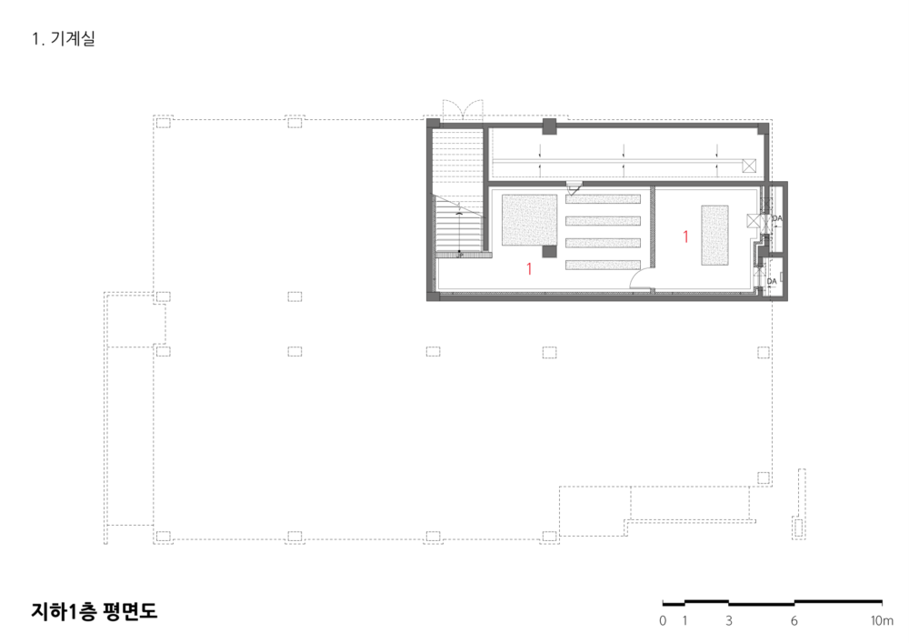
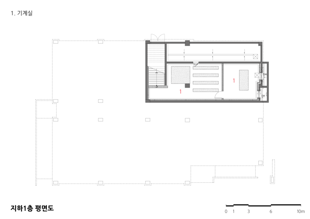
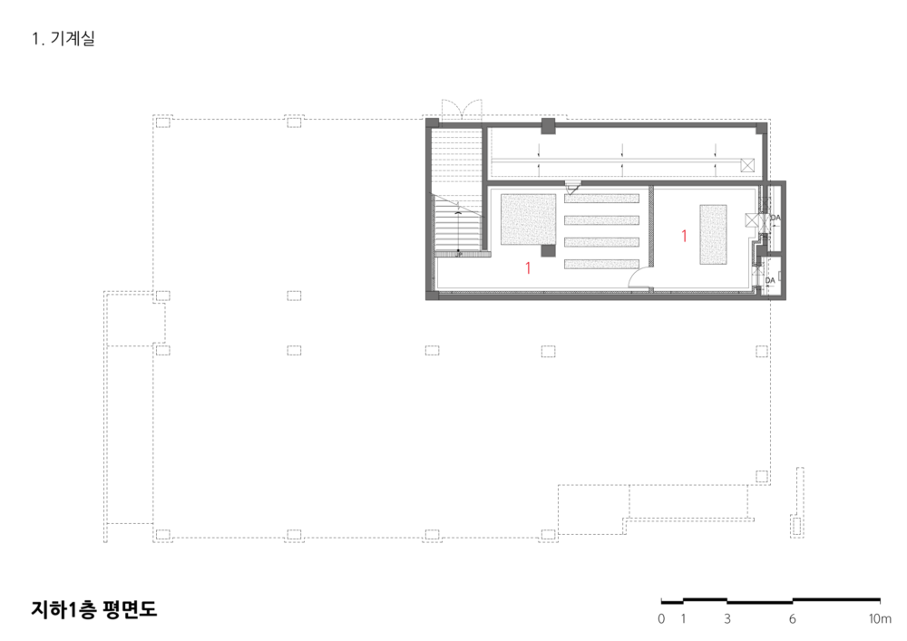
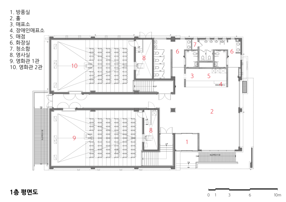
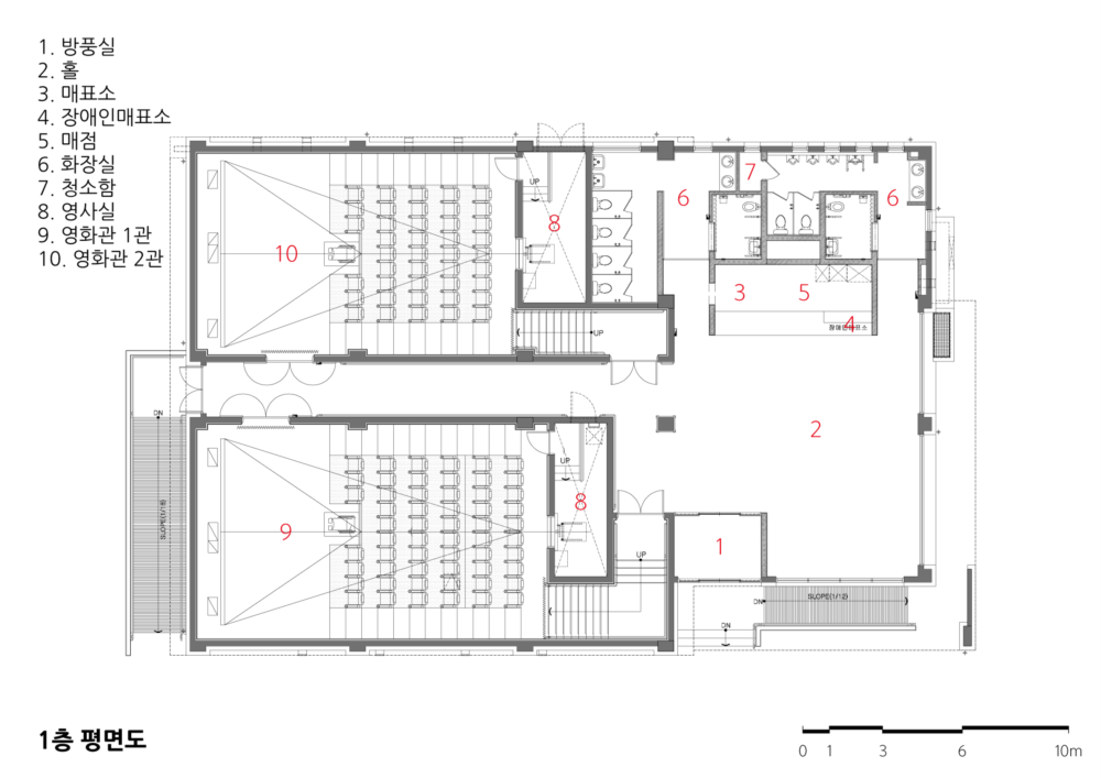
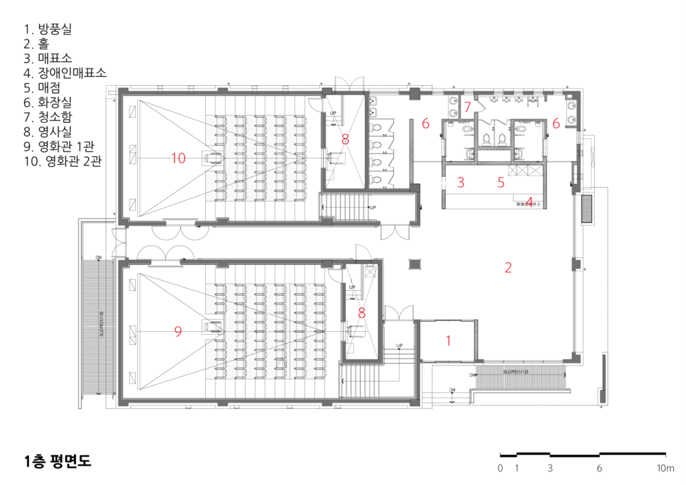
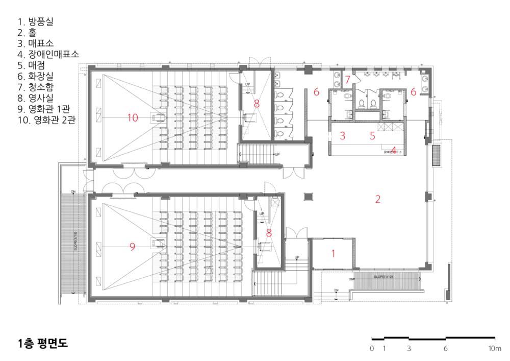
평면
작은 공간안에서 함축적이고 꼭 필요한 기능으로만 선별해 공간 배치를 해야했다. 불필요한 기능은 과감히 배제했고 지역주민들을 위해 동선도 간편하도록 계획했다.
작은 2개의 상영관을 설정, 총 101명(1관 58석, 2관 43석)을 수용할 수 있는 공간으로 설계했고, 관람객들의 편의를 위한 휴게실도 마련했다.
대규모 멀티플랙스 상영관에서 모티브를 가져온 인테리어 계획으로 세련되고 현대적인 영화관으로 만들고자 했으며, 시민들이 영화에 대한 기대감을 한껏 끌어올릴 수 있는 공간으로 만들기 위해 노력했다.
작은 영화관이 정선의 군내 지역주민들이 함께 문화생활을 공유할 수 있고 정선 문화생활의 질을 한 단계 끌어올릴 수 있는 건축물이 되길 기대한다.

Before opening the Ariari Jeongseon Cinema, Jeongseon-gun had no cinemas to watch movies, making it difficult for the residents to enjoy various cultural life. In this situation, I wanted to design a small movie theater in the area to improve the cultural welfare of the locals.
Layout
The site of this project is located in Jeongseon-gun, and on the opposite side there is a small and cozy place consisting of a new social welfare building, residential houses and allies. I tried to avoid damaging the quiet and small atmosphere rather than decorating the building richly as a movie theater.
Elevation
In a limited construction cost, I had to decide the most reasonable material and elevation.
I attempted to pursue modern and concise elevation by using zinc panels, exposed concrete panels and high-density compact wood panels.
Floor Plan
I had to sort out spaces in this small space considering only essential and necessary functions. So I boldly excluded unnecessary functions and planed a simple flow of movements for the locals.
It is designed as a space that can accommodate a total of 101 people in two small theaters (58 seats for Theater 1, 43 seats for Theater 2) and a lounge for the convenience of visitors.
The interior plan, inspired by a large-scale multiplex cinema, has made people get rid of prejudice against the country's cinemas, and has made it a space in which citizens can expect as much as possible.
A small movie theater is expected to be a building where local residents of Jeongseon-gun can share cultural life together and raise the quality of Jeongseon’s cultural life to a higher level.















| 작은 영화관 _ 아리아리 정선시네마 설계자 | 김영철 KIRA _ (주)건축사사무소 태백 건축주 | 정선군청 감리자 | 김춘래 _ 건정 건축사사무소 시공사 | 백경기 _ 주식회사 우리문화 설계팀 | 송금순, 최흥진, 임승완, 김경모, 한대규, 심영림 대지위치 | 강원도 정선군 정선읍 봉양6길 10 주요용도 | 문화 및 집회시설 _ 영화관 대지면적 | 1,079.00㎡ 건축면적 | 517.06㎡ 연면적 | 575.86㎡ 건폐율 | 47.92% 용적률 | 45.30% 규모 | 지하 1층, 지상 1층 구조 | 철근콘크리트조 외부마감재 | 징크패널, 고밀도 압축패널, 송판무늬 노출콘크리트 내부마감재 | 차음시트, 논슬립타일, 카펫타일, 친환경 수성페인트 설계기간 | 2015. 06 ~ 2016. 05 공사기간 | 2016. 06 ~ 2017. 04 구조분야 : (주)중앙구조 이앤지 기계설비·전기·소방분야 : 한일엔지니어링 |
A small theater, Ariari Jeongseon Cinema Architect | Kim, Youngchul _ Taebaek Architets office Client | Jeongseon County Office Supervisor | Kim, Chunrae _ Geonjeong Architects office Construction | Baek, Gyeonggi _ Woorimoonwha company Project team | Song, Geumsoon / Choi, Heung-jin / Im, Seung-wan / Kim, Kyungmo / Han, Dae-kyu / Shim, Young-rim Location | 10, Bongyang 6-gil, Jeongseon-eup, Jeongseon-gun, Gangwon-do, Korea Program | Culture and assembly facilities _ Movie theater Site area | 1,079.00㎡ Building area | 517.06㎡ Gross floor area | 575.86㎡ Building to land ratio | 47.92% Floor area ratio | 45.30% Building scope | B1F – 1F Structure | RC Exterior finishing | Zinc panel, HPL(High Press Laminate) panel, Exposed concrete with wood texture Interior finishing | Noise isolation seat, Non-slip tile, Carpet tile, Eco-friendly water paint Design period | Jun. 2015 ~ May. 2016 Construction period | Jun. 2016 ~ Apr. 2017 Structural engineer | Joon-ang structer ENG Mechanical·Electrical·Fire engineer | Han-il ENG |
'회원작품 | Projects > Culture' 카테고리의 다른 글
| 서울하수도과학관 2018.10 (0) | 2022.12.08 |
|---|---|
| 이천 도자예술촌 갤러리주택 2018.08 (0) | 2022.12.06 |
| 오티움 웨딩 컨벤션 2018.06 (0) | 2022.12.02 |
| 대전장애인체육센터 2018.04 (0) | 2022.12.01 |
| 석문문화스포츠센터 2018.03 (0) | 2022.11.30 |