2022. 11. 30. 23:21ㆍ회원작품 | Projects/Culture
Suk-Mun Culture & Sports Center

문화충격(culture shock)
다른 문화권이나 집단에 들어가 기대되는 역할과 규범을 잘 모를 때 겪게 되는 혼란, 우울·불안의 경험. 나에겐 건축이 산업이라고 인식되지 않고 고상한 문화, 종합예술로서만 존재하는 시기가 있었다. 교육이 그러하지 않았나 싶다.
이제 건축은 개인의 것을 넘어 공공재로의 인식도 많이 높아지고 그것이 또 법으로도 보완되고 있는 실정이다. 소규모 건축물 감리제도 개선이 그렇다.
보면서 눈살을 찌푸리게 하고, 호불호가 갈리는 개성있는 건축물은 늘 위험하다. 그것을 부도덕하다고 말하는 것은 마치 내가 선비의 인격을 갖춘 듯 한 발언이기도 하다.
석문 문화스포츠센터는 분명 개성이 있다. 게다가 작은 면 단위지역이다. 심의위원회에서 지역성을 고려해서 경관심의를 권고 받았다. 무엇을 걱정했는지 충분히 알고 있다.
시골이라고 산과 들판만 있는 것은 아니다. 바로 앞은 석문국가공단이고 그 지원단지 및 기존 면 소재지 등 도시화, 산업화도 이루어지는 곳이라고 설명했다. 무리가 있다는 것을 안다.
오히려 형태에 대한 고민보다 무엇을 담을지가 더 큰 고민이었다. 내가 담는다고 담기는 것은 아니지만 그 쓰임은 아직도 머리가 아프다. 다만 지역사회 교류의 장으로 역할이 멈추지 않기를 바라고, 덧붙여 유휴부지에 기존 게이트볼장과 그 외 다른 시설들이 보완되어 활성화되길 기대하고 있다.
석문면 문화스포츠센터가 자극제이자 촉진제로서, 엔돌핀으로서, 경쾌함과 젊음으로서, 산업단지·화력발전소·바닷가 관광지를 가지고 있는 석문면의 활력이 되기를 기대해본다.

Culture Shock
The experience of confusion, depression and anxiety when you are not familiar with expected roles and norms in other cultures or groups. For me, there was a time when architecture was not recognized as an industry, but it existed only as a noble culture and a synthetic art. It seems to be the same for education.
Now, architecture has become more aware of public goods than individual ones, and it is also supplemented by law. It is the same for the improvement of small-scale building supervision system.
It is always dangerous to have a unique building that raises a few eyebrows and people either love or hate. To say that it is immoral is also a statement that I seem to have the character of a scholar.
Seongmun Cultural Sports Center has a distinct personality. In addition, it is a small myeon unit area. I was advised to deliberate the landscape considering the locality by the Deliberation Committee. I know enough what they are worried about.
Even the country has not only mountains and fields. I explained that it is a place where it is urbanized and industrialized, including Seongmun National Complex in front of this, its supporting complex and the existing myeon location. I know there is a difficulty.
Rather, I worried about what to put rather than worrying about a form. Even if I put, it does not mean to take it, but the use still is a headache. However, I hope that it will not stop its role as a place for community exchanges. In addition, I expect that the existing gateball court and other facilities will be complemented and activated on idle sites.
Seogmun-myeon Cultural Sports Center is expected to become a vitality of Seogmun-myeon which has industrial complex, thermal power plant and beach sightseeing spot, as stimulant, accelerator, endorphin, liltingness and youth.



















|
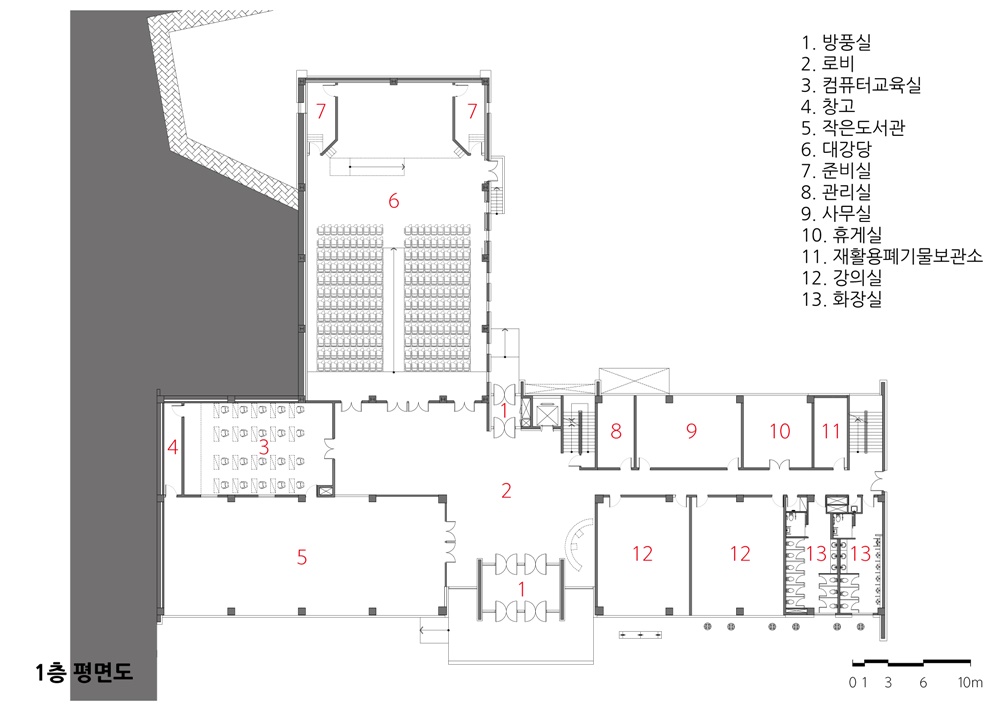
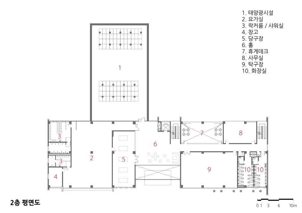
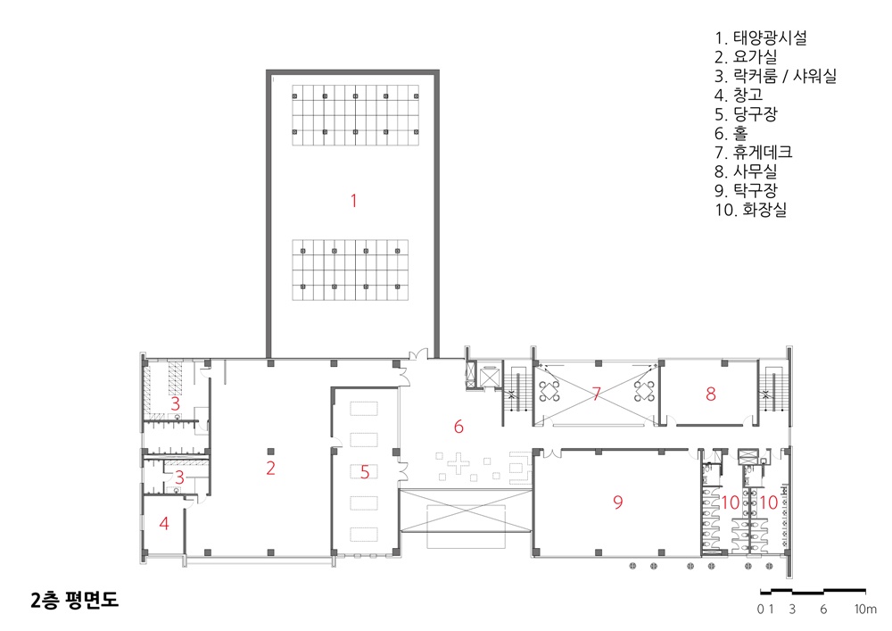
석문문화스포츠센터 설계자 | 이해운 KIRA _ (주)예감 건축사사무소 건축주 | 당진시 감리자 | 박명순 _ (주)바우플랜 종합건축사사무소 시공사 | 디엘종합건설(주) 설계팀 | 김종철, 이승엽, 신현숙 대지위치 | 충청남도 당진시 석문면 대호만로 1543 주요용도 | 문화 및 집회시설 대지면적 | 10,044㎡ 건축면적 | 1,586.02㎡ 연면적 | 3,600.53㎡ 건폐율 | 15.79% 용적률 | 35.85% 규모 | 지하 1층, 지상 3층 구조 | 철근콘크리트조 외부마감재 | 화강석, 세라믹 패널 내부마감재 | 강화마루, 카펫타일, 화강석, 수성페인트, 패브릭 설계기간 | 2015. 04 ~ 2015. 10 공사기간 | 2015. 11 ~ 2017. 09 사진 | 채수옥 구조분야 : SH구조엔지니어링(주) 기계설비분야 : 서해기술단(주) 전기분야 : 서해기술단(주) 소방분야 : 서해기술단(주) |
Suk-Mun Culture & Sports Center Architect | Lee, Haiwoon _ YehGam Architects Group Co.,Ltd Client | Dang Jin city Supervisor | Park, Myungsoon _ Ba-u plan General Architects Office Construction | DL Construction Co., Ltd. Project team | Kim, Jongcheol / Lee, Seungyeop / Shin, Hyeonsuk Location | 1543, Daehoman-ro, Seongmun-myeon, Dangjin-si, Chungcheongnam-do, Korea Program | Culture and assembly facilities Site area | 10,044㎡ Building area | 1,586.02㎡ Gross floor area | 3,600.53㎡ Building to land ratio | 15.79% Floor area ratio | 35.85% Building scope | B1F - 3F Structure | RC Exterior finishing | Granite stone, Ceramic panel Interior finishing | Fortified floor, Carpet tiles, Granite, Water paint, Fabric Design period | Apr. 2015 ~ Oct. 2015 Construction period | Nov. 2015 ~ Sep. 2017 Photograph | Chae, Suok Structural engineer | SH Structural Engineering Mechanical engineer | SeoHae Technical group Co,.Ltd Electrical engineer | SeoHae Technical group Co,.Ltd Fire engineer | SeoHae Technical group Co,.Ltd |
'회원작품 | Projects > Culture' 카테고리의 다른 글
| 서울하수도과학관 2018.10 (0) | 2022.12.08 |
|---|---|
| 이천 도자예술촌 갤러리주택 2018.08 (0) | 2022.12.06 |
| 오티움 웨딩 컨벤션 2018.06 (0) | 2022.12.02 |
| 대전장애인체육센터 2018.04 (0) | 2022.12.01 |
| 작은 영화관 _ 아리아리 정선시네마 2018.02 (0) | 2022.11.09 |