2025. 12. 31. 10:50ㆍ회원작품 | Projects/House
the Hanok Heritage House

건축물부문│한옥부문 본상<MAIN PRIZE>
영월 더 한옥 헤리티지하우스, 선암종가(仙巖宗家)
층암절벽과 강을 품은 별서(別墅)
강원도 영월군 남면 북쌍리 — 서강이라 불리는 평창강을 사이에 두고, 절경을 이루는 기암(奇巖) 선돌과 마주하는 종택이 있다. 영월 종택은 한옥 호텔 브 랜드 ‘더 한옥 헤리티지하우스’의 첫 번째 프로젝트이자, 한옥의 정체성을 재 정립하게 될 미래의 문화유산이다. 종택은 산세를 따라 자연스럽게 배치되며, 차경(借景)을 통해 외부의 수려한 풍경을 실내로 끌어들인다. 한옥의 ‘보편적 인 불편요소’를 제거해 편리하고 합리적인 공간으로 구성하고자 했으며, 지형 을 활용한 지하 공간을 통해 기능적 공간을 수용하는 동시에 외형은 전통의 조 형성을 유지하고자 했다. 층암절벽과 강을 품은 이 종택은 자연과의 조화 속에 지어진 현대적 별서(別墅)로 자리하며, 새로운 한옥의 가능성을 제시한다.
한옥의 진정성을 담은, 종택(宗宅)
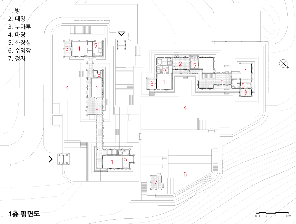
1. 전통한옥의 현대적 재해석
전통한옥의 고즈넉함, 휴먼 스케일에 맞는 소담한 방의 느낌을 살리면서 종택 의 위계를 알리는 의장적 요소가 가미되어 다양한 감성의 공간감을 느낄 수 있 다. 실외로 연결되는 방-욕실과 같은 한옥 스테이의 ‘보편적인 불편요소’를 제 거하면서 편리하고 합리적인 공간으로 재해석하였다.
2. 차경(借景)
침실, 누마루, 욕실과 다실 등 여느 휴식공간으로도 외부공간과 주변의 푸른 녹음이 어우러져 스며들도록 ‘차경’이 만들어지는 실 배치를 유지하였다.
3. 지형을 이용한 명쾌한 구조
가장 높은 곳에 위치한 종택은, 지형을 활용하여 지층은 한식목구조, 지하는 철근콘크리트구조로 계획하였다. 지층의 한옥은 각 동마다 2개의 객실을 두 고, 가운데 큰 대청과 한편의 다실을 마련하였다. 기존의 지층은 3개의 객실로 설계되었으나, 시공과정에서 답답한 2칸 남짓의 대청과 그에 따라 좁게 형성될 복도공간보다는 종택의 시원하고 널찍한 느낌을 원하는 건축주의 고심 끝에 객실 개수를 통한 수익성보다는 투숙객에게 개방감 있는 공간을 경험할 수 있도록 하였다. 한옥의 주칸 개념에서 비교적으로 자유 로운 구획과 층고계획이 가능한 지하층에는 주방, 다이닝룸, 갤러리, 서재와 같 은 대공간과 서비스를 위한 실들을 배치하여 기능적인 공간을 풀어내었다.
미래의 가치를 빚어낼, ‘더 한옥 헤리티지하우스’
잘 지은 한옥의 정의, ‘더 한옥’
종택은 부지 선정에서부터 설계, 시공단계까지 건축주의 시간과 정성, 끊임없 는 연구와 참여자들의 소통을 통해 완공된 건물이다. 우선, 건축주는 부지 매 입부터 전국 곳곳을 누비다 영월 선돌 위에 오른 끝에 종택의 위치를 결정하게 되었다. 이곳을 수년간 지켜보면서 바람이 불어오는 바람길, 주변환경, 경관을 분석하며 밑그림을 그려온 것이다.
설계단계에서 건축주와의 소통은 주로 3D모델링으로 진행하였다. 종택은 디 테일하게 올린 모델링을 통해, 각 실별 개구부로 보이는 풍경, 지붕의 곡선, 높 이, 담장, 단차, 식재 등을 10㎝ 단위까지 조절하는 철저한 계산아래 현재의 종택 일원이 계획되었다.
목재를 건조하는 과정에서도 건축주가 직접 개발한 목재 건조시스템을 사용하 여 일반적인 함수율보다 낮은 15%로 낮출 수 있었다. 잘 말린 단단한 나무는 불가피하게 기계치목으로 진행되어 목수들이 3D모델링 프로그램을 배우며 시공하였다.
또한, 신한옥에 적용하는 일반적인 단열재와 다른 천연소재의 단열재를 찾아 현행 기준에 충족하는 천연 양모 단열재를 수입하여 적용하였다. 삼중창의 목 재창호 무게를 버티기 위해 직접 제작한 철물과, 시야에 가림이 없도록 독일산 투명 방충망을 수입하는 등 편리하고 쾌적한 한옥의 실내환경을 느낄 수 있도 록 국산과 외산을 가리지 않은 고급재료를 찾아 적용하였다.
종택을 짓는다는 것은, 건축주, 설계자, 시공자 모두에게 실험이자, 미지의 여 행이었다. 결과적으로 ‘더 한옥’은 기존 한옥의 재료적, 시공상의 한계를 극복 해 냈으며 앞으로의 가능성을 보여주고 있다.
한옥의 가치를 창출하는 ‘헤리티지하우스’
종택의 실내·외 곳곳에는 한국 작가들의 미술작품, 전통공예품, 가구 등이 놓 여있다. 한옥과 어우러지는 예술가들의 전시회, 음악회, 투숙객뿐만이 아닌 일 반인을 위한 투어 프로그램도 운영하고 있다. 이곳은 단순히 한옥 호텔, 머무 름의 개념에서 나아가 한옥, 한국의 전통문화를 소개하는 ‘문화 플랫폼’의 역 할을 하고 있다.
심사평
산지형 한옥으로써 대규모 단층 한옥으로 인지되지만 지형을 활용한 지하 현 대식 공간 활용과 지상부 전통한옥의 채나눔을 비롯한 마당과 지붕의 위계를 탁월하게 구현해 실내 어느 곳에서든 자연과 조우할 수 있도록 하였다. 준공 4 년 차이지만 신축건물 못지않은 컨디션을 유지하고 있음에 천년의 문화자산을 염두한 설계자와 시공자의 노력을 물론, 종택을 탄생시킨 건축주의 한옥에 대 한 남다른 애정과 관심이 절실히 느껴진다.
한옥문화 발전을 위한 기여도나 국민의 삶의 질 제고를 위한 영향력 측면에서 볼 때 긍정적일 수 있는 반면 하이엔드급 호텔이라는 타이틀 및 입지적 특성상 일반 대중들에게는 쉽사리 다가갈 수 없음에 아쉬움이 남는다. 하지만, 종택의 작품설명에서 “자연 속에서 인간이 연결되고 관계를 다시 시작할 수 있는, 그 야말로 ‘감각적 쉼터’ 같은 공간을 지향한다.”라고 하였다. 일부 국비지원과 영 월군에서의 문화 관광자원 확보와 연계를 위한 관심이 크므로 개방된 쉼터로 서의 역할을 할 수 있는 진정한 감동적 공간으로 거듭나 한옥을 누구나 향유할 수 있기를 기대해 본다.




Yeongwol The Hanok Heritage House – Seonam Jongga
A Modern Retreat Embracing Cliffs, River, and Landscape
Located in Namsan-myeon, Yeongwol-gun—facing the dramatic rock formation of Seondol across the serene Pyeongchang River (locally known as Seogang)—the Seonam Jongga stands as the inaugural project of The Hanok Heritage House, a brand dedicated to reimagining the identity and future of the Korean hanok. The residence gently follows the contours of the mountain, drawing the surrounding landscape into the interior through carefully framed views (cha-gyeong). While preserving the formal language of traditional architecture, the project eliminates many of the “common inconveniences” of hanok living, reorganizing the house into a comfortable and rational contemporary dwelling. With cliffs and river cradling the site, this Jongtaek becomes a modern byeolseo—a secluded retreat—revealing a new possibility for hanok today.
A Jongtaek that Embodies the Authenticity of Hanok
1. A Contemporary Interpretation of Traditional Hanok
The design retains the quiet charm and human scale of traditional hanok rooms, while incorporating formal elements that signal the hierarchy of a Jongtaek. Conventional inconveniences—such as room-to-bathroom layouts requiring outdoor circulation—were resolved to create a refined, practical plan that respects tradition without replicating its limitations.
2. Borrowed Scenery (Cha-gyeong) as a Spatial Principle
Bedrooms, the numaru, bathing spaces, and tea rooms are arranged so that nature—forests, cliffs, and river—naturally permeates each interior. Framed views create a continuity between the restful interior spaces and the lush surroundings, enhancing the contemplative quality of the stay.
3. A Clear Structural Logic Rooted in Topography
Sitting at the highest point of the site, the Jongtaek employs traditional wooden construction above ground and reinforced concrete below, using the slope to its advantage. Each hanok wing contains two guest rooms, with a generous central daecheong and an adjoining tea room forming the heart of the plan.
Originally designed with three rooms on the ground level, the layout was reconsidered during construction. Rather than prioritizing profitability through additional rooms, the homeowner chose to maintain openness and spatial generosity—embracing a broader, more comfortable daecheong and circulation zone. Functional programs such as the kitchen, dining area, gallery, and study were placed in the basement, where greater spatial freedom allowed for large rooms and higher ceilings.
The Future Value of “The Hanok Heritage House”
Defining a Well-Made Hanok: “The Hanok”
From site selection to construction, the project is the result of sustained research, personal passion, and collaborative dedication. After traveling across the country in search of the right location, the homeowner chose the cliffside above Seondol. Over several years, wind paths, environmental conditions, and views were meticulously observed before the design began.
The design process relied heavily on detailed 3D modeling— adjusting openings, rooflines, heights, walls, level changes, and planting strategies with precision down to 10 centimeters. For construction, the homeowner even applied a self-developed timber-drying system, reducing wood moisture content to 15%, stronger and more stable than industry norms. Carpenters, adapting to the precision of digital modeling, learned 3D software to execute the design accurately.
Natural wool insulation—meeting current performance standards yet aligned with hanok values—was imported specifically for the project. Hardware capable of supporting the weight of triple glazed timber windows was custom made, and high-transparency insect screens from Germany were employed to avoid obstructing views. Both domestic and imported premium materials were selectively used to create an interior environment that is comfortable, durable, and unmistakably hanok.
Building this Jongtaek was a shared experiment—a journey into unfamiliar terrain for the owner, architects, and builders alike. Ultimately, The Hanok demonstrates that the traditional limitations of hanok materials and methods can be overcome, opening possibilities for the future of contemporary hanok architecture.
A “Heritage House” that Creates Cultural Value
Throughout the Jongtaek, artworks, craft pieces, and furniture by Korean artists are thoughtfully placed. Exhibitions, concerts, and guided tours—open not only to guests but also to the public— further activate the space. Beyond functioning as a hanok hotel or place to stay, the project serves as a cultural platform that introduces and celebrates hanok and Korea’s traditional heritage.
Commentary
Although perceived as a large single-story hanok due to its mountain-site setting, this project effectively utilizes the terrain to incorporate a modern subterranean level while maintaining a clear hierarchy of courtyards, roofs, and traditional spatial divisions above ground. As a result, interior spaces maintain consistent visual and physical connection to the surrounding natural environment. Four years after completion, the building remains in near-new condition, reflecting the commitment of the architects and builders—along with the owner’s strong dedication—to creating a hanok intended as a long-lasting cultural asset.
From the perspective of contributing to the advancement of hanok culture and enhancing quality of life, the project carries positive influence. However, its identity as a high-end hotel and its location make it less accessible to the general public. This limitation reduces its potential reach despite its architectural merits. The project description, however, notes the intention to create “a sensory retreat where people can reconnect with nature and with one another.” Given the partial public funding and the interest of Yeongwol County in linking the project to cultural and tourism resources, there is an opportunity for the facility to function more openly as a shared retreat. Such development would allow broader audiences to experience the qualities of hanok embodied in this project.




| 더한옥헤리티지 하우스 종택 설계자 | 강성원 건축사_ 건축사사무소 강희재 시공자 | 더한옥호텔앤리조트(주) 건축주 | 더한옥호텔앤리조트(주) 감리자 | 이상우 _ (주)신화엔지니어링 설계팀 | 양기란, 남기정, 서다은 설계의도 구현 | 건축사사무소 강희재 대지위치 | 강원특별자치도 영월군 남면 북쌍리 주요용도 | 숙박시설 대지면적 | 3,379.00㎡ 건축면적 | 461.89㎡ 연면적 | 1,531.55㎡ 건폐율 | 13.67% 용적률 | 13.64% 규모 | B1F - 1F 구조 | 철근콘크리트구조, 목구조 외부마감재 | 테라코타 미장 내부마감재 | STUC-O-FLEX, 원목마루, 대리석 설계기간 | 2020. 09 - 2021. 09 공사기간 | 2021. 11 - 2023. 11 사진 | 송유섭 구조·기계설비·전기·소방분야 | (주)하늘천 |
the Hanok Heritage House Architect | Kang, Soungwon_Gangheejae architects & heritage design Construction | The Hanok Heritage Hotel & Resort Client | The Hanok Heritage Hotel & Resort Supervisor | Lee, Sangwoo _ Shinwha Engineering Project team | Yang, Kiran / Nam, Kijung / Seo, Daeun Design intention realization | Gangheejae architects & heritage design Location | Buksang-ri, Nam-myeon, Yeongwol-gun, Gangwondo Program | Accommodation facilities Site area | 3,379.00㎡ Building area | 461.89㎡ Gross floor area | 1,531.55㎡ Building to land ratio | 13.67% Floor area ratio | 13.64% Building scope | B1F - 1F Structure | RC, Korean wooden structure Exterior finishing | Terra cotta dressing Interior finishing | STUC-O-FLEX, Wood floor, Marble Design period | Sep. 2020 - Sep. 2021 Construction period | Nov. 2021 - Nov. 2023 Photograph | Song, Yusub Structural·Mechanical·Electrical·Fire engineer | Haneulcheon Co. Ltd. |
'회원작품 | Projects > House' 카테고리의 다른 글
| 서울 e편한세상 어반브릿지 2025.12 (0) | 2025.12.31 |
|---|---|
| 서희재(曙熙齋) 2025.12 (0) | 2025.12.31 |
| 모노섬 2025.11 (0) | 2025.11.28 |
| 무위재 2025.11 (0) | 2025.11.28 |
| 사이집 2025.10 (0) | 2025.10.31 |
