2026. 4. 30. 10:45ㆍ아티클 | Article/특집 | Special
Edumasil #8
Seokam Elementary School Spatial Restructuring Preliminary Planning Report
1. 사업 개요 및 배경
학교 개요 : 인천, 인천석암초등학교
▹ 설립구분 : 공립
▹ 설립유형 : 단설
▹ 주소 : 인천광역시 미추홀구 주안동로 46
사전기획가 건축사사무소 이화 백현아 대표건축사
공간재구조화 핵심요소 및 목표
공간 혁신 (Innovation)
- 다양한 교육과정과 연계하는 유연하고 다양한 공간 구성 및 개별 맞춤형 학습을 위한 공간 제공
- 학생 주도의 선택적 학습 및 창의 융합수업의 활성화
그린학교 (Green)
- 학교가 생태 문명 전환의 학습장이 되도록 설계와 환경교육 프로그램을 연동한 그린학교 구현
- 탄소중립 실현과 환경생태교육의 체험장 역할을 하는 친환경 공간 구성
스마트교실 (Smart)
- 미래형 교수학습이 가능한 디지털 기반 스마트교실
- 브렌디드 수업, 교과융합수업 및 학생활동 중심 수업의 확대에 따른 공간 환경 구성
- 맞춤형, 자기주도 선택적 개별학습의 확대에 따른 공간 구성
학교시설의 복합화 (Complexity)
- 학교가 지역사회의 중심이 되도록 시설을 공유하여 지역사회와 연계한 프로그램을 제공하는 상호 교류의 거점 마련
- 지역커뮤니티의 중심공간으로서의 학교 : 지역사회 공동체 연대 강화
- 석암초등학교 대상동은 노후화로 인해 구조안전성이 취약하고, 내진성능이 확보되지 않았으며, 대상 학교 미래중점교육의 방향성을 고려할 때 개축 및 리모델링을 통한 공간재구조화가 적합한 것으로 판단됨.
시설 배치 현황

- 2023년 말 과학관 이전으로 보통교실 2실 증가
- 교사1동1층 급식소 보유<병행배식(교실배식)교로 식당 등 급식시설 증축이 필요하므로 급식실 환경개선 연계 추진 가능(평생교육건강과)>
- 소규모 강당 보유(강당 연계 추진 가능-대용투자,특교 확인필요)
2. 현황분석
2.1 사업의 범위
대지 주변 현황

보행지(통학)동선 분석
- 정문은 학교 서측 정면의 주안동로에 접하여 위치하고, 보행자는 북측 주거 밀집지에서 진입
- 서측 주거 밀집지에서 주안동로를 건너 등하교
- 경원대로 너머의 아파트 단지에서 횡단보도를 건너 진입
- 남측 주거 밀집지에서 석바위로를 건너 진입함
도로 및 접근성 분석
- 학교 앞 주안동로는 중로3류(폭15m)이며, 정문 앞에 횡단보도가 있음
- 학교 서측으로 약 230m 거리에 버스정류장이 있고, 8개노선이 배치되어 있음
- 학교는 주거 밀집지역에 위치하고 중로에 접하여 보행자 접근성이 우수함
- 일부 통학 동선은 유흥시설을 거쳐야하는 문제가 있음

3. 교육현황분석(사용자참여)
3.1 교육기획
SWOT 분석을 통한 실태분석
▶ 외부환경
Opportunity (기회 요인)
• 결대로자람학교 운영 (8년) 노하우 축적
• 인천 지하철이 인접한 교통의 요지로 체험학습이 용이
• 여러 공모사업 선정되어 교육활동 예산 확보
Threat (위협요인)
• 맞벌이 가정의 증가로 부모와 대화 기회가 부족하고, 자녀 방임 가정이 일부 있음
• 학생 기본생활 습관, 기초학력 확립 필요
• 교육복지 지원, 다문화가정 학생, 특수교육 학생이 약 40%로 맞춤형 교육 제공의 어려움
▶ 내부환경
Strength (강점요인)
• 학생 : 결대로자람학교 학생으로서 자발적 참여도가 높음
• 교사 : 교육과정 재구성을 통한 수업 개선 의지가 강함
• 학교장 : 인성·감성 중심 교육에 대한 의지가 강함
• 학부모 : 결대로자람학교 학부모로서 자부심이 강하고, 적극적으로 활동하시는 학부모가 많음
• 지역사회 : 함께 하는 교육프로그램을 구축함
Weakness (약점요인)
• 학급당 학생수가 결대로자람학교 기준에 비해 많았음
• 교사 : 함께하는 교육과정 운영에 대한 적극적 참여가 부족함
• 학부모 : 맞벌이로 학생을 가정에서 돌보지 못하고 학교 돌봄 수요가 높음
• 지역사회 : 주변에 학생들이 체험할 수 있는 시설 및 공원 등이 부족함
▶ 공통환경
SO (강점을 살리고 기회를 활용한 방안)
• 결대로자람학교의 축적된 노하우를 바탕으로 민주적 학교 문화 장착
• 학생 배움 중심 수업 및 협력참여중심 프로그램 전개
• 미래역량 중심 프로젝트형 교육과정 재구성
• 학부모 및 외부전문 인적 자원 활용 확대
• 창의인성 융합인재 교육 강화
ST (강점을 살려 위협을 회피/극복한 방안)
• 다양성과 행복을 체험하는 교유고가정 운영
• 안전한 학교 교육환경 조성으로 교육력 제고
• 교육공동체가 함께 만들어 가는 교육과정 운영
• 교육복지 우선 지원 사업 활성화
• 학생 맞춤형 학년(군) 협의체 운영
• 학생자치활동 활성화 지원
WO (약점으로 인해 기회를 잃지 않을 방안)
• 문화·예술·체육 교육 강화
• 기초학력 프로그램 강화하여 가정 돌봄의 공백 최소화
• 방과 후 돌봄 대상자 확대
• 다양한 진로 동아리 활동으로 특기와 재능 계발
WT (예상되는 최악의 상황을 회피할 방안)
• 마을연계교육과정 운영(지역사회와의 협조)
• 다문화 인식 개선
• 과정중심평과 체계 구축·운영
• 상담 활동 및 학교폭력예방교육 강화
• 동학년이 함께 만드는 교육과정으로 학년 상황에 맞는 학생 맞춤형 교육과정 활성화
SWOT 분석을 통한 주요 전략 도출
STRENGTH
• 학생 수, 교직원 수가 많다.
• 일정 규모 이상의 학교, 다양한 유형의 학생
• 학교 교육에 일임하는 경향이 있다.
• 복지실과 상담실이 있다
▼
STRENGTH - OPPORTUNITY
• 학생들의 다양한 활동을 수용할 수 있는 공간 조성
• 마을의 다양한 자원을 통해 학생들에게 다양한 교육경험 제공
• 교육 효과가 잘 드러나므로 학교 교육과정을 특색있게 구성
• 결대로 자람학교 예산 활용한 학생 정서 지원
WEAKNESS
• 공간이 좁다
• 학생수가 계속 증가, 과밀학급
• 다문화 가정이 너무 많다. 학부모와 소통 불가
• 기본생활습관 및 정서행동이 부족한 학생이 많다. (규칙 인지 개념 부족)
• 가정형편이 어려워(경제, 부부갈등 등) 자녀 교육에 무관심 / 취약계층 多
• 돌봄교실 수요 >> 공급
▼
WEAKNESS - OPPORTUNITY
• 돌봄 SYSTEM 확장
• 어학실 ( 다양한 원서, 동화 택)
• 외부 전문가를 중심으로 한 진로교육, 자기 주도성 교육 강화
• 결대로 자람 학교 예산 활용한 다양한 지역사회 인적자원 활용
OPPORTUNITY
• 돌봄, 늘봄 등 학생 대상 CAVE 시스템 구축하면 만족도 상승 기대
• 편견이 없음(다문화에 포용적)
• 교육 활동에 적극적이고 긍정적
• 학교 교육을 통해 학생들이 자신의 적성 소질을 찾을 수 있는 기회가 많다.
• 결대로 자람 학교 운영, 공간 재구조화 교통이 좋음
▼
STRENGTH - THREAT
• 교사-학생-학부모의 지속적인 소통과 협력으로 함께 만들어가는 교육정책 수립
• 가정과 연계하고 가정에 적용하는 학교 프로그램 구성
• 소외계층 학생을 위한 맞춤형 복지 및 상담 지원
• 놀이시설 문화시설 확충
THREAT
• 주변시설(유흥, 상업), 외부 출입자
• 불안정한 치안
• 맞벌이 가정
• 소통이 안되는 다문화 학생, 학부모
• 학교 주변 놀이터, 공터 등의 휴식공간 부족
▼
WEAKNESS -THREAT
• 학교 주변 유해 환경에 대한 지속적인 건의로 교육의 중점지로 재탄생
• 마을 교육을 통해 주변환경과 나와의 인식 재확립
• 공간 재구조화를 통한 학급 수 확대
• 특별실, 넓고 쾌적한 공간 제공
공간구성 방향 설정
인성 UP _ 존중하는 공동체
• 세계시민 교육 민주시민 양성
• 교육공동체의 참여와 협력적 소통 강화
• 마을 주민과 함께하는 토론
• 돌봄 시스템 및 복지 강화
• 가정과 지역사회 학교가 연계되는 교육활동
지성 UP _ 기초·창의·융합 교육
• 독서 활성화
• 기초학력향상 책임지도
• 수준별 맞춤 교육 (교육의 개인화)
• 교육과정 성장 나눔 발표회
• 인성 함양 및 체력 증진을 위한 놀이교육
• 학생의 끼를 발산하는 꿈싹 교육
감성 UP _ 문화적 소양 함양, 꿈을 키우는 교육
• 예술문화 중점교육 (전문강사 협력수업)
• 양궁장 등 스포츠 클럽 활성화
• 다양한 교육경험을 제공하는 학교
• 잠재성을 찾는 진로 체험/ 교육
• 결대로 자람학교
미래 UP _ 지속 가능한 환경/미래 기술 교육
• 환경교육 강화
• 스마트 교실 구축
• 지역사회 자원을 활용한 생태교육
• 디지털 교육방식 강화
• 학교 숲, 텃밭, 외부공간을 활용한 생태교육
4. 공간계획(사용자 참여)
4.1 공간기획
학생 워크숍
▹종합적으로 넓은 공간과 휴식공간, 실내외 놀이공간, 다양한 운동시설과 놀이시설을 희망하고 있음.

워크숍 결과

4.2 특화 공간
도서관


▹1층과 2층 2개 층에 복층형 도서관 구축
▹본관과 연계되며 개축동의 중심 공간이 되도록 계획
▹독서/토론/체험/휴식 등이 가능하도록 다양한 공간계획
▹중정과 연계하여 개방적이고 다양하게 활용 가능한 공간
▹기존 도서관을 교실로 재구성하는 중장기계획 추가 수립 필요
▹자연과 연계한 오픈형 도서관 조성(외부공간과연계)
▹실내식재 등 친환경 공간으로 구성
▹독서,수업,프로그램 운영 등 다양한 활동이 일어나는 복합공간 구성
▹가능시 복층형 구성을 통해 공유 공간과 연계
▹지식의 정보화를 구현할 수 있는 디지털 도서관환경 구축
▹전시 및 휴게 활동과 연계
스마트 융합교실

▹토론,토의/발표수업/공연수업이 가능하도록 다양한 공간계획
▹싱크대 등 수전 설비 구축 필요
▹오픈천정, 조명기구, 마감재료 특화를 통한 공간 특화
다목적 스포츠실

▹문화 예술 스포츠교육 및 학생 놀이 학습이 가능한 다목적 스포츠교실
▹외부테라스, 복도 등 공용공간과 연계
▹소음,진동을 고려한 마감계획 수립 필요
개별학습실

▹좌식생활, 이동식 집기를 중심으로 유연한 교실 활용
▹집기를 모두 수납하여 교실을 정리
▹학습형태(강의형、모둠형)에 맞게 공간을 전환하여 수업진행
▹바닥난방 및 싱크대 등 설비시스템 구축
공용공간
▹개방성, 공용공간의 확장
▹교과 특성 및 교수학습방법에 따라 다양하고 유연한 학습공간으로 전환
▹방과 후 또는 쉬는 시간 학생들의 휴식공간이자 자기주도 학습공간으로 조성

옥외공간

▹학생들이 농작물을 직접 재배해보고 수확해보는 체험활동공간제공
▹ 옥외녹화공간에서 여가 및 교육활동, 소규모 무대 및 데크 등 학습 가능 공간 제공
▹텃밭, 육생비오톱공간, 학교숲, 책읽는중정등 다양한 옥외활동 공간 제공
▹교실, 도서관, 홀및복도 등 내부공간과의 연계 고려
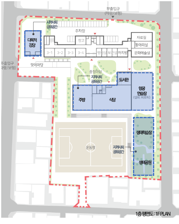
지역사회 공간 공유 계획


백현아 건축사·건축사사무소 이화
이화여자대학교와 서울대학교 대학원을 졸업하고, ㈜희림종합건축사사무소에서 실무 경험을 쌓았다. 건축사사무소 이화의 대표건축사이자 인천광역시 공공건축가로 활동하며 마을과 사람을 향한 지역 단위 공공건축 프로젝트에 주로 참여해왔다. 대표작으로는 인천 반려동물 복지문화센터, 서흥초등학교 증·개축, 연수구청 제2청사, 우리집 1만호 임대주택 프로젝트(옥련·만석·남촌동) 등이 있으며, 다양한 프로젝트를 통해 지역 건축사로서의 역할을 이어가고 있다.
e-archi@naver.com
'아티클 | Article > 특집 | Special' 카테고리의 다른 글
| 한국교육시설안전원과 함께하는 에듀마실 #7. 서산초등학교 공간재구조화 사전기획보고서 2026.3 (0) | 2026.03.31 |
|---|---|
| 한국교육시설안전원과 함께하는 에듀마실 #6. 광주용봉초등학교 그린스마트스쿨 사전기획보고서 2026.2 (0) | 2026.02.27 |
| 한국교육시설안전원과 함께하는 에듀마실 #5. 세연고등학교 공간재구조화 사전기획보고서 2026.1 (0) | 2026.01.30 |
| 2025 한국건축문화대상 2025.12 (0) | 2025.12.31 |
| 한국교육시설안전원과 함께하는 에듀마실 #4. 용일초등학교 공간재구조화 사전기획보고서 2025.12 (0) | 2025.12.31 |