2026. 4. 30. 11:15ㆍ회원작품 | Projects/House
C104-9 House BANWOL

반월집은 충무공동 계획도시에 위치하고 있다. 자생적 주거지가 아닌 지구단위계획안에 있는 이 대지는 풍경이 어수선하다. 단순한 볼륨들의 조합으로 밖의 풍경과 다투기보다 프라이버시를 보호받으면서 마당이나 풀을 충분히 느낄 수 있도록 하였다.
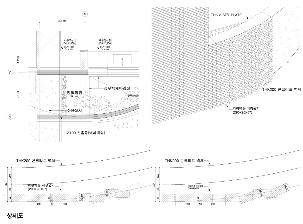
비틀어가며 쌓은 벽돌은 반원을 그린다. 벽돌 한 장을 보면 날 선 듯 보이나 한 장 한 장의 비틈이 모여 곧 편안한 볼륨들을 완성한다.
두 볼륨이 반월 위로 자연스럽게 얹어져 있는 이 주택은 내향적인 안주인과 매우 닮아있다. 공공성이 건축에게 중요하다지만 집주인의 삶들도 때로는 보호받아야 한다.
조합된 볼륨 속에서 쪼개진 안마당으로 나무와 지피류가 가득 채우고 봄에는 푸른 이파리로 잎사귀들 사이의 평화로움을 만질 수 있기를 바랐다.
1층에는 주로 공용공간으로 마당과 직접 관계하고 사적인 공간들은 2층에 위치하여 적절히 쪼개진 마당과 관계하도록 계획했다. 집안의 어디에서나 볼 수 있는 중정은 이 집을 숨 쉬게 하는 공간이다. 방과 방을 넘나드는 움직임은 방 그 자체의 공간만큼이나 중요하다. 방의 배치는 방 내부가 아니라 빈 공간들과의 관계에 의해 결정된다.
이 프로젝트 볼륨들의 조합은 작지만 풍경의 크기를 조절하고 그림자의 움직임, 빛의 강약을 조절하는 힘은 강하다. 시간이 지나면 중정의 나무들은 번성하여 중정을 가득 채울 것이다. 공간의 쓰임새로 같이 변할 것이며 집다워지는 것이다.
재료는 붉은 와이드 벽돌, 하나의 재료로 전체를 구성한다. 구성된 볼륨들이 다른 재료로 만들어졌다면 각각의 볼륨들 구성요소로서만 남았을 것이다. 단일재료로 구성된 볼륨들은 의도된 공간으로 서로 연결되게 만드는 힘이 있다고 믿는다.




Banwol House is located in Chungmu New Town, a planned residential district rather than an organically developed neighborhood. The site is surrounded by a somewhat disordered urban landscape, so the design focuses on privacy and inward views instead of competing with the surroundings. Simple forms and carefully placed courtyards(Madang) allow the residents to enjoy open space, greenery, and natural light.
The house is built entirely of red wide-format brick. The slightly twisted, curved brick walls create a semicircular base, appearing sharp in detail but forming a soft and cohesive structure when seen as a whole. Two volumes rest on this base, giving the house a clear and unified character.
The layout emphasizes the relationship between rooms and courtyards(Madang). The ground floor contains shared living spaces that connect directly to the garden, while the private rooms are located upstairs. A central courtyard(Madang), visible from most areas of the house, acts as its core and allows the spaces to “breathe.” Movement between rooms is designed to be as important as the rooms themselves, with circulation and voids shaping the overall experience.
Though modest in scale, the composition of the forms frames views, controls light and shadow, and creates a calm interior world. Over time, trees and plantings will grow into the courtyards(Madang), softening the brick and bringing the house fully to life. By using a single material, the design achieves continuity—turning separate volumes into one cohesive home.







| C104-9 반월집 설계자 | 윤성영 건축사_ 아에아 건축사사무소 건축주 | 서종수, 이주영 감리자 | 이유진 라이트앤솔트 건축사사무소 시공사 | 건축주 직영 설계팀 | 김샛별, 김동욱, 최광현 설계의도 구현 | 아에아 건축사사무소 대지위치 | 경상남도 진주시 충무공동 주요용도 | 단독주택 대지면적 | 245.80㎡ 건축면적 | 120.36㎡ 연면적 | 198.70㎡ 건폐율 | 49% 용적률 | 78% 규모 | 2F 구조 | 철근콘크리트구조 외부마감재 | 치장벽돌 봉현연와 BHG 테네로 와인 300 내부마감재 | Lg 친환경 벽지 마감, 이건창호 알루미늄 시스템 설계기간 | 2024. 03 – 2024. 08 공사기간 | 2024. 09 - 2025. 07 사진 | 노경 구조분야 | (주)맥구조엔지니어링 기계설비·전기·소방분야 | (주)수양엔지니어링 |
C104-9 House BANWOL Architect | Yun Sung Young_AEA_Atelier Espace Architectes Client | Seo Jongsu / Lee Juyeong Supervisor | Lee Yujin _ Lightandsalt architects Construction | Owner direct control Project team | Kim SaesByeol / Kim Dong Wook / Choi Gwang Hyeon Design intention realization | AEA_Atelier Espace Architectes Location | Chungmugong-dong, Jinju-si, Gyeongsangnam-do Program | Detached house Site area | 245.80㎡ Building area | 120.36㎡ Gross floor area | 198.70㎡ Building to land ratio | 49% Floor area ratio | 78% Building scope | 2F Structure | RC Exterior finishing | Concrete, Brick Interior finishing | Wallpaper Design period | Mar. 2024 – Aug. 2024 Construction period | Sep. 2024 - Jul. 2025 Photograph | Roh Kyung Structural engineer | Mak Structure Engineering Mechanical·Electrical·Fire engineer | SUYANG ENG |
'회원작품 | Projects > House' 카테고리의 다른 글
| 숲숨집 2026.4 (0) | 2026.04.30 |
|---|---|
| 수능리 단독주택 ‘한 장 한 장’ 2026.4 (0) | 2026.04.30 |
| 자자헌(自自軒) 2026.4 (0) | 2026.04.30 |
| 화순리 주택 ‘이어서’ 2026.4 (0) | 2026.04.30 |
| 무언가(無言家) 2026.3 (0) | 2026.03.31 |
