2022. 12. 8. 09:10ㆍ회원작품 | Projects/Neighborhood Facility
Amitis' Garden

기원전 600여년 쯤 바빌론 왕국에 네브카드네자르2세라는 왕이있었다.그는메디아왕국의공주아미티스와결혼했는 데, 산림지대에서 사막으로 시집 와 향수병에 걸린 그녀를 위해 정원을 만들었다. 그 정원은 땅에 만들어진 것이 아니 라 계단식 발코니 같은 구조물에 흙을 덮은 이른바 ‘공중정 원(hanging garden)’이었다고 전해진다. 그 위에서 사람들 이 걸어 다녀도 될 만큼 튼튼해서 보통 지면과 전혀 다를 바 가없었다고한다.또한정원의식물들을지속적으로관리하 기 위해 유프라테스 강에서 수도관을 통해 물을 끌어왔다고 하니, 아마도 당시의 첨단 기술은 모두 동원되었을 것 같다. 사랑의 힘으로 사막 한가운데, 그것도 땅이 아니라 하늘에 걸쳐진 정원을 만든 것이다. 비록 실제 유적이 거의 남아있 지 않아 아쉽기는 하지만, 무척 낭만적인 이야기이다.
서울에서 ‘홍대앞’이라는 장소는 무척 특별한 곳이다. 미술 대학으로 유명한 예술적이며 고적한 분위기의 시설과 주택 가가 가지고 있는 분위기가 어느 순간 떠들썩하고 복잡한 곳으로 변해버렸다. 지하철역은 제때 빠져나갈 수 없을 정 도로인파가그득하고거주하는사람들은점점줄어들고있 다. 홍대앞을 찾아오는 사람들은 문화를 표방하지만 정작 이곳은 점점 사막화가 진행되고 있다.
반듯반듯하고마당이넓은집들이모여있던동네가,카페와 술집과패션숍과갤러리로가득해졌다.그한가운데넓은정 원이 있었던 땅이 남아 있었다. 그곳에 건물을 새로 짓는 설 계 진행 중에 건축주와 이런 저런 이야기를 하다가, 각 층에 발코니를 내고, 옥상을 활용해서 입체적인 정원을 만들자고 제안하며 아미티스의 공중정원을 떠올렸다. 다양한 도시적 인 해법이 존재하겠지만 가장 일반적이며 쉬운 방법인 나무 와 풀을 심는 일부터 시작하면 좋겠다는 생각을 했다.
노출코크리트로마감한건물이바위처럼보이고,그틈으로 녹색의 풀들이 자라고 나무가 자라는 그런 그림을 연상했 다. 혹은 지나친 상업주의에 물들어 사막화 되어가고 있는 홍대앞이라는동네에한숨돌릴공간이되는오아시스를연 상했을 수도 있다.
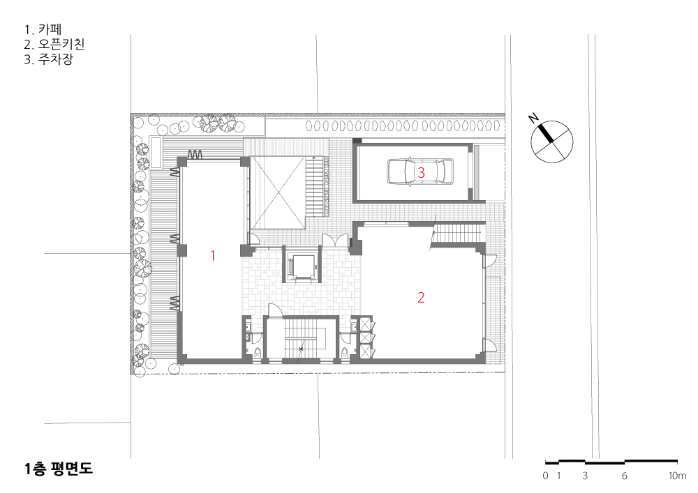
말하자면 이 건물의 개념은 ‘틈’이다. 틈은 벌어져서 사이가 난 자리를 뜻하기도 하고, 어떤 일을 하다가 생각 따위를 다 른 데로 돌릴 수 있는 시간적인 여유를 뜻하기도 한다. 길에 서 건물을 정면으로 보면 다양한 틈이 있는데, 그 틈으로 들어가면 1층으로 들어가기도 하고 중정으로 가기도 하고 후 정으로 가기도 하며, 2층으로 바로 올라가는 계단을 만나기 도한다.건물맞은편에는원룸,옥탑방등서로마주보기불 편한 집들이 잔뜩 있어서, 전면으로 커다란 가벽을 설치하 여 적당히 시선을 걸러내고 가벽과 건물 외벽 사이에 1미터 정도 발코니를 만들어놓았다. 그리고 가벽 중간 중간 틈을 만들어 놓았다.
그리고 카 리프트의 상부와 사선 제한으로 셋백되는 부분 등을 이용하여 각 층에 정원을 만들 수 있도록 테라스와 옥 상정원을 설치했다. 또한 1층 부분은 틈을 이용하여 다양한 진입로와 주변에 자연스러운 조경공간을 만들었다. 지하로 내려가는 선큰 가든도 높이가 5미터 가까이 되고 가지가 넓 게펼쳐지는단풍나무를심어넓고안온한지하의마당으로 조성했다.
특히일조권제한으로뒷집과의사이에1.5미터이상생긴틈 덕분에 생긴 후정은 예전에 학교 뒷마당처럼 만들었다. 마 사토가 깔린 좁고 긴 그 뒷마당은 한적하고 무척 여유로웠 고 숨어있기 좋은 공간이었던 것으로 기억한다. 이곳도 도 로에서 한 겹 더 들어와 홍대 앞의 복잡함과 소음으로부터 한결자유로워진다.담장은시멘트벽돌을마구리면으로보 이도록통줄눈으로쌓고그앞에꽃밭을만들고자작나무를 일렬로 심어놓았다.
정면으로 난 틈은 건물로 들어가는 4개의 문이 된다. 지하1 층에서부터3층까지각각도로에서직접들어갈수있다.그 길은 넓기도 하고, 좁고 어둡기도 하고, 계단을 따라 올라가 기도 하고 대나무와 담을 끼고 빙 돌아가기도 한다. 어디로 들어가건 그 움직임의 동선은 마치 산으로 오르는 것처럼 올라가다 뒤돌아보면 처음에 자신이 왔던 길을 되돌아 볼 수 있도록 되어 있다.
현대의사람들은서로의간격이줄어들고모두통제가가능 해진 아주 피곤한 체계 속에 던져져있다. 특히 도시에서는 더욱 그렇다. 마르고 건조한 사막이면서 빠져 나갈 수 없는 미로 속을 헤매는 것과 같다. 이럴 때 우리에겐 휴식이 필요 하고 가끔 뒤를 돌아보는 여유가 필요하다. 이곳에서 틈을 통해 들어가고 틈을 이용해 정원을 경험하며, 도시라는 사 막에서 문득 나타나는 오아시스를 만나듯 잠시 쉬어갈 수 있기를 바란다.

Around 600 B.C., King Nebuchadnezzar II of Babylon made a garden for his wife Amitis of Media Kingdom in the midst of desert, noticing she got homesick longing for her country’s forest. It is said that the garden was a "hanging garden," that was built not on the ground but on a structure like terraced balconies. The garden was designed so well it felt like walking on regular ground. It is also said that water was drown from the far Euphrates River through water pipes, to continuously feed the plants in its garden. Probably all the advanced techniques of the time were used. Power of love created a garden hanging over the sky in the middle of the desert. It is regrettable that nothing remains, but still it is such a romantic story. This story became starting point.
In Seoul, ‘Hongdae district’ is quite an interesting place. Gone are the atmosphere of the art school, the historical feeling from the old facilities and the ambience of residential area, and the area has turned into a noisy and complex district all of a sudden. Fewer and fewer people reside around the area but the station is packed with visitors. People who visit Hongdae claim they are there for the culture, but desertification of any culture continues
An area which were clustered with houses that had ample gardens, has turned into an area filled with cafes, bars, fashion stores and galleries. In the middle of the region was our site with a large garden. During the design process, we talked with the owner about this phenomenon and came up with the idea of Amyitis' garden, with balconies on each floor and a multi-level garden on the roof. Although there are variety of urban solutions, I thought it would be a good idea to start with planting trees and grass, the most common and logical method for desired repose.
The building with its exposed concrete finish, looks like a boulder. and this is associated with an image in which green grass and trees grow between crevices. Or it could be a metaphor of an oasis in Hongdae district, a place to take a breath among excessive commercial buildings.
The concept of this building is 'gaps'. A gap can mean a piece of tiny space between the two locations, or it can also signify a little pause between activities. On the front facade from the street, you will find a variety of gaps that leads to the entrance on the first floor, going to the courtyard, or moving to the back garden, or rising to the stairs straight to the second floor. On the opposite side of the site, there are many run-down houses, ranging from studios to rooftop residences. A free-standing wall was set up on this side to divert attention moderately and a balcony was made between the wall and the exterior wall. Then we made cracks on several spots in the free-standing wall to allow peak into the run-down surroundings.
Terraces and rooftop gardens were installed to create a outdoor space on each floor, using planes that were created on the upper slabs of the car lift and the setback regulation. On the first floor, compositional gaps were also used to create a natural landscaping space on and around various entrances. On the Sunken Garden which reaches the underground level, maple trees that are almost 5 meters tall are planted and they spread out wide branches, making it a spacious and warm basement garden.
In particular, a rear garden with 1.5 meter width was created from restriction law to allow sunlight to the northern lot. This condition reminded us of little school backyards. I remember the narrow, long backyard with decomposed granite. It was a quiet, very relaxed place to hide in. As a result, the rear garden becomes a place free from the complexity and noise of Hongdae. The outer-fence was made of cement bricks stack with straight joints, and a flower garden was placed with birches planted in a row.
The gap on the first floor leads to four doors into the building. One can reach basement level 1 to ground level 3 directly from the street. Some paths are wide, some dark and some narrow. A path goes up the stairs, another goes around bamboo and other paths reach the walls. Wherever you walk, the movement is like going up a mountain and one eventually looks back on the path he/she came at the beginning.
Modern humans are thrown into a system that propels fatigue, where the gap between each other is reduced and everyone is controlled constantly. This is especially true in cities. It is like walking through a maze that is dry and the exit is rarely seen. At a time like this, we need to take a break and look back. Hopefully, you can pause in this building, experience the garden through the cracks, and rest for a while like an oasis appearing in the city desert.












| 아미티스 가든 설계자 ┃ 임형남 KIRA ┃ 건축사사무소 가온건축 건축주 | 박은혜, 박지환 감리자 | 임형남 _ 건축사사무소 가온건축 시공사 | 신영 E&C 설계팀 | 노은주, 이성필, 손성원, 문주원, 김래연, 이민우, 김재범, 김진욱 대지위치 | 서울특별시 마포구 와우산로29나길 8 주요용도 | 근린생활시설 대지면적 | 430.30㎡ 건축면적 | 223.22㎡ 연면적 | 1136.83㎡ 건폐율 | 51.88% 용적률 | 194.90% 규모 | 지하 1층, 지상 6층 구조 | 철근콘크리트조 외부마감재 | 노출콘크리트 내부마감재 | 노출콘크리트 위 도장, 에폭시 바닥마감 설계기간 | 2015. 06 ∼ 2016. 04 공사기간 | 2016. 03 ∼ 2017. 06 사진 | 김용관 번역 | 이민우 전문기술협력 구조분야 : SDM 구조기술사사무소 기계설비분야 : 협신설비 전기분야 : 협신설비 |
Amitis' Garden Architect | Lim, Hyoungnam _ studio_GAON Client | Park, Eunhye / Park, Jihwan Supervisor | Lim, Hyoungnam _ studio_GAON Construction | Shin Young E&C Project team | Roh, Eunjoo / Lee, Sungpil / Son, Seongwon / Moon, Joowon / Kim, Laeyeon / Lee, Minwoo / Kim, Jaebeom / Kim, jinwook Location | 8, Wausan-ro 29na-gil, Mapo-gu, Seoul, Korea Program | Commercial facilities Site area | 430.30㎡ Building area | 223.22㎡ Gross floor area | 1136.83㎡ Building to land ratio | 51.88% Floor area ratio | 194.90% Building scope | B1F - 6F Structure | RC Exterior finishing | Exposed concrete Interior finishing | Exposed concrete with paint, Epoxy floor finish Design period | Jun. 2015 ∼ Apr. 2016 Construction period | Mar. 2016 ∼Jun. 2017 Photograph | Kim, Yongkwan Translation | Lee, Minwoo Structural engineer | SDM Mechanical engineer | hyup shin Electrical engineer | hyup shin |
'회원작품 | Projects > Neighborhood Facility' 카테고리의 다른 글
| 밀로바니 2018.10 (0) | 2022.12.08 |
|---|---|
| 남부안 농협 로컬푸드 매장 2018.10 (0) | 2022.12.08 |
| 연남동 조르바 2018.9 (0) | 2022.12.07 |
| 광혜원 커피숍 ‘카페 그레이나인’ 2018.05 (0) | 2022.12.01 |
| 원신흥동 근린생활시설 2018.04 (0) | 2022.12.01 |