2022. 12. 14. 10:23ㆍ회원작품 | Projects/Neighborhood Facility
Sopoonggil

작은 건축이 도시재생의 첫 단추
대지는 노원구 상계동 수락산초입에 위치하며, 오래된 무허가 건축을 음식점으 로 사용하고 있었다. 주변 환경은 아파트, 연립주택이 밀집된 주거지역인데 생 활밀착형 커뮤니티 부재로 인해 생활문화 만족도가 다른 지역에 비해 낮았다. 2017년 7월부터 수락행복발전소 조성을 위한 주민 운영위원회가 구성돼 행복 발전소 운영과 다양한 프로그램에 대한 논의가 진행됐다. 계획초기부터 주민의 의견을 반영해 북카페, 다목적 공연장, 집단지도실의 규모와 사용에 대해서 건 축사가 서로 소통하면서 수락행복발전소를 같이 구상하고 만들어 가게 됐다. 도 시재생은 어쩌면 큰 정치적 이슈의 생산물이나 독단적 방식으로 풀어가는 상하 조직 구조 같은 소통이 아니라 주민들이 자발적으로 운영·방식을 연구하고 건축 사와 수평적 쌍방향 소통이 정답이다. 도시를 다시 풍요롭게 재생시키는 첫 단 추는 섬세한 대화와 실존적 관계의 소통을 담는 작은 건축에서 시작해야 한다.
경계 없는 커뮤니티
작은 건축이라고 최소의 프로그램만 적용시키지 않고 이 지역의 특성상 작고 다양한 프로그램들이 공존하는 것이 우선이었다. 수락발전소의 용도 또한 커 뮤니티 공간의 독립성보다는 다양한 계층의 주민들이 서로 마주보고 인사하고 서로 간의 적당한 인지와 자연스러운 소음·행동이 서로 어울리는 살아있는 작 은 커뮤니티가 되기를 기대했다. 작은 땅에 작은 건축의 물리적 환경을 극복하는 공간적 전략은 경계 없는 커뮤니티 공간으로 발전된다. 로비, 천상병 소풍 길, 북카페, 공연장, 집단 교육실 등은 고정된 벽을 이용한 단절이 아닌 서로 간 의 소통으로 확장된다. 사용자의 목적과 이유에 따라 공간의 규모와 사용성이 확정되는 가변적 환경을 설정함으로써 프로그램간의 현실적 소통이 무엇보다 중요한 경계 없는 커뮤니티를 제안했다.
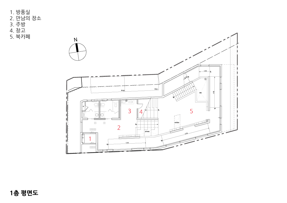
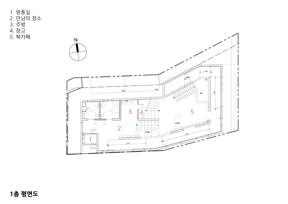
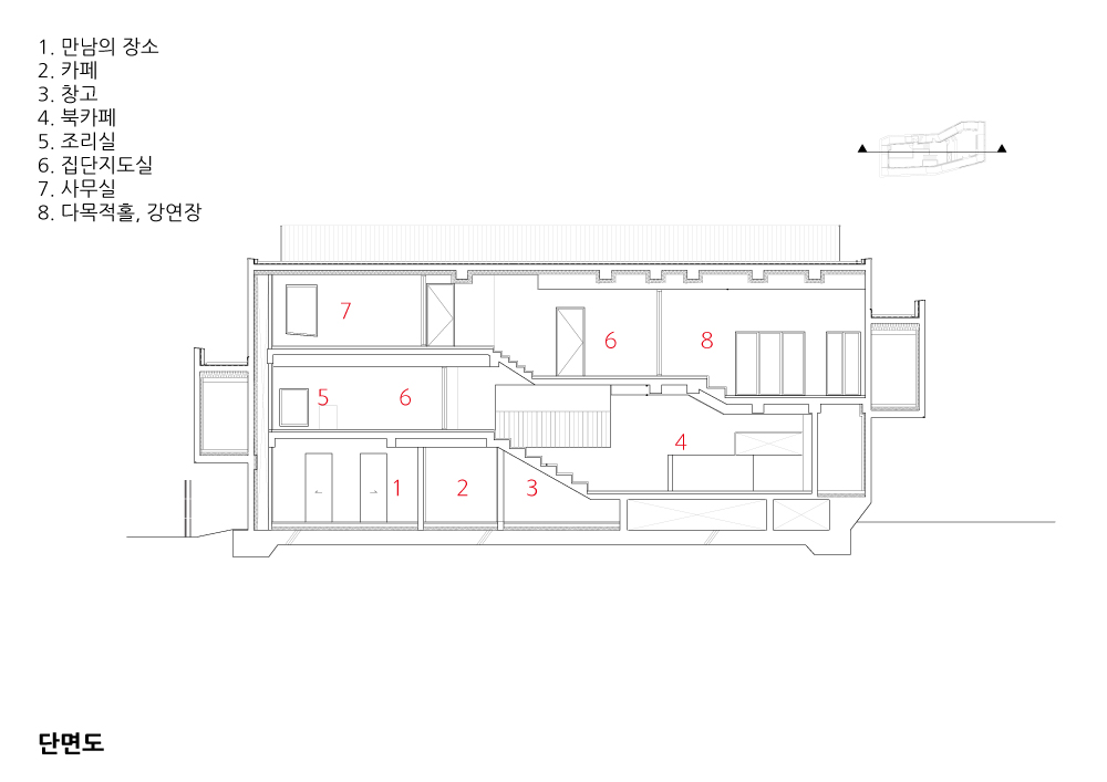
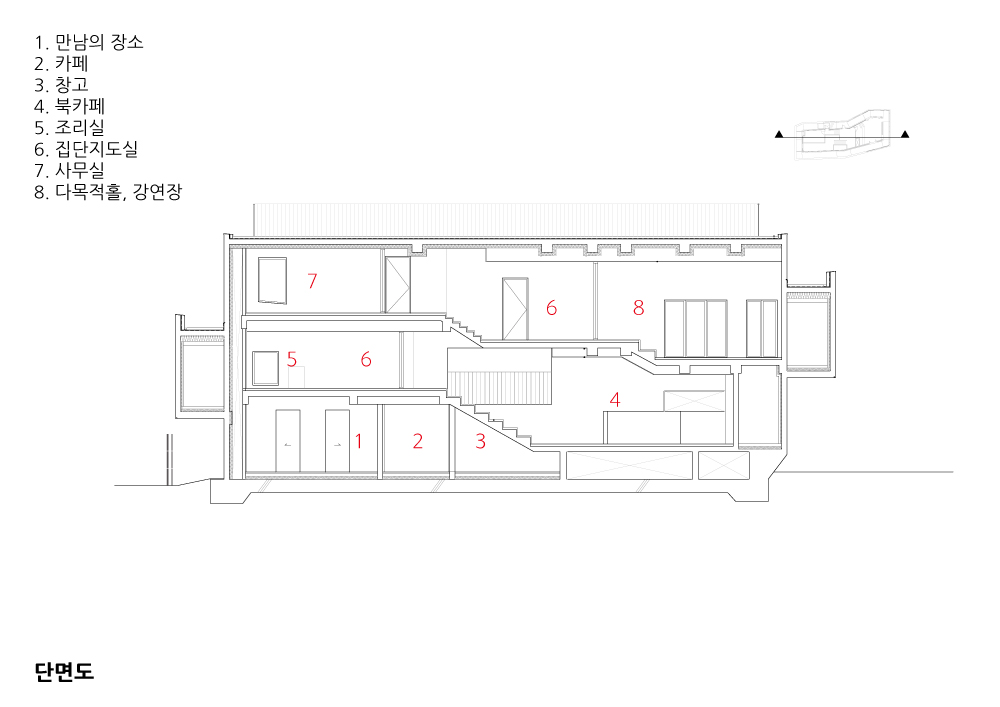
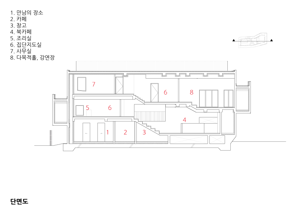
소풍길 천상병길 [다목적 램프길]
장애인램프의 새로운 발견을 제안한다. 건축법상 장애인을 위한 램프는 건축 면적과 연면적에 산입하지 않는다는 조항이 있다. 우리는 이 법적근거를 디자 인 모티브로 확장했다. 일반적으로 일부구간이나 입구에서 장애인을 위한 램 프설치와 엘리베이터 또는 장애인리프트를 설치한다. 수락행복발전소는 장애 인램프라는 용도와 이름 대신에 누구나 이용하고 다목적으로 사용되는 ‘소풍 길’을 만들어 천상병 시인의 갤러리, 지역주민의 작품갤러리, 공연장의 확장 공간, 북카페의 확장 공간들로 사용되는 새로운 개념의 다목적 램프를 만들었 다. 소풍길은 지상 1층에서 2층을 거쳐 3층 옥상까지 자연스럽게 연계되어 그 사이에 펼쳐진 경계 없는 커뮤니티공간과 사용자의 의도와 선택에 의해 다양 한 인터렉티브적 소통을 유발한다. 소풍길은 이동의 수단이면서 다양한 커뮤 니티의 확장공간이며 서로의 관계를 증폭시킨다. 소풍길속 사람들의 풍경은 작지만 어디서도 볼 수 없는 자연스럽고 소담한 감성을 담는다. 소박한 소풍길 의 모습은 천상병 시인의 천진난만하고 자연과 인본주의적인 작품세계에 대한 동경이며 상상의 길이기도 하다.

Design Intent Small architecture is the first button of urban regeneration
The site is located at the entrance of Mt. Surak in Sanggye-dong, Nowon-gu, where an old unauthorized construction used to be a restaurant. The surrounding environment is a residential area with a lot of apartments and terraced houses, but satisfaction with living conditions was lower than other areas due to absence of life-friendly communities. Since July 2017, an inhabitant steering committee has been set up for the establishment of Surak Happy Power Plant to discuss the operations and various programs of Surak Happy Power Plant. From the beginning of the project, the architect reflected the opinions of residents and communicated with them to share each other’s opinions on the scale and use of a book cafe, a multi-purpose theatre, and a group teaching room, so as to design and build Surak Happy Power Plant. Urban regeneration is neither the production of big political issues nor a top-down organizational structure which solves problems in an arbitrary way, but lies in the residents’ voluntary will to study the way to operate and the communication with an architect in an interactive and horizontal way. The first button to re-enrich a city should begin with small architecture that contains detailed dialogue and communication of existential relationships.
Architectural Design Borderless Community
Small and various programs needed, first of all, to coexist due to the characteristics of this area without applying minimum programs although it is small architecture. The purpose of Surak Happy Power Plant was also to expect the residents of various classes to greet each other rather than the independence of community space, and to become the living small community where they recognize each other and natural noise and behavior harmonize with each other. The spatial strategy to overcome the physical environment of small architecture in a small land develops into a borderless community space. The lobby, Cheon Sang-Byeong Sopunggil, book café, theater, and group teaching room are extended through interactive communication, rather than severance using the fixed wall. We proposed a borderless community in which the actual communication between programs is important above all by setting a variable environment in which the size and usability of space is determined according to the purpose and reason of users.
Architectural Design Sopunggil, Cheon Sang-Byeong Path [Multipurpose Ramp Path]
An important method for realizing a borderless community is to change the recognition of spaces separated by layers from the maximum level of moving level to the delicate stage of moving level, through the breakup of the existing core method. In small architecture, the vertical movement line of core has changed into programmed space such as book shelves, resting places, and performance seats. This becomes an important architectural strategy where a functional staircase develops into the space of programs and the continuous and extensive community without boundaries. It suggests the new discovery of a ramp for the disabled. Under the provisions of Building Act, a ramp for disabled people is not included in the building area and the total floor area. We extended this legal basis to the design motif. Generally, the ramps, elevators, or lifts for the disabled are installed at some sections or entrances. Surak Happy Power Plant makes ‘Sopunggil' which is used by everyone and for multiple purposes, instead of using the purpose and the name of a ramp for the disabled, by creating a new concept of a multipurpose ramp used as a poet Cheon Sang-Byeong’s gallery, a gallery of works of local residents, the extension space of a performance hall, and the extension space of a book cafe. Sopunggil is naturally connected to the third-floor rooftop through the first floor and the second floor, which induces borderless community space and a lot of interactive communication by users’ intention and choice. Sopunggil is a means of movement and an extension space for various communities and strengthens each other’s relationship. The scenery of the people on Sopunggil is small but contains a natural and cozy sensibility that can not be seen anywhere. The image of a simple Sopunggil is poet Cheon Sang-Byeong’s longing for the world of innocence, nature and humanistic works, and the way of imagination.







| 수락행복발전소 설계자 _ Architect. 신창훈 _ Shin, Changhoon 운생동 건축사사무소 _ Unsangdong Architects + 장윤규 국민대학교 건축학부 교수 _ Jang, Yoonkyu 이혜복 _ Lee, Hyebok 건축사사무소 노아 _ Noah Arch&Env 건축주 | 노원구청 감리자 | 신창훈 _ 운생동 건축사사무소 시공사 | (주)아이렉스 건설 설계팀 | 김봉균, 이가연, 최상현, 김민균, 황유영 대지위치 | 서울특별시 노원구 상계동 996-10, 996-21 주요용도 | 제1종 근린생활시설 대지면적 | 296.93㎡ 건축면적 | 124.22㎡ 연면적 | 283.48㎡ 건폐율 | 41.83% 용적률 | 85.59% 규모 | 지하 1층, 지상 3층 구조 | 철근콘크리트조 외부마감재 | 노출콘크리트 내부마감재 | 원목마루(주.듀벨: 샌디브라운 제품번호DSK-1006), 친환경수성페인트 설계기간 | 2017. 04 ~ 2017. 07 공사기간 | 2017. 08 ~ 2018. 05 사진 | 윤준환 전문기술협력 - 구조분야 : (주)파워구조기술사사무소 - 기계설비분야 : (주)천일엠이씨 - 전기분야 : (주)에스비이엔씨 - 소방분야 : (주)에스비이엔씨 |
Sopoonggil Client | Nowon-gu Office Supervisor | Shin, Changhoon _ Unsangdong Architects Construction | Ltd. Ilex Construction Project team | Kim, Bongkyun / Lee, Gayeon / Choi, Sanghyeon / Kim, Minkyun / Hwang, Yuyeong Location | 77, Dongil-ro 242-gil, Nowon-gu, Seoul, Korea Program | Commercial Site area | 296.93㎡ Building area | 124.22㎡ Gross floor area | 283.48㎡ Building to land ratio | 41.83% Floor area ratio | 85.59% Building scope | B1 - 3F Structure | RC Exterior finishing | Exposed Concrete Interior finishing | Wooden flooring(Col, Ltd. Dubel : Sandy Brown Serial No. DSK-1006), Waterpaint Design period | 2017.04 ~ 2017.07 Construction period | 2017.08.01 ~ 2018.05.16 Photograph | Yoon, Junhwan Structural engineer | Power Structural Engineer Co., Ltd. Mechanical engineer | Chunil Engineering Co., Ltd. Electrical engineer | SBENC Consultants Co., Ltd. Fire engineer | SBENC Consultants Co., Ltd |
'회원작품 | Projects > Neighborhood Facility' 카테고리의 다른 글
| 3.6.9 성곽마을 사랑방 2019.3 (0) | 2022.12.15 |
|---|---|
| 루치아의 뜰 2019.3 (0) | 2022.12.15 |
| 망원경 2019.1 (0) | 2022.12.12 |
| 루카스빌딩 2019.1 (0) | 2022.12.12 |
| 습곡(褶曲) 2018.12 (0) | 2022.12.11 |