2022. 12. 15. 09:34ㆍ회원작품 | Projects/Neighborhood Facility
3.6.9 Hanyangdoseong Neighborhood Village

369성곽마을 터 이야기
삼선동1가 369성곽마을은 낙산자락 한양도성에 인접한 곳으로 북사면에 형성 된 구릉지형 주거 밀집지이다. 접근성이 좋지 않고 도시기반시설이 열악한 데다 노후 불량주택이 많아서 2010년 전면 철거 후 새로운 주거지로 변하는 재개발 정비구역으로 지정됐다. 그러나 2013년 주민동의에 의해 재개발 대신 마을의 정체성을 유지하며 주거환경을 개선하는 도시재생 사업방식으로 전환됐다. 여러 차례 계획대지를 방문하면서 이 마을의 정체성에 대해 고민을 많이 했다. 개량한옥에서부터 최근에 지어진 다세대주거까지 다양한 주거유형이 혼재되 어 일관된 맥락 없이 오히려 복잡해 보이기도 했다. 그러나 다르게 보면 급격 한 도시화 과정에서 자연발생적으로 생겨난 마을로서 우리의 근현대 주거문화 를 보여주는 중요한 생활유산이다. 그리고 구릉지 정상에 세워진 한양도성은 도시 속 경계, 단절의 요소가 아니라 주민들의 일상과 밀접하게 연계된 친근한 일상생활 속 배경이 되고 있었다.
오랜 풍경을 담은 마을사랑방
재생사업이 시작되면서 마을에는 한양도성과 인접한 대지에 4개의 주민이용 시설(사랑방, 마실, 예술공방, 예술터)이 동시에 계획됐다. 기존의 주거 형태를 최대한 보존하기 위해 신축이 아닌 기존 주택건물을 리모델링하기로 했다. 그 중 마을사랑방은 주민들의 모임과 소통을 위한 핵심시설이다.
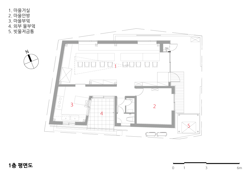
이 건물은 오랫동안 증축되고 확장되어 왔다. 리모델링 계획 시 우리는 시간에 따라 변해온 이러한 형상을 최대한 그대로 담아내고자 했다. 특히 마치 ‘함께 하 는 일상’을 담아내듯 서로 기대어 선, 두 개의 지붕과 매스로 된 건물 형상을 남겨 두었다. 재료 선정에 있어서도 기존 건물이 갖고 있던 시멘트기와, 화강석 혹두 기, 목재 등을 이용해서 오래전부터 있었던 것 같은 익숙한 건물이 되고자 했다. 내부로 들어가면 외부에서는 예상하지 못했던 높은 천정고와 노출된 철골 프 레임 그리고 환하고 가변적인 공간이 펼쳐진다. 마을경제를 위한 주민공동 작 업 공간 ‘마을사랑채’, 함께하는 밥상으로 소통하는 공간 ‘마을부엌’, 주민들의 쉼터이자 참여하는 공간 ‘마을안채’로 작은 공간들을 짜임새 있게 담아내었다.
함께하여 좋은 일상
이 프로젝트는 방문객 위주의 비일상적 이벤트 공간이 아닌 주민들의 ‘일상 공 간’에 대한 고민을 녹여 냈다. 사랑방은 마을공동체의 생활터전으로 주민이 주 체가 되어 주도적으로 만들어가는 소통의 장이 되길 바란다. 서로를 챙겨주고 채워주는 나눔의 장으로서 이웃들과 하루하루를 함께하고 일상의 다양한 이 야기가 가득한 장소가 됐으면 좋겠다.

369 Castle Village Site Story
369 Castle Village in Samseon-dong 1-ga is adjacent to the Naksan Jarak, Hanyang Wall, and is a hilly residential area formed on the north side. It was designated as a redevelopment area after being entirely demolished in 2010 because it ha s difficult accessibility, poor urban infrastructure, and deteriorated poor housing. However, in 2013, residents agreed t o change the redevelopment scheme into an urban regeneration project t o improve the residential environment while maintaining the identity of the village.
We visited the planned sit e many times and wer e worried about the identity of this village. From the remodeled hanok t o the recently built multi-family residences, a variety of housing types wer e mixed and looked rather complicated without a consistent context. However, it is an important lifestyle heritage that shows our modern and contemporary residential culture a s a naturally generated village in the process of rapid urbanization. And the Hanyang Wall, which was built on the top of the hill, is not a factor of boundary or disconnection in the city, but a background t o intimat e daily life and closely connected with the daily lives of the residents.
A Village Sarangbang with a Long-time Landscape
As the regeneration project started, four facilities for local residents (Sarangbang, Masil, Ar t Studio, Ar t Exhibition Hall) wer e planned in the site adjacent t o the Hanyang Wall. I n order t o preserve the existing housing type, we decided t o remodel the existing residential buildings instead of building a new ones. Among them, Sarangbang is a key facility for communication and gatherings of the residents. This building has been extended and expanded for a long time. When planning remodeling, we tried t o keep this shape that has changed over time as much as possible. In particular, we left the shape of the building, which had become a mass, and two leanto roofs as if they were sharing 'daily life together'. In choosing materials, we wanted it t o be a familiar building tha t seems t o have long existed, b y using cement tiles, granite frosted finish, and timber that were already in the existing building.
When you g o inside, you can see an unexpected high ceiling, exposed steel frame, and bright and flexible space. There ar e wellorganized spaces such as ‘Village Sarang-Chae’, a communal space for residents t o collaborate on for the village economy; ‘Village Kitchen,’ a place for communication through a dining table to enjo y together; and ‘Viallage An-Chae’ a place for residents t o rest and participate.
Good Daily Life When Sharing
This project reflects the worries about a 'daily space' of the residents, not a visitor-oriented non-daily event space. It is hoped that Sarangbang will be a place for communication voluntarily led b y the residents as a site o f living in village communities. W e also hope that it will be a place of sharing wher e they car e and complement each other, while spending days together with neighbors and having various stories of daily life.






| 3.6.9 성곽마을 사랑방 설계자 _ Architect. 김현숙 _ Kim, Hyunsuk (주)이엔 건축사사무소 _ EN ARCHITECTS Inc. 건축주 | 성북구청 감리자 | 김현숙 _ (주)이엔 건축사사무소 시공사 | 송일건설 주식회사 설계팀 | 박지은 대지위치 | 서울시 성북구 삼선교로2길 36-1 주요용도 | 제1종근린생활시설 (주민공동이용시설) 대지면적 | 122.30㎡ 건축면적 | 70.58㎡ 연면적 | 76.95㎡ 건폐율 | 57.71% 용적률 | 57.71% 규모 | 지하1층, 지상1층 구조 | 벽돌조, 경량철골조 외부마감재 | 화강석 잔다듬, 스타코플렉스 내부마감재 | 우드플로어링, 석고보드 위 페인트 설계기간 | 2017. 03. ~ 2017. 09. 공사기간 | 2017. 12 ~ 2018. 08 사진 | 이한울 _ 나르실리온 구조분야 : 대주ENC 기계설비분야 : (주)세진이앤이 전기분야 : (주)정연엔지니어링 소방분야 : (주)세진이앤이 |
3.6.9 Hanyangdoseong Neighborhood Village Client | Seongbuk-gu Supervisor | Kim, Hyunsuk _ EN ARCHITECTS Inc. Construction | Songil Construction Project team | Bak, Jieun Location | 36-1, Samseongyo-ro 2-gil, Seongbuk-gu, Seoul, Korea Program | Neighbourhood facility (Community center) Site area | 122.30㎡ Building area | 70.58㎡ Gross floor area | 76.95㎡ Building to land ratio | 57.71% Floor area ratio | 57.71% Building scope | B1F - 1F Structure | Brick, Light weight steel structure Exterior finishing | Granite, Stuc-o-flex Interior finishing | Wood flooring, Paint finish above gypsum board Design period | Mar. 2017 ~ Sep. 2017 Construction period | Dec. 2017 ~ Aug. 2018 Photograph | Lee, Hanwool _ Narsilion Photography Structural engineer | Daeju ENC. Mechanical engineer | Sejin ENE. Electrical engineer | Jung Yeon Engineering Fire engineer | Sejin ENE. |
'회원작품 | Projects > Neighborhood Facility' 카테고리의 다른 글
| 옐로우나이프 2019.3 (0) | 2022.12.16 |
|---|---|
| 3.6.9 성곽마을 예술공방 2019.3 (0) | 2022.12.16 |
| 루치아의 뜰 2019.3 (0) | 2022.12.15 |
| 수락행복발전소 2019.2 (0) | 2022.12.14 |
| 망원경 2019.1 (0) | 2022.12.12 |