2022. 12. 16. 16:56ㆍ회원작품 | Projects/Neighborhood Facility
3.6.9 Fortress village Art Studio

마을 속 창작 공간
369마을은 인근에 공연 공간이 많은 대학로가 있고 성북천과 성곽주변으로 다양한 축제가 열리는 예술과 문화가 있는 곳이다. 특히 한성대 예술대학 학생 들과 지역 예술인들이 주민들과 협력하여 여러 이벤트를 진행하고 있는 동네 다. 마을 재생 활동이 지속가능하기 위해서는 이러한 문화예술 콘텐츠를 이용 하여 특색 있는 성곽마을로의 변화가 필요하다.
예술공방은 60여 년 된 낡은 주택을 리모델링해 만들었는데, 예술인들이 자기 만의 고유한 작품 활동을 할 수 있는 작업장으로 쓰일 예정이다. 이곳에서는 예술가들이 고즈넉한 환경 속에서 일상생활을 하며 창작활동을 펼칠 수 있도 록 작업공간과 함께 숙식공간이 마련됐다. 그리고 예술공방은 작품을 통한 수 익창출의 기반이 되는 동시에 지역 내 작은 문화거점이 될 것이다.
지역민과 어울리는 예술가들의 작업을 통해 마을의 문화적 가치가 올라가길 바라며, 생기 있는 일상을 되찾는 마을이 되기를 기대해본다
시간이 쌓여 만든 다양한 레벨
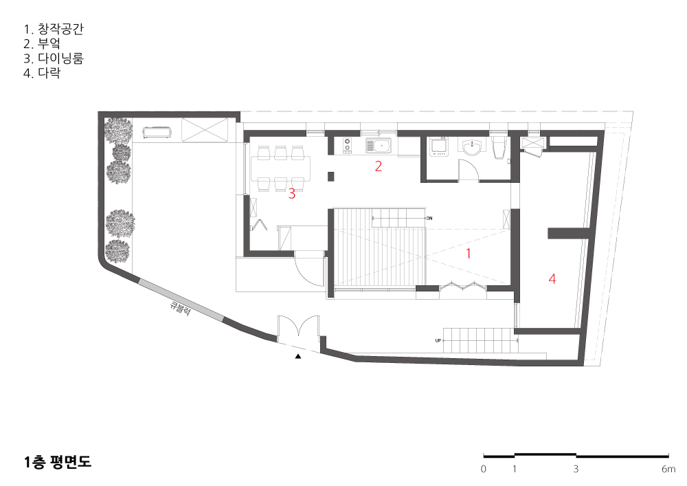
가파른 대지의 경사를 따라 지어진 기존 주택은 건축물대장상으로는 단층 건 물이다. 하지만 60여 년의 세월은 단층 건물을 지하1층에서부터 옥상까지 5 개의 레벨을 만들었다. 리모델링 계획은 시간에 따라 확장, 변화된 기존 건물 의 이런 특성을 반영하여 입체적인 공간감의 구성에 초점을 맞췄다.
1층 공간은 마당의 외부 작업장과 연결되는 동시에 천장고를 가능한 높여 큰 작품 활동이 가능하도록 했다. 그리고 기존 5개의 레벨에 하나를 더했는데, 경 사지붕의 층고를 높여 다락을 만들었다. 다락에는 예술가들, 특히 지역행사가 있을 때 방문하는 여행자 예술가들이 잠을 잘 수 있는 작은 방들을 배치했다.
이 지역에서 비교적 높은 레벨에 있는 건물의 옥상테라스는 마을의 풍경을 볼 수 있는 좋은 전망대 겸 휴게공간이 된다. 예술 이벤트가 있을 때는 옥상테라 스와 골목길 담장은 예술가의 작품을 전시할 수 있는 전시공간이 될 것이다.




| 3.6.9 성곽마을 예술공방 설계자 _ Architect. 김현숙 _ Kim, Hyunsuk (주)이엔 건축사사무소 _ EN ARCHITECTS Inc. 건축주 | 성북구청 감리자 | 김현숙 _ (주)이엔 건축사사무소 시공사 | 주현건설 주식회사 설계팀 | 박지은 대지위치 | 서울특별시 성북구 삼선교로2가길 11 주요용도 | 제1종근린생활시설 (주민공동이용시설) 대지면적 | 115.70㎡ 건축면적 | 55.33㎡ 연면적 | 55.33㎡ 건폐율 | 47.87% 용적률 | 47.87% 규모 | 지상 1층 구조 | 벽돌조, 경량철골조 외부마감재 | 치장벽돌, 스타코플렉스 내부마감재 | 우드플로어링, 석고보드 위 페인트 설계기간 | 2017. 03 ~ 2017. 09 공사기간 | 2017. 12 ~ 2018. 08 사진 | 이한울 _ 나르실리온 전문기술협력 구조분야 : 대주ENC 기계설비분야 : (주)세진이앤이 전기분야 : (주)정연엔지니어링 소방분야 : (주)세진이앤이 |
3.6.9 Fortress village Art Studio Client | Seongbuk-gu Supervisor | Kim, Hyunsuk _ EN ARCHITECTS Inc. Construction | Juhyun Construction Project team | Bak, Jieun Location | 11, Samseongyo-ro 2ga-gil, Seongbuk-gu, Seoul, Korea Program | Neighbourhood facility (Community center) Site area | 115.70㎡ Building area | 55.33㎡ Gross floor area | 55.33㎡ Building to land ratio | 47.87% Floor area ratio | 47.87% Building scope | 1F Structure | Brick, Light weight steel structure Exterior finishing | Brick, Stuc-o-flex Interior finishing | Wood flooring, Paint finish above gypsum board Design period | Mar. 2017 ~ Sep. 2017 Construction period | Dec. 2017 ~ Aug. 2018 Photograph | Lee, Hanwool _ Narsilion Photography Structural engineer | Daeju ENC. Mechanical engineer | Sejin ENE. Electrical engineer | Jung Yeon Engineering Fire engineer | Sejin ENE. |
'회원작품 | Projects > Neighborhood Facility' 카테고리의 다른 글
| 올림픽공원 옆 가게 _ 경량철골 근생-K1 2019.5 (0) | 2022.12.21 |
|---|---|
| 옐로우나이프 2019.3 (0) | 2022.12.16 |
| 3.6.9 성곽마을 사랑방 2019.3 (0) | 2022.12.15 |
| 루치아의 뜰 2019.3 (0) | 2022.12.15 |
| 수락행복발전소 2019.2 (0) | 2022.12.14 |