2022. 12. 21. 10:05ㆍ회원작품 | Projects/Neighborhood Facility
Olympic Park neighbourhood Shop-K1

동계올림픽공원 옆 대지로 가능한 지구촌 사람들의 미적 공감을 얻고자 했는데, 이를 위해 고민한 것 은 첫째, 구조, 둘째, 외부 마감재였다. 구조는 산업화 시대 가장 범용적 <서민공법(庶民工法)>이었 던 조립식 건축(각파이프, C형강)의 경량철골조로 결정했다. 마감재는 미니멀과 심플함의 추구로 아 연도금판넬로 선정했다.
시공 과정에서 지붕 트러스의 경사각 및 구법이 당초 예상한 미적 조화도에는 부족하여 지붕틀을 모 두 철거 후 재설계와 재시공을 하는 과정이 있었다. 이때 건축주와 시공사의 빠른 의사결정이 있었 다. 이점 깊이 감사를 드린다.
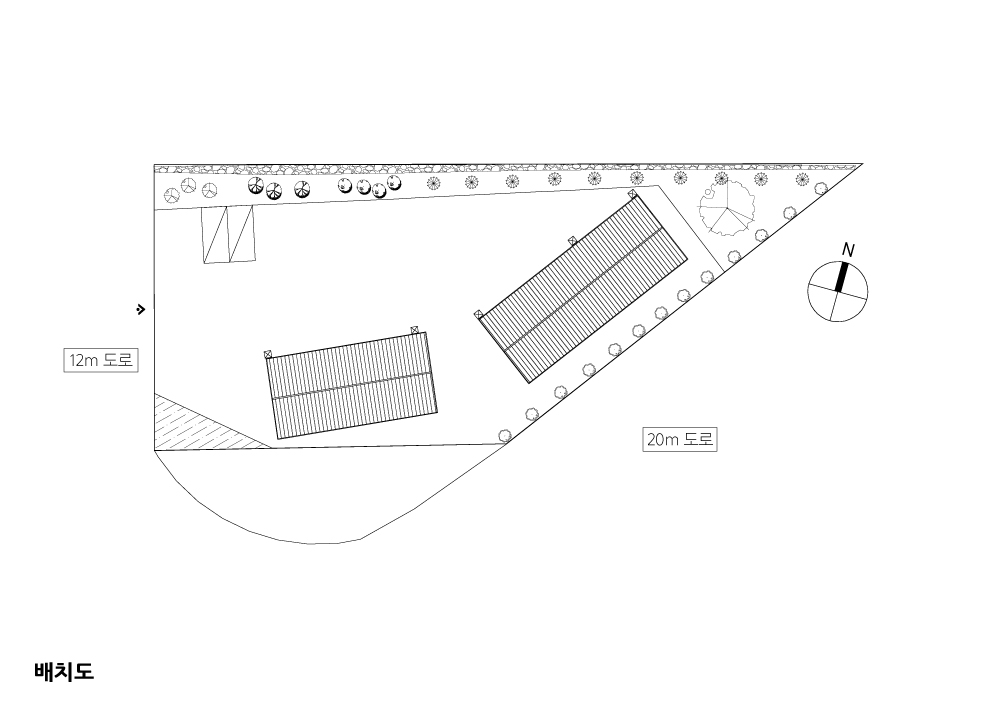
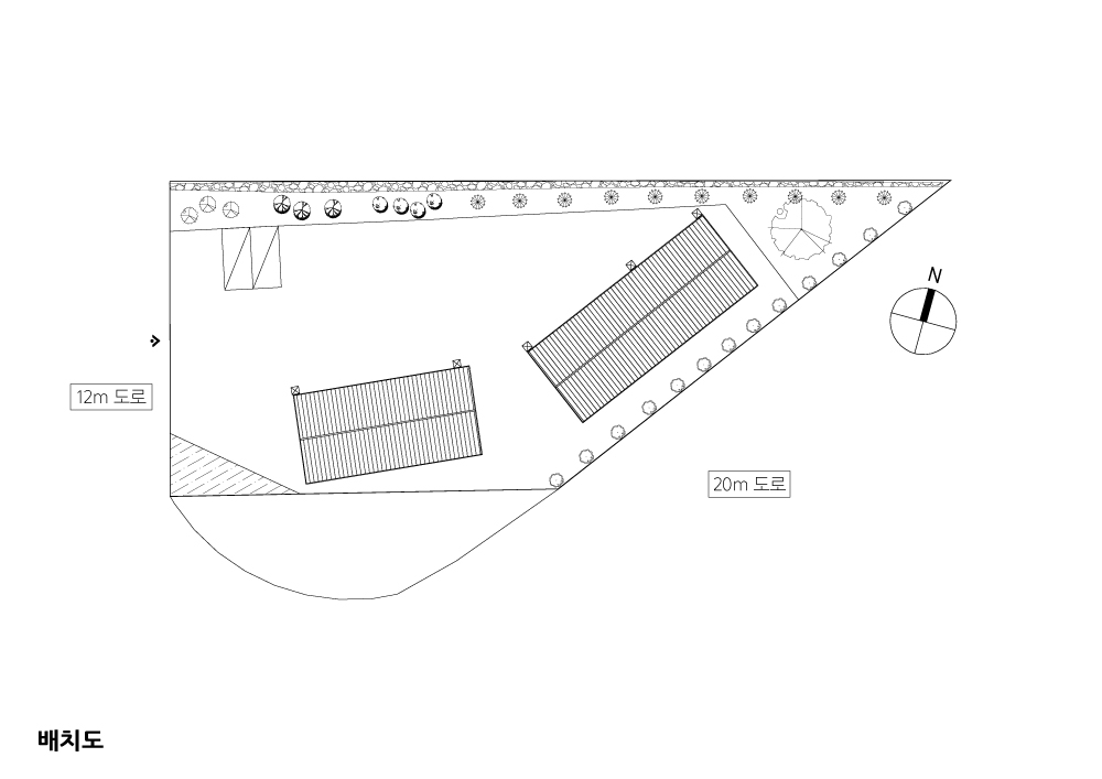
건축주의 요구사항을 요약하면 다음 3가지와 같다. ▲임대상가 가성비를 고려해 최소 공사비로 임대 상가수와 임대면적을 효율적으로 배분 설계한다. ▲최근 트렌드를 반영 미니멀 디자인으로 군더더기 없는 건축물이 돼야 한다. ▲장애인올림픽도 고려하고 향후 초고령사회 대비 상가 출입은 계단 없이 경사로 및 우수 배수용 단차만 적용 배리어프리(Barrier Free) 건물로 한다.
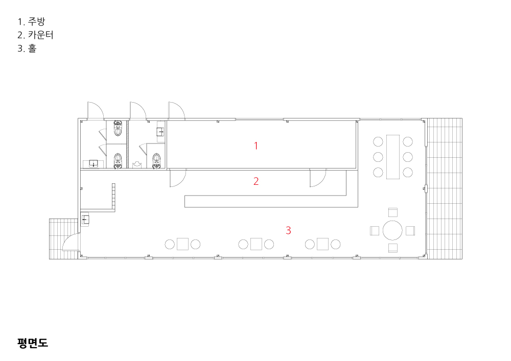
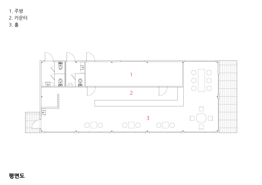
그럼에도 단일 건물에 3∼4개 임대상가를 유치하는 일반적 방법을 포기하도록 설득, 2개의 독립형 임대상가로 계획했다. 벽량은 증가되어도 마당을 각각 관리하고 조경 데크공간도 임차인의 취향과 임대점포 컨셉에 적합한 유지관리를 유도하기 위한 실험 프로젝트로 진행했다. 대한민국의 생계형 건축구법으로서 경량철골 건축은 4차 산업혁명 시대에도 계속될 것이다. 이에 <조립식공법의 미학 적 모험>의 시도는 도시재생 및 농어촌 마을경관 등 거의 모든 건축활동에서 지속적으로 관심을 갖 고 연구해야 할 분야이다.

We wanted to gain the aesthetic sympathy of global people as much as possible, using the site next to the Winter Olympic Park. What we were worried about was firstly structure, and secondly exterior finishing materials. The structure was decided as the lightweight steel frame of a prefabricated building (square pipe, C-shaped steel), which was the most general type of in the era of industrialization. As the finishing materials, zincplated panels were selected for the pursuit of minimalism and simplicity.
During the construction process, the inclination angle and the structural method of roof trusses were not enough to predict aesthetic harmony that we had initially expected, and there was a process of redesigning and reworking all the roof trusses. At this time, there was a quick decision of the client and the contractor. We are deeply grateful for their effort.
The requirements of the client are summarized as follows. ▲Effectively allocate the number of rental shops and rental area to design at the minimum construction cost by considering costeffectiveness of rental shops. ▲Minimal design building by reflecting recent trends ▲Consider the Paralympics, and construct a Barrier Free Building by reflecting only ramps and a floor-level difference for rainwater drainage without stairs.
Nevertheless, we planned to sell two stand-alone rental shops, persuading the client to give up the general way of having three to four rental shops in a single building. We also carried out an experiment project to manage each yard and induce maintenance suitable for tenants’ taste and the concept of rental shops even if it increased the portion of the wall. The lightweight steel frame architecture will continue in the era of the Fourth Industrial Revolution as Korean livelihood architectural building technology. Therefore,the attempt of is a field that should be continuously studied and interested in almost all the architectural activities such as urban regeneration, andfarmingandfishingvillage landscape.







| 올림픽공원 옆 가게 _ 경량철골 근생-K1  설계자 _ Architect. 김흥기 _ Kim, Heunggee 예담 건축사사무소 _ Yedam Archirects 건축주 | 구경백, 윤영진 감리자 | 이봉조 _ 광장 건축사사무소 시공사 | 백두주택건설 설계팀 | 정희정 대지위치 | 강원도 강릉시 난설헌로 131-4 주요용도 | 근린생활시설 대지면적 | 1,170㎡ 건축면적 | 233.28㎡ 연면적 | 233.28㎡ 건폐율 | 19.94% 용적률 | 19.94% 규모 | 지상 1층 구조 | 경량철골구조 외부마감재 | 아연도금판넬 내부마감재 | 클링커타일, 자작나무, 유리블록, 에폭시, 친환경 페인트 설계기간 | 2017. 07 ~ 2017. 09 공사기간 | 2017. 09 ~ 2017. 12 사진 | 김흥기 기계설비분야 : 신호 ENG 전기분야 : 한길엔지니어링 소방분야 : 신호 ENG  | 
Olympic Park neighbourhood Shop-K1  Client | Koo, Gyeongbak / Yoon, youngjin Supervisor | Lee, Bongjo _ Plaza Architect Construction | Bacdoo Housing Cons. Project team | Jung, Heejeong Location | 131-4, Nanseolheon-ro, Gangneung-si, Gangwon-do, Korea Program | Neighborhood living facility Site area | 1,170㎡ Building area | 233.28㎡ Gross floor area | 233.28㎡ Building to land ratio | 19.94% Floor area ratio | 19.94% Building scope | 1F Structure | Lightweight Steel Structure Exterior finishing | Zink Pannel Interior finishing | Clinker tile, Birch, Glass block, Epoxy, Painting Design period | Jul. 2017 ~ Sep. 2017 Construction period | Sep. 2017 ~ Dec. 2017 Photograph | Kim, Heunggee Mechanical engineer | Sinho Engineering Electrical engineer | Hangil Engineering Fire engineer | Sinho Engineering  | 

'회원작품 | Projects > Neighborhood Facility' 카테고리의 다른 글
| 경주 Y 빌딩 2019.6 (0) | 2022.12.22 | 
|---|---|
| 논현 1021 2019.5 (0) | 2022.12.21 | 
| 옐로우나이프 2019.3 (0) | 2022.12.16 | 
| 3.6.9 성곽마을 예술공방 2019.3 (0) | 2022.12.16 | 
| 3.6.9 성곽마을 사랑방 2019.3 (0) | 2022.12.15 |