2022. 12. 12. 10:26ㆍ회원작품 | Projects/Neighborhood Facility
Lukes building

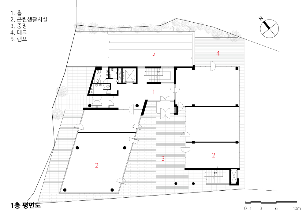
건물 대지는 세종 신도시와 구도심의 경계에 위치해 있 다. 이 곳은 오래전부터 시외버스터미널로 사용돼왔다. 이곳에서 다른 공간으로 이동하고, 많은 이들이 만나고 헤어지던 버스터미널의 공간을 건축공간으로 치환될 수 있도록 계획했다.
가로변에서 동선의 유입과 2층까지의 자연스러운 진입 을 위해 중정을 담은 근린생활시설이 만들어졌고, 의원 으로 쓰이는 3층과 4층은 개방적이며 독립적인 내·외부 공간을 구성했다. 또한 구도심의 도시적 맥락을 고려한 외부 형태와 전면부의 3층 파사드를 계획하여 기존 가로 에 순응하는 동시에 새로운 이정표를 제시하도록 했다.

It is located at the border of Sejong New City and Old Town. It has been used as a intercity bus terminal for a long time. I planned to replace the space of the bus terminal, where many people moved from here to another space and met each other, into architectural space.
For the flow of traffic on the side of the road and the natural entrance to the second floor, a neighborhood living facility with the courtyard was built. The third and fourth floors used as hospitals constituted an open and independent interior and exterior space. In addition, the three - story façade of the external shape and the front part considering the urban context of the old city center was planned and a new milestone was presented at the same time as conforming to the existing street.








| 루카스빌딩 설계자 _ Architect. 현상훈 _ Hyun, Sanghoon 이공일 건축사사무소 _ 201 Architects 건축주 | (주)루카스 감리자 | 현상훈 _ 이공일 건축사사무소 시공사 | 미건종합건설(주) 설계팀 | 유근필, 신선희 대지위치 | 세종특별자치시 금남면 용포로 116 주요용도 | 근린생활시설(의원) 대지면적 | 1,246.00㎡ 건축면적 | 660.21㎡ 연면적 | 2,917.03㎡ 건폐율 | 52.99% 용적률 | 167.17% 규모 | 지하 1층, 지상 4층 구조 | 철근콘크리트조 외부마감재 | 럭스틸, 라임스톤 내부마감재 | 라임스톤, 수성페인트 설계기간 | 2016. 07 ~ 2017. 04 공사기간 | 2017. 06 ~ 2018. 08 사진 | 정지성 문기술협력 구조분야 : 동일구조컨설턴트 기계설비분야 : (주)미래이엔지 전기분야 : (주)미래이엔지 소방분야 : (주)미래이엔지 |
Lukes building Client | Lukes Co., Ltd. Supervisor | Hyun, Sanghoon _ 201 Architects Construction | Migun Construction Project team | You, Geunpil / Shin, Sunhee Location | 116, Yongpo-ro, Geumnam-myeon, Sejong-si, Korea Program | Neighborhood facilities(clinic) Site area | 1,246.00㎡ Building area | 660.21㎡ Gross floor area | 2,917.03㎡ Building to land ratio | 52.99% Floor area ratio | 167.17% Building scope | B1F - 4F Structure | RC Exterior finishing | Luxteel, Limestone Interior finishing | Limestone, Water paint Design period | Jul. 2016 ~ Apr. 2017 Construction period | Jun. 2017 ~ Aug. 2018 Photograph | James Jeong Structural engineer | Dongil structure consultant Mechanical engineer | Mirea ENG Co., Ltd. Electrical engineer | Mirea ENG Co., Ltd. Fire engineer | Mirea ENG Co., Ltd. |
'회원작품 | Projects > Neighborhood Facility' 카테고리의 다른 글
| 수락행복발전소 2019.2 (0) | 2022.12.14 |
|---|---|
| 망원경 2019.1 (0) | 2022.12.12 |
| 습곡(褶曲) 2018.12 (0) | 2022.12.11 |
| 신사동 가로수길 근린생활시설 2018.12 (0) | 2022.12.09 |
| 찬은채 2018.10 (0) | 2022.12.08 |