2022. 12. 8. 09:22ㆍ회원작품 | Projects/Neighborhood Facility
Chan Eun Chae

찬은채 (撰恩寨)
찬은채의 첫 번째 표면적 의미는 ‘은혜(사랑)을 품은 터’이고 두 번째 내면적 의미는 ‘가족의 사랑을 담은 소소한 집’이다.
가족의 소소한 바램
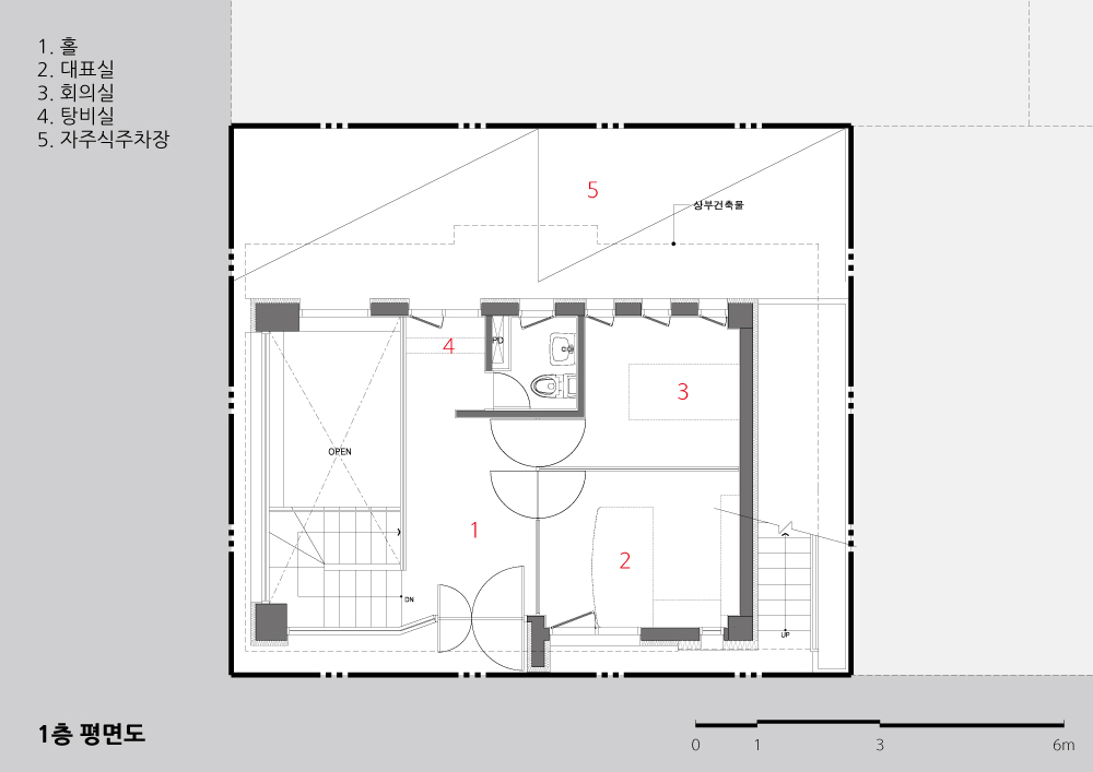
남편과 아내는 소소한 일상을 즐길 수 있는 사무실과 서재를 원했고, 초등학생 아이들은 친구들과 파자 마파티를 하고 꿈꿀 수 있는 다락방을 원했다.
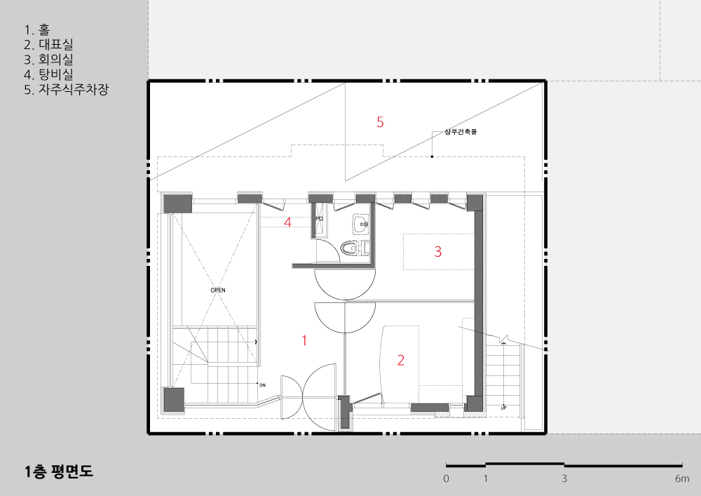
비움과 더해진 열린 공간
가족의 바람과 더불어 설계철학인 비움을 넣어 디자인을 완성해 나갔다. 1층 바닥의 30%를 비워 지하 의 채광과 환기는 물론 하나라는 일체감을 주는 공간으로 구성했다. 일조후퇴로 얻어진 자연발코니는 용마산을 품은 테라스로 만들어졌다. 모든 실내는 블랙과 화이트를 통한 모던하면서도 심플함을 강조 하여 도심의 맥락을 실내로 끌어들이려고 했다.
부부(가족)를 상징하는 매스
아내와 남편이 화합하고 힘을 모은 ‘찬은채’는 가족의 사랑이 담긴, 가족의 사랑으로 만들어진 소소한 주택임을 은유적으로 표현한다. 가족의 꿈이 담긴 도심형 협소주택이다.

Chan Eun Chae (撰恩寨)
The superficial meaning is ‘a place of love (grace),’ and the implied meaning is ‘a small house of a lovely family (the owner and the architect).’
A small wish of a family
The husband and wife needed an office and study for daily life. The children are in elementary school and they wanted an attic to have pajama party in with their friends, and making their dreams come true.
Openness added to the emptiness
I started to create a design with the architectural philosophy of emptiness keeping the family’s wishes in mind. To break the stereotypical idea of a basement, 30% of the floor at the southwest side was emptied out to make an open space for ventilation and sunlight. It also gave the sense of consistency for the overall interior design. The balcony obtained by right to have sunlight was made of terraces looking over Yongma Mountain . All the rooms emphasize the modernity and simplicity through black and white and I tried to draw the context of the urban into the interior.
The structure represents the couple (family)
‘Chan Eun Chae’, built by the husband and wife working together is a small house designed with love and by love for the family. In other words, it is a small urban house implying dreams of the family.












| 찬은채 설계자 ┃ 김민찬 KIRA ┃ (주)디에스앤유 종합건축사사무소 건축주 | 김민찬, 배지은 감리자 | 김민찬 _ (주)디에스앤유 종합건축사사무소 시공사 | 김민찬, 배지은 설계팀 | 변수정, 배지은 대지위치 | 서울특별시 광진구 천호대로 109길 86 주요용도 | 단독주택, 근린생활시설(사무소) 대지면적 | 90.60㎡ 건축면적 | 53.90㎡ 연면적 | 198.98㎡ 건폐율 | 59.49% 용적률 | 177.06% 규모 | 지하 1층, 지상 4층 구조 | 철근콘크리트구조 외부마감재 | 플렉시텍스(테라코코리아), 청고벽돌 (토우벽돌), THK24 로이복층유리, THK3징크패널 내부마감재 | 4인치치장블럭, 에폭시코팅(삼화페 인트), 강마루(동화마루), 실크벽지(LG하우시스), THK30멀바우(성경목재) 설계기간 | 2017. 07 ~ 2018. 03 공사기간 | 2017. 09 ~ 2018. 03 사진 | 이상재 전문기술협력 구조분야 : (주)디에스앤유 종합건축사사무소 기계설비분야 : 제이앤영엔지니어링 전기분야 : 제이앤영엔지니어링 |
Chan Eun Chae Architect | Kim, Minchan _ DSNU Architectural Consultant Co., Ltd. Client | Kim, Minchan / Bae, Jieun Supervisor | Kim, Minchan _ DSNU ArchitecturalConsultant Co., Ltd. Construction | Kim, Minchan / Bae, Jieun Project team | Byeon, Sujeong / Bae, Jieun Location | 86, Cheonho-daero 109-gil, Gwangjingu, Seoul, Korea Program | Detached housing, Office Site area | 90.60㎡ Building area | 53.90㎡ Gross floor area | 198.98㎡ Building to land ratio | 59.49% Floor area ratio | 177.06% Building scope | B1F - 4F Structure | RC Exterior finishing | Flexitex, Cheonggo brick, THK24 Low-E double-layer glass, THK3 Zinc panel Interior finishing | 4inch Dressing block, Epoxy coating, Wood floor, Silk wallpaper, THK30 Malbau Design period | Jul. 2017 ~ Mar. 2018 Construction period | Sep. 2017 ~ Mar. 2018 Photograph | Lee, Sangjae Structural engineer | DSNU Architectural Consultant Co., Ltd. Mechanical engineer | J&Y Engineering Electrical engineer | J&Y Engineering |
'회원작품 | Projects > Neighborhood Facility' 카테고리의 다른 글
| 습곡(褶曲) 2018.12 (0) | 2022.12.11 |
|---|---|
| 신사동 가로수길 근린생활시설 2018.12 (0) | 2022.12.09 |
| 오드메종 2018.10 (0) | 2022.12.08 |
| 밀로바니 2018.10 (0) | 2022.12.08 |
| 남부안 농협 로컬푸드 매장 2018.10 (0) | 2022.12.08 |