2022. 12. 8. 09:14ㆍ회원작품 | Projects/Neighborhood Facility
ODE MASION -audio showroom

본 프로젝트는 하이엔드 오디오의 판매와 청음을 위한 공간을 만드는 프로젝트로, 복잡한 도심 내의 한적한 주거지에 위치하고 있다.
무언가를 판매하고 홍보하는 기능을 담아야 하지만, 주택가 한 가운데서 그것을 드러내는 것은 부담스러운 일이었다.
주변환경을 고려해 하이엔드의 세계를 경험할 수 있는 폐쇄된 외피를 생각하게 되었고, SOUNDSCAPE의 세계를 건축적 여정으로 풀기로 했다.
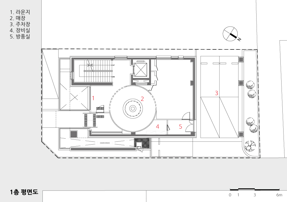
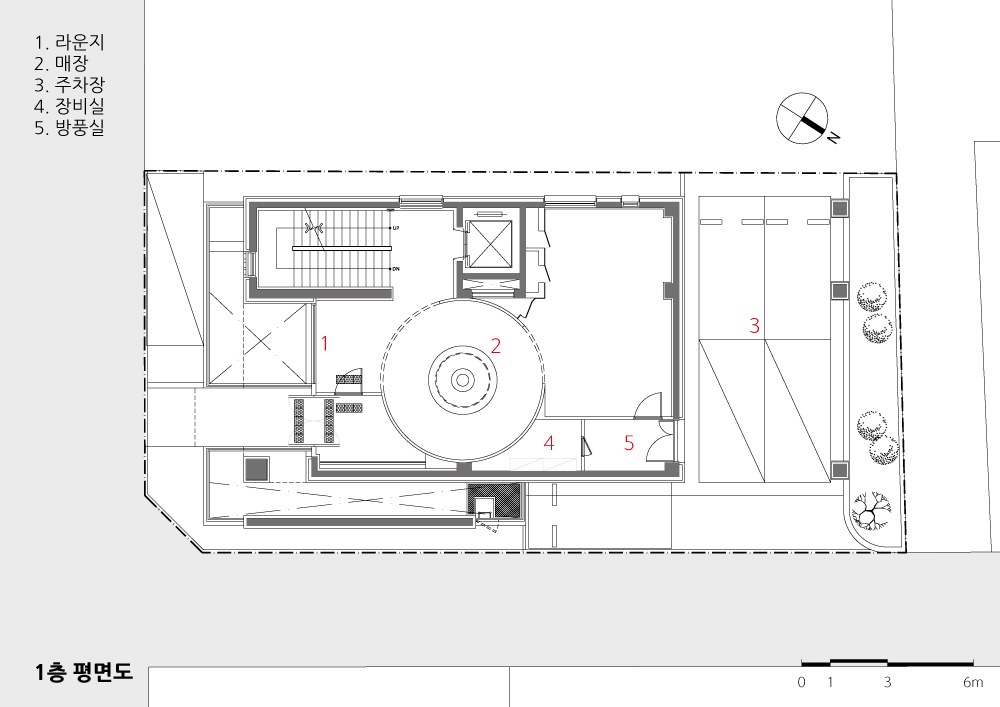
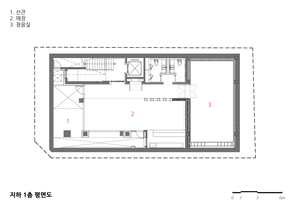
첫 번째 경험의 시작은 브리지를 통해 일상과 평범함을 ‘건너가는’ 행위였으며, 풍부한 선큰가 든으로 구성된 지하는 편안한 음악 감상 공간을 제공한다. 각층별 청음실과 쇼룸, 라운지와 데 크공간은 다양한 경험을 체험할 수 있도록 설계했다.

This project is designed to create space for selling and listening to high-end audio, and located in a densely populated residential complex.
It should include the ability to sell and promote something, but it was a burden to reveal it in the middle of a residential area.
Considering the surroundings, I came to think of a closed envelope that can experience the high-end world, and I decided to solve the world of SOUNDSCAPE with an architectural journey.
The beginning of the first experience was the 'crossing' of everyday and ordinariness through a bridge, and the basement with its rich sunken garden provides a comfortable space for listening to music. Each floor has a listening room, a showroom, a lounge and a deck space designed to provide a variety of experiences.














| 오드메종 설계자 ┃ 박봉준 KIRA ┃ (주)와이엔피 종합건축사사무소 건축주 | (주)디아이 감리자 | 박봉준 _ (주)와이엔피 종합건축사사무소 시공사 | (주)조일건설 설계팀 | 권영환, 이인호, 정진욱 대지위치 | 서울시 강남구 도산대로25길 15-6(신사동) 주요용도 | 근린생활시설 대지면적 | 349.30㎡ 건축면적 | 207.67㎡ 연면적 | 836.64㎡ 건폐율 | 59.45% 용적률 | 180.09% 규모 | 지하 1층, 지상 5층 구조 | 철근콘크리트조 외부마감재 | 큐블럭, 로이복층유리 내부마감재 | 대리석타일, 친환경수성페인트, 자작나무패널 설계기간 | 2015. 01 ~ 2015. 06 공사기간 | 2015. 08 ~ 2016. 05 전문기술협력 구조분야 : (주)이건구조기술사사무소 기계설비·전기·소방분야 : (주)대명기술단 토목분야 : (주)나우엔지니어링 |
ODE MASION -audio showroom Architect | Park, Bongjoon _ YnP Architects Client | DI Corp. Supervisor | Park, Bongjoon _ YnP Architects Construction | JOIL Engineering & Construction Project team | Kwon, Younghwan / Lee, Inho / Jung, Jinwook Location | 15-6, Dosandae-ro 25-gil, Gangnam-gu, Seoul, Korea Program | Neighbourhood living facility Site area | 349.30㎡ Building area | 207.67㎡ Gross floor area | 836.64㎡ Building to land ratio | 59.45% Floor area ratio | 180.09% Building scope | B1F - 5F Structure | RC Exterior finishing | Brick, Low-e double glass Interior finishing | Granite tile, Eco-friendly water paint, Birch plywood Design period | Jan. 2015 ~ Jun. 2015 Construction period | Aug. 2015 ~ May. 2016 Structural engineer | Lee-gun Structure Mechanical·Electrical·Fire engineer | Dae-myung Engineering Civil engineer | Na-woo Engineering |
'회원작품 | Projects > Neighborhood Facility' 카테고리의 다른 글
| 신사동 가로수길 근린생활시설 2018.12 (0) | 2022.12.09 |
|---|---|
| 찬은채 2018.10 (0) | 2022.12.08 |
| 밀로바니 2018.10 (0) | 2022.12.08 |
| 남부안 농협 로컬푸드 매장 2018.10 (0) | 2022.12.08 |
| 아미티스 가든 2018.10 (0) | 2022.12.08 |