2022. 12. 21. 10:04ㆍ회원작품 | Projects/House
Jeongneung Dong Plat with BOOKS House

주변 환경. S 대학교 문헌정보학과 교수이신 건축주는 건축 할 땅을 찾기 위해 대지구입 전부터 건축사와 함께 대지 조 건을 검토하고 몇 곳의 현장을 같이 돌아다녔다. 최종적으로 선정된 대지는 남북방향으로 한 개 층 높이의 경사를 가지고 있는, 정릉의 좁은 골목들 사이에 위치해 있었다. 이웃집들 과 워낙 가깝게 붙어있는지라 거주자의 프라이버시를 위해 남쪽의 창을 과감히 포기하고 목구조를 이용한 프리컥 공법 으로 빠른 공사를 진행하기로 했다.
목표. 건축계획상의 중요한 두 가지 목표는 다음과 같다.
1. 두 세대를 위한 하나의 집. 그리고 원룸 속의 독립된 공간
2. 프라이버시를 보장하는 개방감 있는 큰 창
3. 나무에 의한 나무를 위한 나무로 지은 집
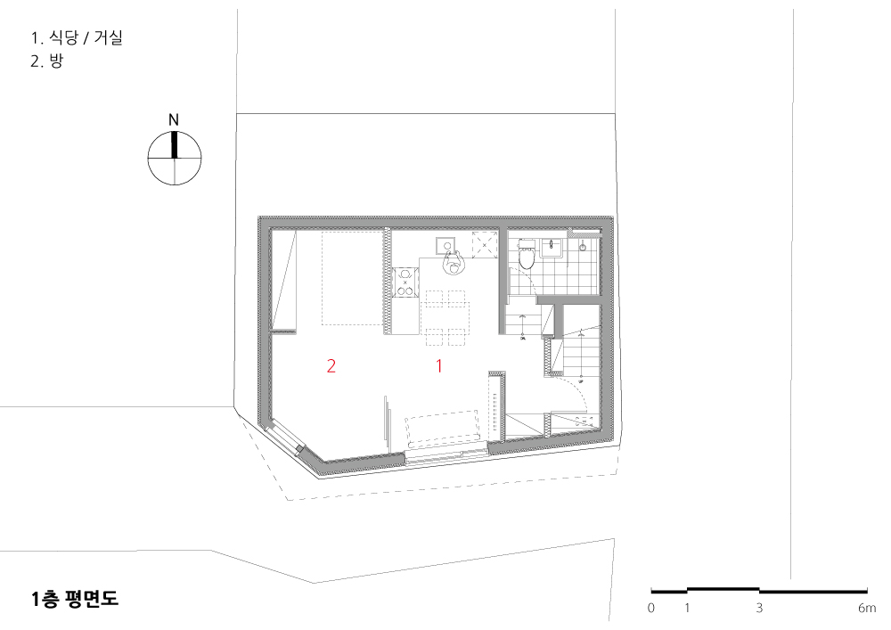
전략. 하나의 단독주택이지만 1층의 공간은 장성한 아들 의 공간이자 앞으로 출가한다면 이곳에서 신혼생활을 시작 할 수 있도록 별도의 공간으로 꾸몄다. 작은 집에서의 수납 은 현관주변의 공간을 집중적으로 공략했다. 현관에는 신발 장을 시작으로 1층의 보일러와 전기 분배기, 욕실까지 이어 지는 공간이 모두 수납장이다. 두 개 층에 걸쳐진 책꽂이 형 태의 ‘가족서가(家族書架)’는 2층의 거실에서 3층의 안방을 지나 다락까지 이어진다. 서가의 끝은 건축주의 작업실이다.2, 3층의 공간은 남쪽 가족서가의 틈을 따라 서로 연결되어 있다. 결국 안방과 거실, 주방은 하나의 공간으로 연결된 것 인데 3층에 위치한 딸의 방은 마치 커다란 원룸에 속해 있는 작은 우주와 같다. 작은 방이 두 개의 다락과 1개의 옷장, 그 리고 하나의 침대로 구분되어 있어 또 하나의 우주이다. 두 개의 거대한 창이 각각 동쪽과 남서쪽을 향해 있다. 주변 집 들로부터의 시선의 방향을 고려해 배치된 것으로 외부에서 강한 인상을 주는 한편, 내부에서는 스펙터클한 경관을 만들 어 준다. 특히 남서쪽의 창은 거대한 Y자 모양으로 국민대학 교 방향으로의 시원한 경관을 만들어주고 목구조의 구조미 를 안팎으로 드러내어 준다. 경사면에 위치해 있어 1층은 콘 크리트 구조로 계획했고 그 위에 두 개 층의 목구조가 얹어 졌다. 목구조는 중목구조를 이용했다. 마치 신발끈을 묶듯 얼기설기 얽힌 구조를 만들어 자연스럽게 구조가 내부에 드 러나도록 했다. ‘목구조’와 ‘가족서가’가 만들어 내는 나무집 이야기가 펼쳐진다.

Surroundings. In order to find the land to be built, the client, a professor of the Department of Library & Information Science, S University, reviewed the conditions of the site together with the architect before purchasing the site and traveled to several sites together. The finally selected site was located between the narrow alleys of Jeongneung, which has a one-floor slope north and south. As it is very close to neighboring houses, we boldly gave up the south window for the privacy of the residents and decided to go ahead with the construction with a pre-cut method using a wooden structure.
Goal. Two important goals of an architectural plan are as follows. 1. One house for two generations. And independent space in a studio 2. Large window with openness that guarantees privacy 3. Wooden house made of wood and for wood.
Strategy. Although it is a single-family house, the space on the firstfloor was designed to be the space for a full-grown son and a separate space to start his honeymoon life here if he marries. The storage in a small house concentrated on the space around the porch. Connected from the shoe shelf at the entrance to the first floor boiler, the electric distributor, and the bathroom, all of the spaces are all storage. ‘Family Bookshelf’ in the form of book shelves spanning two floors extends from the living room on the second floor to the main room on the third floor and the attic. The end of the bookshelf is the client's workroom. The second and third floors are connected to each other along the gap of the south Family Bookshelf. In the end, a bedroom, a living room, and a kitchen are connected to one space. The room for their daughter on the third floor is like a small universe belonging to a large studio. The small room is divided into two lofts, one closet, and one bed, which is another universe. Two huge windows face east and southwestrespectively. It is arranged considering the direction of the gaze from the surrounding houses, giving a strong impression on the outside, while creating a spectacular view from the inside. In particular, the southwest window is huge Y-shaped, creating a cool view toward Kookmin University and revealing the structural beauty of a wood structure inside and outside. Located on the slope, the first floor was planned as a concrete structure, and on top of it was a two-story wooden structure. The wood structure used a heavy-weight wood structure. It was like tying shoelaces to create an entangled structure that has made a structure naturally exposed. The story of the wooden house created by a ‘wood structure' and a ‘family bookshelf' begins to unfold







| 정릉동 책 _ 놀이집 설계자 _ Architect. 이재혁 _ Yi, Jaehyuk (주)에이디모베 건축사사무소 _ Admobe Architect 건축주 | Sim WS 감리자 | 이재혁 _ (주)에이디모베 건축사사무소 시공사 | (주)수피아건축 설계팀 | 이주화, 석나래, 김현종, 황명철 대지위치 | 서울특별시 성북구 정릉동 주요용도 | 단독주택 대지면적 | 83.29㎡ 건축면적 | 48.98㎡ 연면적 | 122.71㎡ 건폐율 | 58.81% 용적률 | 147.33% 규모 | 지상 3층 구조 | 철근콘크리트구조 + 중목구조 외부마감재 | EIFS(외단열미장마감), 벽돌타일, 칼라강판 내부마감재 | 수성페인트, 온돌마루, 적삼목 설계기간 | 2017. 11 ~ 2018. 03 공사기간 | 2018. 04 ~ 2018. 08 사진 | Jung Song 구조분야 : 서진구조 + 수피아건축 기계설비분야 : 유영설비기술연구소 전기분야 : 거산ENG |
Jeongneung Dong Plat with BOOKS House Client | Sim WS Supervisor | Yi, Jaehyuk _ Admobe Architect Construction | Supia Construction Project team | Lee, Joohwa / Seok, Narae / Kim, Hyunjong / Whang, Myungchul Location | Jeongneung Dong, Seongbuk Gu, Seoul, Korea Program | Personal Residence Site area | 83.29㎡ Building area | 48.98㎡ Gross floor area | 122.71㎡ Building to land ratio | 58.81% Floor area ratio | 147.33% Building scope | 3F Structure | RC + Timber Wood Exterior finishing | EIFS, Brick tile, Steel roof panel Interior finishing | Water paint, Wood flooring, Cedar panel Design period | Nov. 2017 ~ Mar. 2018 Construction period | Apr. 2018 ~ Aug. 2018 Photograph | Jung Song Structural engineer | SeojinStructure Engineering Mechanical engineer | U-Young Engineers & Consultants Electrical engineer | Geosan Engineering |

'회원작품 | Projects > House' 카테고리의 다른 글
| 산수간(山水間) 2019.5 (0) | 2022.12.21 |
|---|---|
| 서향각 2019.5 (0) | 2022.12.21 |
| 세종 Ye’s House 2019.5 (0) | 2022.12.20 |
| 건축사 홍철수 2019.4 (0) | 2022.12.19 |
| 건축사 공일곤 2019.4 (0) | 2022.12.19 |