2022. 11. 9. 17:05ㆍ아티클 | Article/칼럼 | Column
Trumpf Smart Factory, Chicago, USA
Architect : Barkow Leibinger, Germany

이번 호에서는 우리나라에도 트루텍-TRUTEC- 빌딩을 설계한 적 있는 독일 베를린 베이스의 건축사 바르코우 라이빙거-Barkow Leibinger-팀의 작품을 소개한다. 건축주는 독일 공작 기계 및 레이저 제조 업체인 트럼프-Trumpf-라는 회사였고, 이들은 스마트 팩토리-Smart Factory-라는 자신들의 최신 기술을 보유 및 전시하는 공간을 짓고자 했다. 애초부터 발주처 측의 목표는 건물의 주요 기능으로 하이테크 장비 및 혁신적인 생산공정을 한 공간에 구축하고 이를 회사 소개 및 홍보 역할용으로 활용하는 것이었다. 여기에 디지털 네트워크화 된 기계가 장착된 인더스트리 4.0-Industry 4.0- 데모 팩토리는 금속이 쉬트 형상으로 나오는 것에서부터 설계, 생산 및 납품에 이르는 전체 판금 공정 체인이 가동되는 공간이 될 예정이였다.
트럼프 기업의 새로운 기지인 ‘스마트 팩토리’는 대지 선택부터 주변의 산업시설 인프라를 고려했다. 대지는 시카고 오 헤어 국제 공항-O’Hare International Airport- 근처의 고속도로 부근이다. 영어로 ‘러스트 벨트-Rust Belt-’라 함은 미국에서 가장 오래되고 큰 철강 산업 지역의 일부로써 캐나다와 국경을 접하고 호수 근처의 지역으로 한때 철강 생산으로 호황이었으나, 지난 수십 년 동안 중공업 산업이 줄어들어 경제 및 인구 감소가 있는 곳을 일컫는다. 오늘날 하이테크 기업들은 이러한 ‘러스트 벨트’에 남은 이전 공장을 대체하기 시작했고 다른 많은 제조 및 창고 건물들에 거주하기 시작하면서 컴퓨터 제어의 하이테크의 생산지로 다시금 부각되고 있다.

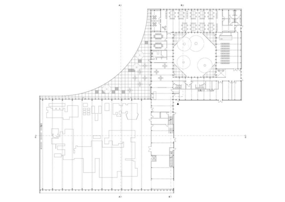
이 건물의 평면 구성(그림2)은 어찌 보면 ‘전시공간 + 작업공간’이라는 다이어그램을 바탕으로 했기 때문에 굉장히 단순하고, 미스 반 데 로에-Mies van der Rohe-의 최소한을 지키는 것을 원칙으로 한 건축 언어와 꽤 닮아있다. 건물은 두 개의 커다란 매스가 중간에서 약간 중첩된 형태로 놓여있다. 북쪽에는 사무실, 카페 및 강당으로 둘러싸인 중정이 있고, 남쪽은 기능적으로 완전히 분리될 수 있도록 쇼룸과 데모 공장 등을 배치했다.


부품 주문에서 설계, 제조 및 납품에 이르기까지 전체 생산 과정을 보여주는 디지털 네트워트화 기계설비도 역시 남쪽 매스에 위치되어 있다. 이는 단순한 공간적 필요 때문인데, 사무실 및 카페 등의 친밀감을 요하는 곳은 천정고가 낮아도 되지만 전시공간이나 공장기기 등을 담는 공간은 높은 천정고를 필요로 했기 때문에 매스의 끝을 높게 시작해 점점 내려가면서 북쪽에는 가장 낮은 지대를 둔 것이다. 지붕선이 사선으로 부드럽게 이어지면서 건축물 전체를 하나로 통일, 연결하는 것 처럼 보이도록 했다(그림 3). 두 개의 직사각형 매스는 모서리 부분에서 연결되고 접합부분에서 실외공간인 휴식공간을 제공한다.




건물의 높이가 낮은 곳(4.5m)에서 높은 곳(13m)로 점차 높아지는 구조를 가지고 북쪽 매스의 작업공간-Free space-을 만들기 위해 구조적으로 천정 쪽에 길이가 약 45m에 달하는 11 개의 트러스가 필요했다. 이 트러스 구조는 무거운 스틸을 레이저로 절단하는 방법으로 제작됐다.

재미있는 부분은 관람객이 천장 구조물을 관통하는 다리인 스카이 워크-Sky walk-를 통해 건물에 대해 새로운 공간을 만나고 구조물이 구조의 역할을 넘어 공간의 일부로써의 역할을 하도록 한 것이다. 물론 이러한 천정에서 내려다보는 전시 공간 및 작업용 공간은 굉장히 극적인 전망-View-을 제공한다. 다른 한편으로 최대 13m에 달하는 건물의 남쪽(그림 9)은 앞의 고속도로로 향하면서 의도적인 기업 홍보 효과를 누리기도 한다.


재료는 단순한 공장 건축물로 대부분의 기업의 이미지를 연상시킬 수 있는 스틸 종류를 사용하고 있다. 대부분의 구조체는 노출되 있고 산업적이며 거친 분위기를 연출하는데, 이는 지극히 건축물 성격에 맞게끔 의도된 것이다. 주 외장재는 코르텐 스틸-Corten steel cladding-로써 커튼월 부분의 단열처리 주변부를 마감하는 방식이다. 남쪽 파사드의 커튼월은 천장부터 바닥까지 13m에 해당하는 길이를 유리의 제작 및 생산, 운반, 시공 과정을 고려해 세 판으로 나누어 설치했다. 커튼월의 모듈과 구조체의 모듈이 하나를 건너뛰면서 일치하도록 해 안쪽에서 보았을 때는 멀리언 두께의 리듬감이 생긴다.



건물의 내장재는 외장재로 쓰여진 차가운 메탈이나 산업적 재료와는 달리 따뜻한 느낌의 검은색 계열의 목재를 벽체 마감으로 사용하고, 바닥은 콘크리트 폴리싱 후 하드너로 처리했다. 간간히 보이는 계단의 난간이나 가구요소들은 철판 한판으로 처리한 것이 노출된 구조체와 꽤 잘 어울린다.
건축물은 한 기업의 이미지를 만드는 데에 큰 역할을 한다. 그것은 비단 한 특정 건축물이 가지는 건축 언어로부터 비롯된 상징적인 의미를 넘어 실제로 그 공간을 사용하는 사용자가 건물 안에서 느끼는 사용성과도 관련 있지 않을까?
글. 이지현 Lee, Jihyun jihyun.lee815@gmail.com
'아티클 | Article > 칼럼 | Column' 카테고리의 다른 글
| 입춘대길 2018.02 (0) | 2022.11.09 |
|---|---|
| 파라메트릭 디자인ⅩⅧ 2018.02 (0) | 2022.11.09 |
| 서양 건축미 개념의 역사적 전개 연구 (2) _ 아네르 테트라고노스와 아르카디아 2018.02 (0) | 2022.11.09 |
| 무술년이 밝았습니다 2018.01 (0) | 2022.11.07 |
| 오키 사토와 넨도 2018.01 (0) | 2022.11.07 |