2023. 1. 11. 09:08ㆍ회원작품 | Projects/Education
Gimcheon Kinderhaba

빛과 자연, 계절을 담은 어린이들의 성
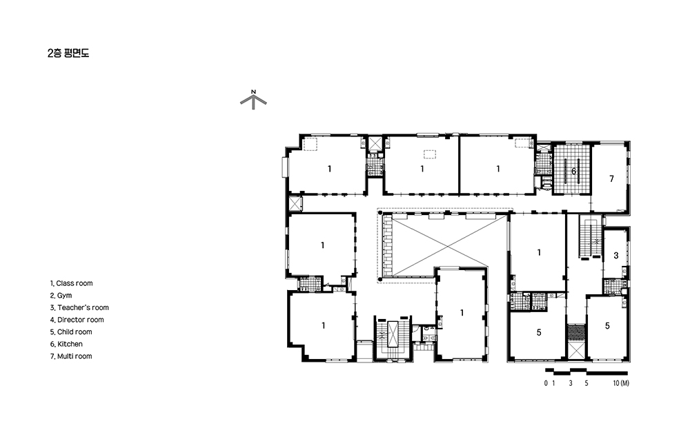
김천 시가지의 동측, 새로운 주거 클러스터인 김천혁신도시의 유치원 부지에 어린이들의 꿈과 희망을 차곡차곡 쌓아가는 성이 자리 잡았다. 김천혁신도시에 접근하게 되는 큰 도로에서부터 건물은 유난히도 눈길을 끄는 이형적인 경사지붕을 가지고 있으며, 그 용도가 유치원이라는 것에 모두가 고개를 끄덕이는 형태이다.
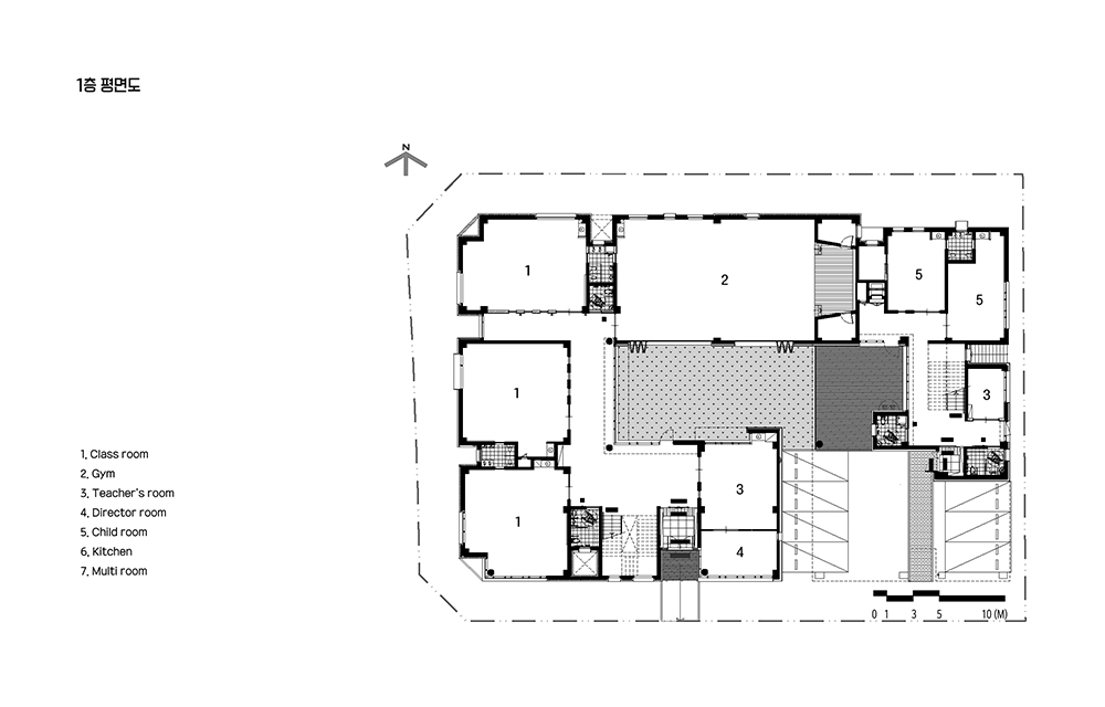
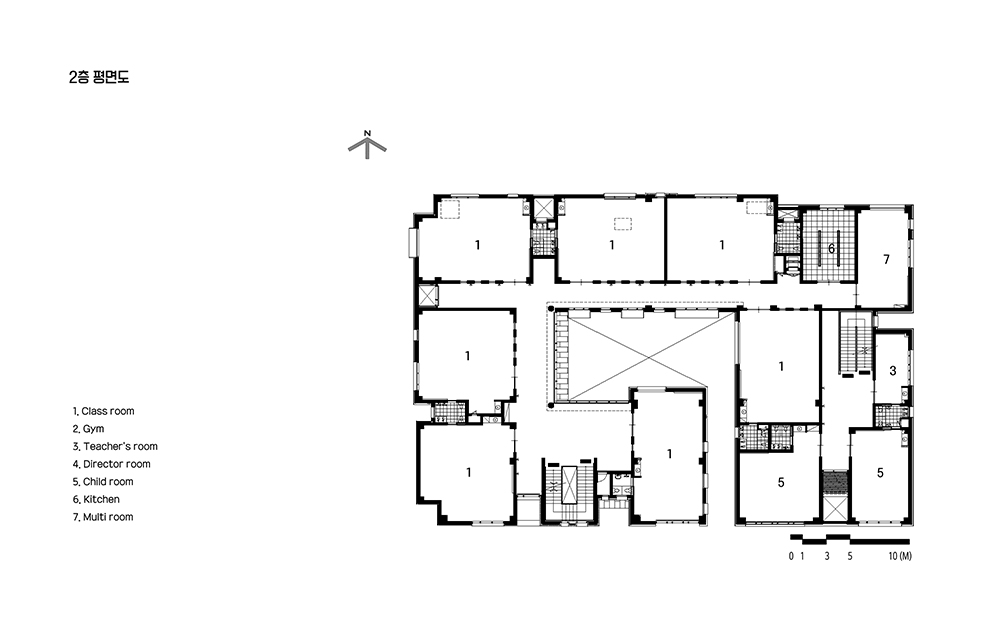
지구단위계획상 유치원으로의 기능을 하도록 지정된 용도인 대지는 인근에 어린이공원을 가까이에 두고, 보행상 안전하게 등원할 수 있도록 너비가 긴 인도와, 보행자도로를 접하고 있다. 그 직사각형의 땅은 건폐율을 채우기에 부족함이 없었기에 유치원과 어린이집의 경계 없이 어린이들의 무한한 상상력을 자극하는 작은 성들의 집합체가 되기에 충분하다. 평평한 부지의 땅에 어린이의 스케일에 알맞은 공간이 하나씩 자리 잡고 그것들이 유기적으로 어울려 주변과 자연스럽게 묻어난다. 각각의 영역들은 조금씩 확장하고, 개별적으로 공간을 만들고 외부이지만 내부인 중정을 형성했다. 어린이들의 안전을 고려한 놀이공간이자 오픈스페이스인 중정은 외부의 빛을 끌어들이고, 자칫 답답할 수 있는 홀과 복도를 한층 더 확장시킨다. 건축주의 의도와 건축사의 의도가 맞아떨어지는 새로운 공간이다. 외부에서는 하나의 볼륨감이 눈길을 사로잡아 마치 성과 같은 이미지를 제시했다. 반면의 내부의 영역에서는 시야가 끊이지 않고 이어지듯 공간들은 쌓여 층을 이루고 그것은 어린이들을 위한 하나의 성처럼 형성되어 안전함과 안락함을 제공한다. 또한 어린이들의 활동성을 보여주듯 지붕은 조형적이면서도, 자연스러운 일사 및 채광을 유입시켜 깊은 공간감을 준다. 언제나 밝고 건강한 어린이들의 모습을 생각하고 바라보는 부모와 같은 마음으로 건축사는 이와 같은 계획은 제안했다. 건축주의 결단은 이와 같이 새로운 이미지의 유치원과 어린이집으로 발돋움하기에 큰 역할이 되었고 그것은 현실이 되어 우리들의 눈앞에 나타났다.
많은 어린이들이 오랫동안 머무르는 유치원, 어린이집이라는 새로운 터전에서부터 상상력을 자극하여 창의성을 계발시키는 교육연구시설로서의 기능은 만족스러울 것이다. 어린이들이 뛰어놀 수 있는 안전한 성, 그것이 바로 김천의 킨더하바 유치원, 어린이집이다.

Children's castle containing light, nature and seasons
On the eastern side of Gimcheon city, there is a castle that piles up children's dreams and hopes one by one on a kindergarten site in Gimcheon Innovation City, a new residential cluster. From the large road that approaches the Gimcheon Innovation City, the building has an unusually eye-catching pitched roof, and it is built in a form that everyone can recognize its purpose as a kindergarten.
The site, which is designated to function as a kindergarten according to a district unit plan, has a children's park nearby and has access to a wide sidewalk and a pedestrian road so that it can ensure safe walking. The rectangular land is so enough to fill the building coverage ratio that it would be a complex of small castles that stimulate children's infinite imagination regardless of boundaries of kindergarten and nursery. On the flat ground, spaces suitable for the scale of children are created one by one, and they are organically mixed and naturally harmonized with the surroundings. Each of these areas has expanded slightly, creating spaces separately and forming an outdoor but indoor courtyard. The courtyard, a play space and open space that considers children’s safety, draws the outside light and expands the halls and corridors that can be a little stuffy. It is a new space where the client’s intention and the architect’s intention match. On the outside, a sense of volume catches the eye and presents an image like a castle. On the other hand, in the internal area, spaces are stacked and layered as if the visual field is constantly connected. It provides safety and comfort as it is formed like a castle for children. Also, like showing children's activity, the roof is formative and gives a deep sense of space by taking in natural sunshine and light. The architect suggested such a plan, considering parents' hearts who always want and hope bright and healthy children. The architect’s decision played a big role in developing them into a kindergarten, nursery with a new image, which has become reality before our eyes.
From the new home of kindergarten and nursery where many children stay for a long time, the function as an educational research facility that stimulates the imagination and develops creativity will be satisfactory. Haba Kinder Kindergarten, Nursery in Gimcheon is a safe castle for children to play in.








| 김천 킨더하바 Architect | 김기석 _ (주)기단 건축사사무소 건축주 | 임명해 감리자 | 김기석 _ (주)기단 건축사사무소 시공사 | 삼안건설(주) 설계팀 | 임원교 대지위치 | 경상북도 김천시 율곡동 137 주요용도 | 교육연구시설(유치원), 노유자시설(어린이집) 대지면적 | 1,562.70㎡ 건축면적 | 935.50㎡ 연면적 | 2,202.78㎡ 건폐율 | 59.86% 용적률 | 133.90% 규모 | 지하 1층, 지상 3층 구조 | 철근콘크리트조 외부마감재 | 산화스텐판넬, 노출콘크리트, 점토벽돌, 사쿠라목재 내부마감재 | 노출콘크리트, 친환경페인트 설계기간 | 2015. 02 ~ 2015. 05 공사기간 | 2015. 06 ~ 2016. 07 사진 | 윤동규 전문기술협력 - 구조분야 : (주)아이티에스 엔지니어링 - 기계설비분야 : 명신 ENG - 전기분야 : 선광엔지니어링 |
Gimcheon Kinderhaba Architect | Kim kiseok _ KIDAN Architects Client | Lim, Myeonghae Supervisor | Kim kiseok _ KIDAN Architects Construction | Sam An Engineering & Construction Project team | Lim, Wongyo Location | 5, Haeoreum 2-ro 1-gil, Gimcheon-si, Gyeongsangbuk-do, Korea Program | Kindergarten, Nursery Site area | 1,562.70㎡ Building area | 935.50㎡ Gross floor area | 2,202.78㎡ Building to land ratio | 59.86% Floor area ratio | 133.90% Building scope | B1F - 3F Structure | RC Exterior finishing | Oxide SST, Exposed mass concrete, Clay Brick, Sakura siding Interior finishing | Exposed mass concrete, Paint Design period | 2015. 02 ~ 2015. 05 Construction period | 2015. 06 ~ 2016. 07 Photograph | Yoon, Donggyu Structural engineer | ITS Structural Consulting Engineers Mechanical engineer | Moung Sin ENG Electrical engineer | Seongwang Engineering |

'회원작품 | Projects > Education' 카테고리의 다른 글
| 화성시 시립 향남공원어린이집 2020.5 (0) | 2023.01.13 |
|---|---|
| 의정부 미술전문 공공도서관 2020.5 (0) | 2023.01.13 |
| 유회진 학술정보관 2020.1 (0) | 2023.01.09 |
| 대전대학교 HRC(제5생활관) (0) | 2023.01.06 |
| 동아쏘시오그룹 웰컴센터 2019.5 (0) | 2022.12.21 |