2023. 1. 11. 09:12ㆍ회원작품 | Projects/House
Jingwan Residence

진관동 주택은 진관사 아래 북한산이 병풍처럼 둘러진 필지에 노부모와 함께 할 단독주택이다. 건축주는 삼대가 처음으로 함께 살며 돈독한 가족애를 집과 함께 짓고 싶어 한다. 고령의 어머니와 자녀는 처음 한 집에서 살게 되어, 서로에 대한 이해와 추억을 만들길 희망한다. 몸이 불편한 어머니가 편히 쉬시면서, 한편으로 소외되지 않고 가족들과 많은 추억을 만들도록 하는 것은 건축주의 일관된 요구였다.
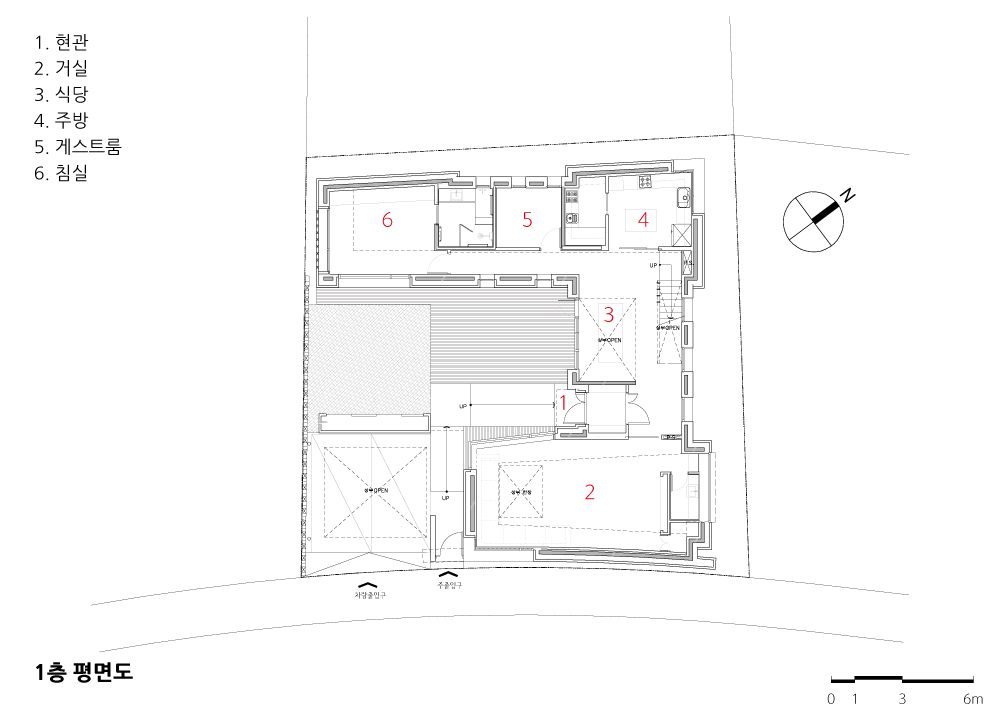
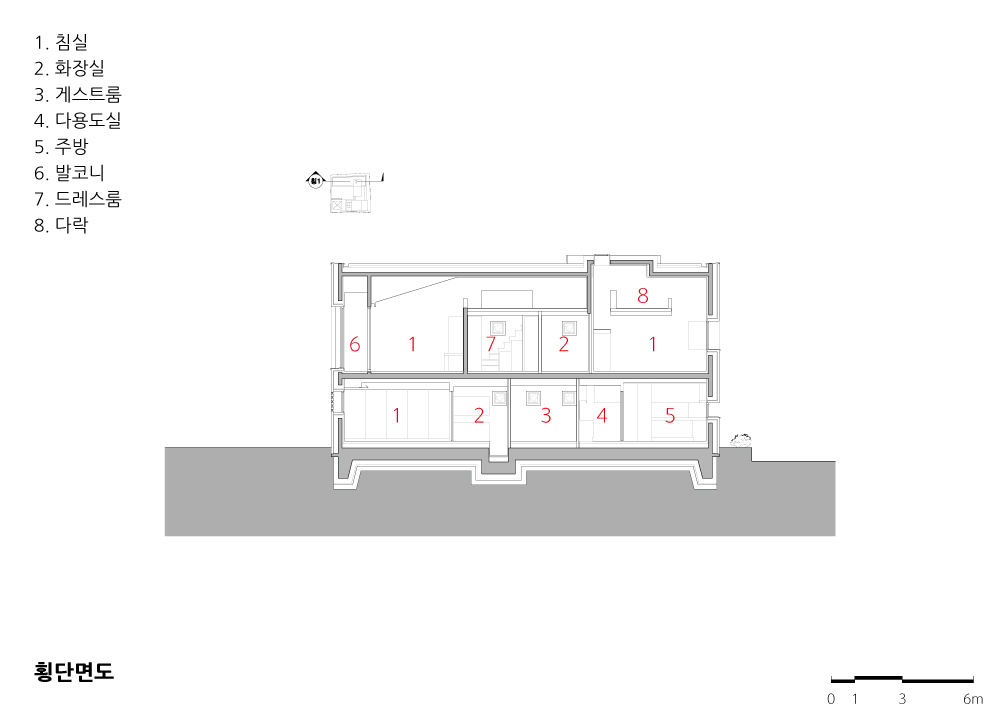
사랑방은 고령의 어머니를 위해 배려했다. 처음 대문을 열고 들어가면 낮게 보이는 창문을 통해 사랑방에 계시는 어머니와 조우하게 된다. 집을 드나드는 사람들이 주로 앉아 계시는 어머니와 눈을 맞추며 인사할 수 있도록 한 것이다. 전면에 위치한 자그마한 정원은 시선을 지루하지 않게 해주며, 식당과 연계되어 다목적으로 사용된다. 화장실은 노인 편의시설과 스텝 다운형 욕조를 계획하여 안전과 편의성을 확보했다.
거실은 천창과 마당으로 열려있는 큰 창문을 통해 늘 밝고 쾌적한 공간으로 만들었다. 수려한 북한산 봉우리는 낮고 길게 열린 창문을 통해 한 폭의 그림이 된다. 외부 마감재인 벽돌은 거실로 들어와 공용공간의 느낌을 더욱 살려준다. 천창 아래 목재 천정틀은 천창을 통해 들어오는 직사광선을 걸러주며 여러 설비를 품는다. 은은하게 들어오는 자연광은 거실 공간을 아늑하고 서정적으로 만든다. 거실과 홀을 구분하는 포켓도어는 필요에 따라 거실의 독립성을 높이며 다양한 집안행사를 지원하도록 배려했다.
식당은 가족이 모두 모여 서로의 일상을 공유하는 가장 중요한 공간이다. 높은 천장과 2층으로 올라가는 계단은 2층과 소통하며 집의 중심 역할을 한다. 마당으로 뻗어가는 외부 데크는 식당공간을 외부로 확장하며 개방감 있는 공간으로 만든다. 수직 목재루버는 식당공간을 위요감 있게 감싸주며 2층 공간에서 답답하지 않게 해준다.
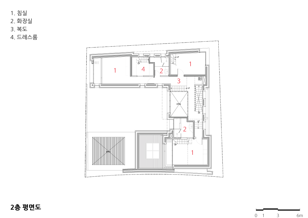
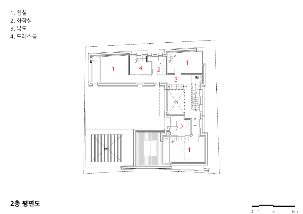
주인침실은 서재 기능을 하는 다락과 테라스 공간을 갖는다. 북한산의 멋스러운 봉우리를 향해 열린 창문은 작은 주인침실을 계절마다 다채롭게 만든다. 자녀 침실도 모두 다락이 있어 넉넉한 수납공간을 갖는다. 특히 멋 내기를 좋아하는 딸을 위해 넉넉한 드레스룸과 옷방을 다락에 두었다. 침실은 큰 전면창 안쪽에 폴딩도어를 두어 북한산 자락에서 불어오는 매서운 한기를 견디게 했다.
진관동 주택은 벽돌집이다. 주변과 조화되게 도드라진 색상보다는 흙에 가까운 밝은 색의 벽돌을 사용했다. 비켜쌓은 벽돌은 햇빛에 민감하게 반응하며 입면을 풍부하게 만들어 준다. 야간에는 경관조명에 반응하며 이국적인 느낌을 자아내기도 한다.

It is a detached house located at a lot in the lower part from the Jingwansa Temple and surrounded by Mt. Bukhansan like a folding screen. The owner of this house will live his old mother together. He wants to live all his family members spanning three generations for the first time and to build a house with close family love. He and his aged mother decided to live in the same house for the first time and they hope to establish mutual understanding and to create a memory to be remembered forever. Consistent demand from the owner was to help his old mother with a less able body relax comfortably and make as many memories as possible with the family not being alienated from them.
Thoughtful consideration was given to the guest room for his old mother. Once opening the gate and stepping into the house, you encounter his mother sitting at the guest room through a low-looking window. This enables all family members to greet her, who is usually sitting there, whenever they move into and out of the house. A small garden in front of the house prevents the eyes from getting bored and can be used for various purposes along with a dining room. The restroom was equipped with amenities for the elderly and a step-down bathtub to ensure safety and convenience.
The living room always keeps being a bright and comfortable due to large windows that are opened toward a skylight and a front yard. The beautiful peaks of Mt. Bukhansan form a picturesque scenery through a window that spread low and long. A feeling of common space becomes more vivid by employing bricks that are external finishing material in the living room. The wooden ceiling frame under the skylight filters out direct sunlight coming in through the skylight and embraces various facilities. The natural sunlight softly entering delivers very homely and lyrical moods to the living room. A pocket door is to separate a living room from a hall and secures the independence of the living room according to a requirement, thereby being able to support various family events.
A dining room is the most important space for the family to gather for having meals and sharing daily lives. It has a very high ceiling and a stairway that interacts with the second floor and plays a central role in the house. An external deck stretching toward the front yard extends the space of the dining room and gives a sense of open space. There is a wooden louver vertically standing embraces the dining room with a sense of cozy and frees the second-floor space from the constrained feeling.
The bedroom of the owner accompanies an attic that serves as a personal library and a terrace. A window faces the splendid peaks of Mt. Bukhansan decorates a small bedroom of the owner colorful in every season. The bedrooms of children have attics as well so that they can enjoy sufficient storage space. In particular, a dressing room and a separate closet were provided at her attic for his daughter who likes dressing up. A folding door was installed at the inside a big front window in a bedroom to block a bitterly cold wind blowing from the foot of Mt. Bukhansan.
The house of Jingwan-dong is a brick house. Bright colored bricks close to the soil color were used rather than noticeable colors to be harmonized with surroundings. The bricks piled at an angle reacts sensitively to sunlight and makes it's surface richly. It also produces an exotic atmosphere by reacting with landscape lighting during the night.







|
진관동 단독주택 설계자 | 유주헌 _ JHY 건축사사무소 감리자 | 유주헌 _ JHY 건축사사무소 설계팀 | 박성우 대지위치 | 서울특별시 은평구 진관동 주요용도 | 단독주택 대지면적 | 330㎡ 건축면적 | 163.09㎡ 연면적 | 254.02㎡ 건폐율 | 49.42% 용적률 | 76.98% 규모 | 지상2층 구조 | 철근콘크리트조 외부마감재 | 치장벽돌,스타코플렉스,징크 설계기간 | 2015.02 ~ 2015. 05 공사기간 | 2015. 06~2016. 06 사진 | 송유섭 전문기술협력 - 구조분야 : 모아구조 - 기계설비분야 : 타임테크 - 전기분야 : 신한전설 |
Jingwan Residence Architect | Yu, Jooheon _ Jhy architect & associates Supervisor | Yu, Jooheon _ Jhy architect & associates Project team | Park, Sungwoo Location | Eunpyung newtown, Eunpyung-gu, Seoul, Korea Program | Residence(single family house) Site area | 330㎡ Building area | 163.09㎡ Gross floor area | 254.02㎡ Building to land ratio | 49.42% Floor area ratio | 76.98% Building scope | 2F Structure | RC Exterior finishing | Wall _ Brick, Staco plex, Zink Roof _ Brick, Zinc Design period | 2015.02 ~ 2015. 05 Construction period | 2015. 06~2016. 06 Photograph | Song, Yousub Structural engineer | Moa Eng. Mechanical engineer | Time Tech Electrical engineer | Shinhan Ele. |

'회원작품 | Projects > House' 카테고리의 다른 글
| 정중헌 2020.4 (0) | 2023.01.12 |
|---|---|
| 양산어린집 2020.4 (0) | 2023.01.12 |
| 통영 지그재그 하우스 2020.3 (0) | 2023.01.11 |
| 춘천뚝방집 2020.3 (0) | 2023.01.11 |
| 언덕위의 집 2020.2 (0) | 2023.01.10 |