2023. 1. 12. 09:17ㆍ회원작품 | Projects/House
Jung Jung Hun

시작의 규칙
정중헌은 중정형의 배치와 평면, 건물의 높이, 45도 경사 박공 지붕의 건물 형태, 벽돌 외장재와 회색 계열의 금속 지붕재 등 엄격한 규칙이 정해져 있는 단독주택 지구단위계획지역에 위치한다. 조화로운 풍경을 만들겠다는 의지에서 시작된 규칙으로, 집집마다 살아가는 모습을 자연스럽게 드러내기엔 외형적 한계에 부딪힐 수밖에 없다. 이에 정중헌은 좀 더 내부 공간에 집중해 설계했다.
규칙의 탈피
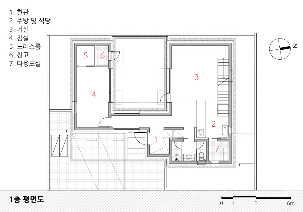
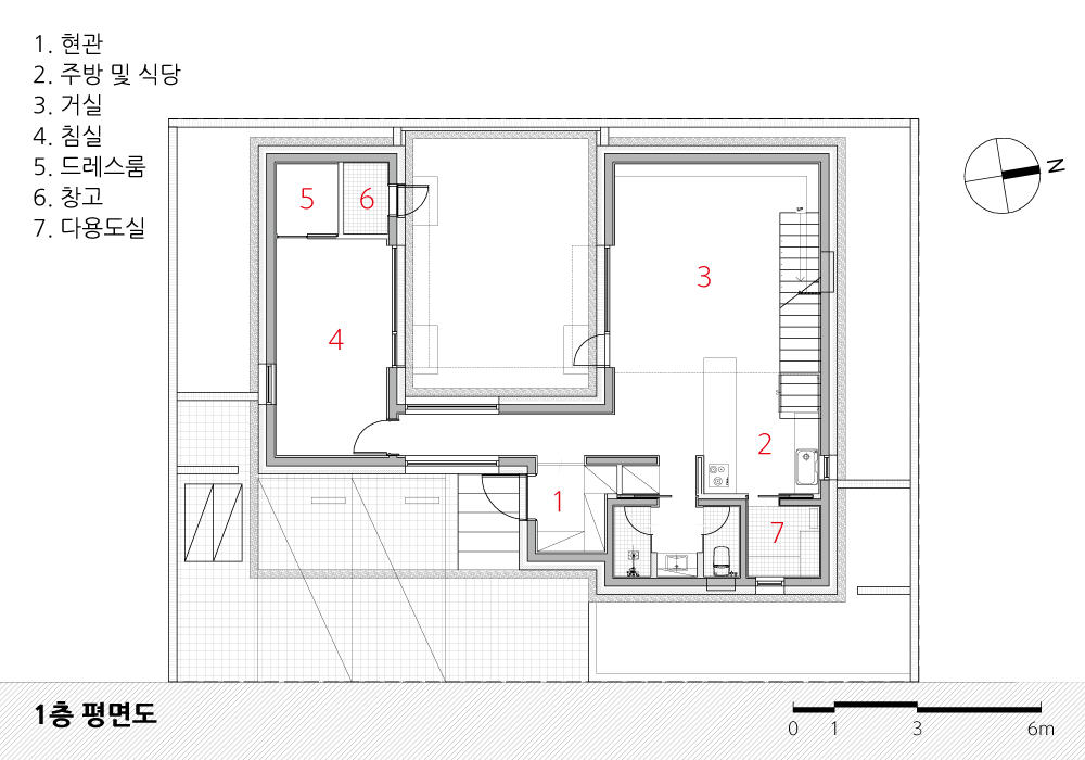
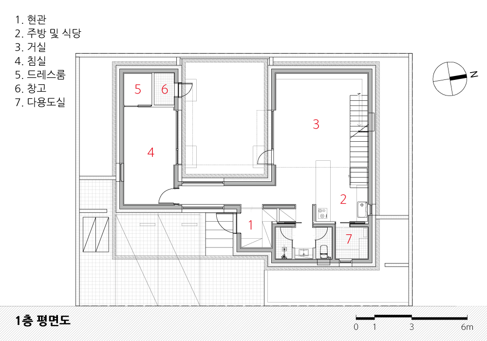
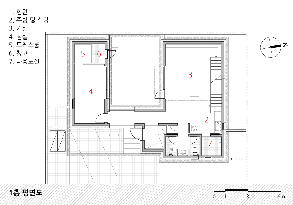
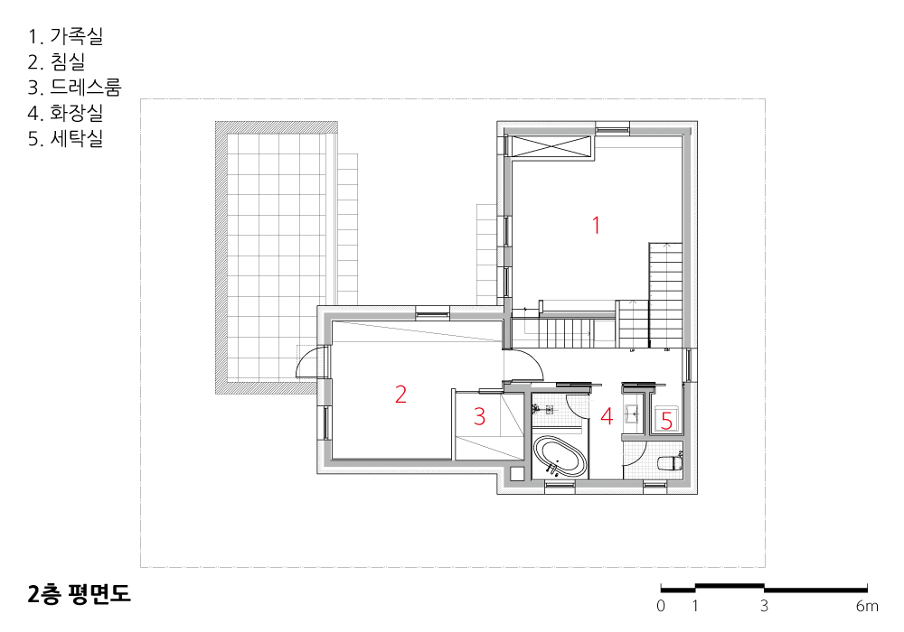
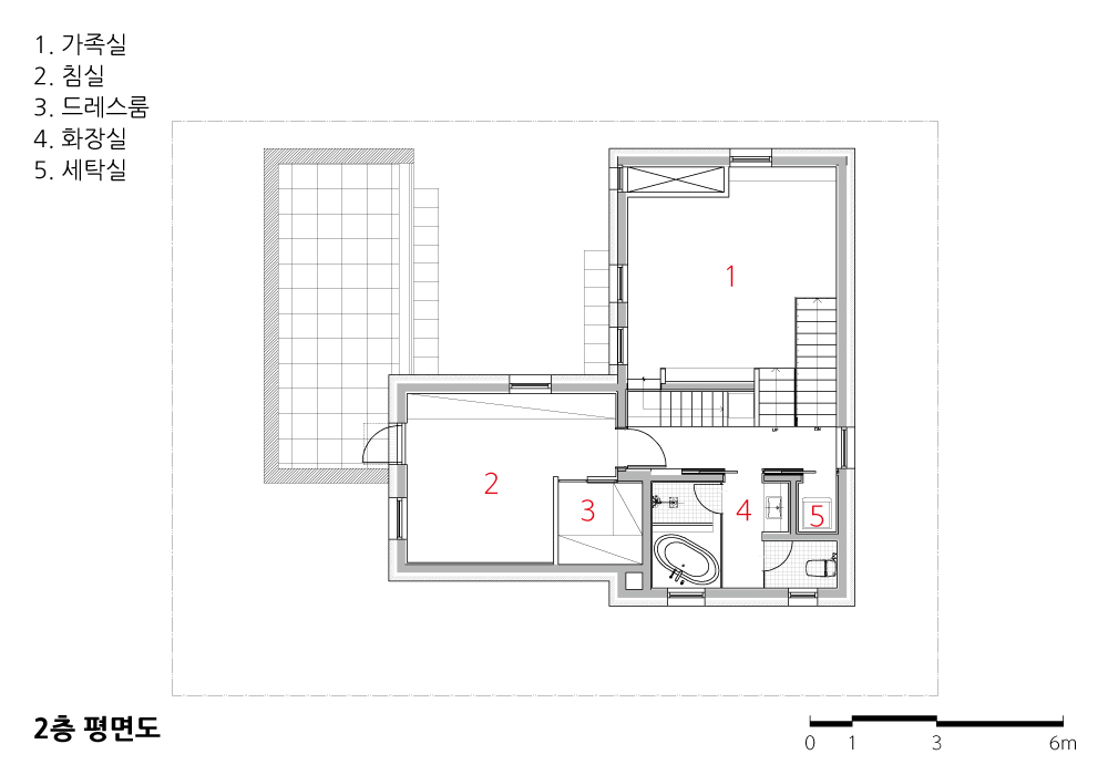
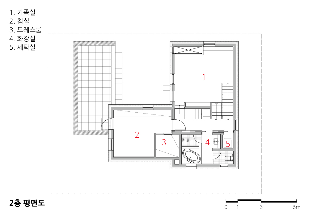
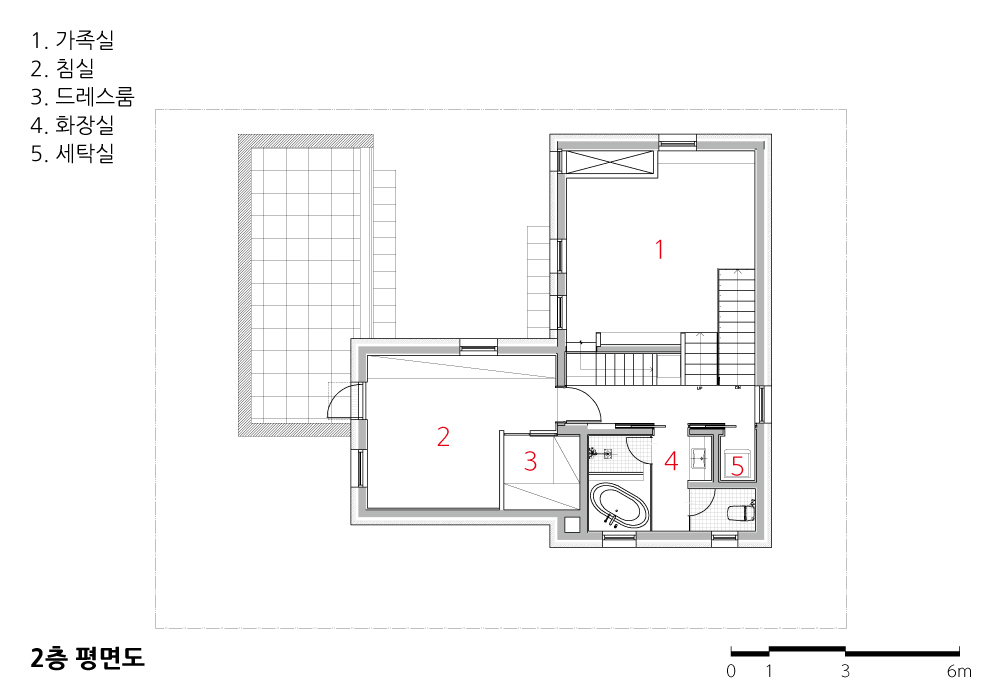
정해진 물리적 규칙 속에서 건축주의 개성을 담는 풍요로운 공간을 계획하기 위해 기존 평형대 별 집의 구성과 형식에서 탈피했다. 침실은 건축주 부부 침실과 하나의 게스트룸으로 최소화했으며, 취미가 다른 부부를 위해 기존 거실의 기능을 가족실로 분리했다. 방의 구획이 최소화된 내부 공간은 거실, 가족실, 다락으로 레벨이 다른 공간들로 이어지면서 아파트와는 다른 수직적으로 열린 공간을 경험할 수 있도록 구성했다.
비현실의 공간
건축주의 두 딸은 주택의 다락 공간에 로망이 있었다. 조금만 소홀해도 머리를 부딪히게 되는 낮은 다락 공간이 어린 시절 갖고 싶었던 비밀의 방이었다. 두 개의 박공 지붕이 만나 만들어지는 입체적인 다락 공간을 활용해 비밀 공간을 만들었다. 다양한 각도의 선형 조명으로 좀 더 비현실적인 공간처럼 보인다. 거실 중심 벽면에 부착된 미러 스테인레스 스틸 판은 상부의 좁은 창으로 들어오는 빛을 함께 주고받으면서, 거실 공간을 화려하고 풍성하게 만들어 줄 것이다.
작은 차이
ㄷ자 평면에 두 방향의 박공 지붕이 만나는 집의 형태가 다소 복잡하다. 재료들과 매스의 부딪힘이 간결할 수 있도록 모든 부재가 만나는 부분은 덧붙여 가리는 기존 방식이 아닌 빼내는 방식을 선택했다. 지붕과 벽이 만나는 부분은 홈통을 없애고 벽돌의 줄눈을 깊이 파냈다.

Rules of start
‘Jungjungheon’ is located in the district unit planning area for single-family houses which have strict rules to follow, such as the layout and floor plan of a courtyard house, the height of the building, the shape of the 45-degree gable roof, and the brick exterior building materials and gray metal roof materials. Because of the rule that intended to create a harmonious landscape, it is inevitable to encounter physical limitations to naturally reveal each house’s life. In this regard, Jungjungheon was designed to focus more on interior space.
Breaking the rules
To plan an affluent space expressing the client’s individuality within the set physical rules, we deviated from the layout and form of existing floor-area house. The numbers of bedrooms were minimized to one guest room and the master bedroom, and the existing living room functions were separated into family rooms for couples with different hobbies. The interior space with minimized compartments of the room is organized to have vertically open space as it leads to the living room, family room, and loft, which is different from a typical apartment.
Unreal space
The client’s two daughters have fantasized about the attic. The secret room of a low attic space, where they can hit their head even with a bit carelessness, is what they have wanted since their childhood. We created the secret space by utilizing the three-dimensional attic space from two gable roofs. It looks more unrealistic with various angles of linear lighting. The mirror stainless steel plate attached to the central wall of the living room will make the living room space gorgeous and rich while exchanging light coming through the narrow window at the top.
Small difference
The shape of the house where the gable roofs of two directions meet on the ‘c’-the shaped plane is somewhat complicated. For the part where all the materials meet, we chose the method of taking out, rather than the conventional way of covering to hide, to simplify collisions between materials and mass. For the part where the roof meets the wall, we removed the gutter and raked deep masonry joints.








| 정중헌 Architect | 김미희 + 서현 _소수 건축사사무소 + 서울대학교 건축학과 건축주 | 황재원 감리자 | 김미희 _ 소수 건축사사무소 시공사 | 리안건설 설계팀 | 고석홍, 양형원 대지위치 | 세종특별자치시 도담서5길 6 주요용도 | 단독주택 대지면적 | 254.60㎡ 건축면적 | 100.53㎡ 연면적 | 167.00㎡ 건폐율 | 39.49% 용적률 | 65.6% 규모 | 지상 2층 구조 | 철근콘트리트조 외부마감재 | 치장벽돌(삼한C1 : 유럽칼라토담) 내부마감재 | 벽 – 친환경페인트 도장 / 바닥- 원목마루 오크브러쉬 설계기간 | 2017. 05 ~ 2017. 09 공사기간 | 2017. 10 ~ 2018. 05 사진 | 서현 전문기술협력 - 구조분야 : 터구조안전기술 주식회사 - 기계설비분야 : (주) 엘림전설 - 전기분야 : (주) 건창기술단 - 소방분야 : (주) 엘림전설 |
Jung Jung Hun 설계자 | Kim, Mihee + Seo, Hyun _ SOSU Architects + Seoul National University Client | Hwang, Jaewon Supervisor | Kim, Mihee _ SOSU Architects Construction | Ryan Construction Project team | Go, Seokhong / Yang, Hyeongwon Location | 6, Dodamseo 5-gil, Sejong-si, Korea Program | House Site area | 254.60㎡ Building area | 100.53㎡ Gross floor area | 167.00㎡ Building to land ratio | 39.49% Floor area ratio | 65.6% Building scope | 2F Structure | RC Exterior finishing | Brick Interior finishing | Wall - Paninting / Floor - Wood flooring Design period | 2017. 05 ~ 2017. 09 Construction period | 2017. 10 ~ 2018. 05 Photograph | Seo, Hyun Structural engineer | THEKUJO Mechanical engineer | Ellim Engineering Electrical engineer | Kunchang Engineering Fire engineer | Ellim Engineering |

'회원작품 | Projects > House' 카테고리의 다른 글
| 월계재 2020.4 (0) | 2023.01.12 |
|---|---|
| 송경제(松經齊) 2020.4 (0) | 2023.01.12 |
| 양산어린집 2020.4 (0) | 2023.01.12 |
| 진관동 단독주택 2020.3 (0) | 2023.01.11 |
| 통영 지그재그 하우스 2020.3 (0) | 2023.01.11 |