2023. 1. 12. 09:19ㆍ회원작품 | Projects/House
WOL GYE JAE

월계재(月谿齋)_형제봉 달빛 아래 계곡 물소리 차고 넘치네
도시에서 살던 부부는 경상남도 하동군 화개에서 막내딸과 1년 살아보기를 시작한다. 그 후 1년의 시간을 두 권의 앨범으로 남기며 이곳에 집을 짓기로 결심했다. 그들의 소중한 1년의 기억과 앞으로 만들어가게 될 수많은 시간의 추억들을 담아내는 집을 짓고자 했다. 그들은 집 앞의 물소리, 아침에 산 너머로 들어오는 햇살, 밤하늘 별 그리고 그림처럼 펼쳐진 녹차밭을 좋아했다.
지리산 끝자락에 위치한 대지는 산으로 둘러싸여 있어 시간에 따른 계절의 변화를 느끼기에 최적화된 곳이다. 전면으로는 계곡이 후면으로는 야생 녹차 밭이 보인다. 이러한 자연 환경과 대지 내에 존재하는 4미터의 단 차이를 어떻게 활용할 것인가가 설계의 화두였다. 어떻게든 자신의 위치를 나타내려 하는 여타 건물들과 다르게 이곳 대지에 짓는 집은 자연의 일부분인 듯 자리를 잡았으면 싶었다. 그렇기에 건축물의 외관이 최대한 작게 보이도록 기획했다. 물론 클라이언트의 물리적인 요구 면적이 있었으므로 체적은 줄이 수 없었다. 따라서 단순한 매스로 구성하고 지상 1,2층에 이질적인 입면 재료를 사용해 눈에 띄는 건물의 단위를 줄이고자 했다. 그렇게 선택된 입면 재료가 콘크리트 벽돌(1층), 독일 sto사의 외단열 시스템(stolit K + StoColor Lotusan Paint, 2층)이었다. 2층을 하나의 덩어리로 보이도록 기획했고, 지붕까지 일체화된 마감으로 사용했다. 눈에 띄는 디테일은 아니지만 각 처마, 모서리, 창 주변 등 모든 부분은 외장재와 일체화된 비드를 사용해 오염도를 최소화했다.
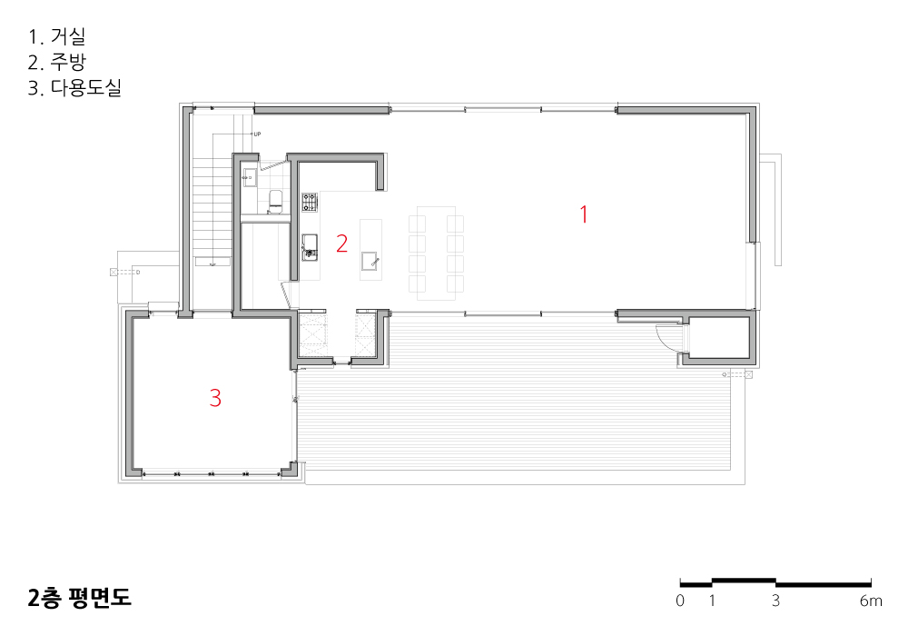
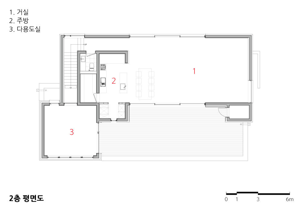
공간구성은 다음과 같다.
△1층: 3개의 침실, 화장실, 세탁실 △2층: 주방, 거실, 다실
주요 생활공간인 거실과 주방을 2층에 배치한 것은 대지 뒤편 녹차 밭의 조망을 최대한 누릴 수 있게 하기 위함이다. 거실 양쪽에 설치한 약 7m의 넓은 창은 계절의 변화에 따른 자연을 감상할 수 있는 액자가 된다. 매스를 어긋내 표현한 옥외 데크는 2층 거실의 활용도를 더욱 풍부하게 만들어주는 한편, 마당과 연결되는 역할을 한다. 다실은 거실까지 동선이 연결되지 않는다. 창문을 열고 나가서 외부 데크를 지나야 별채인 다실로 들어갈 수 있다. 다실만큼은 불편해도 된다고 생각했다. 그렇게 하고자 했고, 클라이언트도 받아들였다. 다실은 속도가 주가 되는 공간이 아니다. 느림이 지루함이 아닌 여유로 다가오는 공간이어야 한다고 생각했다. 눈과 비가 내릴 때 이를 맞아야 하는 약간의 불편함마저 다실 공간의 여유로움과 따스함을 한층 배가 되도록 만들어줄 것이다. 지상 1층은 침실이 주가 되는 곳이다. 거실이 녹차 밭과의 관계성에 주목했다면 침실은 의도된 창으로 보이는 밤하늘과의 관계에 중점을 뒀다. 하동은 군에서 공기를 채집해 판매할 만큼 청정지역이다. 그렇기에 밤하늘에 펼쳐지는 별들이 다른 어느 곳보다 아름다운 모습으로 다가온다.
조경 역시 건축의 한 부분으로 계획했다. 건물의 구성이 자로 잰 듯 반듯하게 잘라놓은 모습을 하고 있기에 마당의 선형을 전체적인 볼륨감을 갖는 곡선으로 설정해 이를 상충시키고자 했다. 대지를 구분 짓는 담장은 터파기와 대지 조성 작업 시 나온 돌들로 만들었다. 이곳 하동은 대한민국 녹차 시배지이다. 녹차가 처음으로 재배되고 지금까지 삶의 한 부분으로 자리 잡고 있는 이유는 땅이 가지고 있는 특성 때문이다. 그 특성이 고스란히 녹아있는 땅속의 돌들을 활용해 담장을 만듦으로써 지역의 정취와 세월의 흐름을 느끼도록 했다.

Wol Gye Jae
Under the moonlight of Hyeong-Je mountain runs the river
A man and wife from the city move to rural Hwagae of Hadong county in South Gyengsang Province and spent a year there with their baby daughter. They documented that one year’s memories in two books of photo album and decided to build a house there. The house will be the sanctuary for preserving the precious first year’s memories and many more to come.
The family loved the sound of the small creek near the house, sunlight shining through hills in the morning, starts on night sky, and the picturesque tea plantation.
Located at the foot of Mountain Jiri, the land is facing the valley in the front while surrounded by the mountains and tea plantation in the back. Such environmental condition is optimal for residents to feel the change of season. The key architectural question we wanted to address was how we can utilize 4-meter’s distance between the land and the surrounding nature.
Unlike structures that shout out their presence, this house needs to blend in to the surrounding nature as if it was part of the rustic environment from the beginning. Therefore, the outer structure of the building is designed so that it looks as small as it can.
Since the client had a specific request for the physical dimensions, downsizing the structure itself was not an option. However, our design delivers the impression of smaller presence via simple mass composition and dual material facade on the 1st and 2nd floor.
Facade material for the 1st floor is concrete bricks, and that of 2nd floor is stolid K and StoColor Lotusan Paint.
To endow a sense of unity on the 2nd floor, we reviewed a handful of suppliers and decided to use Sto’s product; this material was used to finish the roof as well. A subtle detail here is that the bead material used for outer finishing was also applied on the eaves, corners, window frames to minimize pollution.
Inner space of the house consists of three bedrooms, one bathroom, one laundry room on the first floor and kitchen, living room, and tea room on the second floor.
Note that living room and kitchen are located on the second floor so that the residents and guests can enjoy the breathtaking view of the tea plantation. Each end of the living room has 7-meter windows that serve as the picture frame that contains ever changing view of the nature. Outdoor deck enriches activities that take place in the living room and provides a channel of communication with the front yard.
Tea room is disconnected from the living room. In order to enter the tea room, one must open the window and get past the outdoor deck. We figured such minor inconvenience in traffic line to the tea room was acceptable. The client agreed with our decision as well.
Considering that the theme of the house is slow living, tea room must be the space where slowness is considered luxury than boredom.
Snowflakes and raindrops on one’s way to the tea room will help the visitor appreciate the warmth and leisure inside the tea room.
First floor mostly consists of bedrooms. While living room’s focus is on the space’s relationship with the tea plantation, bedroom spaces’ focus is on the space’s relationship with night sky. Since Hadong Province is famous for its clean air which is commercially available as bottled air, Hadong’s clean night sky boasts its beautiful stars incomparable to other regions.
Surrounding landscape is included as part of the architectural design. Because the house is mostly linear and rigid in structure, we wanted to neutralize the rigidity with voluminous curves on the front yard. The wall that draws the border between the house and the surrounding is made of rocks and stones recovered from the foundation work. Being the first tea plantation site of Korea, Hadong Province has unique soil that provides optimal conditions for tea leaves to grow. Therefore, Hadong’s rocks carry unique identity and history of the place. By utilizing these rocks, we wanted the wall to reflect the region’s history and change of time.








| 월계재 설계자 | 최정인 _ 일상 건축사사무소 감리자 | 최정인 _ 일상 건축사사무소 시공사 | 건축주 직영 설계팀 | 김헌 대지위치 | 경상남도 하동군 화개면 정금리 주요용도 | 단독주택 대지면적 | 1,597.00㎡ 건축면적 | 226.49㎡ 연면적 | 302.82㎡ 건폐율 | 14.18% 용적률 | 18.96% 규모 | 지상 2층 구조 | 철근콘크리트조 외부마감재 | 큐블럭, 탄화목재사이딩, StoTherm Classic 내부마감재 | 원목마루, 황토벽돌, 규조토 미장 설계기간 | 2017. 01 ~ 2017. 04 공사기간 | 2017. 05 ~ 2017. 11 사진 | 전승민 전문기술협력 - 구조분야 : 시너지구조 - 기계설비분야 : GM엔지니어링 - 전기분야 : GM엔지니어링 |
WOL GYE JAEWOL Architect | Choi, Jungin _ ILSANG Architects Supervisor | Choi, Jungin _ ILSANG Architects Construction | Owner direct control Project team | Kim, Hun Location | Hwagae-myeon, Hadong-gun, Gyeongsangnam-do, Korea Program | Residence(single family house) Site area | 1,597.00㎡ Building area | 226.49㎡ Gross floor area | 302.82㎡ Building to land ratio | 14.18% Floor area ratio | 18.96% Building scope | 2F Structure | RC Exterior finishing | StoTherm Classic, DURASTACK, Wood Interior finishing | Barren land brick, Diatomite paint, Bolefloor Design period | 2017. 01 ~ 2017. 04 Construction period | 2017. 05 ~ 2017. 11 Photograph | Jeon, Seungmin Structural engineer | Synergy Mechanical engineer | GM Eng. Electrical engineer | GM Eng. |

'회원작품 | Projects > House' 카테고리의 다른 글
| 삼연재 2020.5 (0) | 2023.01.13 |
|---|---|
| JH-1711 2020.4 (0) | 2023.01.12 |
| 송경제(松經齊) 2020.4 (0) | 2023.01.12 |
| 정중헌 2020.4 (0) | 2023.01.12 |
| 양산어린집 2020.4 (0) | 2023.01.12 |