2023. 1. 12. 09:20ㆍ회원작품 | Projects/House
JH-1711

건축주는 자신이 어린 시절 느꼈던 마당에서의 좋은 추억들을 커가는 아이들에게도 전달해주고 싶어 했다. 획일화된 아파트에서 벗어나, 자유롭고 다양한 생활이 가능한 새로운 주택 안에서 부모와 자녀 간의 좋은 추억을 공유하기를 원했다.
건축주는 과거 건축을 의뢰했을 때 동네 건축업자들과 수많은 갈등을 경험했던 터라 건축사와 시공자 선정에 신중했다고 한다. 그러던 중 본 건축사가 설계해 완공한 주변 단독주택을 보고 설계문의를 해왔고, 시작부터 서로 간 기본 신뢰가 바탕이 마련돼서 였는지 별 어려움 없이 일이 진행됐다.
건축주가 특별히 주문한 요구 사항은 없었다. 본 건축사는 사전에 건축주와 나눈 이런저런 얘기들을 토대로 이 부지의 가장 큰 장점인 북서쪽 숲과의 연계방안을 고려해 아파트의 기능적 편리함과 단독주택의 여유로움이 조화를 이루도록 평면 구상을 했다.
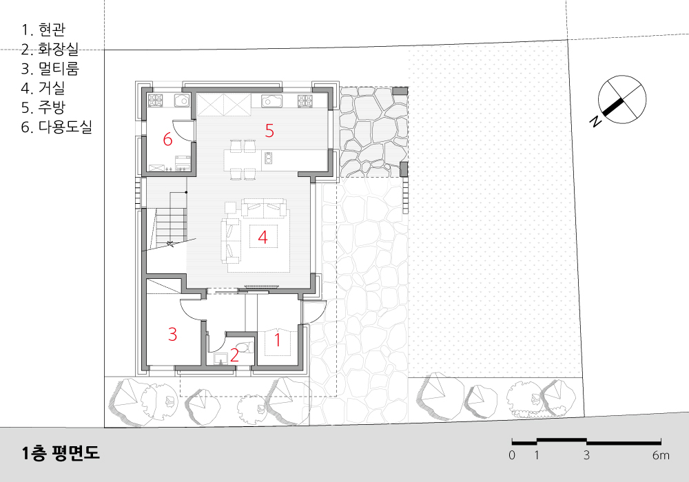
우선 1층 전체를 마당으로 해석해 거실 및 주방으로 이루어진 내부 생활공간과 외부 마당을 연계해 활용도를 높였다. 2층의 모든 방은 남향으로 배치하고 다락 진입 계단을 중심으로 부부 방과 자녀 방을 분리시켰으며, 부부 방에는 천정을 경사지붕 모양으로 시원하게 만들어 마스터 존으로서의 차별성을 부여했다. 전면 테라스에는 채광과 시선 차단이 가능하도록 큐블럭 차양벽을 설치했고, 딸이 거주하는 공간에는 남측 채광과 숲의 풍경을 고려해 ㄱ자형 창문을 만들었다. 아들 방은 측면 벽에 붙어있는 계단 하부를 미니하우스 공간으로 만들어 재미있는 놀이공간으로 이용토록 했다.
이 집에서 가장 개성이 드러나도록 신경을 쓴 부분은 계단이다. 1층에서 2층으로 연결되는 계단은 사선의 단면을 갖추고 있는데, 하부는 아이들이 좋아할 만한 삼각형 단면의 알코브 공간으로 만들었다. 그리고 상부는 계단 측면의 풍부한 수납공간과 통창을 이용해 후면 숲과의 정서적 교감, 경사지붕 형태의 상부천정 및 2개층 높이에서 얻어지는 입체적 개방감 등 다양한 효과를 품은 특별한 공간을 연출하려고 했다. 2층에서 다락으로 올라가는 계단은 비오는 날이면 떨어지는 빗방울과 빗소리를 보고 듣고, 맑은 날에는 밤하늘을 쳐다볼 수도 있는 오감을 자극하는 공간이 되도록 전면에 상부 창문을 설치했다.
건물의 전체적인 이미지는 별도의 장식 없이 내부 공간 기능이 그대로 드러나는 담백한 형태다. 시멘트 벽돌과 따뜻한 질감의 밝은 라임스톤을 주재료로 삼았고, 큐블럭을 사용해 적절히 시선을 차단했다. 내부는 일반적인 기본 마감 재료를 사용했다. 아이들 방의 일부 벽에는 자작나무 합판을 사용해 친환경 공간을 조성했다.
처음 안을 제시했을 때 건축주는 사소한 몇 가지를 제외한 모든 것에 만족감을 드러냈다. 그런 까닭에 최초의 안이 그대로 실행될 수 있었다. 건축사로서 너무도 놀라웠고 감사했고 행복했다. 사실 이런 경우는 거의 없기 때문이다.
시공사는 시공기간 내내(’17.4.27∼11.3) 공용 SNS를 통해 모든 공정을 상시 공개한 가운데 대부분 협의과정을 거쳐 공사를 진행했다. 특별히 건축주와 시공사 간의 우려할만한 갈등 또한 없었다.
준공 이후 이 집을 방문했을 때 딸 아이가 우리 집에 계단이 있다고 유치원 친구들에게 자랑했다는 얘기를 듣고 설계자로서 무척 뿌듯했다. 이 집의 제목을 ‘JH-1711’이라고 감히(?) 이름붙인 이유는 새로운 집에서 이들 가족만의 삶이 시작되는 출발선이 되길 바랐기 때문이다. JH는 장현동의 영문 대문자이며, 1711은 2017년 11월 입주했음을 의미한다.

The architect wanted to break away from a uniform apartment and deliver the good memories of his childhood to the children who grew up in the yard, and to share the good memories of life between parents and children through a new house by allowing them to live freely and diverse lives inside the house.
Building owners realized that selecting reliable architects and builders was more important than anything else based on their experience of conflict with local builders, and their design inquiries were made based on the finished detached houses designed by the architects, and based on basic trust between each other from the start.
Strangely, there were no particular requirements. I said we'd discuss it if you suggested it first Therefore, we discussed this and that with the owner of the building in advance, connected with the northwest forest, which is the best part of the site, and planned a floor plan that harmonizes the functional convenience of apartments and the leisure of detached houses.
First of all, the entire first floor was interpreted as a yard, and the interior living space consisting of living rooms and kitchens was linked to the exterior yard, which increased utilization. All the rooms on the second floor were set to the south, separating the couple's rooms from their children's rooms, and the couple's rooms were designed to make the ceiling look like a hillside roof to provide a master zone. The front terrace was equipped with a cubic wall to block the light and the view of the forest, and the daughter's room was made of a mini-house with a fun space attached to the side wall.
And the most individualized part of the house is the stairs.
The stairway space from the first floor to the second floor has a section of a diagonal line, and the lower part has an alcove space on the sides of the stairs, the upper part of the stairs, the emotional connection with the rear forest through the gout, the upper ceiling of the slope roof, and the three-dimensional opening from the height of the second floor, etc.
Then, the stairs from the second floor to the attic were considered to be a five-sense stimulating space for children to see and hear raindrops falling on rainy days and to look at the night sky on clear days.
The image of the building is a very simple form that reveals interior space functions without any special decorations, with cement bricks and bright lime tones of warm texture as the main material, and blocks the view properly.
Inside, the children's rooms were made of common basic finishing materials and some walls were constructed into eco-friendly spaces using birch plywood.
When the architect first proposed the proposal, he asked for only a few minor changes, and the rest was so amazing, grateful and happy as an architect that the original plan was implemented as it was because he liked it. In fact, this is because there are very few cases like this," he said, "I think so in the future as well.)
Throughout the construction period (2017.4.27.-11.3), the construction process was always disclosed through public SNS, and most of the work was carried out through consultation process, and there was no cause for concern between the builder and the contractor.
When I visited this house after the completion of the construction, I was so proud as the architect when I heard that my daughter boasted to other friends that she had stairs in my house in kindergarten. And the reason why I dared to name this house JH-1711 means that it is the starting line for the memories of their own lives in the new house.
(JH is the capital letter of Janghyeon-dong and 1711 means the entry point in November 2017)









| JH-1711 설계자 | 유상훈_애드아키 건축사사무소 건축주 | 박윤준 감리자 | 김구석 _ 건축사사무소 무영 시공사 | 최옥석, 김주헌 _ 백우종합건설(주) 대지위치 | 울산광역시 중구 종가28길 20 주요용도 | 단독주택 대지면적 | 288.20㎡ 건축면적 | 103.04㎡ 연면적 | 173.95㎡ 건폐율 | 35.75% 용적률 | 60.36% 규모 | 지상 2층 구조 | 철근콘크리트조 외부마감재 | 외벽 - 라임스톤 대리석30T, 큐블록, 노출콘크리트 위 발수코팅 / 지붕 - 컬러강판 / 외부천정 - 시멘트보드 내부마감재 | 벽체 AND 천정 – 노루페인트 친환경 도장 / 바닥 – 구정 강마루, 국산 폴리싱타일 설계기간 | 2016. 06 ~ 2017. 03 공사기간 | 2017. 04 ~ 2017. 11 사진 | 윤준환 전문기술협력 - 구조분야 : 노환근 _ 세명구조 - 기계설비분야 : 변종명 _ 조은엔지니어링 - 전기분야 : 이남우 _ 조은엔지니어링 |
JH-1711 Architect | Yoo, Sanghoon_ADDARCHI Archtects Group Client | Park, Yunjun Supervisor | Kim, Kuseok _ Mooyoung Architects Construction | Choi, Okseok / Kim Jooheon _ Baekwoo Construction Location | 20, Jongga 28-gil, Jung-gu, Ulsan, Korea Program | Residence Site area | 288.20㎡ Building area | 103.04㎡ Gross floor area | 173.95㎡ Building to land ratio | 35.75% Floor area ratio | 60.36% Building scope | 2F Structure | RC Exterior finishing | Lime stone marble 30T, Qblock, Expose Concrete Water Coating, Cement board Interior finishing | Noroopaint Eco Frindly paint, Polishing tile Design period | Jun. 2016 ~ Mar. 2017 Construction period | Apr. 2017 ~ Nov. 2017 Photograph | Yoon, Junhwan Structural engineer | No, Hwangeun _ Semyeong Structural Mechanical engineer | Byeun, Jongmyeong _ Joeun Engineering Electrical engineer | Lee, Namwoo _ Joeun Engineering |

'회원작품 | Projects > House' 카테고리의 다른 글
| 방하우스 2020.5 (0) | 2023.01.13 |
|---|---|
| 삼연재 2020.5 (0) | 2023.01.13 |
| 월계재 2020.4 (0) | 2023.01.12 |
| 송경제(松經齊) 2020.4 (0) | 2023.01.12 |
| 정중헌 2020.4 (0) | 2023.01.12 |