2023. 1. 13. 09:15ㆍ회원작품 | Projects/House
Bang Haus

이 프로젝트는 한 가족의 세컨드하우스로 계획됐다.
TOPOLOGY
높고 넓은 대지와 강을 향한 시각적인 축, 그리고 일조의 확보 등이 건축 디자인의 일차적인 지정학적 기준으로 작용했다. 각 공간은 다양한 레벨·각도의 대지 풍경, 강의 풍경을 내부로 끌어드리고 있다. 시각축과 일조축이 다른 대지의 한계를 극복하기 위해 천창과 고측창등을 곳곳에 두어 빛의 혜택을 종일 누릴 수 있도록 했다. 대지의 주된 풍경은 강이 있는 북쪽인 까닭에 일조와 배치되는 부분이 있다. 때문에 상충되는 두 가지 큰 조건을 대지안으로 받아들이는 공간을 구축하기 위해 고민했다. 논밭으로 구성된 넓은 수평선의 주변대지들과 함께 본디 오랜 시간 자리잡은 건물인 것처럼 건물의 형태를 매만져갔다.
TYPOLOGY
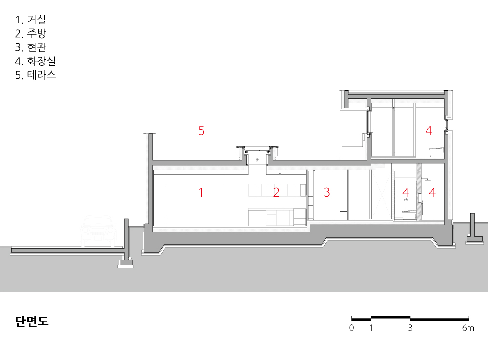
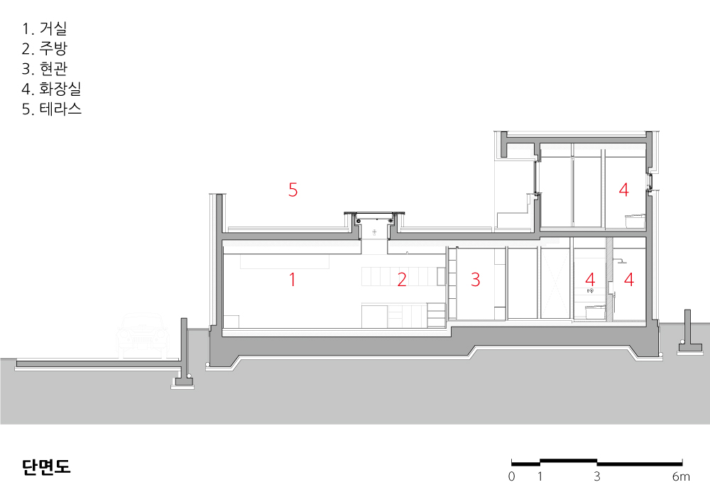
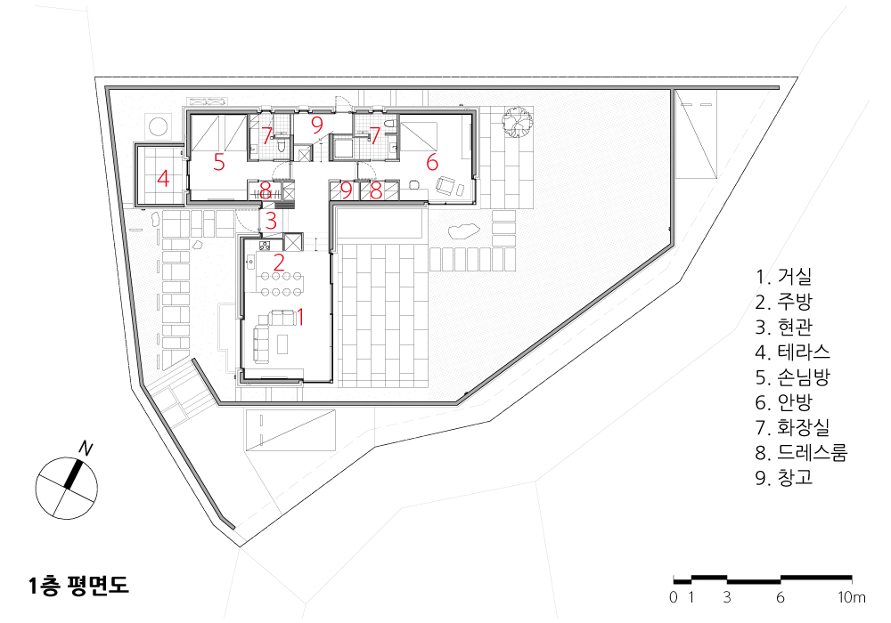
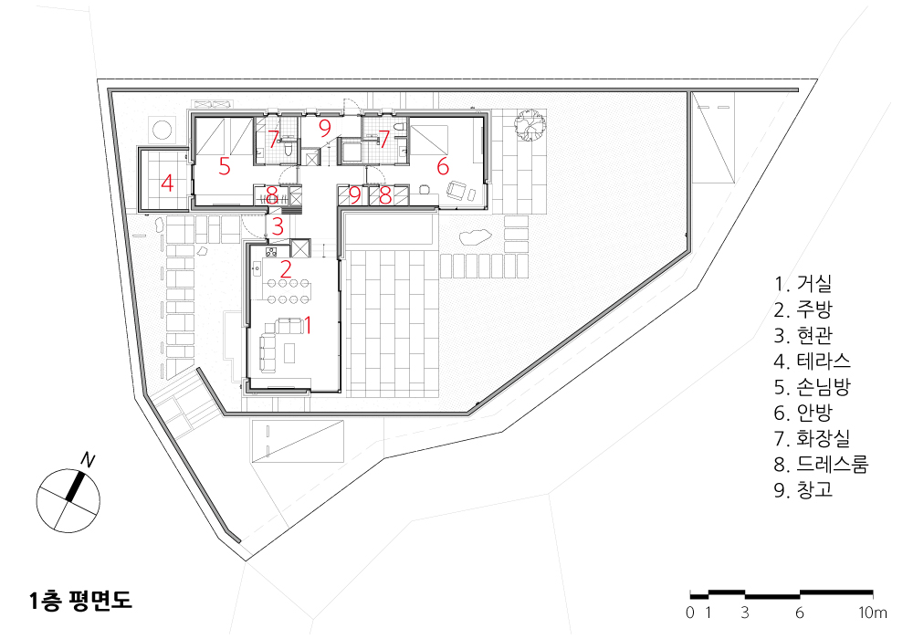
3대의 가족구성원들이 주말 도시를 떠나 자연을 경험하며, 삶의 여유를 즐길 수 있는 공간을 마련하는 것이 주제였다. 따라서 2층 매스는 4개의 룸과 각각에 딸린 욕실로 구성하며, 1층 매스는 공용의 거실과 주방으로 구성했다. 다양한 외부 활동을 할 수 있도록 곳곳에 전정, 후정, 2층 테라스 등의 외부공간을 마련했다. 도시의 삶을 떠나 자연 속에서 은둔자처럼 삶을 영위하고자 하는 건축주의 인생관을 반영하여, 건축의 본질적인 형태인 입방체의 구성으로 설계했다. 또한 언덕을 올라와 주차를 하고, 계단을 통해 대지위로 진입하여 현관문에 이르는 동선에서는 강의 풍경을 절제하면서도, 건축 내부로 진입해 거실과 각 공간에 다가섰을 때에는 강의 수평선이 펼쳐지도록 공간을 구성했다. LE CORBUSIER가 그의 ‘작은집’(LE PETIT MAISON)에서 강의 풍경을 절제한 것처럼……. 본연의 풍경을 깊이있게 받아들이기 위해서 절제하며 풍경을 설계했다. 동선에서는 풍경을 닫고, 빛의 혜택(계단 천창 등)을 누리게 했으며, 정주의 공간에서 풍경을 열어주어, 작은 공간이지만 감동을 주기 위해 노력했다. 그리고 설계 과정에서 메타포로서의 선박의 이미지를 떠올리곤 했다. 건축 각 공간에서의 view는 마치 배의 갑판 또는 선교에서 강을 바라보는 것과 같다. 마치 배에 승선하여 고요한 석양의 바닷가를 항해하는 경험을 할 수 있을 것이다. 장마기간에 남한강의 홍수위가 높아질 때를 기다려본다.
TECTONICS
한옥의 지붕인 ‘기와’가 검은 색인 것은 자연에 겸허히 자리하기 위함이듯이, 건축이 무채색과 기하학적인 순결함을 유지하는 것은 4계절 다양하고 풍요로운 모습을 드러내는 자연을 위한 겸허의 자세라고 생각한다. 이를 위해서 주된 재료로서 장방형 벽돌과 석재를 사용하였으며, 금속을 최소화했다. 창대와 인방을 전부 석재로 시공하였고, 자재들의 분할과 이음, 연장선들을 맞추기 위해 노력했다. 조경과 인테리어, 전체적인 가구까지 모두 건축주와 호흡하며, LKSA가 설계하고 제작했다. 본 건축이 오랜 시간 동안 대지에 조금씩 더 진하게 물들어 지역 풍경의 한 요소가 되고, 한 가족의 대를 이은 행복의 기억들이 농밀하게 스며들어가기를 바래본다.

The project was planned as the second house for one family.
TOPOLOGY
The high and wide site, the visual axis toward a river, and the securing of sunshine served as the primary geographical standards for architectural design. Each space draws various levels and angles of land scenery and river scenery to the inside.
To overcome the limitations of the site where the visual axis and the sunshine axis are different, skylights and clerestories in various locations allow enjoying the benefits of light all day long. The landscape of the site is mostly the northern part where there is a river, so it goes somewhat against sunshine. For this reason, we considered building a space that draws two conflicting conditions into the site. We started to shape the building as if it were a long-established building together with the surrounding lands on the vast horizon composed of paddy and upland fields.
TYPOLOGY
The theme was to provide space for the members of 3 families to leave the city on weekends and experience nature and enjoy a life of leisure. Therefore, the second-floor mass consists of 4 rooms with their bathrooms, and the first-floor mass consists of a living room and a kitchen. To be able to perform various external activities, we prepared external spaces such as a front garden, a back yard, and a terrace on the second floor. It was designed with the construction of a cube, which is a necessary form of architecture, reflecting the client's view of life who wants to lead a life like a hermit in nature, escaping from urban life. Also, we constructed space with the movement flow that goes up a hill to park and enters the site leading to the main entrance through the stairs, restraining the scenery of the river and making the horizon of the river spread when you enter the building and approach the living room and each space. Just as LE CORBUSIER restrained the scenery of the river in his “Little House” (LE PETIT MAISON)... To deeply embrace the view, we designed the landscape to be temperate. For the movement flow, the scenery was closed, and the benefits of light (stairs, skylights, etc.) were enjoyable, and the landscape was opened in the space of the residence, trying to impress even though it is a small space.
And in the design process, we designed to recall the image of a ship as a metaphor. The view from each space is like looking down a river from a deck of a boat or bridge. You will be able to board a ship and sail, seeing a tranquil sunset on the ocean. We are waiting for the flood of the Namhan River to rise during the rainy season.
TECTONICS
Just as the 'roof tiles(kiwa)' of Hanok are black to humbly settle in nature, we think that the architecture maintaining achromatic color and geometrical purity is a modest attitude about life to reveal various and abundant appearances in four seasons. For this, rectangular brick and stone were primary materials, and metal was in minimum use. All windowsills and lintels were from stone, and we made efforts to align the divisions, joints, and extensions of materials. LKSA designed and constructed landscape, interior, and overall furniture while cooperating with the client.
We hope that this architecture will become a part of the local landscape as it is gradually colored to the site little by little for a long time and that the memories of happiness that carry on a family line will be permeated densely.









| 방하우스 설계자 | 이근식 _ LKSA 건축사사무소 건축주 | 방은지 감리자 | 이근식 _ LKSA 건축사사무소 시공사 | 임광혁 설계팀 | 배춘근 대지위치 | 경기도 양평군 강상면 세월길147번길 155-6 주요용도 | 단독주택 대지면적 | 662.00㎡ 건축면적 | 131.60㎡ 연면적 | 209.84㎡ 건폐율 | 19.87% 용적률 | 31.69% 규모 | 지상 2층 구조 | 철근콘크리트조 외부마감재 | 벽돌(주.삼원이엔지) 내부마감재 | 고흥석, 에폭시코팅 설계기간 | 2017. 09 ~ 2018. 05 공사기간 | 2018. 05 ~ 2019. 01 사진 | 구의진 전문기술협력 - 구조분야 : S.D.M 구조 |
Bang Haus Architect | Lee, Keunsik _ Lee Keun Sik Architects Client | Bang, Eunji Supervisor | Lee, Keunsik _ Lee Keun Sik Architects Construction | Lim, Gwanghyeok Project team | Bae, Choonkun Location | 155-6, Sewol-gil 147beon-gil, Gangsang-myeon, Yangpyeong-gun, Gyeonggi-do, Korea Program | House Site area | 662.00㎡ Building area | 131.60㎡ Gross floor area | 209.84㎡ Building to land ratio | 19.87% Floor area ratio | 31.69% Building scope | 2F Structure | RC Exterior finishing | Brick Interior finishing | Go Heung Seok, Epoxy coating Design period | Sep. 2017 ~ May 2018 Construction period | May 2018 ~ Jan. 2019 Photograph | Gu, Uijin Structural engineer | S.D.M Structure |

'회원작품 | Projects > House' 카테고리의 다른 글
| 더 컨테이너 2020.5 (0) | 2023.01.13 |
|---|---|
| 홍천 노일리 단독주택 2020.5 (0) | 2023.01.13 |
| 삼연재 2020.5 (0) | 2023.01.13 |
| JH-1711 2020.4 (0) | 2023.01.12 |
| 월계재 2020.4 (0) | 2023.01.12 |