2023. 1. 13. 09:16ㆍ회원작품 | Projects/House
House of Noili

대지는 금학산의 끝자락에 위치해 있으며, 남쪽으로는 홍천강이 흐르고 강 너머로는 쐬뿔봉이 병풍처럼 펼쳐져 있다. 1차로의 좁은 시골길에 접해 있는 대지는 도로로부터 경사를 따라 자연스레 오르도록 되어 있다. 대지 내에서도 남북 방향으로는 거주자가 편하게 거닐만한 정도의 적당한 경사가 있으며, 동서 방향으로는 길게 펼쳐져 있어 주변 풍광을 온전히 받아들일 수 있는 조건이다.
대지의 면적에 비해 계획하고자 했던 건축 면적이 작아 대지의 이용 방식과 배치, 등고의 계획 등이 우선 과제가 되었다. 또한 도심지와 달리 사방으로 열려있는 주변 조건으로 인해 외부 환경 및 주변 이웃들과 어떤 혹은 어떻게 관계를 만들 것인가도 고민해야 했다. 건축주는 서울에서 치열한 젊은 시절을 보낸 후, 노년의 느즈막한 시기에 이곳 강원도 홍천에 터를 잡고 여생을 보내기로 계획했다. 전원생활의 로망보다는 건강상의 이유가 더 크게 작용했다. 농촌 생활을 통해 도심보다 맑은 공기를 마시고, 약간의 육체노동을 통해 얻어지는 작물들을 수확하며 잃어버린 건강을 되찾고자 하는 작은 소망을 가지고 있었다.
안채와 별채 그리고 안마당
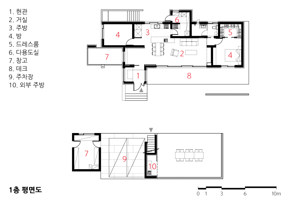
애초부터 노부부 내외만 이 땅에 정착할 계획이었기에 관리하기 힘든 필요 이상의 큰 주택을 요구하지 않았다. 다만 주말이면 이곳으로 내려와 며칠 지내다 갈 자녀와 손주들의 공간과 농촌 생활에 필요한 도구들을 저장할 창고가 필요했다. 대지의 경사와 펼쳐진 그 형상을 이용하는 과정에서 우선적으로 노부부가 거처할 공간과 자녀들을 위한 공간을 분리했다.
전면 도로와 만나는 경사진 입구에 자녀들이 머물수 있는 별채를 만들고, 누하 진입과 같이 별채 하부의 필로티를 지나 대지 안쪽에는 노부부의 거처를 배치했다. 별채의 필로티는 지붕이 있는 주차장 역할을 하며, 강원도의 폭설에서도 차량을 보호하고 외부의 간섭으로부터 노부부의 거처를 보호하는 쉘터가 되기도 한다. 또한 풍수지리를 고집하시는 노부부의 요청에 따라, 노부부의 거처에서 남측 멀리 펼쳐진 쇠뿔봉이 직접적으로 보이는 것을 자연스레 가려준다.
결국 별채와 안채는 전면 도로로부터 앞뒤로 나란히 배치되고, 각각의 등고에 놓이면서 그 위계를 만들어간다. 그리고 그 사이에는 적당한 규모의 조경시설과 안마당이 자연스레 마련되어 자녀들 혹은 주변 이웃들과 어울릴 수 있는 외부 활동공간으로 이용된다.
마당, 처마와 담 그리고 아궁이
시골의 생활은 도심과는 다른 종류의 활동들이 많다.
파종을 하고, 작물을 심고, 그것들을 키워서 따다가 정리하고, 건조시키는 일련의 과정들이 있으며 이를 뒷받침하는 공간들이 필요하다. 앞에서 언급한 안마당은 이런 일련의 행위들을 위해 열려있는 외부 공간이 되며, 안채의 거실에 설치된 깊은 처마와 데크는 농작물을 널어두고, 말리기 위한 공간으로 활용된다. 또한 외부 텃밭과 인접한 곳에는 농기구나 퇴비 등을 적재할 수 있는 내외부 창고를 두고, 바닥의 포장방식도 그 외부 활동의 성격에 따라 서로 다르게 구분했다. 노부부의 작은 로망이었던 옛 방식의 아궁이를 만들고 날씨가 쌀쌀해지는 계절이 오면 열심히 모아둔 장작과 낙엽으로 바닥을 데워 구들장 위에서 지친 하루를 정리할 수 있도록 했다. 기름 보일러를 추가로 설치하여 아궁이로는 부족한 열 공급량을 언제든지 채워주고, 온수를 이용할 수 있도록 했다.

The site is at the end of Geumhaksan Mountain, and the Hongcheon River flows into the south, and the Sshoibbulbong Peak stretches away like a folding screen across the river. The site facing a narrow country lane is supposed to go up the slope from the road naturally. Even inside of the site, there is a gentle slope that residents can walk in the north-south direction, and it extends in the east-west direction, making it a condition to accept the surrounding scenery fully. The construction area was smaller than the site, so the usage method and layout of the site and height planning became the priority. Unlike the downtown area, we also considered how to create a relationship with the external environment and neighbors, due to the surrounding conditions that are open everywhere. After his vigorous yet consumptive youth in Seoul, the client planned to spend the rest of his life in Hongcheon, Gangwon-do, in his old age. The reason for health was more significant than the romance of rural life. He had a small desire to enjoy clean air through rural life, harvest crops obtained through a little physical work, and regain his lost health instead of urban life.
The main house, outhouse, and courtyard
From the beginning, only the elderly couple were planning to settle on this site, so they didn't unnecessarily require a larger house to manage.
Nevertheless, they needed a space for their children and grandchildren who would visit every weekend and stay for a few days, also a warehouse to keep the necessary tools for rural life. Through the design process of using a slope of the site and its open nature, space for the elderly couple was separate from the area for children.
At the sloped entrance is a detached house where their children can stay, and the elderly couple's residence sits inside the site, through the piloti at the bottom of the detached one. The piloti of the detached house is also a parking lot with a roof. It protects vehicles from heavy snowfall in Gangwon-do while serving as a shelter to protect the elderly couple's residence from external interference. Also, at the request of the old couple who insist on feng shui (geomantic principles), we designed to naturally cover the direct view of the Sshoibbulbong Peak spreading farther south from their residence.
In the end, both buildings sit side by side from the front road, creating the hierarchy on their different elevations. And between them, a suitable sized landscape facility and a courtyard are naturally provided and used as a space for outdoor activities where they can socialize with their children or neighbors.
Courtyard, eaves and fence, and furnace
Rural life has many different kinds of activities compared to urban life.
There are a series of processes of sowing, planting, growing, picking, and drying crops, so the relevant spaces are needed. The courtyard mentioned above becomes an open outdoor space for these activities, and the deep eaves and deck installed in the main house's living room are used as a space to keep and dry crops. Also, indoor and outdoor warehouses that can store farming tools and compost were installed in the vicinity of the outdoor garden, and the method of floor pavement was classified differently according to the nature of its external activities. The old furnace, which is the elderly couple's small wish, was installed to warm up the floor with firewood and fallen leaves gathered in winter so that they can relax after a tiring day on the flat heating stone. An oil boiler was added to fill insufficient heat supply at any time and to use hot water.








| 홍천 노일리 단독주택 설계자 | 오승현 · 박혜선 _ (주)건축사사무소 서가 감리자 | 오승현 · 박혜선 _ (주)건축사사무소 서가 시공사 | 아르텍 설계팀 | 박혜선, 최태수 대지위치 | 강원도 홍천군 북방면 노일로 주요용도 | 단독주택 대지면적 | 997.00㎡ 건축면적 | 174.97㎡ 연면적 | 170.62㎡ 건폐율 | 17.54% 용적률 | 17.11% 규모 | 지상 2층 구조 | 철근콘크리트조 외부마감재 | 고벽돌 내부마감재 | 석고보드 위 수성페인트 도장 설계기간 | 2014. 05 ~ 2014. 10 공사기간 | 2014. 10 ~ 2015. 04 사진 | 신경섭 전문기술협력 - 구조분야 : 터구조 - 기계설비분야 : 청림설비 - 전기분야 : 비전ENG - 토목분야 : 제일측량설계사무소 |
House of Noili Architect | Oh, Seunghyun · Park, Hyesun _ SEOGA Architect Supervisor | Oh, Seunghyun · Park, Hyesun _ SEOGA Architect Construction | ARTEK Project team | Park, Hyesun / Choi, Taesu Location | Noil-ro, Bukbang-myeon, Hongcheon-gun, Gangwon-do, Korea Program | Residence Site area | 997.00㎡ Building area | 174.97㎡ Gross floor area | 170.62㎡ Building to land ratio | 17.54% Floor area ratio | 17.11% Building scope | 2F Structure | RC Exterior finishing | Red brick Interior finishing | Water paint finish above gypsum board Design period | May 2014 ~ Oct. 2014 Construction period | Oct. 2014 ~ Apr. 2015 Photograph | Shin, Kyungsub Structural engineer | THEKUJO Mechanical engineer | CHUNGLIM ENG Electrical engineer | VISION ENG Civil engineer | CHEIL ENG |

'회원작품 | Projects > House' 카테고리의 다른 글
| 시스타 하우스 2020.5 (0) | 2023.01.13 |
|---|---|
| 더 컨테이너 2020.5 (0) | 2023.01.13 |
| 방하우스 2020.5 (0) | 2023.01.13 |
| 삼연재 2020.5 (0) | 2023.01.13 |
| JH-1711 2020.4 (0) | 2023.01.12 |