2023. 1. 13. 09:18ㆍ회원작품 | Projects/House
Sista House

마포구 신수동은 오래된 주택들이 밀집한 서울의 여느 일반주거지역 동네이다. 시스타 하우스가 위치한 대지는 4미터 폭이 되지 않는 좁은 도로와 접하고 있으며, 여러 해 동안 진행되던 재개발이 무산된 후 동네가 더욱 낙후되어 가고 있었다.
30대 젊은 건축주 부부는 이 곳에 여성을 위한 임대주택을 짓고 싶어 했다. 평소 여성주거에 대한 관심과 문제의식을 갖고 있었으며, 그들에게 좋은 주거환경을 제공하고 실천하기 위해 몇 년 동안 준비 후 드디어 땅을 계약하게 되자 젊은 건축사를 찾아와 의기투합 하게 되었다.
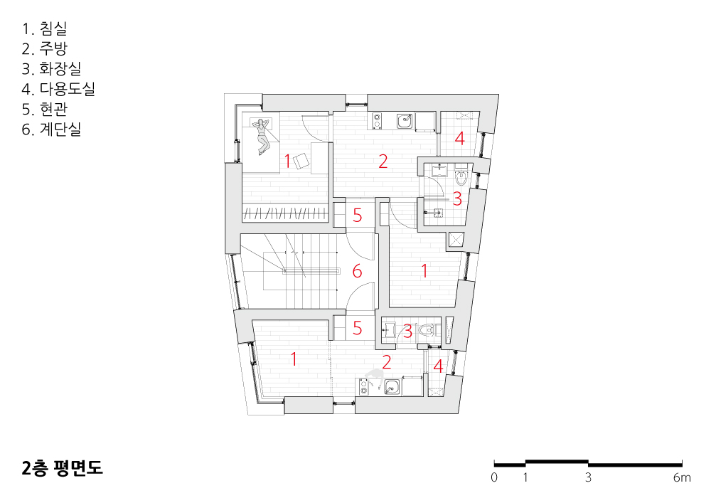
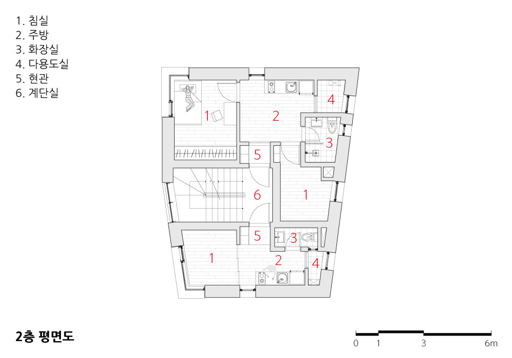
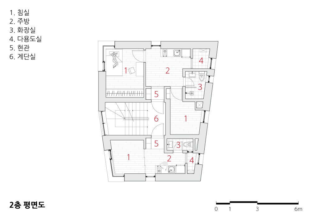
공용부 계단실은 거친 질감의 노출콘크리트 벽과 석재 버너구이 바닥마감으로 계획하여 치장을 최대한 거부하고 재료자체의 질감이 그대로 드러나도록 하였다. 그리고 계단실 커튼월에 벽돌 영롱쌓기를 통한 레이어를 추가함으로써 외부 시선을 차단하면서도 채광과 환기에는 유리하도록 하였다. 세대 평면구성은 원룸세대, 투룸세대, 외부마당이 있는 세대, 높은 천장고가 있는 세대 등 각각 독창적 특성이 있는 세대 구성으로 다양한 여성 입주자들의 취향을 담았다.

Sinsu-dong, Mapo-gu, is a general residential area with many old houses in Seoul. The site is located borders on a narrow road that is less than 4 meters wide and the neighborhood was lagging behind after redevelopment efforts of many years had failed.
A young couple in their 30s wanted to build a rental house here for women. They were usually concerned with and felt a critical mind with housings for women. After years of preparation to provide them with a good residential environment and they finally got a land contract, they banded together with young architects to solve the problem.
The common staircase was designed with rough exposed concrete walls and stone burner floor finishing, avoiding embellishment as much as possible and revealing the texture of the material itself. By adding a layer through masonry work to the curtain wall of the staircase, it is advantageous for light and ventilation while blocking another’s eyes from outside. The flat composition of households consist of a household compositions with unique characteristics such as one-room house, two-room house, house with an outside yard and house with a high ceiling, reflecting tastes of various female residents.














|
시스타 하우스 설계자 | 이중희 _ 투엠투 건축사사무소 건축주 | 김한결 감리자 | 이중희 _ 투엠투 건축사사무소 시공사 | 이립건설주식회사 대지위치 | 서울특별시 마포구 대흥로9길 30 주요용도 | 다세대주택 / 근린생활시설 대지면적 | 131.54㎡ 건축면적 | 66.97㎡ 연면적 | 206.32㎡ 건폐율 | 50.91% 용적률 | 156.84% 규모 | 지상 5층 구조 | 철근콘크리트조 외부마감재 | 점토벽돌, 컬러강판, 노출콘크리트 내부마감재 | 벽지, 노출콘크리트 설계기간 | 2018. 10 ~ 2019. 02 공사기간 | 2019. 04 ~ 2020. 01 사진 | 신경섭 전문기술협력 - 구조분야 : SDM - 기계설비분야 : (주)대광엔지니어링 - 전기분야 : (주)대광엔지니어링 - 소방분야 : (주)대광엔지니어링 |
Sista House Architect | Lee, Junghee _ 2m2 architects Client | Kim, Hankyul Supervisor | Lee, Junghee _ 2m2 architects Construction | ILEAP Construction Location | 30, Daeheung-ro 9-gil, Mapo-gu, Seoul, Korea Program | Multi-family house, Commercial Site area | 131.54㎡ Building area | 66.97㎡ Gross floor area | 206.32㎡ Building to land ratio | 50.91% Floor area ratio | 156.84% Building scope | 5F Structure | RC Exterior finishing | brick, coating metal, exposed concrete Interior finishing | wall paper, exposed concrete Design period | Oct, 2018 ~ Feb, 2019 Construction period | Apr, 2019 ~ Jan, 2020 Photograph | Shin, Kyungsub Structural engineer | SDM Mechanical engineer | Daegwang Engineers Electrical engineer | Daegwang Engineers Fire engineer | Daegwang Engineers |

'회원작품 | Projects > House' 카테고리의 다른 글
| 내곡동 단독주택 2020.6 (0) | 2023.01.16 |
|---|---|
| 판교리 주택 2020.6 (0) | 2023.01.16 |
| 더 컨테이너 2020.5 (0) | 2023.01.13 |
| 홍천 노일리 단독주택 2020.5 (0) | 2023.01.13 |
| 방하우스 2020.5 (0) | 2023.01.13 |