2023. 1. 16. 09:12ㆍ회원작품 | Projects/House
The East Garden

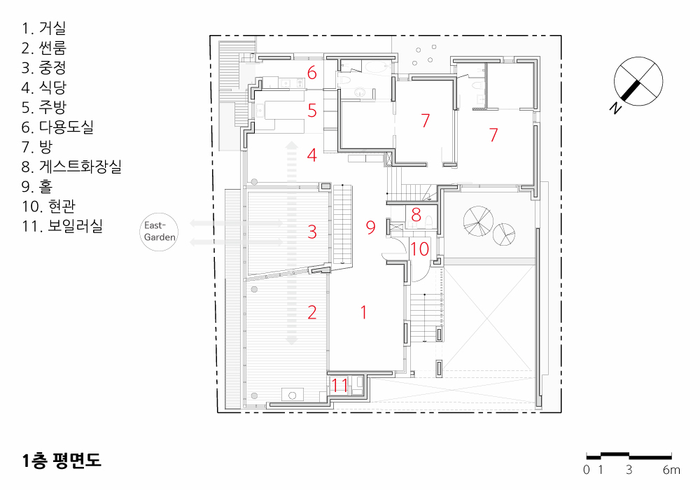
대지는 홍씨마을과 인릉산 북서측 끝자락이 만나는 곳에 위치한다. 막다른 도로 끝에 자리 잡은 덕에 인릉산의 풍성한 자연수림과 접하고 있다. 남쪽으로 산을 보고 있으나 남측 인접대지가 상대적으로 높고, 동쪽으로 지형이 낮아지는 지형을 갖고 있어 주변 지형과의 관계가 중요한 이슈가 된다. 동쪽에 조성될 정원은 비정형 형태로 인릉산과 집을 연결한다.
Connection_‘집’과 ‘정원’의 연결
건축주는 넉넉한 정원이 있는 집에서 노후를 보내고자 했다. 집에서 생활의 중심을 정원에 두고자 하기에 동쪽에 위치한 정원과 집의 연결은 설계의 시작이자 가장 중요한 이슈였다. 또한 집과의 연결 방식에 따라서 정원 설계 방향이 정해지기에 다양한 관점에서 충분한 고려가 이루어져야 했다. 대지는 막다른 도로와 인접대지 옹벽의 침범으로 정원의 규모에 비해 집과 협소하게 만나 이에 대한 적절한 대안이 있어야 했다. 또 시선이 열려 수려한 인릉산과 정원을 조망할 수 있는 동쪽을 적극적으로 사용하기 위해서는 어느 정도의 지형 조정과 입체적 연결도 필요했다.
정원을 생활의 중심에 놓기 위해 정원 인접공간에 중정이 딸린 썬룸과 지하 서재 공간을 배치했다. 막다른 도로 끝에 위치한 정원은 별도 출입문을 설치하여 도로에서 바로 출입이 가능하게 했다. 방문자는 집 내부를 거치지 않고 정원을 통해 1층 썬룸으로 접근할 수 있다. 썬룸은 건축주 생활의 중심이 되는 다목적 공간으로 반(半)외부공간처럼 사용한다. 높은 천정고를 갖는 썬룸은 우리 전통건축의 사랑방과 같은 공간으로 가장 조망이 좋은 곳에 위치한다. 옆에 정원으로 연결되는 중정을 배치하여 정원과 시각적 물리적 소통을 적극적으로 하도록 했다. 지하 서재는 위요감 있는 외부공간을 통해 정원과 소통할 수 있도록 했다. 정원으로 열린 큰 창은 지하의 어두움과 답답함을 해결한다.
Courtyard_중정
중정은 썬룸과 식당을 정원과 연결시켜주는 공간으로 집의 중심(코어) 역할을 한다. 거실, 썬룸, 중정, 식당, 주방은 시각적으로 열려 정원과 면한 넉넉한 공용공간이 된다. 또한 지하 계단실과 면해 지하까지 채광과 통풍을 가능하게 하는 허파 역할을 한다. 중정과 썬룸은 폴딩도어가 설치되어 공간이 확장될 수 있도록 했고, 천정루버와 바닥 목재데크를 동일하게 사용하여 확장 시 확장감을 극대화했다. 중정은 식당과 연접하여 날씨가 좋은 날 바비큐 파티장이 된다.
Garden_정원
‘Garden’이라는 단어에서 ‘Gan’과 ‘Edn’은 각각 히브리어로 ‘둘러싼다’, ‘기쁨’이라는 어의(語意)를 가지고 있다. 이는 동양의 ‘원림(園林)’과 유사한 의미로 경계를 만들고 자연을 만들어 기쁨을 갖는 것이다. The East Garden은 전통 정원의 ‘순수함’과 인위적이지 않은 ‘자연스러움’을 주제로 조성된다. 주택 동북쪽에 위치하는 정원은 남쪽이 높고 북쪽이 낮은 지형을 갖는다. 재해예방을 위해 단차가 심한 부분에 석축을 쌓아 안정적인 지형을 만든다. 지형을 최대한 활용하여 순환동선을 만들고 경계인 돌담장을 최대한 은폐한다. 경계부에는 비교적 높은 수목을 심어 주변 비닐하우스를 스크린하며 위요감 있는 정원의 분위기를 만든다.
BIM_가상공간에서 집짓기
The East Garden은 BIM 설계기법이 초기 계획단계에서부터 적용됐다. 건축주의 요구로 함께 집짓기를 하고자 BIM 데이터를 기반으로 소통을 한 매우 드문 경우이다. 설계 BIM을 통해 건축주는 정확하게 집을 이해하며 디자인을 결정지었고, 요구사항을 구체적으로 전달했다. 가상공간에서 집짓기를 해보고 지어진 집을 자유로이 돌아다니며 계획안을 수정 보완하며, 최종 계획안을 확정했다. 건축주와의 200통이 넘는 이메일 소통은 건축설계 과정을 기록한 설계일지가 됐다.

The site sits in the place where Hong’s residential village and the northwestern edge of Mt. Illeungsan meets. Thanks to its position at the end of a dead road, it borders the rich natural forests of Mt Illeungsan. Looking at the mountain to the south, the adjacent land on the south is relatively high, and the terrain is lower to the east, so the relationship with the surrounding terrain is an important issue. The garden to be built in the east is in an irregular form that connects Mt. Illeungsan.
Connection_Between 'home' and 'garden'
The client wanted to spend his old age in a house with a large garden. To make a garden central living space at home, the connection between the garden in the east and the house was the beginning of the design and, at the same time, the most important issue. Also, a method to connect with the house decided the garden design plan, so we had to consider various viewpoints sufficiently. Since the site was narrow compared to the size of the garden due to the dead road and the invasion of the adjacent land's retaining wall, there should be a suitable alternative. Also, some adjustment of the terrain and three-dimensional connection was necessary to actively use the east with a magnificent wide-open view of Mt. Illeungsan and the garden.
To place the garden at the center of life, we put a sunroom with a courtyard and an underground study close to the garden. In the garden located at the end of the dead road, a separate door was installed to allow direct access from the road. Visitors can access the sunroom on the first floor through the garden without going inside the house. The sunroom is a multi-purpose space that is the center of the client's life, serving as a semi-outdoor space. The sunroom with a high ceiling is the same space as the reception room of our traditional architecture and is well placed for the best view. A courtyard that leads to the next garden was placed to make visual and physical communication with the garden. An underground study was designed to communicate with the garden through an outdoor space with a coziness feeling. The large window opens to the garden, solves the darkness and frustration of the basement.
Courtyard
A courtyard is a space that connects the sunroom and the dining room with the garden, serving as the center(core) of the house. The living room, the sunroom, the courtyard, the dining room, and the kitchen are visually open, creating a spacious common space facing the garden. Also, it meets the underground staircase, so it plays the role of the lung that enables lighting and ventilation to the basement. Folding doors are installed in the courtyard and the sunroom to expand the space, and the ceiling louver and floor wood deck are used in the same way to maximize a feeling of expansion. The courtyard is connected to the restaurant to become a barbecue party place on a sunny day.
Garden
The words ‘Garden,’ ‘Gan,’ and ‘Edn’ are ‘surrounding’ and ‘joy,’ respectively in Hebrew. These meanings are similar to the Asian 'garden(園林)' which means creating boundaries and nature to bring joy. The East Garden represents the theme of 'pureness' and 'naturalness' of a traditional garden that is not artificial. The northeast garden has different levels between the south and north ends. To prevent potential disasters, we created a stable terrain by stacking stone masonry in the areas with significant floor level differences. We make a circular movement flow and conceal a stone wall that is the boundary as much as possible by making the best use of the terrain. A relatively high tree is planted at the border to screen the surrounding vinyl house and create a cozy garden.
BIM
As for The East Garden, we used BIM design technique from the initial planning stage. It is rare for a client to request BIM data as a communication tool to build a house together. Through the design BIM, the client accurately understood the house and decided its design, and communicated the requirements in detail. We created a house in virtual space, moved freely around the built house, revised and supplemented the plan, and finalized the plan. The communication with the client via more than 200 e-mails is now a design journal of the architectural design process.








| 내곡동 단독주택 설계자 | 유주헌_JHY 건축사사무소 건축주 | 방*석 감리자 | 조원준 _ 이제이 건축사사무소 시공사 | (주)제이에이치와이조형 설계팀 | 박성우, 구무영, 한정민 대지위치 | 서울특별시 서초구 내곡동 주요용도 | 단독주택 대지면적 | 1,507.00㎡ 건축면적 | 205.41㎡ 연면적 | 385.46㎡ 건폐율 | 48.21% 용적률 | 63.93% 규모 | 지하 1층, 지상 2층 구조 | 철근콘크리트조 외부마감재 | THK12 지정 세라믹타일, 징크, 스페인산 벽돌 내부마감재 | THK12 지정 세라믹타일, 석고보드 위 수성페인트, 지정 실크벽지 설계기간 | 2017. 05 ~ 2017. 12 공사기간 | 2018. 03 ~ 2019. 01 사진 | 송유섭 전문기술협력 - 구조분야 : 모아구조 - 기계설비분야 : 타임테크 - 전기분야 :신한전설 - 소방분야 : 신한전설 |
The East Garden Architect | Yu, Jooheon_ JHY Architect & associates Client | Bang, W. Seok Supervisor | Cho Wonjoon _E.J Eco-tecture Construction | JHY Company Project team | Park, Seongwoo / Gu, Mooyoung / Han, Jeongmin Location | Hongssimaeul-gil, Seocho-gu, Seoul, Korea Program | Residence(single family house) Site area | 1,507.00㎡ Building area | 205.41㎡ Gross floor area | 385.46㎡ Building to land ratio | 48.21% Floor area ratio | 63.93% Building scope | B1F - 2F Structure | RC Exterior finishing | THK12 ceramic tile, Zinc, Spanish brick Interior finishing | THK12 ceramic tile, Waterpaint on gymsumboard, Silk wallpaper on Design period | May 2017 ~ Dec. 2017 Construction period | Mar. 2018 ~ Jan. 2019 Photograph | Song, yusub Structural engineer | moa engineering Mechanical engineer | Time tech Electrical engineer | Shinhan Ele. Fire engineer | Shinhan Ele. |

'회원작품 | Projects > House' 카테고리의 다른 글
| 이연재(易然齋) 2020.7 (0) | 2023.01.17 |
|---|---|
| 이유있는가 2020.6 (0) | 2023.01.16 |
| 판교리 주택 2020.6 (0) | 2023.01.16 |
| 시스타 하우스 2020.5 (0) | 2023.01.13 |
| 더 컨테이너 2020.5 (0) | 2023.01.13 |