2023. 1. 11. 09:14ㆍ회원작품 | Projects/Public
Hansol-Dong Community Center

첫마을 중심의 상징, 머물고 싶은 기억의 장소 ‘솔마루’
옛마을 어귀의 상징이며 마을공동체의 구심점으로 우리는 정자나무 아래 마루에서 삼삼오오 모여 일상의 얘기를 나누며 편히 쉴 수 있는 쉼터이자 마을의 대소사와 잔치를 열었던 마루를 기억할 것이다.
첫마을 주민의 일상생활공간이자 마을의 중심공간으로서, 옛마을 정자나무 아래에서의 기억을 현대적으로 재해석하여 자연을 품고, 사람이 모이며, 문화를 담아내는 기억의 장소인 솔마루를 디자인했다.
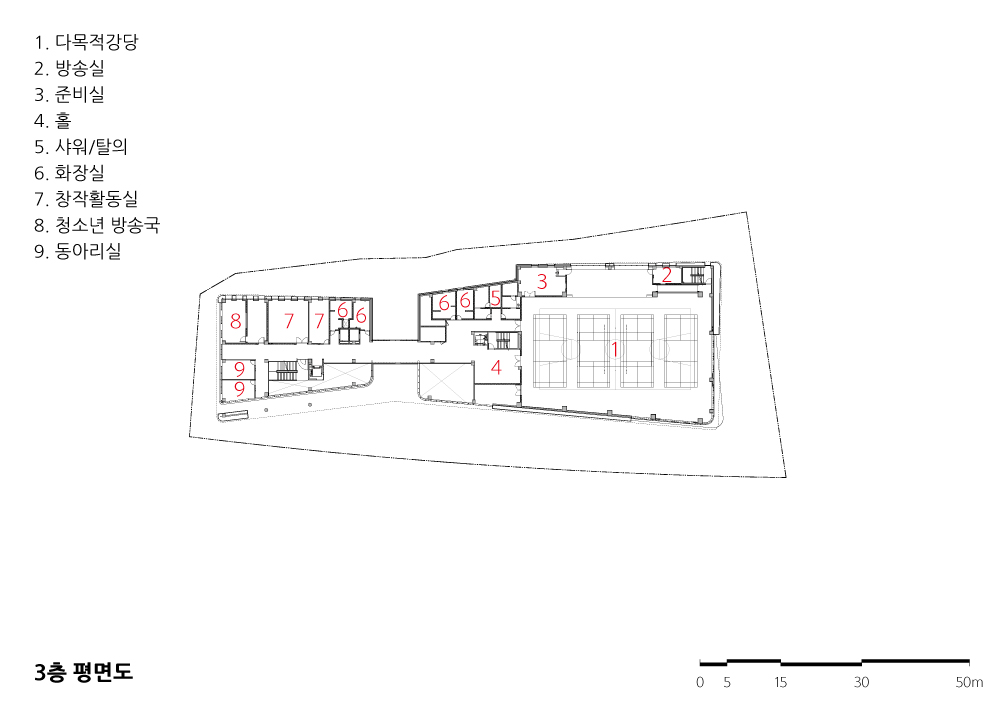
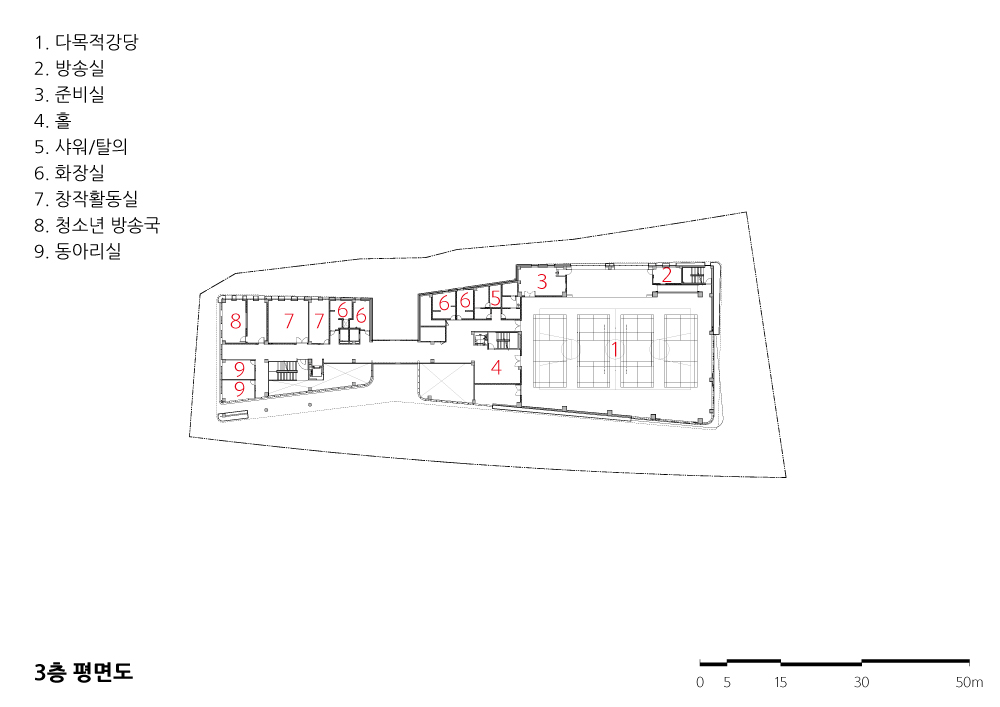
진입광장을 통해 건물로 진입하면 2층에 솔마루가 보인다. 솔마루를 중심으로 문화시설과 운동시설을 명확히 분리했다. 문화시설은 저층부터 지역아동센터, 노인문화센터, 청소년문화센터, 주민자치센터를 조닝했고, 운동시설영역의 수영장은 물의 하중을 고려하여 체육관의 하부에 배치했다. 또한 4층의 사무공간영역을 중심으로 문화시설과 운동시설을 연계하여 시설의 관리 및 이용이 가능하도록 했다.

'Solmaru', a symbol of the center of First Town(Cheotmaeul), a place of memory you want to stay
As a symbol of the entrance of the old town and the center of the village community, we will remember the floor where we gathered and sit the floor under a shade tree to relax and talk about our daily lives and where we had events and festivals.
We designed Solmaru, a place of memory, which embraces nature, gathers people, and contains culture by modernly reinterpreting the memory under the old town's shade tree, as a living space for the residents in First Town and the center of the village.
If you enter the building through the entrance plaza, you will see Solmaru on the second floor. Cultural facilities and sports facilities are separated from Solmaru. The cultural facilities are zoned from lower floors for Community Child Center, Senior Culture Center, Youth Culture Center, and Community Center. A swimming pool in the sports facility area is placed in the lower part of the gym in consideration of water load. Also, centered on the office space area on the 4th floor, cultural facilities and sports facilities are linked to enable the management and use of the facilities.








| 한솔동 복합커뮤니티센터 설계자 | 조도연_(주)디엔비 건축사사무소 건축주 | 세종특별자치시 감리자 | (주)아이티엠코퍼레이션 시공사 | 호등종합건설(주) 설계팀 | 홍민수, 김수경, 박부용 대지위치 | 세종특별자치시 나리로 57-26 주요용도 | 문화 및 집회시설, 운동시설(생활체육시설), 근린생활시설 대지면적 | 4,226.60㎡ 건축면적 | 2,379.34㎡ 연면적 | 8,279.84㎡ 건폐율 | 56.29% 용적률 | 135.44% 규모 | 지하 1층, 지상 4층 구조 | 철근콘크리트조, 철골조(다목적강당 지붕) 외부마감재 | THK4알루미늄패널, 화강석 내부마감재 | 노출콘크리트, THK1.4알루미늄쉬트, 친환경페인트 설계기간 | 2016. 10 ~ 2017. 04 공사기간 | 2017. 10 ~ 2019. 06 사진 | 채수옥 전문기술협력 구조분야 : 동양구조ENG 기계설비분야 : (주)수양엔지니어링 전기분야 : (주)수양엔지니어링 소방분야 : (주)수양엔지니어링 |
Hansol-Dong Community Center Architect | Cho, Doyeon_D&B Architects Client | Sejong Special Self-governing City Supervisor | ITM CORPORATION Construction | HoeDeung Construction Project team | Hong, Minsu / Kim, Sookyung / Park, Booyoung Location | 57-26, Nari-ro, Sejong-si, Korea Program | Culture and assembly facilities, Sports facilities, Neighborhood Living Facilities Site area | 4,226.60㎡ Building area | 2,379.34㎡ Gross floor area | 8,279.84㎡ Building to land ratio | 56.29% Floor area ratio | 135.44% Building scope | B1F - 4F Structure | RC, Steel frame(gym roof) Exterior finishing | THK4 Aluminum Panel, Granite Interior finishing | Exposed concrete, THK1.4 AluminumSheet, Eco-Friendly Paint Design period | 2016. 10 ~ 2017. 04 Construction period | 2017. 10 ~ 2019. 06 Photograph | Chae, Suok Structural engineer | Dongyang Consulting Engineers Mechanical engineer | SUYANG E.N.G Electrical engineer | SUYANG E.N.G Fire engineer | SUYANG E.N.G |

'회원작품 | Projects > Public' 카테고리의 다른 글
| 울주민속박물관 2021.1 (0) | 2023.01.30 |
|---|---|
| 평동산업단지 화물자동차 공영차고지 2020.9 (0) | 2023.01.19 |
| 평화공원 파라다이스 추모관 2020.2 (0) | 2023.01.10 |
| 남사 도서관 2020.2 (0) | 2023.01.10 |
| 전라북도 장수군청사 2020.1 (0) | 2023.01.09 |