2023. 1. 12. 09:11ㆍ회원작품 | Projects/Neighborhood Facility
Corner building

도시가로 잇기
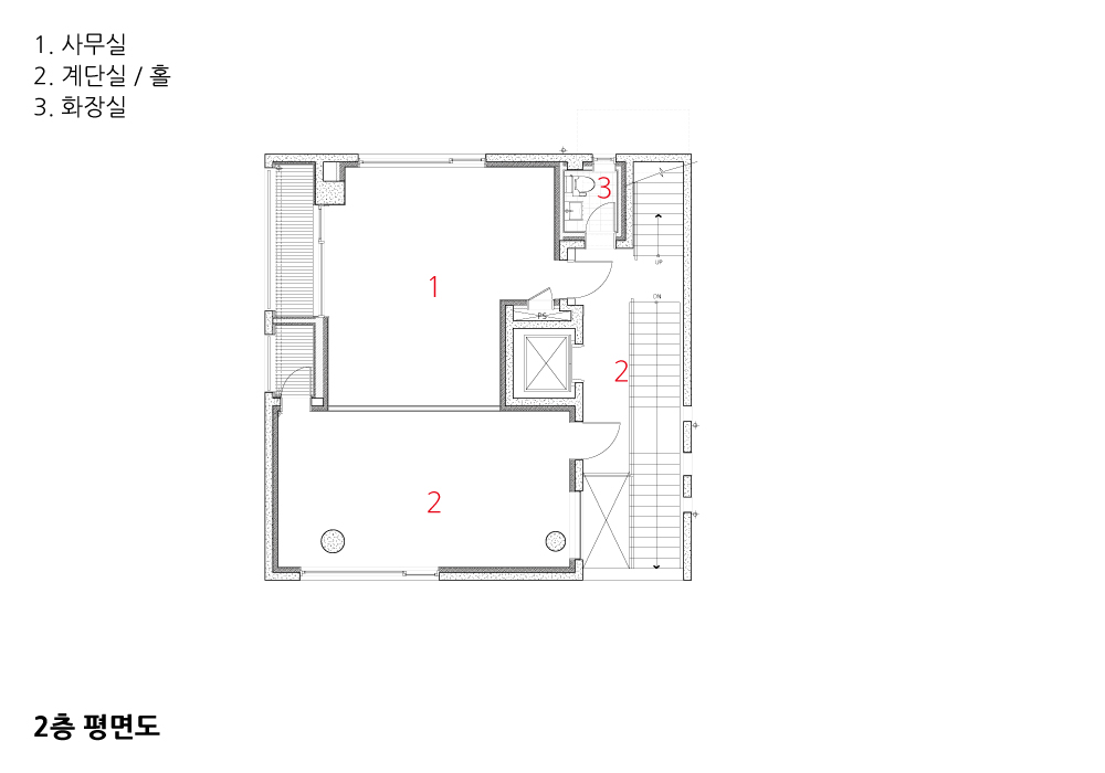
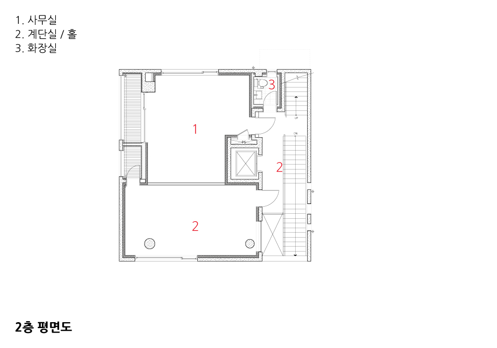
이 건물은 길에서 건물로 진입하는 방식이 일반적인 내부와 외부의 경계로 이어지지 않는다. 외부로 돌출된 계단과 통로는 길을 이으면서 동시에 위층과 지하층으로 유도하는 역할을 한다. 각각의 실로 이어지는 계단과 복도에서는 도시를 걷다 우연히 사람들을 만나듯이 자연스럽게 도시의 풍경과 사람들을 만날 수 있다. 계단은 단순한 동선이 아니라 다양한 생성의 기능을 하는, 도시 가로를 잇는 길이 되는 것이다.
도시풍경 담기
우리는 이번 프로젝트를 통해 사용자들이 내부에 갇혀 생활하는 방식을 깨고 싶었다. 각각의 실들은 도시와 만나는 경계에서 크든 작든 테라스를 가지고 있다. 테라스는 외부적인 깊이를 만드는 입면이 되면서 내부에서는 도시풍경을 담아내는 프레임 역할을 한다.
또한 계단실을 오르내리면서 만나는 깊이 있는 풍경은 새로운 도시를 경험하게 만든다. 공용 계단의 홀도 테라스를 두고 있기에 채광과 조망을 동시에 해결할 수 있다. 이처럼 다양한 도시의 풍경이 담긴 건물은 기계적인 사용자의 일상에 활력을 주는 공간적인 역할을 할 것이다.
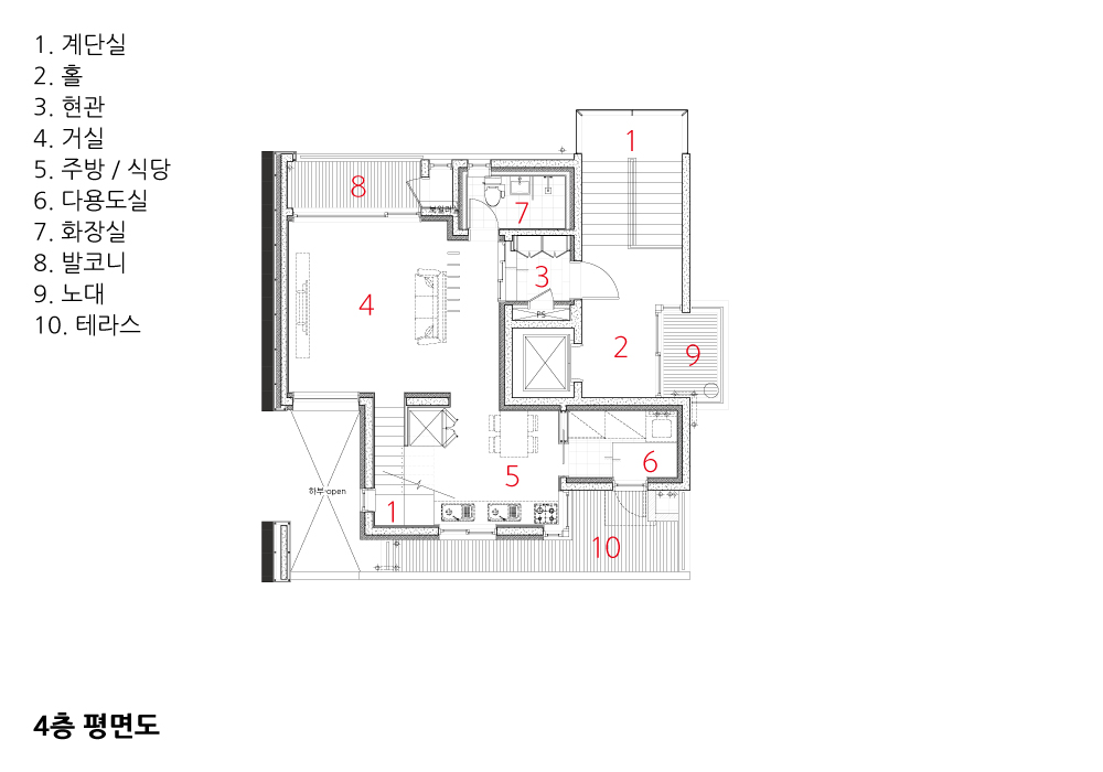
도시주거 살기
주상복합 프로그램이 혼합된 건물의 경우, 상업성과 거주성이 공존하는 좋은 단일 건축으로 만드는 것이 중요하다. 도시주거에서 거주성이란 무엇일까? 우리는 여기서 내·외부 공간이 서로 관계를 만드는 테라스가 있는 주거를 생각했다. 테라스는 내부실과 적극적으로 관계 맺으면서 복층의 구조를 갖추고 있다. 4층은 부엌과 연계된 실용적인 테라스로, 5층에는 가족실과 안방과 바로 이어지는 마당을 만들었다. 특히 가족실과 이어지는 마당은 내부 대청이 그대로 외부 툇마루로 이어져 내·외부를 더욱 긴밀한 관계로 만들어준다.

Connecting city streets
This building does not lead to the internal and external boundaries in the typical way it enters the building from the road. The stairways and hallways that protrude to the outside lead the way to levels both below and above the ground at the same time.
The stairways and hallways leading to each room allow you to naturally meet the scenery and people of the city just as you come across people when you walk around the city. The staircase is not just a movement flow, but a path connecting city streets, which function in various ways.
Capturing cityscape
Through this project, we wanted to break the way users are trapped inside. Each room has a terrace, large or small, at the boundaries with the city. The terrace serves as a frame to capture the cityscape from the inside as it becomes an elevation with an external depth.
Also, the profound scenery you encounter as you go up and down the staircase makes you experience the city in a new way. The common staircase also has a terrace, so you can command both the lighting and view. The building with such diverse cityscapes will play a spatial role in revitalizing the daily routine of the users.
Living in a city
In the case of building with a mixed commercial & residential program, it is important to make them a good single building where profitability and livability coexist. What is livability in the urban dwelling? We thought of residence with a terrace where the interior and exterior spaces relate to each other. The terrace is a double-storied structure and is actively engaged with the interior room. The fourth floor is a practical terrace connected to the kitchen, and the fifth floor has created a courtyard that connects directly to the master bedroom and the family room. In particular, the yard connected to the family room leads the inside hall to the outside veranda, making the inside and outside more closely related.










| 모퉁이빌딩 설계자 | 홍만식 _ (주)리슈 건축사사무소 건축주 | 정소림, 김민희 감리자 | 홍만식 _ (주)리슈 건축사사무소 시공사 | 바른건축 이우 설계팀 | 임도영 대지위치 | 서울특별시 중구 다산로42다길 37 주요용도 | 제2종 일반주거지역(12층 이하) 대지면적 | 210.00㎡ 건축면적 | 119.66㎡ 연면적 | 545.55㎡ 건폐율 | 56.98% 용적률 | 199.67% 규모 | 지하 1층, 지상 5층 구조 | 철근콘크리트조 외부마감재 | 노출 콘크리트, 리얼징크 내부마감재 | 석고보드 위 지정벽지, 노출 미장 설계기간 | 2015. 09 ~ 2016. 08 공사기간 | 2016. 08 ~ 2017. 11 사진 | 김재윤 전문기술협력 - 구조분야 : 광림구조 - 기계설비분야 : 코담기술단 - 전기분야 : 코담기술단 - 소방분야 : 코담기술단 |
Corner building Architect | Hong, Mansik _ RICHUE Architect Client | Jung, Sorim / Kim, Minhee Supervisor | Hong, Mansik _ RICHUE Architect Construction | Iewoo Project team | Lim, Doyoung Location | 37, Dasan-ro 42da-gil, Jung-gu, Seoul, Korea Program | Neighborhood facility Site area | 210.00㎡ Building area | 119.66㎡ Gross floor area | 545.55㎡ Building to land ratio | 56.98% Floor area ratio | 199.67% Building scope | B1F - 5F Structure | RC Exterior finishing | Exposed concrete, Zinc Interior finishing | Paint, Wallpaper Design period | Sep. 2015 ~ Aug. 2016 Construction period | Aug. 2016 ~ Nov. 2017 Photograph | Kim, Yongsoon Structural engineer | Kwang rim stuructural engineering office Mechanical engineer | Codam Co. Ltd. Electrical engineer | Codam Co. Ltd. Fire engineer | Codam Co. Ltd. |

'회원작품 | Projects > Neighborhood Facility' 카테고리의 다른 글
| K823 2020.4 (0) | 2023.01.12 |
|---|---|
| 도시의 가면 2020.4 (0) | 2023.01.12 |
| 카페 조슈아 2020.3 (0) | 2023.01.11 |
| 힐사이드 양림 2020.3 (0) | 2023.01.11 |
| 정빌딩 2020.3 (0) | 2023.01.11 |