2023. 1. 12. 09:12ㆍ회원작품 | Projects/Neighborhood Facility
Urban Persona

나는 누구인가?
‘인간은 천 개의 페르소나를 갖고 상황에 맞게 꺼내 쓴다.’
- 칼 구스타프 융
페르소나(Persona)는 고대 그리스시대 배우들이 쓰던 가면을 일컫는다. 심리학자인 구스타프 융은 이 단어를 활용해서 인간은 천 개의 페르소나를 갖고 상황에 맞게 페르소나를 바꾸며 산다고 인간의 본질과 다양성을 설명한다.
페르소나는 타인 또는 대중이 인지하는 만들어진 정체성이다.
건축에 대한 직관적 이해는 기능, 공간(본질)과 표피(모습)의 관계다. 보이는 모습 즉 건물의 표피는 그것을 이용하는 인간에게 제일 처음으로 보여 지는 중요한 정체성이다. 건축에도 페르소나는 존재한다.
가로의 이면부에 있으면서 도시공간에서 상당히 큰 비중을 차지하고 도시민의 삶에 깊은 관계를 맺고 있는 근린생활시설은 그 도시내 점유율과 파급효과에 비해 공공 및 건축가의 관심에서 멀어져 온 것이 사실이다. 필지별 개발로 파편적으로 형성되어온 근린생활시설은 자본의 논리를 그대로 건축물의 표피로 그대로 보여주고 있다. 근린생활시설 각자의 다른 시간, 복잡한 상황과 그 속사정으로 우리의 삶 공간 속에서 천 개, 만 개의 가면으로 도시 내에 존재하게 된다.
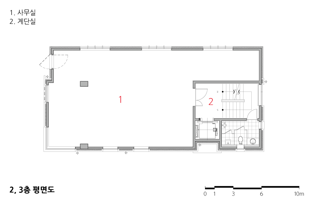
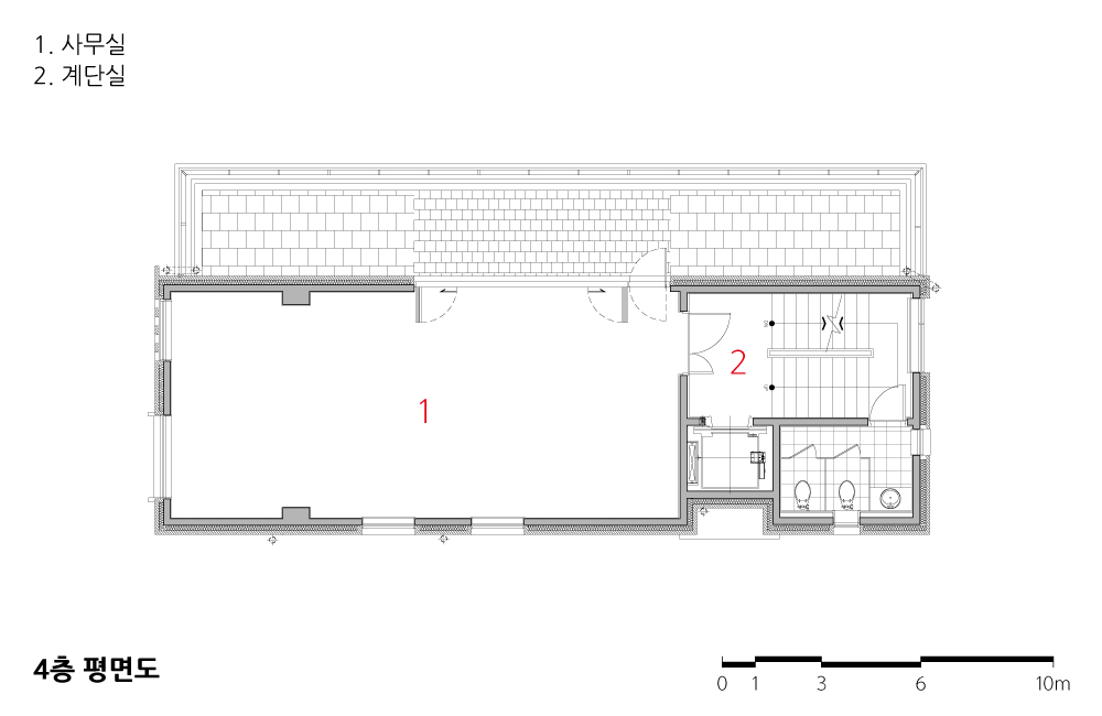
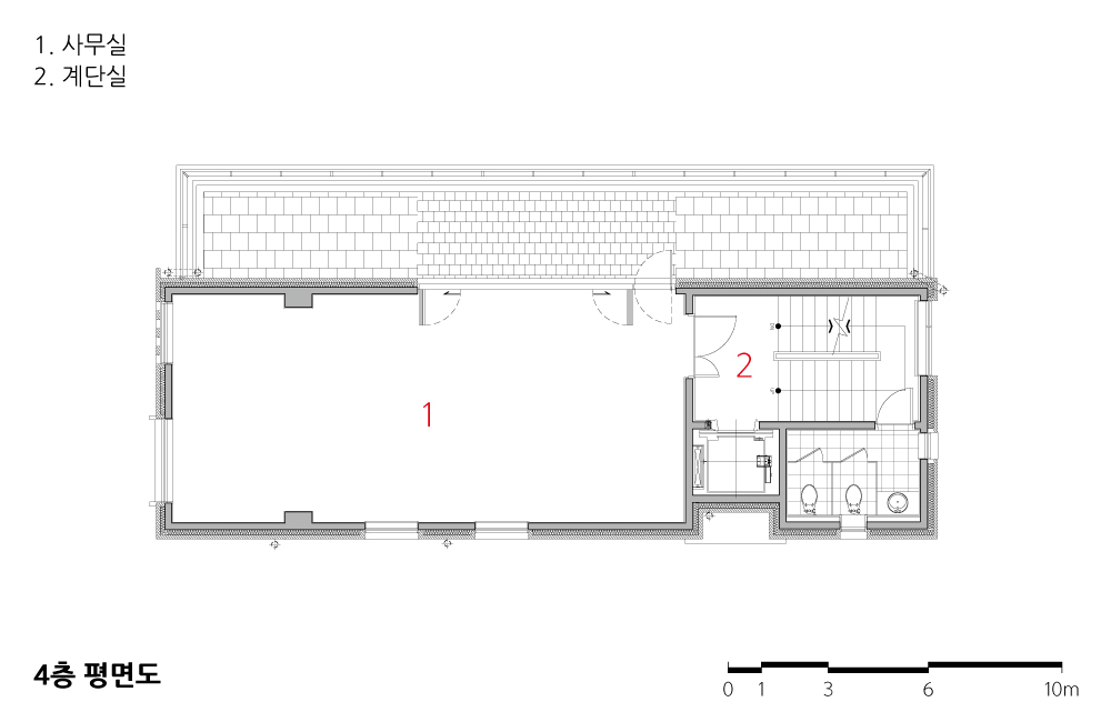
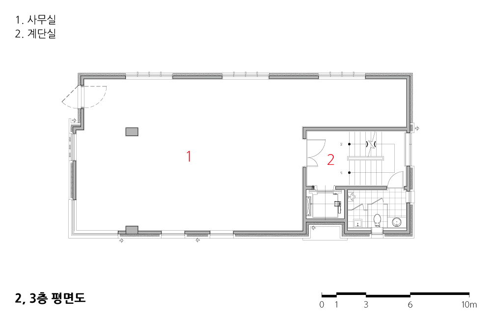
[잠원동 근린생활시설]은 주거(다세대)기능과 근린생활기능이 만나는 접점에 위치한다. 주거와 근린생활이 만드는 전형적 경관이 부딪히는 장소, 다양한 가면의 존재와 인정이 계획의 시작점 이었다. 강남(잠원동)의 가치가 생산한 욕망과 일방통행으로 적용되는 법규가 건축물의 매스를 재단하고 있는 현실 속에서 “주거와 상업의 접점”이라는 입지는 재료를 결정짓는 요인이다. 재료와 디테일이 얽힌 복잡한 주거경관과 변화무쌍한 기능을 포용하는 기능적 상업경관을 연결하는 역할로 벽돌을 선택하였다. 도시내 상업건물은 주체할 수없이 무질서한 간판이 입면이 되는 시대이다. 시간이 흘러도 지속가능한 입면을 위해 노출되는 정면 창호를 축소하여 의도치 않은 입면(창호간판 등)을 최소화 하였다. 채광, 환기의 창호기능은 유지하되 입면을 보전하는 부분적 이중외피를 제안하였다. 단순한 매스와 입면은 도시 가로경관의 여백이 되고, 복잡한 도시의 뒷 켜에 여백의 가면을 건축적 장치로 씌운다.
“나는 누구인가 평생 물어온 질문
아마 평생 정답은 찾지 못할 그 질문
나란 놈이 말 고작 몇 개로 답할 수 있었다면
신께서 그 수많은 아름다움을 담아두시진 않으셨겠지.”
- [ Map of the Soul : Persona ] by BTS

Who am I?
There are thousands personas in the man, and use them in right circumstances
- Carl Gustav Jung
Persona means ‘mask’, a word from ancient Greece. The psychiatrist, Carl Jung, mentioned that man uses thousands of personas in right situations to demonstrate varieties of people’s characteristics.
Persona is the one which it needs to be shown as a personality to others.
A state about the architecture derives from relationship between function, space and structure. How it shown is an important identity, and persona exists in architecture as well.
Neighbourhood living facility, a facility on the back side of the street yet an important function for city dwellers. Indeed these facilities are like a thousands or more of a masks, which have been made in different times, conditions and purposes in each particular of lots.
The function of [Jamwon neighbourhood living facility] stands in between of dwellings and neighbourhood living function. The plan of this structure was launched from the beginning of an idea where dwelling and neighbourhood living function must be met.
However a desire of value and strict laws brought Gangnam (Jamwon-dong) to be fitted in such a banal mass. Moreover the material of it’s structure derives from the mixture function of dwelling and commercial. This detailed block texture covers and links the complexity of dwelling scenery and diversity of commercial change. Nowadays, sign of it’s commerce is functioning as a facade. And the design purpose of window to be shown as small as possible is to keep the facade last long. The window is just designed to be functioning for ventilation and lighting. Further more, a simple structure fills the landscape of scenery. Covering the mask of emptiness in back side of complex city.
“repeated question through whole my life, who am I
maybe no way to get the answer till the end
maybe the god won’t have left the grace
i f I had made the answer in few words“
- [ Map of the Soul : Persona ] by BTS








|
도시의 가면 설계자 | 유재득+최준 _ (주)일로 종합건축사사무소 건축주 | 신혜정 감리자 | 유재득 _ (주)일로 종합건축사사무소 시공사 | 태윤종합건설(주) 설계팀 | 최준, 정용욱, 박진석, 한태환, 하지윤 대지위치 | 서울특별시 서초구 신반포로45길 38 주요용도 | 제1종 근린생활시설 대지면적 | 241.20㎡ 건축면적 | 133.93㎡ 연면적 | 430.32㎡ 건폐율 | 55.53% 용적률 | 178.41% 규모 | 지상 4층 구조 | 철근콘크리트조 외부마감재 | 치장벽돌 내부마감재 | 비닐페인트 설계기간 | 2018. 08 ~ 2019. 03 공사기간 | 2019. 04 ~ 2019. 10 사진 | 이현준 전문기술협력 - 구조분야 : 건축구조연구소-다우 - 기계설비분야 : 보람환경개발(주) - 전기분야 : (주)건창기술단 - 소방분야 : 주식회사 보우엔지니어링 |
Urban Persona Architect | Yu, JaiDeuk + Choi, Jun_illo Architects & Planners Client | Shin, HyeJeong Supervisor | Yu JaiDeuk + illo Architects & Planners Construction | Corporation TaeYoon Construction Project team | Choi, Jun / Jeong, YoungWook / Park, JinSeok / Han, TaeHwan / Ha, JiYun Location | 38, Sinbanpo-ro 45-gil, Seocho-gu, Seoul, Korea Program | Neighbourhood Living Facility Site area | 241.20㎡ Building area | 133.93㎡ Gross floor area | 430.32㎡ Building to land ratio | 55.53% Floor area ratio | 178.41% Building scope | 4F Structure | RC Exterior finishing | Clay brick Interior finishing | V.P. Paint Design period | Aug. 2018 ~ Mar.2019 Construction period | Apr. 2019 ~ Oct. 2019 Photograph | Lee, HyunJun Structural engineer | Architecture Structural Research Institute DAWOO Mechanical engineer | Corporation Boram Environmental Development Electrical engineer | Corporation Kunchang Engineering Fire engineer | Corporation Bow Engineering |

'회원작품 | Projects > Neighborhood Facility' 카테고리의 다른 글
| 댄스빌딩 (0) | 2023.01.12 |
|---|---|
| K823 2020.4 (0) | 2023.01.12 |
| 모퉁이빌딩 2020.4 (0) | 2023.01.12 |
| 카페 조슈아 2020.3 (0) | 2023.01.11 |
| 힐사이드 양림 2020.3 (0) | 2023.01.11 |