2023. 1. 12. 09:13ㆍ회원작품 | Projects/Neighborhood Facility
K823

끝자락 그리고 시작
1,600세대 아파트가 재개발되면서 언덕 끝자락에 남겨진 땅에 4개의 집만 남게 됐다. 학교 부지인 도로에 가로막혀 개발이 진행되지 않은 것이다. 그리고 건축주는 아파트에서 살다가 부인의 건강 때문에 봄이면 벚나무길이 예뻤던 이곳으로 왔다.
복원: 원래대로 회복함
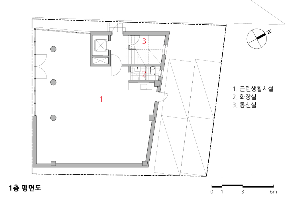
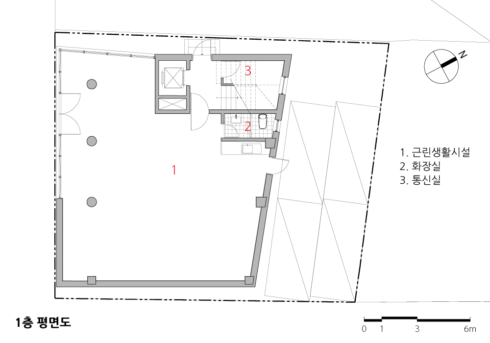
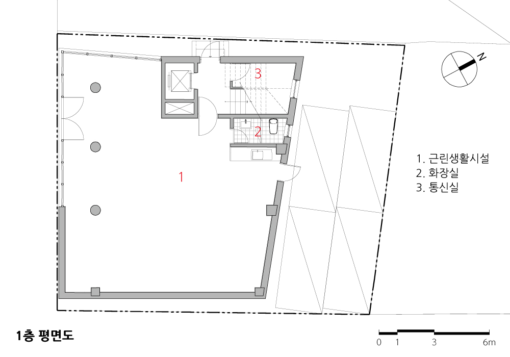
2017년 무더운 여름날 설계를 위해 건축주가 본래 살고 있던 곳에 대지조사를 나왔다. 시원하고 커다란 그늘은 없었지만 오래된 2층집 앞에 있는 마당은 제법 넓고 과실수도 여럿 있었다. 그 마당을 그대로 복원할 순 없지만 마당에서 거름을 주며 제철 과일들을 수확한 기쁨, 그것들을 이웃들과 나누며 정갈하게 살았던 삶은 돌려주고 싶었다. 설계 초기에는 1층엔 상가, 2, 3층에는 임대주택, 4, 5층에는 주인 세대로 계획했다. 그러나 오랜 기간 해왔던 건축주의 사업을 확장하고자 1~3층 저층부에 근린생활시설을 구성하고 그 위에 건축주가 거주할 주택을 얹은 지금의 점포주택으로 변경됐다. 북쪽 인접 대지 일조권 사선제한에 용적률(219.55%)을 꽉 채운, 제법 덩치가 큰 5층 규모의 프로그램이었다.
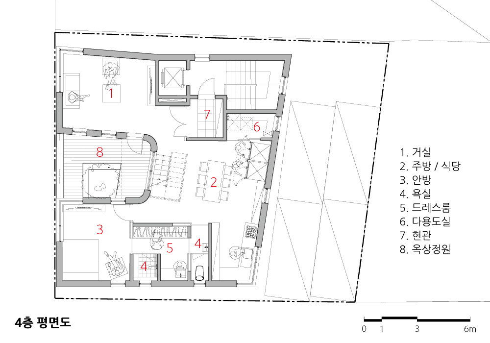
분절과 비움
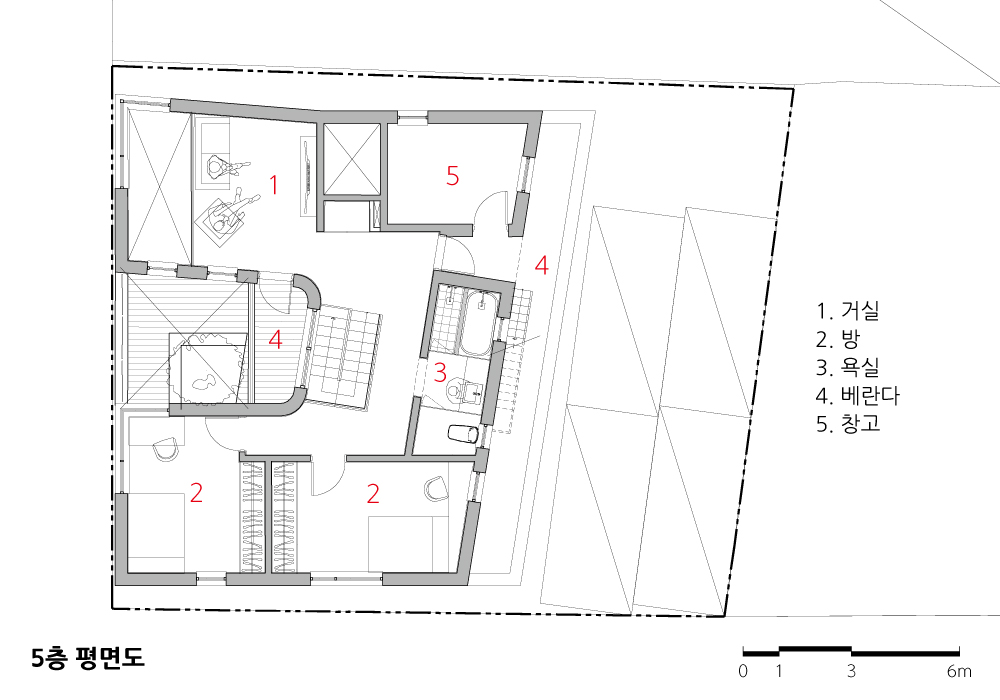
대규모 아파트에 대응하는 형태? 남겨진 이웃집을 위한 배려? 대단지 아파트가 들어서고 남겨진 공간이라는 느낌을 가져가기 싫었다. 또 커다란 덩치가 주변에 위압감을 주는 콘크리트 덩어리로 읽히지는 않을까, 하는 고민이 깊었었다. 매스 스터디를 하며 자꾸만 분절하고 비우고 싶어서였을까, 2층 상가 부분의 수평적 발코니와 4, 5층 두 개 층을 하늘로 오픈한 수직적 마당이 만들어졌다. 태양열 집열판과 텃밭이 있는 옥상을 합해 총 3개 마당이 있는 상가주택이 완성됐다.
‘마당의 복원’이라는 설계 개념에서 출발한 이번 프로그램은 건축주의 요구와 해당 면적을 충족하는 동시에 주변과의 관계, 프라이버시, 건축주의 삶의 질까지 고려하면서 ‘마당이 있는 상가주택’으로 완성됐다.

Edge and start
With the redevelopment of 1,600-family apartments, only four houses eventually remain at the edge of the hill. The development has not been progressed because it was blocked by a road that is a part of a school site. And the client, who lived in an ordinary apartment, moved here because of his wife's health, where cherry trees are beautiful in spring.
Restore: Back again
On a hot summer day in 2017, we conducted a site survey where the client lived. There was no large and cool shade, but the yard in front of the old two-story house was quite spacious with many fruit trees. We couldn't restore the yard as it was, but we wanted to give back the joy of harvesting seasonal fruits in the yard and sharing them with his neighbors. In the early stage of the design, it was planned to be a shop on the first floor, rental houses on the second and third floors, and the client’s housing on the fourth and fifth floors. However, to expand the client’s business that he has run for a long time, it has been changed to the current residence with commercial space which is on the lower levels from the first to third floors with residence on top of them. It was a relatively large-scale, five-story building program that filled the floor area ratio (219.55%) maximizing the volume considering the right of light for the site adjacent to the north.
Dividing and emptying
How to respond to large apartments? Care for leftover neighbors? We didn't want to give an impression that it was a leftover space by a large-scale apartment complex. Also, we were deeply concerned about whether this large mass would be seen as a mass of concrete that gives a sense of pressure to the surroundings. Perhaps because we wanted to keep dividing and emptying while doing a mass study, we created not only a horizontal balcony on the second-floor store area but also a vertical courtyard on the two floors of the 4th and 5th floors open to the sky. A total of three-yard houses were completed by combining the solar panel and the rooftop with a garden.
Starting from the design concept of ‘restoration of the yard’, this program was completed as a ‘shop residence with a yard’ while satisfying both the needs of the client and the area and considering the relationship with the surroundings, privacy, and the quality of the client’s life.






| K823 설계자 | 디자인랩 수 건축사사무소 건축주 | 장태식 감리자 | 이영민 _ 디자인랩 수 건축사사무소 시공사 | 골드종합건설(주) 설계팀 | 추수정 대지위치 | 부산광역시 동래구 부곡로 주요용도 | 근린생활시설, 단독주택 대지면적 | 226.89㎡ 건축면적 | 121.82㎡ 연면적 | 498.13㎡ 건폐율 | 53.69% 용적률 | 219.55% 규모 | 지상 5층 구조 | 철근콘크리트조 외부마감재 | 라임스톤(소사레토) 내부마감재 | 포세린타일, 실크벽지 설계기간 | 2017. 08 ~ 2017. 11 공사기간 | 2018. 05 ~ 2018. 12 사진 | 이영민 전문기술협력 - 구조분야 : 주안구조 - 기계설비분야 : 금강DNS - 전기분야 : 금강DNS - 소방분야 : 금강DNS |
K823 Architect | Yi, Youngmin _ DLS Architects Client | Jang, Taesik Supervisor | Yi, Youngmin _ DLS Architects Construction | Gold Construction Co. Project team | Chu, Sujung Location | Bugok-ro, Dongnae-gu, Busan, Korea Program | Neighbourhood facility / Housing Site area | 226.89㎡ Building area | 121.82㎡ Gross floor area | 498.13㎡ Building to land ratio | 53.69% Floor area ratio | 219.55% Building scope | 5F Structure | RC Exterior finishing | Lime stone Interior finishing | Pocerin tile, Silk wallpaper Design period | Aug. 2017 ~ Nov. 2017 Construction period | May 2018 ~ Dec. 2018 Photograph | Yi, Youngmin Structural engineer | Jooan ENG Mechanical engineer | Kumkang DNS Electrical engineer | Kumkang DNS Fire engineer | Kumkang DNS |

'회원작품 | Projects > Neighborhood Facility' 카테고리의 다른 글
| TIRA 사옥 2020.5 (0) | 2023.01.13 |
|---|---|
| 댄스빌딩 (0) | 2023.01.12 |
| 도시의 가면 2020.4 (0) | 2023.01.12 |
| 모퉁이빌딩 2020.4 (0) | 2023.01.12 |
| 카페 조슈아 2020.3 (0) | 2023.01.11 |